📢
🔥 Świętujemy 10.000 Opublikowanych Ogłoszeń 🔔 z tej Okazji mamy 10 Promowań za Free na SPRZEDAWANKO.PL🔥

Mokotów: lokal biurowy 641,51 m2 na wynajem

24 922,00 zł

{{ phone }}

{{ email }}

Dodane przez: PropertyOffice
Lokalizacja: Wynalazek
Telefon: {{ phone }}
Agent: Property Office Sp. o.o.
E-mail: katarzyna@propertyoffice.pl
Udostępnij:

Opublikowano:  | Wygaśnie:

Wyświetleń: 2 | ID ogłoszenia: 79924

Numer oferty: 361748

Szczegóły

Typ: Wynajem
Rynek: Nie
Pow. użytkowa: 641.51 m2
Piętro: 2
Liczba pięter: 6
Rok budowy: 2008
Ogrzewanie: miejskie
Stan wykończenia: bardzo dobry
Własność: własność
Telefon biuro: 731321117
Nr licencji: 22020
Data aktualizacji: 2026-04-26 22:06:10
Inwestycja:
Typ lokalu: biura/biuro

Opis

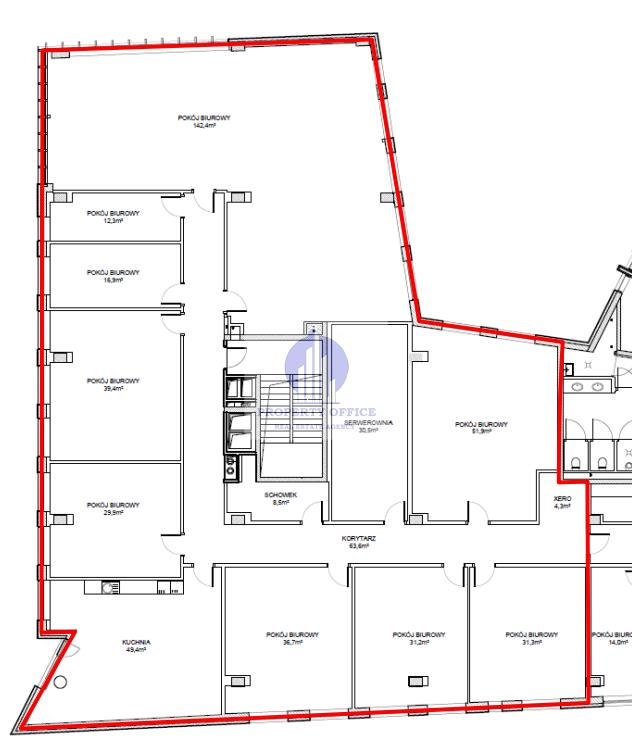
Do wynajęcia: lokal biurowy o pow. 641,51 m2 na 2 piętrze budynku biurowego na warszawskim Mokotowie, w okolicach ulic: Postępu i Wynalazek.

poleca Agencja Nieruchomości Property Office (tel. 731-321-117, mail: katarzyna@propertyoffice.pl)

-------Bez prowizji od Najemcy-------

Moduł biurowy w układzie gabinetowym:

-9 pokoi biurowych,

-open space,

-serwerownia,

-magazynek,

-xero.

-wewnętrzny korytarz.

Wejścia z korytarza do poszczególnych pomieszczeń.

Powierzchnia doświetlona światłem dziennym.

Pomieszczenia socjalne zostały wydzielone na powierzchni lokalu.

Najemca wchodzi do lokalu w stanie zastanym.

Ewentualne aranżacje powierzchni są po stronie Najemcy.

Wysokość 3m do sufitu podwieszanego.

Standard wykończenia:

-Windy,

-Klimatyzacja,

-Ochrona 24h,

-Monitoring,

-System kontroli dostępu,

-Czujki dymu i ciepła,

-Ścianki działowe,

-Okablowanie teletechniczne,

-Recepcja,

-System zarządzania budynkiem (BMS) ,

-Uchylne okna,

-Podwieszany sufit,

-Wykładzina

Na miesięczne koszty najmu netto składają się:

-czynsz: 24922,70 PLN,

-koszty eksploatacyjne: 29 PLN/m2

Razem netto: 43526,52 PLN

-energia elektryczna

Opłaty naliczane są od powierzchni brutto, czyli z wliczonym współczynnikiem powierzchni wspólnych.

Powierzchnia netto: 548,30 m2

Powierzchnia brutto: 641,51 m2

Spersonalizowaną ofertę finansową, klient otrzymuje po prezentacji lokalu.

Internet:

-opcjonalnie,

-Najemca indywidualnie podpisuje umowę z operatorem telekomunikacyjnym.

Światłowód Orange w budynku.

Parking:

Miejsca postojowe w garażu podziemnym.

Abonament miesięczny: 330 PLN/stanowisko

Współczynnik miejsc postojowych: 1:60m2.

Umowa najmu na czas nieokreślony/określony,

-wypowiedzenie 3 miesiące,

-kaucja 3 miesiące,

-akt notarialny (art. 777 kpc),

Opis budynku:

Kompleks trzech budynków biurowych oferujący do wynajęcia nowoczesną przestrzeń biurową.

Na terenie kompleksu znajduje się także przychodnia medyczna,miejsce do ćwiczeń z trenerem oraz kantyna.

Standard budynku:

-Windy,

-Klimatyzacja,

-Ochrona 24h i monitoring.

-System kontroli dostępu,

-Czujki dymu i ciepła,

-Okablowanie teletechniczne,

-Recepcja,-

-System zarządzania budynkiem (BMS),

Zalety lokalizacji:

Strategiczne położenie blisko lotniska wraz z dogodnym dojazdem transportem publicznym zapewnionym przez liczne połączenia autobusowe, tramwajowe, sąsiadującą stację kolei miejskiej, stację metra linii M1, nieustannie rozbudowywane arterie komunikacyjne, a także bogate zaplecze handlowo-usługowe (w tym hotelowe) powodują, że budynek stanowi idealną bazę do rozwoju każdej firmy.

Do podanych cen należy doliczyć podatek VAT w wysokości 23 %

Zdjęcia pokazują ogólny standard budynku.

Zapraszam na spotkanie w celu obejrzenia lokalu

Zachęcam do kontaktu telefonicznego pod numerem: 731-321-117

Po więcej ofert warszawskich biur, magazynów czy lokali usługowych do wynajęcia, zapraszam na stronę:

https://www.propertyoffice.pl/

Treść niniejszego ogłoszenia nie stanowi oferty handlowej w rozumieniu art.66 1 kodeksu cywilnego oraz innych właściwych przepisów prawnych.

Treść niniejszego ogłoszenia nie stanowi oferty handlowej w rozumieniu art.66 1 kodeksu cywilnego oraz innych właściwych przepisów prawnych.

Oferta wysłana z programu IMO dla biur nieruchomości

Może Cię zainteresować:

Komentarze (0)

Nic nie znaleziono

Tylko zalogowani użytkownicy mogą dodawać komentarze

Mapa

Formularz kontaktowy

This site is protected by reCAPTCHA and the Google Privacy Policy and Terms of Service apply.

Podobne ogłoszenia

Warszawa Włochy: lokal biurowy 77,84 m2 na wynajem

Warszawa - Do wynajęcia lokal biurowy o pow.77,84 m2 na 4 piętrze kameralnego budynku biurowego na warszawskich Włochach, w okolicach Al. Krakowskiej.poleca Agencja Nieruchomości Property Office (tel....

1 089,00 zł

Warszawa

Praga Południe: lokal biurowy 43,90 m2 do wynajęcia

Warszawa - Do wynajęcia: lokal biurowy o pow.43,90 m2 na 2 piętrze, w budynku biurowym na Pradze Południe, w okolicach ulic: Ostrobramskiej i Kinowej.poleca Agencja Nieruchomości Property Office (tel....

3 197,00 zł

Warszawa

Praga Południe: lokal biurowy 22,90 m2 do wynajęcia

Warszawa - Do wynajęcia: 1-pokojowy lokal biurowy 22,90 m2 na 4 piętrze, w budynku biurowym na warszawskiej Pradze Południe, w okolicach ulic: Ostrobramskiej i Kinowej.poleca Agencja Nieruchomości Pro...

1 667,00 zł

Warszawa

Mokotów: lokal biurowy 23,40m2 na wynajem

Warszawa - Do wynajęcia: lokal biurowy o pow. 23,40 m2 na 4 piętrze budynku biurowego na warszawskim Mokotowie, w okolicach ulic: Postępu i Wynalazek.poleca Agencja Nieruchomości Property Office (tel....

909,00 zł

Warszawa

Mokotów: lokal biurowy 16,3,22 m2 na wynajem

Warszawa - Do wynajęcia lokal biurowy o pow. 163,22m2 na 5 piętrze budynku biurowego na warszawskim Mokotowie, w okolicach ulic: Postępu i Wynalazek.poleca Agencja Nieruchomości Property Office (tel. ...

6 341,00 zł

Warszawa

Warszawa Włochy: lokal usługowo-handlowy 36,50 m2 do wynajęcia

Warszawa - Do wynajęcia: lokal usługowo-biurowy o pow.36,50 m2 na warszawskich Włochach, w okolicach lotniska Okęcie i Al. Krakowskiejpoleca Agencja Nieruchomości Property Office (tel. 731-321-117, ma...

620,00 zł

Warszawa

Mokotów: lokal na usługi medyczne na wynajem

Warszawa - Do wynajęcia: powierzchnia 815 m2 w budynku wolnostojącym na warszawskim Mokotowie, w okolicach ulic: Postępu i Wynalazek.poleca Agencja Nieruchomości Property Office (tel. 731-321-117, mai...

48 000,00 zł

Warszawa

Mokotów: lokal biurowy 39,55 m2 na wynajem

Warszawa - Do wynajęcia lokal biurowy o pow. 39,55 m2 na 1 piętrze budynku biurowego na warszawskim Mokotowie, w okolicach ulic: Postępu i Wynalazek.poleca Agencja Nieruchomości Property Office (tel. ...

1 536,00 zł

Warszawa

Mokotów: lokal biurowy 65,17 m2 na wynajem

Warszawa - Do wynajęcia lokal biurowy o pow. 65,17 m2 na 3 piętrze budynku biurowego na warszawskim Mokotowie, w okolicach ulic: Postępu i Wynalazek.poleca Agencja Nieruchomości Property Office (tel. ...

2 404,00 zł

Warszawa

Mokotów: lokal biurowy 38,84 m2 na wynajem

Warszawa - Do wynajęcia lokal biurowy o pow. 38,84 m2 na 1 piętrze budynku biurowego na warszawskim Mokotowie, w okolicach ulic: Postępu i Wynalazek.poleca Agencja Nieruchomości Property Office (tel. ...

1 508,00 zł

Warszawa

Mokotów:lokal biurowy 34,22 m2 na wynajem

Warszawa - Do wynajęcia: lokal biurowy o pow.34,22 m2 na 2 piętrze budynku biurowego na warszawskim Mokotowie, w okolicach ulic: Postępu i Wynalazek.poleca Agencja Nieruchomości Property Office (tel. ...

1 329,00 zł

Warszawa

Praga Północ: lokal biurowy 70,07 m2 na wynajem

Warszawa - Do wynajęcia: biuro o pow. 70,07 m2 na warszawskiej Pradze Północ, w budynku biurowym w okolicach Ronda Starzyńskiego,poleca Agencja Nieruchomości Property Office (tel. 731-321-117, mail: k...

4 765,00 zł

Warszawa

Facebook
Facebook
Sprzedawanko.pl – serwis ogłoszeń Firmowanko.pl – katalog firm i usług Pracowanko.pl – serwis pracy Ugościmy.pl – serwis noclegów Nporta.pl – katalog firm i usług