📢
🔥 Świętujemy 10.000 Opublikowanych Ogłoszeń 🔔 z tej Okazji mamy 10 Promowań za Free na SPRZEDAWANKO.PL🔥

Smart Apartament na Prądniku Białym blisko Zieleni

746 198,00 zł

{{ phone }}

{{ email }}

Dodane przez: braciasadurscy
braciasadurscy
Lokalizacja: Pękowicka
Telefon: {{ phone }}
Agent: Patrycja Rubinkiewicz
E-mail: patrycja@sadurscy.pl
Telefon kom.: +48 505-236-943
Udostępnij:

Opublikowano:  | Wygaśnie:

Wyświetleń: 1 | ID ogłoszenia: 78713

Numer oferty: BS2-MS-304032-32

Szczegóły

Typ: Sprzedaż
Rynek: Pierwotny
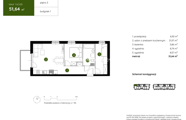
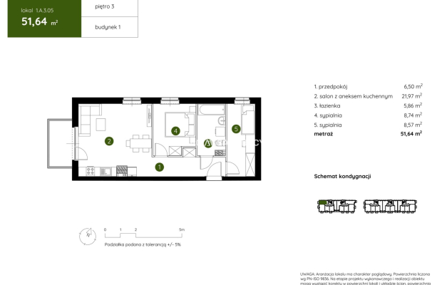
Pow. użytkowa: 51.64 m2
Cena za m2 (zł): 14450
Liczba pokoi: 3
Rodzaj zabudowy: blok
Piętro: 3
Liczba pięter: 3
Materiał budynku: pustak
Okna: PCV
Rok budowy: 2024
Ogrzewanie: C.O. miejskie
Stan wykończenia: deweloperski
Własność: Odrębna własność lokalu
Data aktualizacji: 2026-04-23

Opis


Z ogromną przyjemnością przedstawiamy Państwu ofertę mieszkania na sprzedaż w malowniczym rejonie Doliny Prądnika, na północy Krakowa, blisko granicy z gminą Zielonki. Nowoczesne osiedle otoczone jest rozległymi terenami zielonymi, co umożliwia codzienny kontakt z naturą i zapewnia wytchnienie od intensywnego miejskiego życia w centrum miasta.

Osiedle zostało zaprojektowane z myślą o rodzinach, parach oraz singlach, oferując szeroki wybór mieszkań o powierzchni od 26 do 73 m², w układach 1-, 2-, 3- i 4-pokojowych. Dbałość o komfort mieszkańców przejawia się w wysokiej jakości przestrzeni wspólnych, które sprzyjają nawiązywaniu sąsiedzkich relacji: skwer z ławeczkami, plac zabaw...

Budynki nowej inwestycji mające 3 i 4 kondygnacje, wyróżniają się kameralną architekturą, harmonizującą z okolicą. Przestronność obiektów gwarantuje mieszkańcom poczucie prywatności.

Zalety:


Home Management System to zaawansowana technologia inteligentnego domu, która umożliwia m.in. zarządzanie ogrzewaniem, oświetleniem i zaworami wody.
Pakiet antysmogowy w postaci filtrów montowanych w nawiewnikach okiennych dba o czystość powietrza we wnętrzach mieszkań.
Wysoki standard wykończenia części wspólnych obejmuje trwałe płytki gresowe, dekoracyjne panele imitujące drewno oraz energooszczędne oświetlenie LED.
Mieszkania na parterze posiadają tarasy z ogrodami o powierzchni do 123 m², natomiast mieszkania na wyższych kondygnacjach oferują przestronne balkony.
Termoizolacyjne łączniki balkonowe zapobiegają utracie ciepła, co przekłada się na oszczędności energetyczne.
Portfenetrowe okna zapewniają doskonałe doświetlenie wnętrz.
Na terenie osiedla zostanie zainstalowana stacja ładowania pojazdów elektrycznych, z myślą o mieszkańcach korzystających z ekologicznych środków transportu.
Zielone dachy budynków będą nie tylko estetyczne, ale również poprawią jakość powietrza i obniżą temperaturę otoczenia.


Prądnik biały to doskonale skomunikowana okolica, idealne miejsce dla osób szukających spokoju i bliskości natury, z jednoczesnym dostępem do nowoczesnych rozwiązań technologicznych.

Serdecznie zapraszam do kontaktu


--------------------------

::GRATIS | Nasza prowizja zawiera: koszt przedwstępnej notarialnej umowy sprzedaży nieruchomości z rynku wtórnego.
::GWARANCJA | Gwarancja zwrotu zadatku. Więcej informacji na sadurscy.pl/zwrot-zadatku/


Oferta wysłana z systemu Galactica Virgo

Może Cię zainteresować:

Komentarze (0)

Nic nie znaleziono

Tylko zalogowani użytkownicy mogą dodawać komentarze

Mapa

Formularz kontaktowy

This site is protected by reCAPTCHA and the Google Privacy Policy and Terms of Service apply.

Podobne ogłoszenia

Oferta PREMIUM-centrum-miejsce postojowe

Małgorzata Biskup 660244448Na sprzedaż tylko w naszym biurze!Przestronny apartament który powstał z połączenia dwóch mieszkań. Wykończony z materiałów o najwyższej jakości ze szczególną dbałością o ka...

2 750 000,00 zł

Bydgoszcz

Przestronny dom w cichej okolicy!

"Nieruchomości Apartament"Izabella Paprocka570 097 070Oferta dostępna tylko w naszym biurze!Do sprzedania przestronny dom w zabudowie bliźniaczej w spokojnej okolicy Wołowa! Dom z roku 1983 posadowion...

749 000,00 zł

Dolnośląskie

Wola: lokal biurowy 14,01 m2 na wynajem

Warszawa - Do wynajęcia: lokal biurowy o pow.14,01m2 w budynku biurowym na warszawskiej Woli, w okolicach ul. Górczewskiej i stacji metra Ks. Janusza , poleca Agencja Nieruchomości Property Office (te...

840,00 zł

Warszawa

Śródmieście: lokal biurowy 27,01m2 na wynajem

Warszawa - Do wynajęcia lokal biurowy o pow. 27,01 m2 na 5 piętrze budynku biurowego na warszawskim Śródmieściu, w okolicach ul. Wilczej.poleca Agencja Nieruchomości Property Office (tel. 731-321-117,...

1 755,00 zł

Warszawa

Śródmieście: lokal biurowy na wynajem

Warszawa - Do wynajęcia lokal biurowy o pow. 19 m2 na 6 piętrze budynku biurowego na warszawskim Śródmieściu, w okolicach ul. Wilczej.poleca Agencja Nieruchomości Property Office (tel. 731-321-117, ma...

1 235,00 zł

Warszawa

Mokotów: przychodnia lekarska 176,20m2 na wynajem

Warszawa - Do wynajęcia: lokal na usługi medyczne, pow. 176,20 m2 na parterze w budynku biurowym na warszawskim Mokotowie, w okolicach ul. Rzymowskiego,poleca Agencja Nieruchomości Property Office (te...

17 620,00 zł

Warszawa

Dąbie ul. Widok| tramwaj | 23m2 za 2200 zł

Kawalerka 23 m² | 9. piętro | Dąbie | okolice al. Pokoju Do wynajęcia mieszkanie o powierzchni użytkowej 23 m², położone na 9. piętrze budynku w Krakowie, w rejonie Dąbia, w pobliżu al. ...

2 200,00 zł

Kraków

Kawalerka 23 m² | 9. piętro | Dąbie | okolice al. Pokoju Na sprzedaż mieszkanie o powierzchni użytkowej 23 m², położone na

Kawalerka 23 m² | 9. piętro | Dąbie | okolice al. Pokoju Na sprzedaż mieszkanie o powierzchni użytkowej 23 m², położone na 9. piętrze budynku w Krakowie, w rejonie Dąbia, w pobliżu al. Pokoju ...

399 000,00 zł

Kraków

Facebook
Facebook
Sprzedawanko.pl – serwis ogłoszeń Firmowanko.pl – katalog firm i usług Pracowanko.pl – serwis pracy Ugościmy.pl – serwis noclegów Nporta.pl – katalog firm i usług