📢
🔥 Świętujemy 10.000 Opublikowanych Ogłoszeń 🔔 z tej Okazji mamy 10 Promowań za Free na SPRZEDAWANKO.PL🔥

Smart Apartament na Prądniku Białym blisko Zieleni

576 007,00 zł

{{ phone }}

{{ email }}

Dodane przez: braciasadurscy
braciasadurscy
Lokalizacja: Pękowicka
Telefon: {{ phone }}
Agent: Patrycja Rubinkiewicz
E-mail: patrycja@sadurscy.pl
Telefon kom.: +48 505-236-943
Udostępnij:

Opublikowano:  | Wygaśnie:

Wyświetleń: 2 | ID ogłoszenia: 78433

Numer oferty: BS2-MS-304200-31

Szczegóły

Typ: Sprzedaż
Rynek: Pierwotny
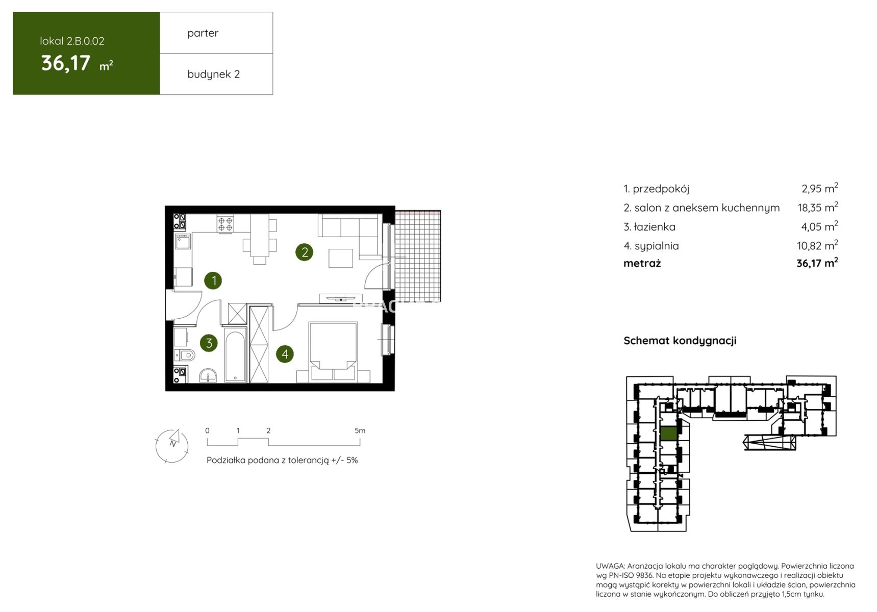
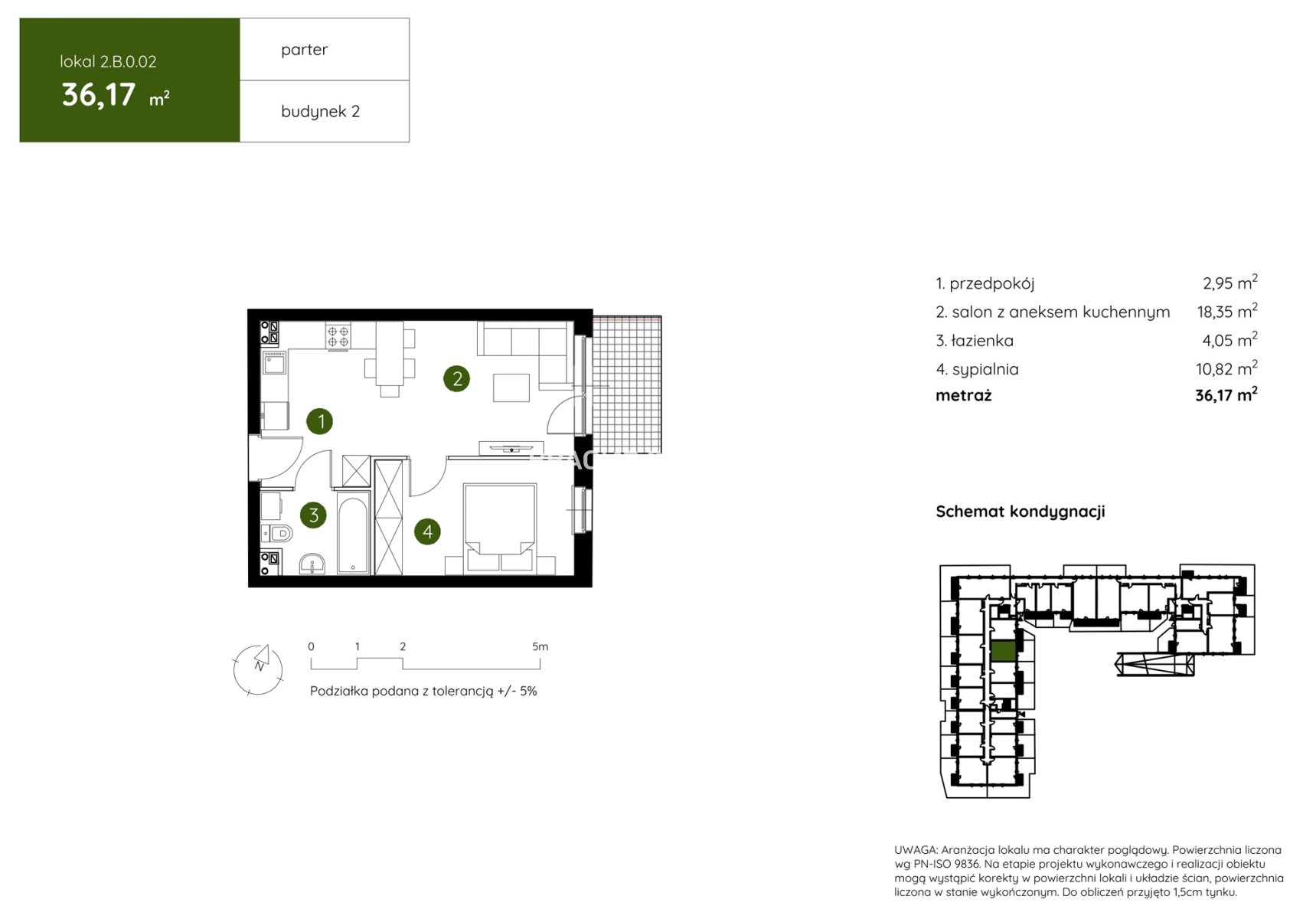
Pow. użytkowa: 36.17 m2
Cena za m2 (zł): 15925
Liczba pokoi: 2
Liczba sypialni: 4
Rodzaj zabudowy: blok
Piętro: 0
Liczba pięter: 3
Materiał budynku: pustak
Okna: PCV
Rok budowy: 2024
Ogrzewanie: C.O. miejskie
Stan wykończenia: deweloperski
Własność: Odrębna własność lokalu
Data aktualizacji: 2026-04-23

Opis


Z ogromną przyjemnością przedstawiamy Państwu ofertę mieszkania na sprzedaż w malowniczym rejonie Doliny Prądnika, na północy Krakowa, blisko granicy z gminą Zielonki. Nowoczesne osiedle otoczone jest rozległymi terenami zielonymi, co umożliwia codzienny kontakt z naturą i zapewnia wytchnienie od intensywnego miejskiego życia w centrum miasta.

Osiedle zostało zaprojektowane z myślą o rodzinach, parach oraz singlach, oferując szeroki wybór mieszkań o powierzchni od 26 do 73 m², w układach 1-, 2-, 3- i 4-pokojowych. Dbałość o komfort mieszkańców przejawia się w wysokiej jakości przestrzeni wspólnych, które sprzyjają nawiązywaniu sąsiedzkich relacji: skwer z ławeczkami, plac zabaw...

Budynki nowej inwestycji mające 3 i 4 kondygnacje, wyróżniają się kameralną architekturą, harmonizującą z okolicą. Przestronność obiektów gwarantuje mieszkańcom poczucie prywatności.

Zalety:


Home Management System to zaawansowana technologia inteligentnego domu, która umożliwia m.in. zarządzanie ogrzewaniem, oświetleniem i zaworami wody.
Pakiet antysmogowy w postaci filtrów montowanych w nawiewnikach okiennych dba o czystość powietrza we wnętrzach mieszkań.
Wysoki standard wykończenia części wspólnych obejmuje trwałe płytki gresowe, dekoracyjne panele imitujące drewno oraz energooszczędne oświetlenie LED.
Mieszkania na parterze posiadają tarasy z ogrodami o powierzchni do 123 m², natomiast mieszkania na wyższych kondygnacjach oferują przestronne balkony.
Termoizolacyjne łączniki balkonowe zapobiegają utracie ciepła, co przekłada się na oszczędności energetyczne.
Portfenetrowe okna zapewniają doskonałe doświetlenie wnętrz.
Na terenie osiedla zostanie zainstalowana stacja ładowania pojazdów elektrycznych, z myślą o mieszkańcach korzystających z ekologicznych środków transportu.
Zielone dachy budynków będą nie tylko estetyczne, ale również poprawią jakość powietrza i obniżą temperaturę otoczenia.


Prądnik biały to doskonale skomunikowana okolica, idealne miejsce dla osób szukających spokoju i bliskości natury, z jednoczesnym dostępem do nowoczesnych rozwiązań technologicznych.

Serdecznie zapraszam do kontaktu


--------------------------

::GRATIS | Nasza prowizja zawiera: koszt przedwstępnej notarialnej umowy sprzedaży nieruchomości z rynku wtórnego.
::GWARANCJA | Gwarancja zwrotu zadatku. Więcej informacji na sadurscy.pl/zwrot-zadatku/


Oferta wysłana z systemu Galactica Virgo

Może Cię zainteresować:

Komentarze (0)

Nic nie znaleziono

Tylko zalogowani użytkownicy mogą dodawać komentarze

Mapa

Formularz kontaktowy

This site is protected by reCAPTCHA and the Google Privacy Policy and Terms of Service apply.

Podobne ogłoszenia

Na sprzedaż Dom / Bogucin 142 m2

Dom Jednorodzinny w Bogucinie gm. Fabianki Arkadia Nieruchomości prezentuje na sprzedaż przestronny, jednorodzinny, dom o powierzchni użytkowej wynoszącej 117,70 m² plus 21,5 m ² garaż , z...

949 000,00 zł

Bogucin

Działki blisko natury! Wiśniewa koło Sępólna!

Działka budowlana w Wiśniewie, koło Sępólna Krajeńskiego! Warunki zabudowy! Cicha i spokojna okolica! Oferujemy na sprzedaż działkę budowlaną o powierzchni 1419 m², położona w miejscowości Wiśniewa, z...

105 000,00 zł

Kujawsko-pomorskie

Działki budowlane w Wiśniewie w okolicy Sępólna!

Działka budowlana w Wiśniewie, koło Sępólna Krajeńskiego! Warunki zabudowy! Cicha i spokojna okolica! Na sprzedaż działka budowlana o powierzchni 985 m², położona w urokliwej miejscowości Wiśniewa, w ...

75 000,00 zł

Kujawsko-pomorskie

Tylko u Nas! Dom 1,5 km od jeziora!

Nieruchomości Apartament przedstawiają dom w zabudowie bliźniaczej o powierzchni całkowitej 79,42 m², położony na zadbanej działce o powierzchni 1508 m² w miejscowości Przybrda. To spokojna lokalizac...

325 000,00 zł

Zachodniopomorskie

Wola:lokal biurowy 188 m2 na wynajem

Warszawa - Do wynajęcia: lokal biurowy o pow. 188 m2 na 4 piętrze budynku biurowego na warszawskiej Woli, w okolicach ul. Kasprzaka i Ronda Daszyńskiego.poleca Agencja Nieruchomości Property Office (t...

2 679,00 zł

Warszawa

Mokotów: lokal biurowy 1087 m2 na wynajem

Warszawa - Do wynajęcia: moduł biurowy o pow. 1087 m2na 7 piętrze budynku biurowego na warszawskim Mokotowie, w okolicach ul. Marynarskiej.poleca Agencja Nieruchomości Property Office (tel. 731-321-11...

14 131,00 zł

Warszawa

Wola: lokal biurowy 844 m2 na wynajem

Warszawa - Do wynajęcia: lokal biurowy o pow.844 m2 na 4 piętrze budynku biurowego na warszawskiej Woli, w okolicach ul. Kasprzaka i Ronda Daszyńskiego.poleca Agencja Nieruchomości Property Office (te...

12 027,00 zł

Warszawa

Wola: lokal biurowy 387 m2 na wynajem

Warszawa - Do wynajęcia: lokal biurowy o pow.387 m2 na 7 piętrze budynku biurowego na warszawskiej Woli, w okolicach ul. Kasprzaka i Ronda Daszyńskiego.poleca Agencja Nieruchomości Property Office (te...

5 514,00 zł

Warszawa

Facebook
Facebook
Sprzedawanko.pl – serwis ogłoszeń Firmowanko.pl – katalog firm i usług Pracowanko.pl – serwis pracy Ugościmy.pl – serwis noclegów Nporta.pl – katalog firm i usług