📢
🔥 Świętujemy 10.000 Opublikowanych Ogłoszeń 🔔 z tej Okazji mamy 10 Promowań za Free na SPRZEDAWANKO.PL🔥

Osiedle Złocień - nowe osiedle mieszkaniowe

589 000,00 zł

{{ phone }}

{{ email }}

Dodane przez: braciasadurscy
braciasadurscy
Lokalizacja: Agatowa
Telefon: {{ phone }}
Agent: Marek Popiela
E-mail: marek@sadurscy.pl
Telefon kom.: +48 518-967-677
Udostępnij:

Opublikowano:  | Wygaśnie:

Wyświetleń: 3 | ID ogłoszenia: 78330

Numer oferty: BS2-MS-310837-137

Szczegóły

Typ: Sprzedaż
Rynek: Pierwotny
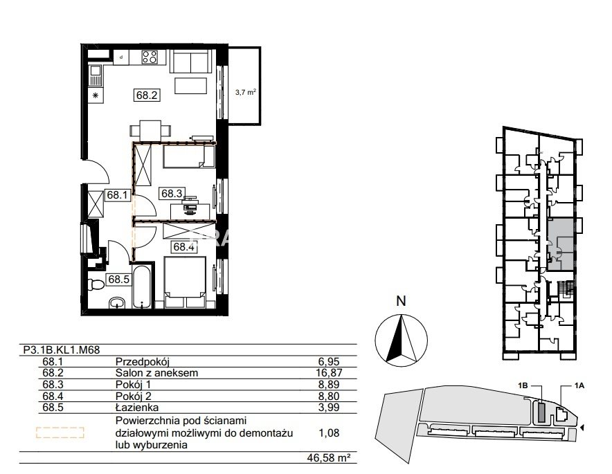
Pow. użytkowa: 45.73 m2
Cena za m2 (zł): 12879.95
Liczba pokoi: 3
Liczba sypialni: 1
Rodzaj zabudowy: budynek wielorodzinny
Piętro: 3
Liczba pięter: 4
Materiał budynku: tradycyjna
Okna: PCV
Rok budowy: 2023
Ogrzewanie: C.O. miejskie
Stan wykończenia: deweloperski
Własność: Własność
Data aktualizacji: 2026-04-23

Opis


ZŁOCIEŃ - NOWOCZESNE OSIEDLE MIESZKANIOWE.

Prezentujemy nowoczesne osiedle zlokalizowane w południowo-wschodniej części miasta.
W III etapie powstanie czteropiętrowy budynek , w którym znajdują się mieszkania w przedziale od 25 do 68 m2 .

Podziemna część budynku przeznaczona jest na garaż z miejscami parkingowymi.

Mieszkania na parterach będą mieć ogródki , na wyższych piętrach balkony . Mieszkania na najwyższych piętrach będą posiadać duże tarasy na dachu.

Inwestycja budowana w tradycyjnej technologii. Mieszkania sprzedawane w stanie deweloperskim (tynki gipsowe, wylewki, instalacje).

Wokół malownicza okolica , zielona przestrzeń, a przy tym dobra komunikacja miejska. Atrakcyjne połączenie z obwodnicą S7 i A4. Niedaleko inwestycji realizowany będzie przystanek kolei aglomeracyjnej, dzięki któremu z łatwością można dostać się do centrum miasta. W okolicy znajdują się liczne sklepy spożywcze oraz inne punkty handlowo-usługowe.

Termin zakończenia budowy zaplanowano na II kwartał 2024 r.

Zapraszam do kontaktu:

Marek Popiela +48 518 967 677
marek@sadurscy.pl

--------------------------

::GRATIS | Nasza prowizja zawiera: koszt przedwstępnej notarialnej umowy sprzedaży nieruchomości z rynku wtórnego.
::GWARANCJA | Gwarancja zwrotu zadatku. Więcej informacji na sadurscy.pl/zwrot-zadatku/


Oferta wysłana z systemu Galactica Virgo

Może Cię zainteresować:

Komentarze (0)

Nic nie znaleziono

Tylko zalogowani użytkownicy mogą dodawać komentarze

Mapa

Formularz kontaktowy

This site is protected by reCAPTCHA and the Google Privacy Policy and Terms of Service apply.

Podobne ogłoszenia

Działka z WZ ze ścianą lasu

Wyjątkowa działka ze ścianą lasu - 1150 mkw | Warunki zabudowyNa sprzedaż atrakcyjna działka o powierzchni 1150 mkw, położona w spokojnej i zielonej okolicy, bezpośrednio przy ścianie lasu. To idealna...

97 000,00 zł

Kujawsko-pomorskie

Dom z dużą działką budowlaną k. Niepołomic

DOM Z DUŻĄ DZIAŁKĄ BUDOWLANĄ | 64 ARY | MOŻLIWOŚĆ PODZIAŁU I ZABUDOWY | DROGA DOJAZDOWA Z przyjemnością prezentujemy atrakcyjną nieruchomość inwestycyjną - dom wolnostojący o powierz...

1 508 000,00 zł

Grodkowice

Budynek z 6 niezależnymi apartamentami.

Willa Dębowa - komfort, natura i gotowy biznes w sercu Niepołomic Wyjątkowa nieruchomość inwestycyjna położona w jednej z najbardziej atrakcyjnych lokalizacji Małopolski. Willa Dę...

2 500 000,00 zł

Niepołomice

Dom z ogrodem i garażem w cenie mieszkania.

Dom z potencjałem w zielonym Bieżanowie - przestrzeń, możliwości, inwestycja Szukasz miejsca, które możesz dopasować do własnych potrzeb lub wykorzystać jako pewną inwestycję? Ta ...

1 148 000,00 zł

Kraków

Dom nad jeziorem z dużą działką widokową.

Drewniany dom całoroczny z widokiem na Jezioro Mucharskie Zapraszamy do wyjątkowego miejsca, w którym natura spotyka się z komfortem. Oferujemy do sprzedaży drewniany dom położony w jed...

1 500 000,00 zł

Łękawica

* Rezerwacja Wyjątkowa działka z WZ Kołaczkowo

działka | Kołaczkowo | Stanisławka | Szubin | Bydgoszcz | 920m2 | warunki zabudowy | blisko trasa S5Na sprzedaż: Ustawna, ogrodzona z trzech stron działka z WZ (920 m2) - Kołaczkowo, gmina SzubinPrzed...

95 000,00 zł

Kujawsko-pomorskie

*Zabytkowy Młyn na Hotel/SPA - Wenecja k. Biskupin

Zabytkowy młyn z dużą działką | Wenecja k. Biskupina, woj. kujawsko-pomorskie | Serce PałukDziałka: 5 400 mkw | Powierzchnia całkowita budynku: 761 mkw | Użytkowa: 590 mkwCena: 2.599.000 (korekta rynk...

2 599 000,00 zł

Kujawsko-pomorskie

2 pokoje 44m2 Ul.Dubois

Większość atrakcyjnych nieruchomości w tej okolicy znika zanim trafia na portale. Dlatego pracujemy również na ofertach dostępnych tylko dla naszych klientów.Przedstawiam ofertę ładnego mieszkania 2-p...

489 000,00 zł

Białystok

Bielany: magazyn 75,15m2 do wynajęcia

Do wynajęcia: magazyn o pow.75,15 m2 na parterze w hali magazynowo- biurowej na warszawskich Bielanach, w okolicach ul. Sokratesa, poleca Property Office (tel. 731-321-117, mail: katarzyna@propertyoff...

3 006,00 zł

Warszawa

Bielany: magazyn 54,14m2 do wynajęcia

Warszawa - Do wynajęcia: magazyn o pow.54,14 m2 na parterze w hali magazynowo- biurowej na warszawskich Bielanach, w okolicach ul. Sokratesa, poleca Property Office (tel. 731-321-117, mail: katarzyna@...

2 436,00 zł

Warszawa

Bielany: magazyn 38,85 m2 do wynajęcia

Warszawa - Do wynajęcia: magazyn o pow.26,83 m2 znajdujący się na parterze w hali magazynowo- biurowej na warszawskich Bielanach, w okolicach ul. Sokratesa, poleca Agencja Nieruchomości Property Offic...

1 709,00 zł

Warszawa

Bielany: magazyn 320m2 do wynajęcia

Warszawa - Do wynajęcia: Zewnętrzny magazyn o pow.320 m2 na parterze w hali magazynowo- biurowej na warszawskich Bielanach, w okolicach ul. Sokratesa, poleca Agencja Nieruchomości Property Office (tel...

10 240,00 zł

Warszawa

Facebook
Facebook
Sprzedawanko.pl – serwis ogłoszeń Firmowanko.pl – katalog firm i usług Pracowanko.pl – serwis pracy Ugościmy.pl – serwis noclegów Nporta.pl – katalog firm i usług