📢
🔥 Świętujemy 10.000 Opublikowanych Ogłoszeń 🔔 z tej Okazji mamy 10 Promowań za Free na SPRZEDAWANKO.PL🔥

Smart Apartament na Prądniku Białym blisko Zieleni

984 820,00 zł

{{ phone }}

{{ email }}

Dodane przez: braciasadurscy
braciasadurscy
Lokalizacja: Pękowicka
Telefon: {{ phone }}
Agent: Patrycja Rubinkiewicz
E-mail: patrycja@sadurscy.pl
Telefon kom.: +48 505-236-943
Udostępnij:

Opublikowano:  | Wygaśnie:

Wyświetleń: 2 | ID ogłoszenia: 78270

Numer oferty: BS2-MS-304348-31

Szczegóły

Typ: Sprzedaż
Rynek: Pierwotny
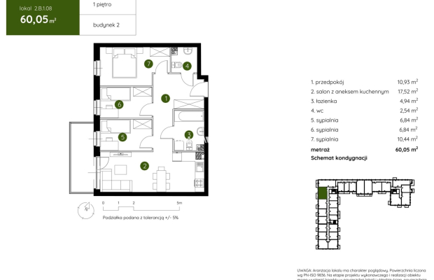
Pow. użytkowa: 60.05 m2
Cena za m2 (zł): 16400
Liczba pokoi: 4
Rodzaj zabudowy: blok
Piętro: 1
Liczba pięter: 3
Materiał budynku: pustak
Okna: PCV
Rok budowy: 2024
Ogrzewanie: C.O. miejskie
Stan wykończenia: deweloperski
Własność: Odrębna własność lokalu
Data aktualizacji: 2026-04-23

Opis


Z ogromną przyjemnością przedstawiamy Państwu ofertę mieszkania na sprzedaż w malowniczym rejonie Doliny Prądnika, na północy Krakowa, blisko granicy z gminą Zielonki. Nowoczesne osiedle otoczone jest rozległymi terenami zielonymi, co umożliwia codzienny kontakt z naturą i zapewnia wytchnienie od intensywnego miejskiego życia w centrum miasta.

Osiedle zostało zaprojektowane z myślą o rodzinach, parach oraz singlach, oferując szeroki wybór mieszkań o powierzchni od 26 do 73 m², w układach 1-, 2-, 3- i 4-pokojowych. Dbałość o komfort mieszkańców przejawia się w wysokiej jakości przestrzeni wspólnych, które sprzyjają nawiązywaniu sąsiedzkich relacji: skwer z ławeczkami, plac zabaw...

Budynki nowej inwestycji mające 3 i 4 kondygnacje, wyróżniają się kameralną architekturą, harmonizującą z okolicą. Przestronność obiektów gwarantuje mieszkańcom poczucie prywatności.

Zalety:


Home Management System to zaawansowana technologia inteligentnego domu, która umożliwia m.in. zarządzanie ogrzewaniem, oświetleniem i zaworami wody.
Pakiet antysmogowy w postaci filtrów montowanych w nawiewnikach okiennych dba o czystość powietrza we wnętrzach mieszkań.
Wysoki standard wykończenia części wspólnych obejmuje trwałe płytki gresowe, dekoracyjne panele imitujące drewno oraz energooszczędne oświetlenie LED.
Mieszkania na parterze posiadają tarasy z ogrodami o powierzchni do 123 m², natomiast mieszkania na wyższych kondygnacjach oferują przestronne balkony.
Termoizolacyjne łączniki balkonowe zapobiegają utracie ciepła, co przekłada się na oszczędności energetyczne.
Portfenetrowe okna zapewniają doskonałe doświetlenie wnętrz.
Na terenie osiedla zostanie zainstalowana stacja ładowania pojazdów elektrycznych, z myślą o mieszkańcach korzystających z ekologicznych środków transportu.
Zielone dachy budynków będą nie tylko estetyczne, ale również poprawią jakość powietrza i obniżą temperaturę otoczenia.


Prądnik biały to doskonale skomunikowana okolica, idealne miejsce dla osób szukających spokoju i bliskości natury, z jednoczesnym dostępem do nowoczesnych rozwiązań technologicznych.

Serdecznie zapraszam do kontaktu


--------------------------

::GRATIS | Nasza prowizja zawiera: koszt przedwstępnej notarialnej umowy sprzedaży nieruchomości z rynku wtórnego.
::GWARANCJA | Gwarancja zwrotu zadatku. Więcej informacji na sadurscy.pl/zwrot-zadatku/


Oferta wysłana z systemu Galactica Virgo

Może Cię zainteresować:

Komentarze (0)

Nic nie znaleziono

Tylko zalogowani użytkownicy mogą dodawać komentarze

Mapa

Formularz kontaktowy

This site is protected by reCAPTCHA and the Google Privacy Policy and Terms of Service apply.

Podobne ogłoszenia

Bałuty / Radogoszcz - do wynajęcia M2 ul. Zgierska

Do wynajęcia umeblowane mieszkanie o <b>pow. 30,6 m2</b> w wieżowcu przy <b>ul. Zgierskiej 240</b> z panoramicznym widokiem na miasto. (Bałuty os. Radogoszcz).Mieszkanie idealn...

1 350,00 zł

Łódź

Warszawa Praga Północ: biurko w coworkingu do wynajęcia

Warszawa - Do wynajęcia: biurko w coworkingu na warszawskiej Pradze Północ, w nowoczesnym biurowcu w okolicach ul. Białostockiej, poleca Agencja Nieruchomości Property Office (tel. 731-321-117, mail: ...

1 100,00 zł

Warszawa

Dom z dużą działką blisko lasu

Na sprzedaż dom jednorodzinny wolnostojący o powierzchni około 72 mkw., na działce o powierzchni 4300 mkw. Dom znajduje się we wsi Mięcierzyn, blisko Rogowa - 6km, w powiecie żnińskim. Ostatni remont...

380 000,00 zł

Kujawsko-pomorskie

Śródmieście: biuro serwisowane na wynajem

Warszawa - Do wynajęcia: biuro serwisowane dla 1 osoby na 6 piętrze nowoczesnym biurowca na warszawskim Śródmieściu ,w okolicach Dworca Gdańskiego,poleca Agencja Nieruchomości Property Office (tel. 73...

1 240,00 zł

Warszawa

Ochota: biuro serwisowane na wynajem

Warszawa - Do wynajęcia: umeblowane biuro dla 1-2 osób na warszawskiej Ochocie, na 13 piętrze nowoczesnego biurowca w okolicach ul. Szczęśliwickiej, poleca Agencja Nieruchomości Property Office (tel. ...

2 240,00 zł

Warszawa

Mieszkanie 2 pokoje balkon garaż na Osiedlu Leśnym

Przestronne 2-pokojowe mieszkanie z garażem i ogródkiem - Osiedle Leśne, BydgoszczNa sprzedaż komfortowe i jasne mieszkanie o powierzchni 49,6 m², położone na 1. piętrze w kameralnym, dwukondygnacyjny...

389 000,00 zł

Kujawsko-pomorskie

Mokotów: biuro wirtualne

biuro wirtualne do wynajęcia na Mokotowiew budynku biurowym w okolicach ul. Sobieskiego , poleca Property Office (tel. 731-321-117, mail: katarzyna@propertyoffice.pl)BEZ PROWIZJIBiuro wirtualne w 3 op...

585,00 zł

Warszawa

Szukasz mieszkania, które łączy nowoczesny design z doskonałą lokalizacją? To wyjątkowe, 2-pokojowe lokum o powierzchni 42 m²

Szukasz mieszkania, które łączy nowoczesny design z doskonałą lokalizacją? To wyjątkowe, 2-pokojowe lokum o powierzchni 42 m² na krakowskich Bieńczycach (Nowa Huta) jest idealną propozycją dla pa...

600 000,00 zł

Kraków

Facebook
Facebook
Sprzedawanko.pl – serwis ogłoszeń Firmowanko.pl – katalog firm i usług Pracowanko.pl – serwis pracy Ugościmy.pl – serwis noclegów Nporta.pl – katalog firm i usług