📢
🔥 Świętujemy 10.000 Opublikowanych Ogłoszeń 🔔 z tej Okazji mamy 10 Promowań za Free na SPRZEDAWANKO.PL🔥

Smart Apartament na Prądniku Białym blisko Zieleni

704 888,00 zł

{{ phone }}

{{ email }}

Dodane przez: braciasadurscy
braciasadurscy
Lokalizacja: Pękowicka
Telefon: {{ phone }}
Agent: Patrycja Rubinkiewicz
E-mail: patrycja@sadurscy.pl
Telefon kom.: +48 505-236-943
Udostępnij:

Opublikowano:  | Wygaśnie:

Wyświetleń: 2 | ID ogłoszenia: 78263

Numer oferty: BS2-MS-304358-31

Szczegóły

Typ: Sprzedaż
Rynek: Pierwotny
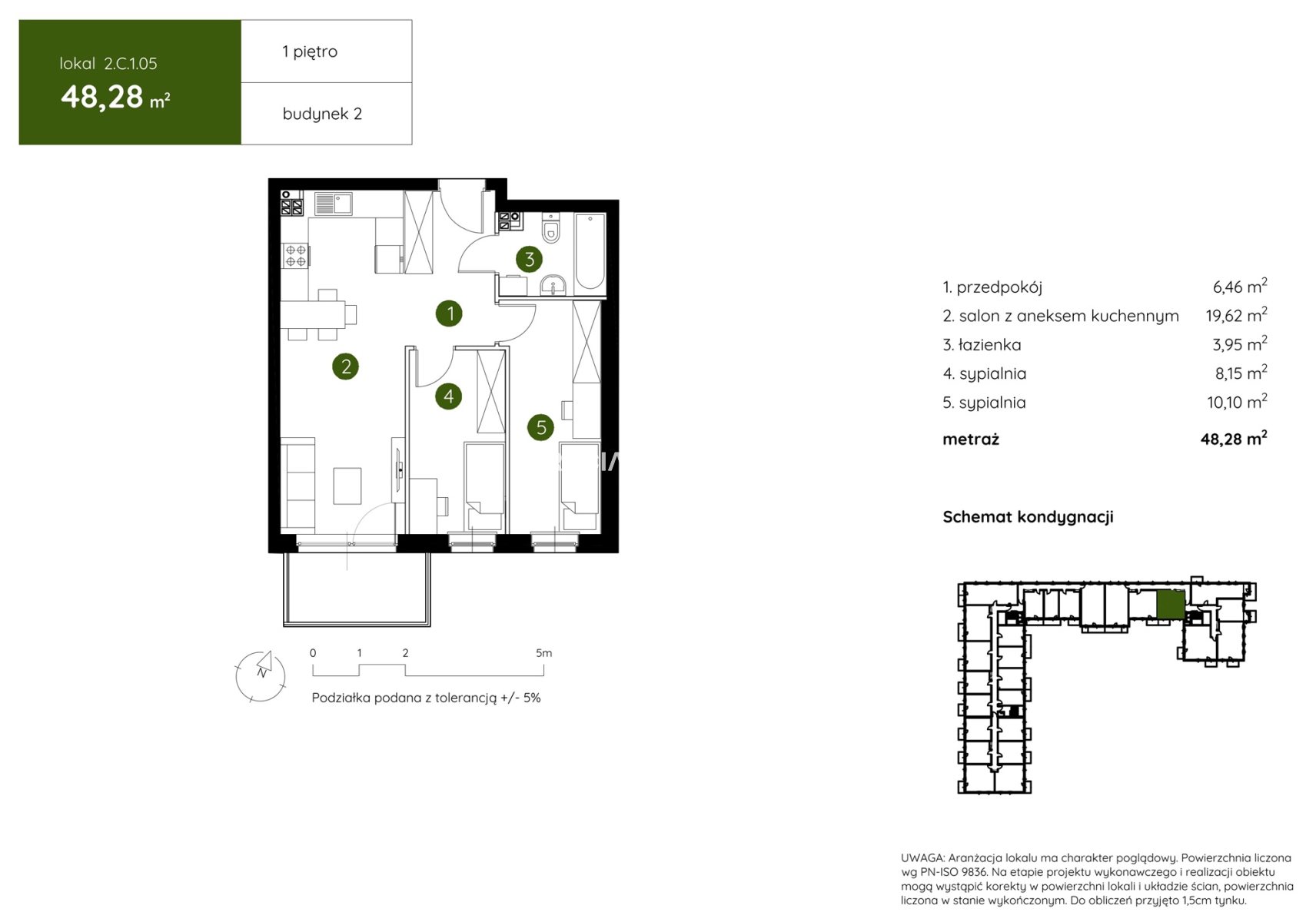
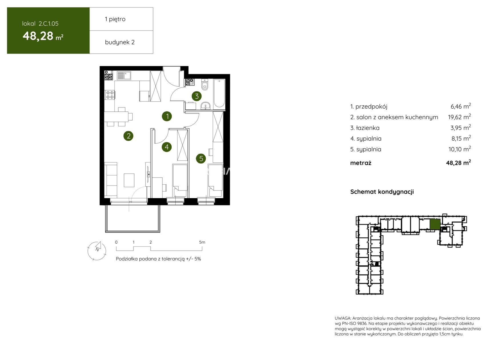
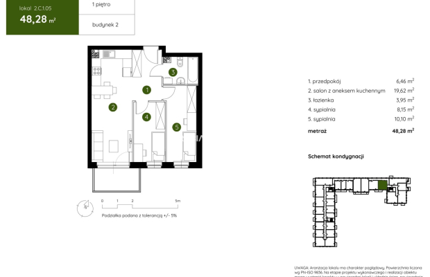
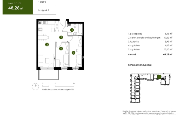
Pow. użytkowa: 48.28 m2
Cena za m2 (zł): 14600
Liczba pokoi: 3
Rodzaj zabudowy: blok
Piętro: 1
Liczba pięter: 3
Materiał budynku: pustak
Okna: PCV
Rok budowy: 2024
Ogrzewanie: C.O. miejskie
Stan wykończenia: deweloperski
Własność: Odrębna własność lokalu
Data aktualizacji: 2026-04-23

Opis


Z ogromną przyjemnością przedstawiamy Państwu ofertę mieszkania na sprzedaż w malowniczym rejonie Doliny Prądnika, na północy Krakowa, blisko granicy z gminą Zielonki. Nowoczesne osiedle otoczone jest rozległymi terenami zielonymi, co umożliwia codzienny kontakt z naturą i zapewnia wytchnienie od intensywnego miejskiego życia w centrum miasta.

Osiedle zostało zaprojektowane z myślą o rodzinach, parach oraz singlach, oferując szeroki wybór mieszkań o powierzchni od 26 do 73 m², w układach 1-, 2-, 3- i 4-pokojowych. Dbałość o komfort mieszkańców przejawia się w wysokiej jakości przestrzeni wspólnych, które sprzyjają nawiązywaniu sąsiedzkich relacji: skwer z ławeczkami, plac zabaw...

Budynki nowej inwestycji mające 3 i 4 kondygnacje, wyróżniają się kameralną architekturą, harmonizującą z okolicą. Przestronność obiektów gwarantuje mieszkańcom poczucie prywatności.

Zalety:


Home Management System to zaawansowana technologia inteligentnego domu, która umożliwia m.in. zarządzanie ogrzewaniem, oświetleniem i zaworami wody.
Pakiet antysmogowy w postaci filtrów montowanych w nawiewnikach okiennych dba o czystość powietrza we wnętrzach mieszkań.
Wysoki standard wykończenia części wspólnych obejmuje trwałe płytki gresowe, dekoracyjne panele imitujące drewno oraz energooszczędne oświetlenie LED.
Mieszkania na parterze posiadają tarasy z ogrodami o powierzchni do 123 m², natomiast mieszkania na wyższych kondygnacjach oferują przestronne balkony.
Termoizolacyjne łączniki balkonowe zapobiegają utracie ciepła, co przekłada się na oszczędności energetyczne.
Portfenetrowe okna zapewniają doskonałe doświetlenie wnętrz.
Na terenie osiedla zostanie zainstalowana stacja ładowania pojazdów elektrycznych, z myślą o mieszkańcach korzystających z ekologicznych środków transportu.
Zielone dachy budynków będą nie tylko estetyczne, ale również poprawią jakość powietrza i obniżą temperaturę otoczenia.


Prądnik biały to doskonale skomunikowana okolica, idealne miejsce dla osób szukających spokoju i bliskości natury, z jednoczesnym dostępem do nowoczesnych rozwiązań technologicznych.

Serdecznie zapraszam do kontaktu


--------------------------

::GRATIS | Nasza prowizja zawiera: koszt przedwstępnej notarialnej umowy sprzedaży nieruchomości z rynku wtórnego.
::GWARANCJA | Gwarancja zwrotu zadatku. Więcej informacji na sadurscy.pl/zwrot-zadatku/


Oferta wysłana z systemu Galactica Virgo

Może Cię zainteresować:

Komentarze (0)

Nic nie znaleziono

Tylko zalogowani użytkownicy mogą dodawać komentarze

Mapa

Formularz kontaktowy

This site is protected by reCAPTCHA and the Google Privacy Policy and Terms of Service apply.

Podobne ogłoszenia

Na sprzedaż dom ul.Rzeczna w Jastrzębiu-Zdroju

Dom jednorodzinny - stan surowy zamknięty - 115,91 m² + duża działka 17,87 ara - Moszczenica dzielnica Jastrzębia-Zdroju (bez szkód górniczych!) Na sprzedaż dom jednorodzinny w stanie surowym...

595 000,00 zł

Jastrzębie-Zdrój

Koniecpol | Grunt rolny na sprzedaż

Biuro Nieruchomości DYMOWSKI. zaprasza do zapoznania się z ofertą sprzedaży gruntów rolnych położonych w miejscowości Zagacie, gmina Koniecpol. Nieruchomość stanowi doskonałą propozycję dla rolników o...

189 000,00 zł

Zagacie

Długi Kąt | Dom z klimatem

Biuro Nieruchomości DYMOWSKI. zaprasza do zapoznania się z ofertą sprzedaży domu wolnostojącego położonego w miejscowości Długi Kąt, gmina Wręczyca Wielka.Działka nr ewid. 200/2, obręb Długi Kąt To wy...

399 000,00 zł

Długi Kąt

Dom wolnostojący/Chocianowiec/Dolnośląskie

Nieruchomości Apartament"Jolanta Żelichowska797 231 625 Dom wolnostojący z dużą działką - idealny do własnej aranżacji!!!Na sprzedaż dom wolnostojący o powierzchni użytkowej 185 m2, poł...

650 000,00 zł

Dolnośląskie

Teren inwestycyjny | zjazd z S8 | 9 459 m²

Teren inwestycyjny przy S8, 9 459 m², bezpośredni zjazd, Studzianki A Na sprzedaż teren inwestycyjny o łącznej powierzchni 9 459 m², położony w miejscowości Studzianki, w gminie Wolbórz, powia...

2 200 000,00 zł

Piotrkowski

Mieszkanie po remoncie/bezczynszowe/Stare Miasto

Biuro Nieruchomości Bracia Sadurscy ma przyjemność zaprezentować Państwu, bezczynszowe mieszkanie po remoncie w ścisłym centrum Krakowa w odnowionej kamienicy . Prezentowane mieszkanie je...

2 800,00 zł

Kraków

2-Pokojowe mieszkanie na terenie zamkniętym!

Na sprzedaż mieszkanie w centrum miasta - idealne do aranżacji według własnych potrzeb Oferujemy na sprzedaż mieszkanie o powierzchni 52,64 m² , położone w atrakcyjnej lokalizacji - w samy...

310 000,00 zł

Włocławek

2-Pokojowe mieszkanie na terenie zamkniętym!

Na sprzedaż mieszkanie w centrum miasta - idealne do aranżacji według własnych potrzeb Oferujemy na sprzedaż mieszkanie o powierzchni 52,74 m² , położone w atrakcyjnej lokalizacji - w samy...

310 000,00 zł

Włocławek

Facebook
Facebook
Sprzedawanko.pl – serwis ogłoszeń Firmowanko.pl – katalog firm i usług Pracowanko.pl – serwis pracy Ugościmy.pl – serwis noclegów Nporta.pl – katalog firm i usług