📢
🔥 Świętujemy 10.000 Opublikowanych Ogłoszeń 🔔 z tej Okazji mamy 10 Promowań za Free na SPRZEDAWANKO.PL🔥

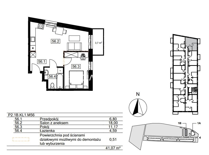
Osiedle Złocień - nowe osiedle mieszkaniowe

589 000,00 zł

{{ phone }}

{{ email }}

Dodane przez: braciasadurscy
braciasadurscy
Lokalizacja: Agatowa
Telefon: {{ phone }}
Agent: Marek Popiela
E-mail: marek@sadurscy.pl
Telefon kom.: +48 518-967-677
Udostępnij:

Opublikowano:  | Wygaśnie:

Wyświetleń: 1 | ID ogłoszenia: 78216

Numer oferty: BS2-MS-310832-137

Szczegóły

Typ: Sprzedaż
Rynek: Pierwotny
Pow. użytkowa: 40.39 m2
Cena za m2 (zł): 14582.82
Liczba pokoi: 2
Liczba sypialni: 1
Rodzaj zabudowy: budynek wielorodzinny
Piętro: 2
Liczba pięter: 4
Materiał budynku: tradycyjna
Okna: PCV
Rok budowy: 2023
Ogrzewanie: C.O. miejskie
Stan wykończenia: deweloperski
Własność: Własność
Data aktualizacji: 2026-04-23

Opis


ZŁOCIEŃ - NOWOCZESNE OSIEDLE MIESZKANIOWE.

Prezentujemy nowoczesne osiedle zlokalizowane w południowo-wschodniej części miasta.
W III etapie powstanie czteropiętrowy budynek , w którym znajdują się mieszkania w przedziale od 25 do 68 m2 .

Podziemna część budynku przeznaczona jest na garaż z miejscami parkingowymi.

Mieszkania na parterach będą mieć ogródki , na wyższych piętrach balkony . Mieszkania na najwyższych piętrach będą posiadać duże tarasy na dachu.

Inwestycja budowana w tradycyjnej technologii. Mieszkania sprzedawane w stanie deweloperskim (tynki gipsowe, wylewki, instalacje).

Wokół malownicza okolica , zielona przestrzeń, a przy tym dobra komunikacja miejska. Atrakcyjne połączenie z obwodnicą S7 i A4. Niedaleko inwestycji realizowany będzie przystanek kolei aglomeracyjnej, dzięki któremu z łatwością można dostać się do centrum miasta. W okolicy znajdują się liczne sklepy spożywcze oraz inne punkty handlowo-usługowe.

Termin zakończenia budowy zaplanowano na II kwartał 2024 r.

Zapraszam do kontaktu:

Marek Popiela +48 518 967 677
marek@sadurscy.pl

--------------------------

::GRATIS | Nasza prowizja zawiera: koszt przedwstępnej notarialnej umowy sprzedaży nieruchomości z rynku wtórnego.
::GWARANCJA | Gwarancja zwrotu zadatku. Więcej informacji na sadurscy.pl/zwrot-zadatku/


Oferta wysłana z systemu Galactica Virgo

Może Cię zainteresować:

Komentarze (0)

Nic nie znaleziono

Tylko zalogowani użytkownicy mogą dodawać komentarze

Mapa

Formularz kontaktowy

This site is protected by reCAPTCHA and the Google Privacy Policy and Terms of Service apply.

Podobne ogłoszenia

Śródmieście: lokal biurowy 27,01m2 na wynajem

Warszawa - Do wynajęcia lokal biurowy o pow. 27,01 m2 na 5 piętrze budynku biurowego na warszawskim Śródmieściu, w okolicach ul. Wilczej.poleca Agencja Nieruchomości Property Office (tel. 731-321-117,...

1 755,00 zł

Warszawa

Śródmieście: lokal biurowy na wynajem

Warszawa - Do wynajęcia lokal biurowy o pow. 19 m2 na 6 piętrze budynku biurowego na warszawskim Śródmieściu, w okolicach ul. Wilczej.poleca Agencja Nieruchomości Property Office (tel. 731-321-117, ma...

1 235,00 zł

Warszawa

Mokotów: przychodnia lekarska 176,20m2 na wynajem

Warszawa - Do wynajęcia: lokal na usługi medyczne, pow. 176,20 m2 na parterze w budynku biurowym na warszawskim Mokotowie, w okolicach ul. Rzymowskiego,poleca Agencja Nieruchomości Property Office (te...

17 620,00 zł

Warszawa

Dąbie ul. Widok| tramwaj | 23m2 za 2200 zł

Kawalerka 23 m² | 9. piętro | Dąbie | okolice al. Pokoju Do wynajęcia mieszkanie o powierzchni użytkowej 23 m², położone na 9. piętrze budynku w Krakowie, w rejonie Dąbia, w pobliżu al. ...

2 200,00 zł

Kraków

Kawalerka 23 m² | 9. piętro | Dąbie | okolice al. Pokoju Na sprzedaż mieszkanie o powierzchni użytkowej 23 m², położone na

Kawalerka 23 m² | 9. piętro | Dąbie | okolice al. Pokoju Na sprzedaż mieszkanie o powierzchni użytkowej 23 m², położone na 9. piętrze budynku w Krakowie, w rejonie Dąbia, w pobliżu al. Pokoju ...

399 000,00 zł

Kraków

Na sprzedaż M-2 ul.Górnicza Jastrzębie-Zdrój

Na sprzedaż mieszkanie z balkonem z widokiem na zieleń, położone w niskiej zabudowie na 2 piętrze w spokojnej dzielnicy Jastrzębia-Zdroju. Mieszkanie składa się z dużego, ustawnego salonu z wyjś...

139 000,00 zł

Jastrzębie-Zdrój

Na sprzedaż M-3 Zdrój, Jastrzębie-Zdrój

Na sprzedaż mieszkanie 38 metrowe położone pierwszym piętrze w niskiej zabudowie w spokojnej dzielnicy Zdroju. Mieszkanie składa się z oddzielnej kuchni z oknem, salonu, małego pokoju, przedpokoju...

210 000,00 zł

Jastrzębie-Zdrój

Na sprzedaż dom ul.Rzeczna w Jastrzębiu-Zdroju

Dom jednorodzinny - stan surowy zamknięty - 115,91 m² + duża działka 17,87 ara - Moszczenica dzielnica Jastrzębia-Zdroju (bez szkód górniczych!) Na sprzedaż dom jednorodzinny w stanie surowym...

595 000,00 zł

Jastrzębie-Zdrój

Facebook
Facebook
Sprzedawanko.pl – serwis ogłoszeń Firmowanko.pl – katalog firm i usług Pracowanko.pl – serwis pracy Ugościmy.pl – serwis noclegów Nporta.pl – katalog firm i usług