📢
🔥 Świętujemy 10.000 Opublikowanych Ogłoszeń 🔔 z tej Okazji mamy 10 Promowań za Free na SPRZEDAWANKO.PL🔥

Smart Apartament na Prądniku Białym blisko Zieleni

952 700,00 zł

{{ phone }}

{{ email }}

Dodane przez: braciasadurscy
braciasadurscy
Lokalizacja: Pękowicka
Telefon: {{ phone }}
Agent: Patrycja Rubinkiewicz
E-mail: patrycja@sadurscy.pl
Telefon kom.: +48 505-236-943
Udostępnij:

Opublikowano:  | Wygaśnie:

Wyświetleń: 3 | ID ogłoszenia: 78196

Numer oferty: BS2-MS-304357-31

Szczegóły

Typ: Sprzedaż
Rynek: Pierwotny
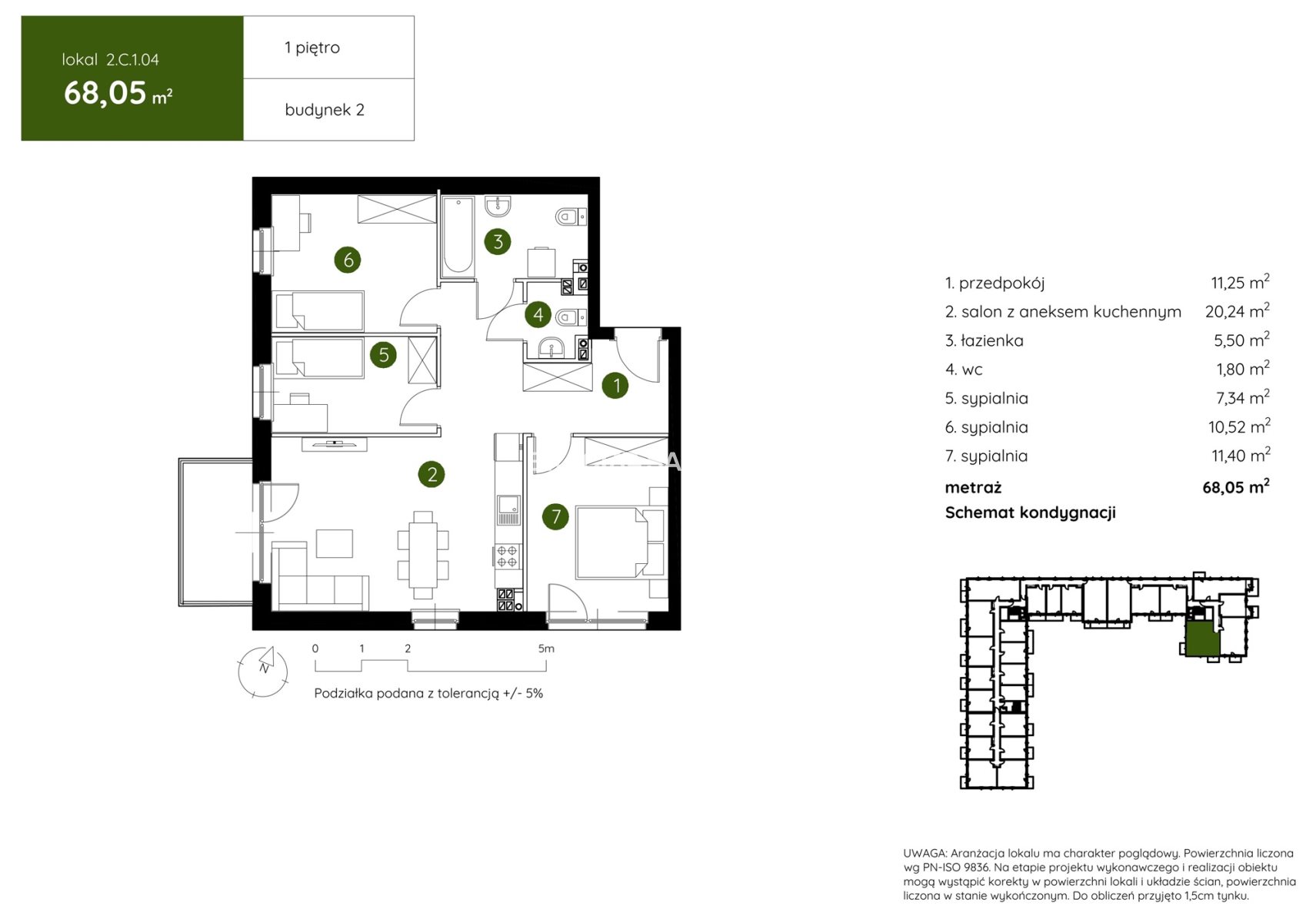
Pow. użytkowa: 68.05 m2
Cena za m2 (zł): 14000
Liczba pokoi: 4
Rodzaj zabudowy: blok
Piętro: 1
Liczba pięter: 3
Materiał budynku: pustak
Okna: PCV
Rok budowy: 2024
Ogrzewanie: C.O. miejskie
Stan wykończenia: deweloperski
Własność: Odrębna własność lokalu
Data aktualizacji: 2026-04-23

Opis


Z ogromną przyjemnością przedstawiamy Państwu ofertę mieszkania na sprzedaż w malowniczym rejonie Doliny Prądnika, na północy Krakowa, blisko granicy z gminą Zielonki. Nowoczesne osiedle otoczone jest rozległymi terenami zielonymi, co umożliwia codzienny kontakt z naturą i zapewnia wytchnienie od intensywnego miejskiego życia w centrum miasta.

Osiedle zostało zaprojektowane z myślą o rodzinach, parach oraz singlach, oferując szeroki wybór mieszkań o powierzchni od 26 do 73 m², w układach 1-, 2-, 3- i 4-pokojowych. Dbałość o komfort mieszkańców przejawia się w wysokiej jakości przestrzeni wspólnych, które sprzyjają nawiązywaniu sąsiedzkich relacji: skwer z ławeczkami, plac zabaw...

Budynki nowej inwestycji mające 3 i 4 kondygnacje, wyróżniają się kameralną architekturą, harmonizującą z okolicą. Przestronność obiektów gwarantuje mieszkańcom poczucie prywatności.

Zalety:


Home Management System to zaawansowana technologia inteligentnego domu, która umożliwia m.in. zarządzanie ogrzewaniem, oświetleniem i zaworami wody.
Pakiet antysmogowy w postaci filtrów montowanych w nawiewnikach okiennych dba o czystość powietrza we wnętrzach mieszkań.
Wysoki standard wykończenia części wspólnych obejmuje trwałe płytki gresowe, dekoracyjne panele imitujące drewno oraz energooszczędne oświetlenie LED.
Mieszkania na parterze posiadają tarasy z ogrodami o powierzchni do 123 m², natomiast mieszkania na wyższych kondygnacjach oferują przestronne balkony.
Termoizolacyjne łączniki balkonowe zapobiegają utracie ciepła, co przekłada się na oszczędności energetyczne.
Portfenetrowe okna zapewniają doskonałe doświetlenie wnętrz.
Na terenie osiedla zostanie zainstalowana stacja ładowania pojazdów elektrycznych, z myślą o mieszkańcach korzystających z ekologicznych środków transportu.
Zielone dachy budynków będą nie tylko estetyczne, ale również poprawią jakość powietrza i obniżą temperaturę otoczenia.


Prądnik biały to doskonale skomunikowana okolica, idealne miejsce dla osób szukających spokoju i bliskości natury, z jednoczesnym dostępem do nowoczesnych rozwiązań technologicznych.

Serdecznie zapraszam do kontaktu


--------------------------

::GRATIS | Nasza prowizja zawiera: koszt przedwstępnej notarialnej umowy sprzedaży nieruchomości z rynku wtórnego.
::GWARANCJA | Gwarancja zwrotu zadatku. Więcej informacji na sadurscy.pl/zwrot-zadatku/


Oferta wysłana z systemu Galactica Virgo

Może Cię zainteresować:

Komentarze (0)

Nic nie znaleziono

Tylko zalogowani użytkownicy mogą dodawać komentarze

Mapa

Formularz kontaktowy

This site is protected by reCAPTCHA and the Google Privacy Policy and Terms of Service apply.

Podobne ogłoszenia

DZIAŁKA ROD NA SPRZEDAŻ WIOSENKA RYBNICA

Arkadia Nieruchomości prezentuje na sprzedaż wyjątkową Działkę Rod w Ogrodzie Działkowym "WIOSENKA " we Włocławku -RYBNICA. Marzysz o własnym miejscu do odpoczynku blisko natury? Ta mal...

45 000,00 zł

Włocławek

Mieszkanie do wykończenia, Nowe instalacje, okazja

Nieruchomości ApartamentEwelina Gruszczyńska-Malinatel. 573 087 693 3-pokojowe mieszkanie 56,49 m² - Legnica, ul. Jaworzyńska | Duży potencjał!Na sprzedaż mieszkanie 3 pokojowe o powierzch...

242 000,00 zł

Dolnośląskie

Wyjątkowa działka w Więckowy.

TYLKO W NASZYM BIURZE - wyjątkowa działka z potencjałem! Na sprzedaż atrakcyjna działka rolna o powierzchni 4857 mkw, położona w malowniczej miejscowości Więckowy - sercu Kociewia, w powiecie starogar...

257 421,00 zł

Pomorskie

4 pok 80m2 wysoki standard Podgórze Zabłocie

4 pokoje | 80 m² | 2 balkony | garaż | Zabłocie | wysoki standard Na sprzedaż nowoczesny, 4-pokojowy apartament o pow. ok. 80 m² , położony na 4. piętrze w budynku z 2021 roku , przy ul. ...

1 248 000,00 zł

Kraków

Inwestycyjna perełka w kamienicy | 34m² | balkon

Na sprzedaż: klimatyczne mieszkanie po remoncie - Bydgoskie Przedmieście, Toruń | 33,86m² | balkonNa sprzedaż funkcjonalne mieszkanie o powierzchni 33,86m², położone w jednej z i cenionych dzielnic To...

279 000,00 zł

Kujawsko-pomorskie

Przestronne mieszkanie w Ślesinie

Przestronne 2 pokoje z balkonem + ogródek i pom. gospodarcze!Na sprzedaż mieszkanie o powierzchni 53,6 mkw, idealne dla rodziny lub jako inwestycja pod wynajem.Układ pomieszczeń:- przestronny przedpok...

249 000,00 zł

Kujawsko-pomorskie

Gotowe do wejścia | 2 pok | duży balkon | parking

Przestronne i ustawne mieszkanie o powierzchni 45,93 m 2 położone na I piętrze budynku z 2013 roku (oddany do użytkowania w 2014 roku) przy ul. Macieja Dębskiego 21. LOKALIZACJA: Opatko...

619 000,00 zł

Kraków

Działka z WZ ze ścianą lasu

Wyjątkowa działka ze ścianą lasu - 1150 mkw | Warunki zabudowyNa sprzedaż atrakcyjna działka o powierzchni 1150 mkw, położona w spokojnej i zielonej okolicy, bezpośrednio przy ścianie lasu. To idealna...

97 000,00 zł

Kujawsko-pomorskie

Dom z dużą działką budowlaną k. Niepołomic

DOM Z DUŻĄ DZIAŁKĄ BUDOWLANĄ | 64 ARY | MOŻLIWOŚĆ PODZIAŁU I ZABUDOWY | DROGA DOJAZDOWA Z przyjemnością prezentujemy atrakcyjną nieruchomość inwestycyjną - dom wolnostojący o powierz...

1 508 000,00 zł

Grodkowice

Budynek z 6 niezależnymi apartamentami.

Willa Dębowa - komfort, natura i gotowy biznes w sercu Niepołomic Wyjątkowa nieruchomość inwestycyjna położona w jednej z najbardziej atrakcyjnych lokalizacji Małopolski. Willa Dę...

2 500 000,00 zł

Niepołomice

Dom z ogrodem i garażem w cenie mieszkania.

Dom z potencjałem w zielonym Bieżanowie - przestrzeń, możliwości, inwestycja Szukasz miejsca, które możesz dopasować do własnych potrzeb lub wykorzystać jako pewną inwestycję? Ta ...

1 148 000,00 zł

Kraków

Dom nad jeziorem z dużą działką widokową.

Drewniany dom całoroczny z widokiem na Jezioro Mucharskie Zapraszamy do wyjątkowego miejsca, w którym natura spotyka się z komfortem. Oferujemy do sprzedaży drewniany dom położony w jed...

1 500 000,00 zł

Łękawica

Facebook
Facebook
Sprzedawanko.pl – serwis ogłoszeń Firmowanko.pl – katalog firm i usług Pracowanko.pl – serwis pracy Ugościmy.pl – serwis noclegów Nporta.pl – katalog firm i usług