📢
🔥 Świętujemy 10.000 Opublikowanych Ogłoszeń 🔔 z tej Okazji mamy 10 Promowań za Free na SPRZEDAWANKO.PL🔥

Smart Apartament na Prądniku Białym blisko Zieleni

750 099,00 zł

{{ phone }}

{{ email }}

Dodane przez: braciasadurscy
braciasadurscy
Lokalizacja: Pękowicka
Telefon: {{ phone }}
Agent: Patrycja Rubinkiewicz
E-mail: patrycja@sadurscy.pl
Telefon kom.: +48 505-236-943
Udostępnij:

Opublikowano:  | Wygaśnie:

Wyświetleń: 2 | ID ogłoszenia: 78145

Numer oferty: BS2-MS-304435-31

Szczegóły

Typ: Sprzedaż
Rynek: Pierwotny
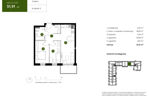
Pow. użytkowa: 51.91 m2
Cena za m2 (zł): 14450
Liczba pokoi: 3
Rodzaj zabudowy: blok
Piętro: 3
Liczba pięter: 3
Materiał budynku: pustak
Okna: PCV
Rok budowy: 2024
Ogrzewanie: C.O. miejskie
Stan wykończenia: deweloperski
Własność: Odrębna własność lokalu
Data aktualizacji: 2026-04-23

Opis


Z ogromną przyjemnością przedstawiamy Państwu ofertę mieszkania na sprzedaż w malowniczym rejonie Doliny Prądnika, na północy Krakowa, blisko granicy z gminą Zielonki. Nowoczesne osiedle otoczone jest rozległymi terenami zielonymi, co umożliwia codzienny kontakt z naturą i zapewnia wytchnienie od intensywnego miejskiego życia w centrum miasta.

Osiedle zostało zaprojektowane z myślą o rodzinach, parach oraz singlach, oferując szeroki wybór mieszkań o powierzchni od 26 do 73 m², w układach 1-, 2-, 3- i 4-pokojowych. Dbałość o komfort mieszkańców przejawia się w wysokiej jakości przestrzeni wspólnych, które sprzyjają nawiązywaniu sąsiedzkich relacji: skwer z ławeczkami, plac zabaw...

Budynki nowej inwestycji mające 3 i 4 kondygnacje, wyróżniają się kameralną architekturą, harmonizującą z okolicą. Przestronność obiektów gwarantuje mieszkańcom poczucie prywatności.

Zalety:


Home Management System to zaawansowana technologia inteligentnego domu, która umożliwia m.in. zarządzanie ogrzewaniem, oświetleniem i zaworami wody.
Pakiet antysmogowy w postaci filtrów montowanych w nawiewnikach okiennych dba o czystość powietrza we wnętrzach mieszkań.
Wysoki standard wykończenia części wspólnych obejmuje trwałe płytki gresowe, dekoracyjne panele imitujące drewno oraz energooszczędne oświetlenie LED.
Mieszkania na parterze posiadają tarasy z ogrodami o powierzchni do 123 m², natomiast mieszkania na wyższych kondygnacjach oferują przestronne balkony.
Termoizolacyjne łączniki balkonowe zapobiegają utracie ciepła, co przekłada się na oszczędności energetyczne.
Portfenetrowe okna zapewniają doskonałe doświetlenie wnętrz.
Na terenie osiedla zostanie zainstalowana stacja ładowania pojazdów elektrycznych, z myślą o mieszkańcach korzystających z ekologicznych środków transportu.
Zielone dachy budynków będą nie tylko estetyczne, ale również poprawią jakość powietrza i obniżą temperaturę otoczenia.


Prądnik biały to doskonale skomunikowana okolica, idealne miejsce dla osób szukających spokoju i bliskości natury, z jednoczesnym dostępem do nowoczesnych rozwiązań technologicznych.

Serdecznie zapraszam do kontaktu


--------------------------

::GRATIS | Nasza prowizja zawiera: koszt przedwstępnej notarialnej umowy sprzedaży nieruchomości z rynku wtórnego.
::GWARANCJA | Gwarancja zwrotu zadatku. Więcej informacji na sadurscy.pl/zwrot-zadatku/


Oferta wysłana z systemu Galactica Virgo

Może Cię zainteresować:

Komentarze (0)

Nic nie znaleziono

Tylko zalogowani użytkownicy mogą dodawać komentarze

Mapa

Formularz kontaktowy

This site is protected by reCAPTCHA and the Google Privacy Policy and Terms of Service apply.

Podobne ogłoszenia

2 pokoje w Ujściu, mile widziane firma

OFERTA WYNAJMU MIESZKANIADwupokojowe w samym centrum UjściaBartosztel. 573 094 074 Do wynajęcia przestronne, dwupokojowe mieszkanie o powierzchni około 65 m², stanowiące połowę budynku wolnostojącego ...

1 700,00 zł

Wielkopolskie

Komfortowy dom pod Wieliczką na dużej działce

Komfortowy dom w Sułkowie - cisza, wygoda i doskonała lokalizacja Na sprzedaż wyjątkowy dom jednorodzinny na ok. 17-arowej działce położony w malowniczej miejscowości Sułków - zaledwie...

1 890 000,00 zł

Wielicki

Na sprzedaż Mikro kawalerka 18 m2, Centrum

Arkadia Nieruchomości oferuje na sprzedaż kawalerkę położoną na 3 piętrze w niskim bloku w Centrum miasta ! Teren zamknięty. Nieruchomość idealna pod inwestycje. Na powierzchnie mieszkania...

119 000,00 zł

Włocławek

3 pokojowe os Kazimierzowskie.

Osiedle Kazimierzowskie - 3-pokojowe mieszkanie 55,54 m² z dwoma balkonami, tuż przy Plantach Bieńczyckich Na sprzedaż funkcjonalne, w pełni rozkładowe mieszkanie o powierzchni 55 m², poło...

680 000,00 zł

Kraków

Wyjątkowa nieruchomość z historią – Grodziszcze Ko

Oferuję na sprzedaż unikatową posiadłość położoną w malowniczej i spokojnej części miejscowości Grodziszcze Kolonia, w otoczeniu lasów i natury. Nieruchomość stanowi idealną propozycję zarówno dla inw...

990 000,00 zł

Stoszowice

DWUPOZIOMOWE MIESZKANIE NA POŁUDNIU KRAKOWA

Eleganckie, dwupoziomowe mieszkanie w zielonej części Krakowa! Na sprzedaż przestronne, dwupoziomowe mieszkanie zlokalizowane przy ul. Petrażyckiego , w zielonej i spokojnej części...

1 189 000,00 zł

Kraków

Niezależne 45 m² z osobnym wejściem i ogrzewaniem

Kameralne mieszkanie 45 m² z osobnym wejściem w domu wolnostojącym - idealne dla pary lub singla!Oferuję do wynajęcia przestronne mieszkanie o powierzchni 45 m² na niskim parterze w spokojnej okolicy ...

1 900,00 zł

Kujawsko-pomorskie

Dom w spokojnej wsi Wierzbowa | pod działalność !

Kontakt:Nieruchomości ApartamentEwelina Gruszczyńska-Malinatel. 573 087 693 Na sprzedaż: dom z potencjałem - 74,5 m² na działce 200 m² Oferujemy na sprzedaż dom w stanie surowym zamkniętym o powierzch...

297 000,00 zł

Dolnośląskie

Facebook
Facebook
Sprzedawanko.pl – serwis ogłoszeń Firmowanko.pl – katalog firm i usług Pracowanko.pl – serwis pracy Ugościmy.pl – serwis noclegów Nporta.pl – katalog firm i usług