📢
🔥 Świętujemy 10.000 Opublikowanych Ogłoszeń 🔔 z tej Okazji mamy 10 Promowań za Free na SPRZEDAWANKO.PL🔥

125m2 Stare Miasto, Św. Krzyża bez prowizji

2 812 500,00 zł

{{ phone }}

{{ email }}

Dodane przez: braciasadurscy
braciasadurscy
Lokalizacja: Świętego Krzyża
Telefon: {{ phone }}
Agent: Norbert Borowiak
E-mail: norbert@sadurscy.pl
Telefon kom.: +48 577-072-177
Udostępnij:

Opublikowano:  | Wygaśnie:

Wyświetleń: 1 | ID ogłoszenia: 77877

Numer oferty: BS1-MS-312764-22

Szczegóły

Typ: Sprzedaż
Rynek: Wtórny
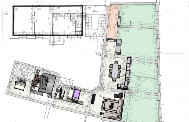
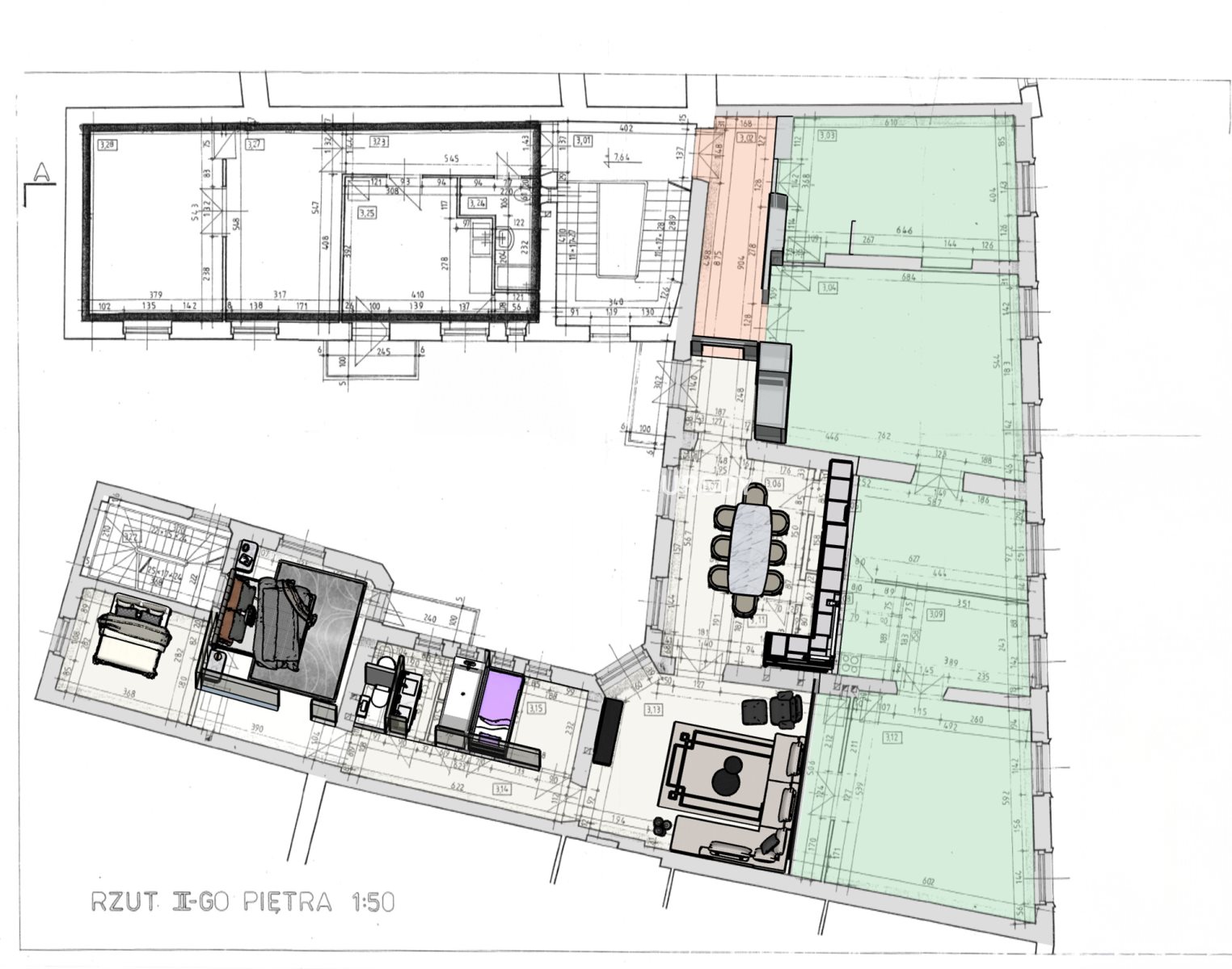
Pow. użytkowa: 125 m2
Pow. całkowita: 125 m2
Cena za m2 (zł): 22500
Liczba pokoi: 7
Liczba sypialni: 7
Rodzaj zabudowy: kamienica
Piętro: 2
Liczba pięter: 3
Materiał budynku: cegła
Okna: drewniane
Rok budowy: 1450
Ogrzewanie: gazowe
Stan wykończenia: do generalnego remontu
Własność: Własność
Data aktualizacji: 2026-04-23

Opis


ENGLISH BELOW

Unikatowa inwestycja w samym sercu Krakowa - 125 m² w odnowionej kamienicy przy ul. Św. Krzyża. Na innych ofertach prezentujemy sprzedaż całej nieruchomości o powierzchni 250 m² - zapraszamy do zapoznania się z naszymi ofertami.

Na sprzedaż oferuję niepowtarzalną przestrzeń o łącznej powierzchni 125m², zajmującą niemal całe piętro w eleganckiej, w pełni odrestaurowanej kamienicy z windą, położonej w jednej z najbardziej prestiżowych lokalizacji Starego Miasta - przy ul. Św. Krzyża, zaledwie 250 metrów od Rynku Głównego.

Potencjał inwestycyjny

To idealna propozycja dla inwestorów poszukujących nieruchomości z wysoką stopą zwrotu. Układ piętra oraz metraż umożliwiają podział na kilka mniejszych lokali - apartamentów lub mikroapartamentów przeznaczonych pod wynajem krótkoterminowy (Airbnb, Booking.com) lub najem długoterminowy klasy premium. Nieruchomość może być wykorzystywana jako siedziba firmy w topowej lokalizacji.

Dzięki znakomitej lokalizacji - 250m od Rynku Głównego, 850m od Wawelu, 950m od Dworca Głównego - nieruchomość gwarantuje stałe obłożenie i atrakcyjny przychód pasywny przez cały rok.

Atuty nieruchomości

- Powierzchnia: 125 m² - blisko całe piętro z dużym potencjałem aranżacyjnym
- Piętro: 2 z 3
- Stan: do własnej aranżacji / remontu - możliwość stworzenia wyjątkowych apartamentów Premium
- Budynek: po pełnej rewitalizacji, reprezentacyjna klatka schodowa, nowoczesna winda
- Księga wieczysta: pełna własność

Lokalizacja

Ulica Św. Krzyża to jedna z najbardziej urokliwych i pożądanych lokalizacji Krakowa - spokojna boczna uliczka Starego Miasta, w bezpośrednim sąsiedztwie tętniącego życiem centrum. W okolicy znajdują się liczne restauracje, kawiarnie, puby, bary, galerie sztuki oraz zabytki, a jednocześnie zapewniony jest komfort i cisza charakterystyczna dla prestiżowych kamienic w ścisłym centrum.

Dlaczego warto:

- Prestiżowa lokalizacja w samym centrum Krakowa
- Kamienica po kompleksowej renowacji z windą
- Możliwość podziału na kilka luksusowych apartamentów
- Idealna inwestycja pod najem krótkoterminowy lub długoterminowy
- Pełna własność - nieruchomość objęta księgą wieczystą

Zapraszam do kontaktu w celu uzyskania szczegółowych informacji oraz umówienia prezentacji. To wyjątkowa okazja, by nabyć przestrzeń o ogromnym potencjale w jednej z najbardziej pożądanych lokalizacji Krakowa.

Kontakt
Norbert Borowiak
577 072 177
norbert@sadurscy.pl

Biuro nie pobiera prowizji od kupującego. Zapraszamy do współpracy.

---------------------

Unique Investment Opportunity in the Heart of Kraków - 125 m² in a Fully Renovated Tenement House on Św. Krzyża Street. We have additional 250 sq m properties available—explore our listings for details.

For sale: a unique property with a total area of 125 m², occupying almost the entire floor of an elegant, fully refurbished historic tenement house with an elevator, located in one of the most prestigious areas of Kraków’s Old Town - on Św. Krzyża Street, just 250 meters from the Main Market Square.

Investment Potential

An ideal opportunity for investors seeking high-return real estate in a prime central location. The floor layout and generous size allow for division into several smaller units - apartments or micro-apartments suitable for short-term rentals (Airbnb, Booking.com) or long-term premium leases. The property may serve as a company’s registered office in a prime location.

Thanks to its exceptional location - only 250 m from the Main Square, 850 m from Wawel Castle, and 950 m from the Main Railway Station - the property guarantees high year-round occupancy and stable passive income.

Property Highlights

Area: 125 m² - nearly a full floor with exceptional layout flexibility
Floor: 2nd out of 3
Condition: to be finished / renovated - possibility to create bespoke premium apartments
Building: fully revitalized tenement, elegant stairwell, modern elevator
Ownership: full freehold (registered land and mortgage deed)

Location

Św. Krzyża Street is one of the most charming and desirable addresses in Kraków - a quiet side street of the Old Town, just steps from the vibrant city center. The area offers a wide selection of restaurants, cafés, pubs, bars, art galleries, and historical landmarks, while maintaining the comfort and tranquility characteristic of prestigious historic buildings in central Kraków.

Key Advantages

- Prime, prestigious location in the very heart of Kraków
- Fully renovated building with elevator
- Possibility to divide into multiple luxury apartments
- Ideal for short-term or long-term rental investment
- Full ownership - property with a registered land and mortgage deed

For more details and to arrange a viewing, please contact:
Norbert Borowiak
577 072 177
norbert@sadurscy.pl

The agency charges no commission from the buyer. We warmly invite cooperation and inquiries from private investors and agencies alike.


Zobacz Wirtualny Spacer: https://my.matterport.com/show/?m=pZeTWaizBZC


Oferta wysłana z systemu Galactica Virgo

Może Cię zainteresować:

Film z Youtube

Wirtualny spacer

Komentarze (0)

Nic nie znaleziono

Tylko zalogowani użytkownicy mogą dodawać komentarze

Mapa

Formularz kontaktowy

This site is protected by reCAPTCHA and the Google Privacy Policy and Terms of Service apply.

Podobne ogłoszenia

Śródmieście: lokal biurowy 27,01m2 na wynajem

Warszawa - Do wynajęcia lokal biurowy o pow. 27,01 m2 na 5 piętrze budynku biurowego na warszawskim Śródmieściu, w okolicach ul. Wilczej.poleca Agencja Nieruchomości Property Office (tel. 731-321-117,...

1 755,00 zł

Warszawa

Mokotów: przychodnia lekarska 176,20m2 na wynajem

Warszawa - Do wynajęcia: lokal na usługi medyczne, pow. 176,20 m2 na parterze w budynku biurowym na warszawskim Mokotowie, w okolicach ul. Rzymowskiego,poleca Agencja Nieruchomości Property Office (te...

17 620,00 zł

Warszawa

Śródmieście: lokal biurowy na wynajem

Warszawa - Do wynajęcia lokal biurowy o pow. 19 m2 na 6 piętrze budynku biurowego na warszawskim Śródmieściu, w okolicach ul. Wilczej.poleca Agencja Nieruchomości Property Office (tel. 731-321-117, ma...

1 235,00 zł

Warszawa

Dąbie ul. Widok| tramwaj | 23m2 za 2200 zł

Kawalerka 23 m² | 9. piętro | Dąbie | okolice al. Pokoju Do wynajęcia mieszkanie o powierzchni użytkowej 23 m², położone na 9. piętrze budynku w Krakowie, w rejonie Dąbia, w pobliżu al. ...

2 200,00 zł

Kraków

Kawalerka 23 m² | 9. piętro | Dąbie | okolice al. Pokoju Na sprzedaż mieszkanie o powierzchni użytkowej 23 m², położone na

Kawalerka 23 m² | 9. piętro | Dąbie | okolice al. Pokoju Na sprzedaż mieszkanie o powierzchni użytkowej 23 m², położone na 9. piętrze budynku w Krakowie, w rejonie Dąbia, w pobliżu al. Pokoju ...

399 000,00 zł

Kraków

Na sprzedaż mieszkanie M-4, Jastrzębie-Zdrój.

Na sprzedaż przestronne i funkcjonalne mieszkanie typu M4 o powierzchni 60 m², w centrum miasta. Lokal składa się z trzech ustawnych, nieprzechodnich pokoi, co zapewnia komfort i prywatność d...

359 000,00 zł

Jastrzębie-Zdrój

Na sprzedaż M-3 Zdrój, Jastrzębie-Zdrój

Na sprzedaż mieszkanie 38 metrowe położone pierwszym piętrze w niskiej zabudowie w spokojnej dzielnicy Zdroju. Mieszkanie składa się z oddzielnej kuchni z oknem, salonu, małego pokoju, przedpokoju...

210 000,00 zł

Jastrzębie-Zdrój

Na sprzedaż dom ul.Rzeczna w Jastrzębiu-Zdroju

Dom jednorodzinny - stan surowy zamknięty - 115,91 m² + duża działka 17,87 ara - Moszczenica dzielnica Jastrzębia-Zdroju (bez szkód górniczych!) Na sprzedaż dom jednorodzinny w stanie surowym...

595 000,00 zł

Jastrzębie-Zdrój

Facebook
Facebook
Sprzedawanko.pl – serwis ogłoszeń Firmowanko.pl – katalog firm i usług Pracowanko.pl – serwis pracy Ugościmy.pl – serwis noclegów Nporta.pl – katalog firm i usług