📢
🔥 Świętujemy 10.000 Opublikowanych Ogłoszeń 🔔 z tej Okazji mamy 10 Promowań za Free na SPRZEDAWANKO.PL🔥

Wierzchowisko, ul. Długa | Bliźniak

640 000,00 zł

{{ email }}

Dodane przez: DYMOWSKI
Lokalizacja:
Agent: Katarzyna Utratna - Purgal
E-mail: katarzyna@dymowski-nieruchomosci.pl
Telefon kom.: 791440048
Udostępnij:

Opublikowano:  | Wygaśnie:

Wyświetleń: 1 | ID ogłoszenia: 77630

Numer oferty: 196/16009/ODS

Szczegóły

Typ: Sprzedaż
Rynek: Pierwotny
Pow. użytkowa: 160.37 m2
Pow. działki: 360 m2
Cena za m2 (zł): 3990.77
Liczba pokoi: 6
Liczba sypialni: 4
Liczba pięter: 1
Rodzaj zabudowy: Bliźniak
Rok budowy: 2024
Własność: Własność
Dach: Blacha
Telefon biuro: 343411101
Data aktualizacji: 2026-04-03 11:57:07
Język angielski:

Opis

Biuro Nieruchomości DYMOWSKI. zaprasza do zapoznania się z ofertą sprzedaży domu w zabudowie bliźniaczej, położonego przy ul. Długiej 161 w miejscowości Wierzchowisko.

Cechy nieruchomości: powierzchnia: ok. 160,37 m²,

położony na działce o powierzchni ~ 360 m², budynek parterowy z poddaszem użytkowym, niepodpiwniczony, z dachem dwuspadowym,

okna PCV trzyszybowe, drzwi antywłamaniowe,

media: prąd, woda, kanalizacja miejska,

osiedle zamknięte z bramą wjazdową zarówno od ulicy Długiej jak i Kolorowej, teren oświetlony, z furtką i domofonem.

Układ pomieszczeń:

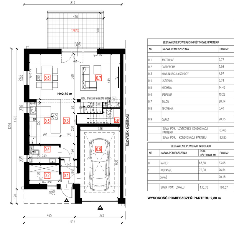
Parter:

wiatrołap (2,77 m²),

garderoba (3,98 m²),

komunikacja + schody (4,97 m²),

łazienka (3,94 m²),

kuchnia (14,46 m²),

jadalnia (10,22 m²),

salon (20,14 m²),

spiżarnia (3,40 m²),

garaż (20,15 m²).

Poddasze:

schody (2,51 m²),

komunikacja (6,09 m²),

sypialnia (17,48 m²),

pokój 1 (8,06–10,30 m² po podłodze),

łazienka (6,87 m²),

pralnia/kotłownia (3,58 m²),

pokój 2 (12,00–14,22 m² po podłodze),

pokój 3 (15,13 m²).

Do domu przynależy także ogród.

Standard wykończenia:

Dom zostanie przekazany nowym właścicielom w stanie deweloperskim z zewnątrz – obejmującym wykonanie elewacji, ogrodzenia, kostki brukowej, przyłączy mediów do budynku, stolarki okiennej i drzwi zewnętrznych.

Wewnątrz budynek pozostaje w stanie surowym, co daje przyszłym właścicielom pełną swobodę aranżacji – według własnego projektu i gustu. Brak tynków, wylewek, instalacji czy docieplenia poddasza pozwala zrealizować dom dokładnie tak, jak sobie wymarzyli.

Lokalizacja i otoczenie:

Osiedle położone jest w spokojnej, zielonej części Wierzchowiska, w otoczeniu nowoczesnych domów jednorodzinnych i terenów rekreacyjnych. To miejsce idealne dla osób, które cenią ciszę, bezpieczeństwo i prywatność, a jednocześnie chcą pozostać w bliskim sąsiedztwie Częstochowy. W bezpośrednim sąsiedztwie znajduje się sklep, szkoła, przystanki komunikacji miejskiej oraz ścieżki spacerowe i rowerowe.

Odległości: CH M1 – ok. 5 km,

Szkoła podstawowa – ok. 300 m,

Przychodnia lekarska – ok. 650 m,

Restauracja – ok. 2,7 km.

To propozycja idealna dla rodzin z dziećmi lub osób poszukujących komfortowego, nowoczesnego domu w spokojnej okolicy. Osiedle z pełną infrastrukturą, zielonym otoczeniem i szybkim dojazdem do miasta gwarantuje wygodę, bezpieczeństwo i prywatność.

Zapraszamy do kontaktu po więcej informacji!

Katarzyna Utratna-Purgal

791 440 048

Powyższa oferta ma charakter informacyjny i nie stanowi oferty handlowej w rozumieniu przepisów art. 66 kodeksu cywilnego. Opis nieruchomości został sporządzony na podstawie informacji uzyskanych od właściciela i może być aktualizowany.

Może Cię zainteresować:

Komentarze (0)

Nic nie znaleziono

Tylko zalogowani użytkownicy mogą dodawać komentarze

Mapa

Formularz kontaktowy

This site is protected by reCAPTCHA and the Google Privacy Policy and Terms of Service apply.

Podobne ogłoszenia

Oferta PREMIUM-centrum-miejsce postojowe

Małgorzata Biskup 660244448Na sprzedaż tylko w naszym biurze!Przestronny apartament który powstał z połączenia dwóch mieszkań. Wykończony z materiałów o najwyższej jakości ze szczególną dbałością o ka...

2 750 000,00 zł

Bydgoszcz

Przestronny dom w cichej okolicy!

"Nieruchomości Apartament"Izabella Paprocka570 097 070Oferta dostępna tylko w naszym biurze!Do sprzedania przestronny dom w zabudowie bliźniaczej w spokojnej okolicy Wołowa! Dom z roku 1983 posadowion...

749 000,00 zł

Dolnośląskie

Wola: lokal biurowy 14,01 m2 na wynajem

Warszawa - Do wynajęcia: lokal biurowy o pow.14,01m2 w budynku biurowym na warszawskiej Woli, w okolicach ul. Górczewskiej i stacji metra Ks. Janusza , poleca Agencja Nieruchomości Property Office (te...

840,00 zł

Warszawa

Śródmieście: lokal biurowy 27,01m2 na wynajem

Warszawa - Do wynajęcia lokal biurowy o pow. 27,01 m2 na 5 piętrze budynku biurowego na warszawskim Śródmieściu, w okolicach ul. Wilczej.poleca Agencja Nieruchomości Property Office (tel. 731-321-117,...

1 755,00 zł

Warszawa

Mokotów: przychodnia lekarska 176,20m2 na wynajem

Warszawa - Do wynajęcia: lokal na usługi medyczne, pow. 176,20 m2 na parterze w budynku biurowym na warszawskim Mokotowie, w okolicach ul. Rzymowskiego,poleca Agencja Nieruchomości Property Office (te...

17 620,00 zł

Warszawa

Śródmieście: lokal biurowy na wynajem

Warszawa - Do wynajęcia lokal biurowy o pow. 19 m2 na 6 piętrze budynku biurowego na warszawskim Śródmieściu, w okolicach ul. Wilczej.poleca Agencja Nieruchomości Property Office (tel. 731-321-117, ma...

1 235,00 zł

Warszawa

Dąbie ul. Widok| tramwaj | 23m2 za 2200 zł

Kawalerka 23 m² | 9. piętro | Dąbie | okolice al. Pokoju Do wynajęcia mieszkanie o powierzchni użytkowej 23 m², położone na 9. piętrze budynku w Krakowie, w rejonie Dąbia, w pobliżu al. ...

2 200,00 zł

Kraków

Kawalerka 23 m² | 9. piętro | Dąbie | okolice al. Pokoju Na sprzedaż mieszkanie o powierzchni użytkowej 23 m², położone na

Kawalerka 23 m² | 9. piętro | Dąbie | okolice al. Pokoju Na sprzedaż mieszkanie o powierzchni użytkowej 23 m², położone na 9. piętrze budynku w Krakowie, w rejonie Dąbia, w pobliżu al. Pokoju ...

399 000,00 zł

Kraków

Facebook
Facebook
Sprzedawanko.pl – serwis ogłoszeń Firmowanko.pl – katalog firm i usług Pracowanko.pl – serwis pracy Ugościmy.pl – serwis noclegów Nporta.pl – katalog firm i usług