📢
🔥 Świętujemy 10.000 Opublikowanych Ogłoszeń 🔔 z tej Okazji mamy 10 Promowań za Free na SPRZEDAWANKO.PL🔥

Działka usługowo – inwestycyjna z pnb w Chrzanowie

397 000,00 zł

{{ phone }}

{{ email }}

Dodane przez: braciasadurscy
braciasadurscy
Lokalizacja: Śląska
Telefon: {{ phone }}
Agent: Marek Wawrzeń
E-mail: marek3@sadurscy.pl
Telefon kom.: +48 798-352-683
Udostępnij:

Opublikowano:  | Wygaśnie:

Wyświetleń: 3 | ID ogłoszenia: 77318

Numer oferty: BS5-GS-300443-68

Szczegóły

Typ: Sprzedaż
Rynek: Wtórny
Pow. użytkowa: 1155 m2
Cena za m2 (zł): 343.72
Własność: własność
Typ działki: budowlana
Szer. działki (m): 54
Nr licencji: 26458
Data aktualizacji: 2026-04-22

Opis


D ziałka usługowo - inwestycyjna z pnb w Chrzanowie

Oferujemy na sprzedaż działkę budowlaną położoną w Chrzanowie przy ul. Śląskiej (głównej drodze prowadzącej do Jaworzna), w pobliżu zjazdu z autostrady A4.
Działka o powierzchni 1155 m 2 , w kształcie prostokąta o wymiarach z ok. 21 x 54 m. Teren płaski, niezabudowany i niezadrzewiony.

Nieruchomość posiada prawomocne pozwolenie na budowę z pełną dokumentacją do zaplanowanej inwestycji tj. budowy budynku usługowo - handlowego wraz z infrastrukturą techniczną, z uwzględnieniem budowy zjazdu publicznego z drogi gminnej.

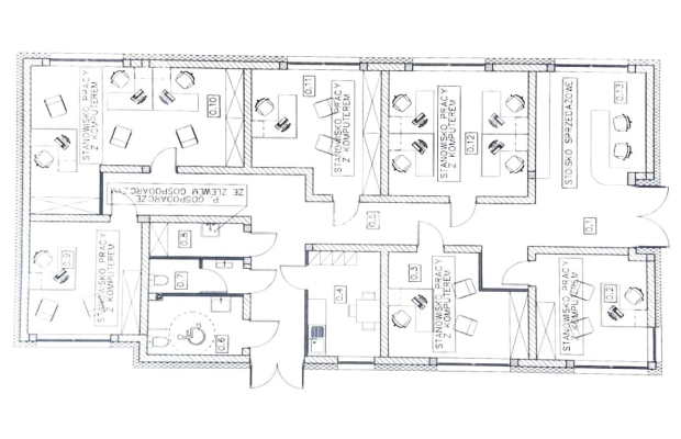
OPIS INWESTYCJI
Planowana inwestycja ma polegać na budowie budynku usługowo - handlowego o nw. parametrach:
1. Zestawienie powierzchni użytkowej budynku:
pow. zabudowy - 230 m 2
kubatura - 724 m3
pow. całkowita - 179,58 m 2
pow. użytkowa - 179,58 m 2

2. Rozkład pomieszczeń:
hol - 3,93 m 2
biuro - 13,2 m 2
biuro - 14,86 m 2
pom. socjalne - 8,88 m 2
komunikacja - 32,15 m 2
wc - 6,29 m 2
wc - 3,6 m 2
pom. gospodarcze - 3,6 m 2
biuro - 14,42 m 2
biuro - 28,09 m 2
biuro - 16,97 m 2
biuro - 20,24 m 2
pom. handlowe - 13,35 m 2
RAZEM: 179,58 m 2

Przy budynku zaplanowano wykonanie 8 miejsc postojowych.

WARUNKI ZABUDOWY
Decyzja o warunkach zabudowy przewiduje nw. parametry:
- powierzchnia inwestycji - 70%
- powierzchnia biologicznie czynna - min. 30%
- wysokość budynku - 11 m (co pozwala na ewentualną rozbudowę planowanego budynku)

MEDIA:
- prąd, woda, gaz, kanalizacja - znajdują się przy działce
- wydano warunki przyłączy dla wszystkich mediów
- światłowód przy działce

INNE:
działka utwardzona ok. 10 lat temu kamieniem

FORMA WŁASNOŚCI:
uregulowana, bez obciążeń

Biuro pomaga bezpiecznie przeprowadzić transakcję.

Szczegóły oferty
798 352 683
marek3@sadurscy.pl


Zobacz Wirtualny Spacer: https://panoramy.galactica.pl/virgo/447589

Pośrednik odpowiedzialny zawodowo za wykonanie umowy pośrednictwa: Marek Wawrzeń (licencja nr: 26458)


Oferta wysłana z systemu Galactica Virgo

Może Cię zainteresować:

Film z Youtube

Wirtualny spacer

Komentarze (0)

Nic nie znaleziono

Tylko zalogowani użytkownicy mogą dodawać komentarze

Mapa

Formularz kontaktowy

This site is protected by reCAPTCHA and the Google Privacy Policy and Terms of Service apply.

Podobne ogłoszenia

Bielany: magazyn 75,15m2 do wynajęcia

Do wynajęcia: magazyn o pow.75,15 m2 na parterze w hali magazynowo- biurowej na warszawskich Bielanach, w okolicach ul. Sokratesa, poleca Property Office (tel. 731-321-117, mail: katarzyna@propertyoff...

3 006,00 zł

Warszawa

Bielany: magazyn 54,14m2 do wynajęcia

Warszawa - Do wynajęcia: magazyn o pow.54,14 m2 na parterze w hali magazynowo- biurowej na warszawskich Bielanach, w okolicach ul. Sokratesa, poleca Property Office (tel. 731-321-117, mail: katarzyna@...

2 436,00 zł

Warszawa

Bielany: magazyn 38,85 m2 do wynajęcia

Warszawa - Do wynajęcia: magazyn o pow.26,83 m2 znajdujący się na parterze w hali magazynowo- biurowej na warszawskich Bielanach, w okolicach ul. Sokratesa, poleca Agencja Nieruchomości Property Offic...

1 709,00 zł

Warszawa

Bielany: magazyn 320m2 do wynajęcia

Warszawa - Do wynajęcia: Zewnętrzny magazyn o pow.320 m2 na parterze w hali magazynowo- biurowej na warszawskich Bielanach, w okolicach ul. Sokratesa, poleca Agencja Nieruchomości Property Office (tel...

10 240,00 zł

Warszawa

Bielany:magazyn 162,79m2 do wynajęcia

Warszawa - Do wynajęcia: magazyn o pow.162,79 m2 na parterze w hali magazynowo- biurowej na warszawskich Bielanach, w okolicach ul. Sokratesa, poleca Agencja Nieruchomości Property Office (tel. 731-32...

5 534,00 zł

Warszawa

Bielany: lokal magazynowy 104,56m2 do wynajęcia

Warszawa - Do wynajęcia: lokal magazynowy o pow.104,56 m2 na warszawskich Bielanach, parter, na terenie kompleksu magazynowo- biurowego w okolicach ul. Sokratesa,poleca Agencja Nieruchomości Property ...

3 764,00 zł

Warszawa

Bielany: lokal biurowy 182m2 do wynajęcia

Warszawa - Do wynajęcia: lokal biurowy o pow.182 m2 na 1 piętrze w budynku biurowym na terenie kompleksu na warszawskich Bielanach, w okolicach ul. i Wólki Węglowej, poleca Agencja Nieruchomości Prope...

1 092,00 zł

Warszawa

Bielany: lokal biurowy 168m2 do wynajęcia

Warszawa - Do wynajęcia: lokal biurowy o pow.168m2 na 1 piętrze w budynku biurowym na terenie kompleksu na warszawskich Bielanach, w okolicach ul. i Wólki Węglowej, poleca Agencja Nieruchomości Proper...

1 008,00 zł

Warszawa

Bielany: lokal biurowy 119m2 do wynajęcia

Warszawa - Do wynajęcia: lokal biurowy o pow.119 m2 na 1 piętrze w budynku biurowym na terenie kompleksu na warszawskich Bielanach, w okolicach ul. i Wólki Węglowej, poleca Agencja Nieruchomości Prope...

714,00 zł

Warszawa

Praga Północ: lokal biurowy 16,91m2 do wynajęcia

Warszawa - Do wynajęcia: 1-pokojowy lokal biurowy o pow.16,91 m2 na 2 piętrze w budynku biurowym na warszawskiej Pradze Północ, w okolicach ul. Targowej,poleca Agencja Nieruchomości Property Office (t...

980,00 zł

Warszawa

Praga Północ: lokal biurowy 18,99m2 do wynajęcia

Warszawa - Do wynajęcia: 1-pokojowy lokal biurowy o pow. 18,99 m2 na 2 piętrze budynku biurowego na warszawskiej Pradze Północ, w okolicach ul. Targowej,poleca Agencja Nieruchomości Property Office (t...

1 101,00 zł

Warszawa

Bielany: lokal biurowy 199m2 do wynajęcia

Warszawa - Do wynajęcia: lokal biurowy o pow.199 m2 na 1 piętrze w budynku biurowym na terenie kompleksu na warszawskich Bielanach, w okolicach ul. i Wólki Węglowej, poleca Agencja Nieruchomości Prope...

1 194,00 zł

Warszawa

Facebook
Facebook
Sprzedawanko.pl – serwis ogłoszeń Firmowanko.pl – katalog firm i usług Pracowanko.pl – serwis pracy Ugościmy.pl – serwis noclegów Nporta.pl – katalog firm i usług