📢
🔥 Świętujemy 10.000 Opublikowanych Ogłoszeń 🔔 z tej Okazji mamy 10 Promowań za Free na SPRZEDAWANKO.PL🔥

Jangrot - dom 212 m2 na dużej widokowej działce!

750 000,00 zł

{{ phone }}

{{ email }}

Dodane przez: braciasadurscy
braciasadurscy
Lokalizacja: Długa
Telefon: {{ phone }}
Agent: Wojciech Sudoł
E-mail: wojtek@sadurscy.pl
Telefon kom.: +48 509-907-533
Udostępnij:

Opublikowano:  | Wygaśnie:

Wyświetleń: 1 | ID ogłoszenia: 77186

Numer oferty: BS5-DS-307534-103

Szczegóły

Typ: Sprzedaż
Rynek: Wtórny
Pow. użytkowa: 230 m2
Pow. działki: 9900 m2
Pow. całkowita: 212 m2
Cena za m2 (zł): 3260.87
Liczba pokoi: 6
Liczba sypialni: 4
Liczba pięter: 2
Rodzaj zabudowy: jednorodzinny
Okna: PCV
Rok budowy: 1990
Ogrzewanie: ekogroszek
Własność: Własność
Dach: blacha
Szer. działki (m): 50
Data aktualizacji: 2026-04-22

Opis


Jangrot gm. Trzyciąż - dom wolnostojący o pow. 212 m2 na działce o pow. 99 ar.
Nieruchomość znajdująca się w Jangrocie gm. Trzyciąż składająca się z działek gruntu o pow. 99 ar. zabudowanych domem wolnostojącym oraz budynkiem gospodarczym .
Dom jednorodzinny wykonany w technologii tradycyjnej murowanej, został wybudowany w 1975 r. a następnie rozbudowany w 1996 r. Dom jest budynkiem dwukondygnacyjnym, podpiwniczonym z poddaszem wykorzystywanym do celów niemieszkalnych. Stropy żelbetowe (płyta o grubości 10 cm) wylewane na mokro, pokrycie dachu wykonane z blachy ocynkowanej, więźba dachowa w dobrym stanie technicznym.
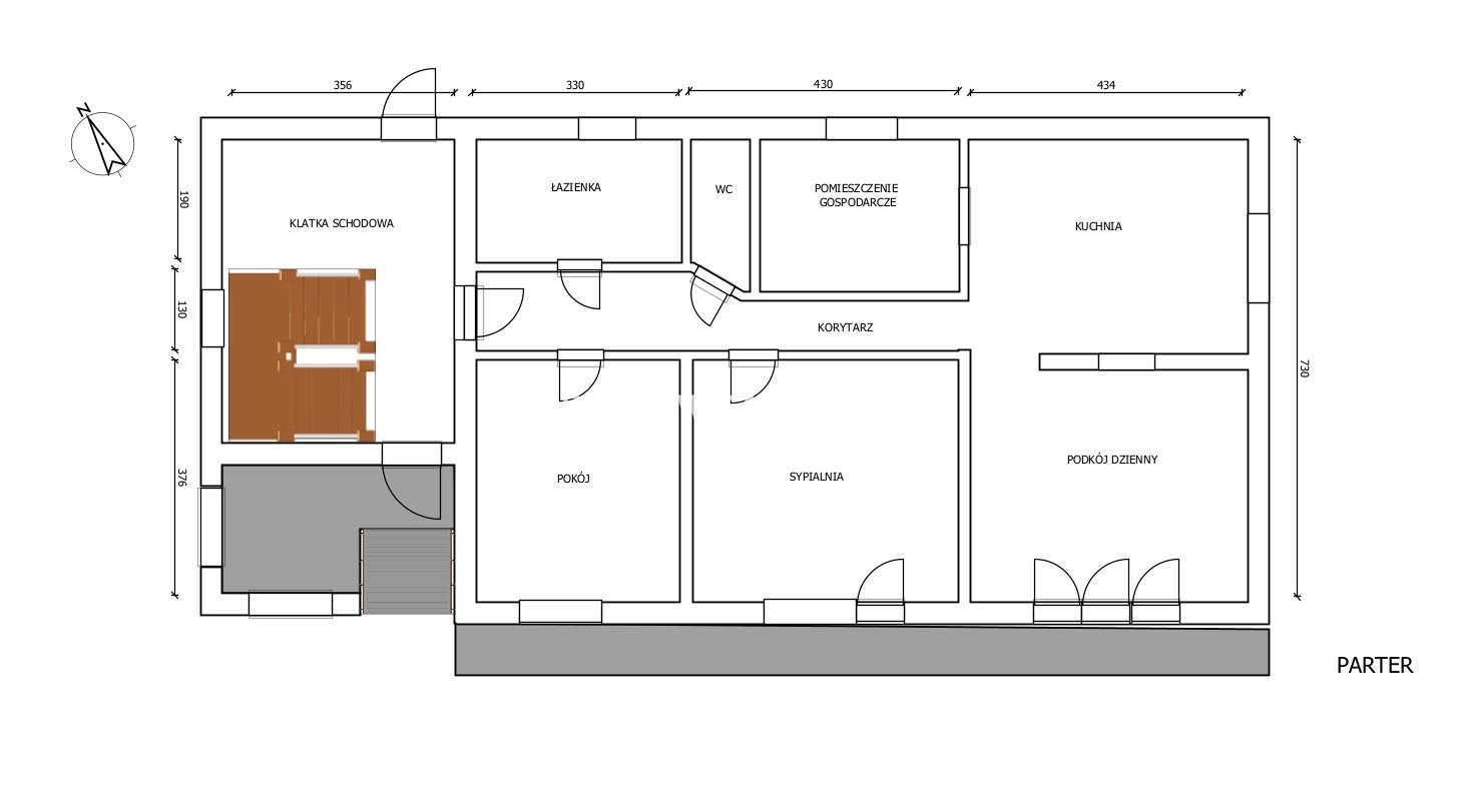
Parter o pow. użytkowej 108,30 m2 składa się z: 3 pokoi, kuchni, łazienki, przedpokoju oraz pomieszczenia gospodarczego.
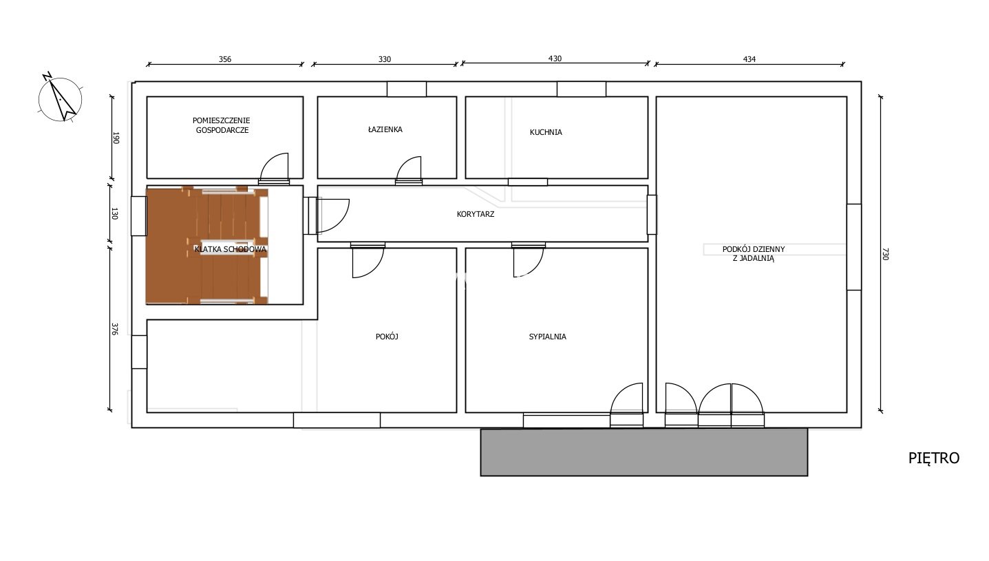
Na piętrze o pow. użytkowej 104,40 m2 wydzielono: salon z wyjściem na balkon, 2 pokoje, kuchnię, łazienkę, przedpokój oraz schowek.
Dom jest w pełni wyposażony i umeblowany, ze względu na przeprowadzone remonty wnętrza domu (parter - 2015 r., piętro - 2019 r.) stan techniczny pomieszczeń pozwala na zamieszkanie bez konieczności ponoszenia dodatkowych kosztów remontowych.
Układ pomieszczeń jest bardzo funkcjonalny, a ich rozmieszczenie na poszczególnych kondygnacjach umożliwia wykorzystanie budynku mieszkalnego zarówno jako jednorodzinnego jaki i dwurodzinnego. Media przyłączone do budynku: sieć wodna, energia elektryczna, system kanalizacji sanitarnej w oparciu o przydomową oczyszczalnię ścieków, centralne ogrzewanie i system zaopatrzenia w ciepłą wodę zasilane z pieca na paliwo stałe z podajnikiem (ekogroszek), dodatkowo na każdym poziomie mieszkalnym znajdują się elektryczne przepływowe podgrzewacze wody.
W skład zabudowy wchodzi również budynek gospodarczy murowany, dwukondygnacyjny o pow. użytkowej ok. 190 m2 wykorzystywany jako garaż oraz warsztat.

Nieruchomość gruntowa składa się z 4 działek ewidencyjnych, które są objęte miejscowym planem zagospodarowanie przestrzennego i są oznaczone jako tereny rolne (R1) z możliwością zabudowy zagrodowej. Większa część nieruchomości gruntowej jest położona na stoku o ekspozycji południowo-zachodniej , która gwarantuje maksymalne nasłonecznienie i dzięki temu może zostać wykorzystana do uprawy roślinnej wymagającej korzystnego nasłonecznienia (np. sad lub winnica ), bądź też na cele budowy urządzeń stanowiących pasywne źródło energii elektrycznej (np. farma fotowoltaiczna ).
Przedmiotem oferty jest nieruchomość gruntowa o powierzchni 99 arów, jednak jest możliwość nabycia gruntu o łącznej powierzchni 1,92 ha .

Nieruchomość posiada dostęp do drogi publicznej (droga gminna asfaltowa) położona jest w spokojnej okolicy, w bezpośrednim sąsiedztwie otwarte tereny zielone oraz luźna zabudowa jednorodzinna. Lokalizacja jest korzystnie skomunikowana, znajduje się 15 km od centrum Olkusza oraz 35 km od granicy Krakowa. Najbliższy sklep spożywczy w odległości 2000 m , przystanek komunikacji miejskiej na trasie Olkusz - Trzyciąż (linia A12 ) - 900 m , odległość do szkoły podstawowej i przedszkola samorządowego w Jangrocie 3 500 m .

Link do kompozycji mapowej.

Biuro pomaga bezpiecznie przeprowadzić transakcję.

Zapraszam do kontaktu i na prezentację nieruchomości.

Wojciech Sudoł
+48 509 907 533
wojtek@sadurscy.pl




Zobacz Wirtualny Spacer: https://sb360.online/nkgmvi


Oferta wysłana z systemu Galactica Virgo

Może Cię zainteresować:

Film z Youtube

Wirtualny spacer

Komentarze (0)

Nic nie znaleziono

Tylko zalogowani użytkownicy mogą dodawać komentarze

Mapa

Formularz kontaktowy

This site is protected by reCAPTCHA and the Google Privacy Policy and Terms of Service apply.

Podobne ogłoszenia

M-3 ul. Ruchu Oporu, Jastrzębie Zdrój.

M ieszkanie M3 - Jastrzębie-Zdrój, ul. Ruchu Oporu. Na sprzedaż mieszkanie z dwoma niezależnymi, nieprzejściowymi pokojami, usytuowane na IV piętrze w niskim, w czteropiętrowym bloku. ...

260 000,00 zł

Jastrzębie-Zdrój

Śródmieście: lokal biurowy na wynajem

Warszawa - Do wynajęcia: lokal biurowy o pow. 1806 m2 na 1 piętrze biurowca, w okolicach stacji metra Politechnika i ul. Mokotowskiej, na warszawskim Śródmieściu.poleca Agencja Nieruchomości Property ...

35 217,00 zł

Warszawa

Śródmieście: lokal biurowy 1040 m2 na wynajem

Warszawa - Do wynajęcia: lokal biurowy o pow. 1040 m2 na 5 piętrze biurowca, w okolicach stacji metra Politechnika i ul. Mokotowskiej, na warszawskim Śródmieściu.poleca Agencja Nieruchomości Property ...

20 280,00 zł

Warszawa

REZERWACJA! Atrakcyjne mieszkanie w Bielawie

Do sprzedania atrakcyjne mieszkanie z klimatyzacją na wysokim parterze w zadbanej kamienicy w Bielawie.Lokal składa się z salonu, sypialni, łazienki w WC oraz przestronnej kuchni o łącznej pow.52.60 m...

239 000,00 zł

Bielawa

Śródmieście: lokal biurowy 250 m2 na podnajem

Warszawa - Do podnajmu: lokal biurowy o pow. 250 m2 na 7 piętrze nowoczesnym biurowca na warszawskim Śródmieściu ,w okolicach Dworca Gdańskiego,poleca Agencja Nieruchomości Property Office (tel. 731-3...

4 875,00 zł

Warszawa

Śródmieście: llokal biurowy 632 m2 na wynajem

Warszawa - Do wynajęcia lokal biurowy o pow. 632 m2 w Centrum Warszawy, na 17 piętrze w nowoczesnym biurowcu niedaleko Dworca Gdańskiego, poleca Agencja Nieruchomości Property Office (tel. 731-321-117...

12 324,00 zł

Warszawa

Śródmieście: lokal biurowy 403,49m2 do podnajmu

Warszawa - Do podnajmu: lokal biurowy o pow. 403,49 m2 na 22 piętrze nowoczesnym biurowca na warszawskim Śródmieściu ,w okolicach Dworca Gdańskiego,poleca Agencja Nieruchomości Property Office (tel. 7...

7 465,00 zł

Warszawa

Ochota: lokal biurowy 368 m2 na wynajem

Do wynajęcia: lokal biurowy o pow. 368 m2 na parterze eleganckiego biurowca w okolicach ul. Mszczonowskiej, na warszawskiej Ochocie.poleca Agencja Nieruchomości Property Office (tel. 731-321-117, mail...

5 152,00 zł

Warszawa

Facebook
Facebook
Sprzedawanko.pl – serwis ogłoszeń Firmowanko.pl – katalog firm i usług Pracowanko.pl – serwis pracy Ugościmy.pl – serwis noclegów Nporta.pl – katalog firm i usług