📢
🔥 Świętujemy 10.000 Opublikowanych Ogłoszeń 🔔 z tej Okazji mamy 10 Promowań za Free na SPRZEDAWANKO.PL🔥

Dom w zabudowie bliźniaczej Olsza

2 800 000,00 zł

{{ phone }}

{{ email }}

Dodane przez: braciasadurscy
braciasadurscy
Lokalizacja: osiedle Oficerskie
Telefon: {{ phone }}
Agent: Robert Tendera
E-mail: robert@sadurscy.pl
Telefon kom.: +48 730-370-993
Udostępnij:

Opublikowano:  | Wygaśnie:

Wyświetleń: 1 | ID ogłoszenia: 77185

Numer oferty: BS5-DS-286268-205

Szczegóły

Typ: Sprzedaż
Rynek: Wtórny
Pow. użytkowa: 173.41 m2
Pow. działki: 741 m2
Pow. całkowita: 118.58 m2
Cena za m2 (zł): 16146.7
Liczba pokoi: 4
Liczba sypialni: 2
Liczba pięter: 2
Rodzaj zabudowy: bliźniak
Materiał budynku: beton, pustak
Okna: częściowo wymienione
Rok budowy: 1968
Ogrzewanie: piec dwufunkcyjny
Własność: Własność
Dach: blacha
Szer. działki (m): 20
Data aktualizacji: 2026-04-22

Opis


Dom w zabudowie bliźniaczej na działce o pow. 741 m 2 , w rewelacyjnej lokalizacji, na Olszy.

Oferujemy na sprzedaż segment domu w zabudowie bliźniaczej na osiedlu oficerskim. Dom wybudowany został w 1968 roku, Dom został docieplony styropianem. Dach płaski, kryty blachą. Okna częściowo wymienione (PCV). W 2005 r. wymieniona instalacja centralnego ogrzewania. Ogrzewany piecem gazowym dwufunkcyjnym, kondensacyjnym. Do domu doprowadzona sieć ogrzewania i ciepłej wody z MPEC (możliwość podłączenia). Kanalizacja miejska, gaz z sieci miejskiej.
Powierzchnia domu wraz z piwnicą wynosi 173 m 2 . Powierzchnia użytkowa (mieszkalna) na dwóch kondygnacjach wynosi 118,58 m 2 , z czego poziom parteru - 63,34 m 2 ; poziom 1 piętra - 55,24 m 2 .

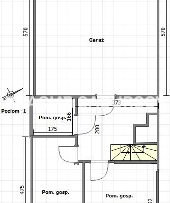
Dom składa się z dwóch niezależnych kondygnacji, oraz piwnicy z garażem. W budynku znajdują się cztery pokoje, dwie kuchnie i dwie łazienki. Pokoje są przestronne, ustawne wyłożone parkietem na parterze oraz panelami na piętrze. W kuchniach jak i łazienkach terakota. Na poziomie piwnic znajduję się duży garaż o pow. 30,70 m 2 oraz pomieszczenia gospodarcze. Budynek położony jest na ogrodzonej i zagospodarowanej działce o powierzchni 741 m 2 , krótszym bokiem ok 20m przylegającym do drogi.
Nieruchomość znajduje się w obszarze objętym aktualnym planem zagospodarowania przestrzennego, w terenie przeznaczonym pod zabudowę jednorodzinną i bliźniaczą. Wskaźnik intensywności zabudowy w przedziale 0,1-0,9. Wysokość budynku przy dachu płaskim wynosi do 11 m.

ZAPRASZAM NA PREZENTACJĘ !
Szczegóły oferty:
+48 730 370 993


Zobacz Wirtualny Spacer: https://tour.feelestate.com/view/fullscreen/id/VVDLT


Oferta wysłana z systemu Galactica Virgo

Może Cię zainteresować:

Film z Youtube

Wirtualny spacer

Komentarze (0)

Nic nie znaleziono

Tylko zalogowani użytkownicy mogą dodawać komentarze

Mapa

Formularz kontaktowy

This site is protected by reCAPTCHA and the Google Privacy Policy and Terms of Service apply.

Podobne ogłoszenia

M-3 ul. Ruchu Oporu, Jastrzębie Zdrój.

M ieszkanie M3 - Jastrzębie-Zdrój, ul. Ruchu Oporu. Na sprzedaż mieszkanie z dwoma niezależnymi, nieprzejściowymi pokojami, usytuowane na IV piętrze w niskim, w czteropiętrowym bloku. ...

260 000,00 zł

Jastrzębie-Zdrój

Śródmieście: lokal biurowy na wynajem

Warszawa - Do wynajęcia: lokal biurowy o pow. 1806 m2 na 1 piętrze biurowca, w okolicach stacji metra Politechnika i ul. Mokotowskiej, na warszawskim Śródmieściu.poleca Agencja Nieruchomości Property ...

35 217,00 zł

Warszawa

Śródmieście: lokal biurowy 1040 m2 na wynajem

Warszawa - Do wynajęcia: lokal biurowy o pow. 1040 m2 na 5 piętrze biurowca, w okolicach stacji metra Politechnika i ul. Mokotowskiej, na warszawskim Śródmieściu.poleca Agencja Nieruchomości Property ...

20 280,00 zł

Warszawa

REZERWACJA! Atrakcyjne mieszkanie w Bielawie

Do sprzedania atrakcyjne mieszkanie z klimatyzacją na wysokim parterze w zadbanej kamienicy w Bielawie.Lokal składa się z salonu, sypialni, łazienki w WC oraz przestronnej kuchni o łącznej pow.52.60 m...

239 000,00 zł

Bielawa

Śródmieście: lokal biurowy 250 m2 na podnajem

Warszawa - Do podnajmu: lokal biurowy o pow. 250 m2 na 7 piętrze nowoczesnym biurowca na warszawskim Śródmieściu ,w okolicach Dworca Gdańskiego,poleca Agencja Nieruchomości Property Office (tel. 731-3...

4 875,00 zł

Warszawa

Śródmieście: llokal biurowy 632 m2 na wynajem

Warszawa - Do wynajęcia lokal biurowy o pow. 632 m2 w Centrum Warszawy, na 17 piętrze w nowoczesnym biurowcu niedaleko Dworca Gdańskiego, poleca Agencja Nieruchomości Property Office (tel. 731-321-117...

12 324,00 zł

Warszawa

Śródmieście: lokal biurowy 403,49m2 do podnajmu

Warszawa - Do podnajmu: lokal biurowy o pow. 403,49 m2 na 22 piętrze nowoczesnym biurowca na warszawskim Śródmieściu ,w okolicach Dworca Gdańskiego,poleca Agencja Nieruchomości Property Office (tel. 7...

7 465,00 zł

Warszawa

Ochota: lokal biurowy 368 m2 na wynajem

Do wynajęcia: lokal biurowy o pow. 368 m2 na parterze eleganckiego biurowca w okolicach ul. Mszczonowskiej, na warszawskiej Ochocie.poleca Agencja Nieruchomości Property Office (tel. 731-321-117, mail...

5 152,00 zł

Warszawa

Facebook
Facebook
Sprzedawanko.pl – serwis ogłoszeń Firmowanko.pl – katalog firm i usług Pracowanko.pl – serwis pracy Ugościmy.pl – serwis noclegów Nporta.pl – katalog firm i usług