📢
🔥 Świętujemy 10.000 Opublikowanych Ogłoszeń 🔔 z tej Okazji mamy 10 Promowań za Free na SPRZEDAWANKO.PL🔥

Nowa Pradolina mieszkaniez 2 poziomowe

651 955,00 zł

{{ phone }}

{{ email }}

Dodane przez: braciasadurscy
braciasadurscy
Lokalizacja: Skrzyszowska
Telefon: {{ phone }}
Agent: Marek Wawrzeń
E-mail: marek3@sadurscy.pl
Telefon kom.: +48 798-352-683
Udostępnij:

Opublikowano:  | Wygaśnie:

Wyświetleń: 1 | ID ogłoszenia: 77064

Numer oferty: BS5-MS-310459-25

Szczegóły

Typ: Sprzedaż
Rynek: Pierwotny
Pow. użytkowa: 72.52 m2
Pow. całkowita: 72.52 m2
Cena za m2 (zł): 8990
Liczba pokoi: 4
Liczba sypialni: 3
Rodzaj zabudowy: apartamentowiec
Piętro: 0
Liczba pięter: 2
Materiał budynku: silikat
Okna: PCV 3 szyby, ciepły montaż
Rok budowy: 2025
Ogrzewanie: piec dwufunkcyjny
Stan wykończenia: deweloperski
Własność: Odrębna własność lokalu
Nr licencji: 26458
Data aktualizacji: 2026-04-22

Opis






Rodzinne 4 pokoje z dużym ogródkiem na nowoczesnym osiedlu o pow. 72,52 m² | Tarnów, ul. Skrzyszowska, Osiedle „Nowa Pradolina”

Przedsprzedaż ruszyła!

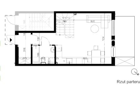
Na sprzedaż przestronne, dwupoziomowe mieszkanie o powierzchni 72,52 m², położone na parterze i 1. piętrze nowoczesnego osiedla „Nowa Pradolina” w Tarnowie. Do mieszkania przynależy prywatny ogródek z komórką narzędziową o powierzchni 35,90 m² , idealny do rekreacji i odpoczynku.

Rozkład pomieszczeń:

Parter:


Salon z aneksem kuchennym: 25,62 m²
Łazienka: 4,05 m²
Wiatrołap i przedpokój
Ogródek z komórką narzędziową: 35,90 m²


Piętro:


Pokój 1: 11,24 m²
Pokój 2: 8,62 m²
Pokój 3: 7,57 m²
Druga łazienka: 3,31 m²
Przedpokój


Najważniejsze atuty:


Miejsce postojowe w cenie
Ogrzewanie podłogowe z piecem gazowym dwufunkcyjnym
Trzyszybowe okna zapewniające doskonałą izolację
Możliwość montażu instalacji fotowoltaicznej
Budynki w technologii tradycyjnej, ściany z bloczków silikatowych, ocieplone wełną mineralną lub styropianem
Możliwość wykończenia mieszkania „pod klucz” zgodnie z prezentowanym standardem
Nowoczesne, ogrodzone i monitorowane osiedle z oświetleniem i strefą rekreacyjną nad strumieniem
Zachowany starodrzew, nowe nasadzenia, ogrody deszczowe wzdłuż chodników


Lokalizacja i okolica:


Zielona, spokojna okolica w sąsiedztwie terenów rekreacyjnych
Szybki dojazd do centrum Tarnowa oraz autostrady A4
Centrum usług na terenie osiedla - większość spraw załatwisz bez wychodzenia poza osiedle
Dla rodzin i dzieci: plac zabaw, ścieżki spacerowe i rowerowe w środku lasku
Szybki dojazd do centrum Tarnowa (8 min), dworca PKP (12 min) i Krakowa (60 min)


Dodatkowe informacje:


Planowany termin zakończenia I etapu inwestycji: III kwartał 2026 r.
Pomoc doradcy kredytowego na miejscu


Zapraszamy do kontaktu i na prezentację!

Nie przegap okazji - skorzystaj z oferty przedsprzedażowej i wybierz wymarzone mieszkanie na zielonym, nowoczesnym osiedlu w Tarnowie.

Szczegóły oferty:
798 352 683
marek3@sadurscy.pl





Pośrednik odpowiedzialny zawodowo za wykonanie umowy pośrednictwa: Marek Wawrzeń (licencja nr: 26458)


Oferta wysłana z systemu Galactica Virgo

Może Cię zainteresować:

Komentarze (0)

Nic nie znaleziono

Tylko zalogowani użytkownicy mogą dodawać komentarze

Mapa

Formularz kontaktowy

This site is protected by reCAPTCHA and the Google Privacy Policy and Terms of Service apply.

Podobne ogłoszenia

Śródmieście: lokal biurowy na podnajem

Warszawa - Do podnajmu: lokal biurowy o pow. 250 m2 na 7 piętrze nowoczesnym biurowca na warszawskim Śródmieściu ,w okolicach Dworca Gdańskiego,poleca Agencja Nieruchomości Property Office (tel. 731-3...

4 875,00 zł

Warszawa

Śródmieście: llokal biurowy na wynajem

Warszawa - Do wynajęcia lokal biurowy o pow. 632 m2 w Centrum Warszawy, na 17 piętrze w nowoczesnym biurowcu niedaleko Dworca Gdańskiego, poleca Agencja Nieruchomości Property Office (tel. 731-321-117...

12 324,00 zł

Warszawa

Śródmieście: lokal biurowy do podnajmu

Warszawa - Do podnajmu: lokal biurowy o pow. 403,49 m2 na 22 piętrze nowoczesnym biurowca na warszawskim Śródmieściu ,w okolicach Dworca Gdańskiego,poleca Agencja Nieruchomości Property Office (tel. 7...

7 465,00 zł

Warszawa

Ochota: lokal biurowy 368 m2 na wynajem

Do wynajęcia: lokal biurowy o pow. 368 m2 na parterze eleganckiego biurowca w okolicach ul. Mszczonowskiej, na warszawskiej Ochocie.poleca Agencja Nieruchomości Property Office (tel. 731-321-117, mail...

5 152,00 zł

Warszawa

Śródmieście: lokal biurowy 924 m2 na wynajem

Warszawa -Do wynajęcia: lokal biurowy o pow. 924 m2 na 3 piętrze nowoczesnym biurowca na warszawskim Śródmieściu ,w okolicach Dworca Gdańskiego,poleca Agencja Nieruchomości Property Office (tel. 731-3...

18 018,00 zł

Warszawa

Ochota: lokal biurowy 700,23 m2 na wynajem

Do wynajęcia lokal biurowy o pow. 700,23 m2 na 1 piętrze eleganckiego biurowca w okolicach ul. Mszczonowskiej, na warszawskiej Ochocie.poleca Agencja Nieruchomości Property Office (tel. 731-321-117, m...

9 453,00 zł

Warszawa

Wola: lokal biurowy 519m2 na wynajem

Warszawa - Do wynajęcia: lokal biurowy o pow. 519 m2 na 3 piętrze budynku biurowego na warszawskiej Woli, w okolicach ul. Obozowej i stacji metro Młynów.poleca Agencja Nieruchomości Property Office (t...

33 216,00 zł

Warszawa

Warszawa Centrum-lokal biurowy 259m2 na wynajem

Warszawa - Do wynajęcia: moduł biurowy o pow. 259 m2 na 4 piętrze w kameralnym budynku biurowym na warszawskim Śródmieściu, w okolicach ul. Marszałkowskiej i Wilczej, poleca Property Office (tel. 731-...

5 698,00 zł

Warszawa

Facebook
Facebook
Sprzedawanko.pl – serwis ogłoszeń Firmowanko.pl – katalog firm i usług Pracowanko.pl – serwis pracy Ugościmy.pl – serwis noclegów Nporta.pl – katalog firm i usług