📢
🔥 Świętujemy 10.000 Opublikowanych Ogłoszeń 🔔 z tej Okazji mamy 10 Promowań za Free na SPRZEDAWANKO.PL🔥

Śródmieście: lokal biurowo-usługowy na wynajem

21 000,00 zł

{{ phone }}

{{ email }}

Dodane przez: PropertyOffice
Lokalizacja: Marszałkowska
Telefon: {{ phone }}
Agent: Property Office Sp. o.o.
E-mail: katarzyna@propertyoffice.pl
Telefon kom.:
Udostępnij:

Opublikowano:  | Wygaśnie:

Wyświetleń: 2 | ID ogłoszenia: 76665

Numer oferty: 361448

Szczegóły

Typ: Wynajem
Rynek: Nie
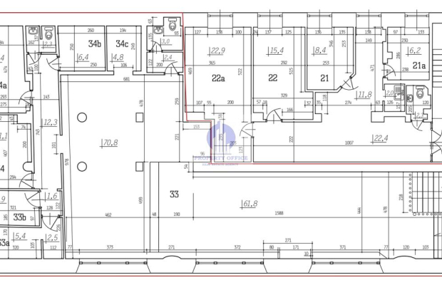
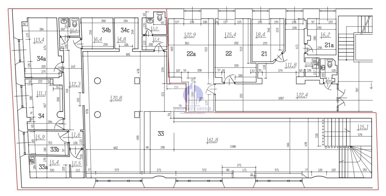
Pow. użytkowa: 255.2 m2
Piętro: 1
Liczba pięter: 6
Rok budowy: 1960
Ogrzewanie: miejskie
Stan wykończenia: bardzo dobry
Własność: własność
Telefon biuro: 731321117
Nr licencji: 22020
Data aktualizacji: 2026-04-20 12:52:04
Inwestycja:
Typ lokalu: biura

Opis

Warszawa - Do wynajęcia: lokal biurowo-usługowy o pow.255,20 m2 na antresoli w biurowcu, w centrum Warszawy, w okolicach stacji metra Świętokrzyska,

poleca Agencja Nieruchomości Property Office (tel. 731-321-117, mail: katarzyna@propertyoffice.pl)

-----------Bez prowizji od najemcy------------

Oferowany lokal znajduje się na dwóch poziomach:

-parter: niezależne wejście do lokalu, bezpośrednio z chodnika,

-parter: właściwy lokal,

Poziomy są połączone wewnętrznymi szerokimi schodami.

Mieszany układ powierzchni: open space + gabinety + pomieszczenia socjalne.

Lokal sprawdzi się zarówno na działalność typowo biurową, usługi, sklep czy klub.

Optymalny dostęp dziennego światła do lokalu.

Całodobowy dostęp do lokalu.

Powierzchnia wymaga dostosowania na potrzeby nowego najemcy, koszt aranżacji lokalu jest po stronie najemcy.

Wynajmujący wyraża zgodę na sprzedaż alkoholu w lokalu.

Na miesięczne koszty najmu netto składają się:

-czynsz: 21000 PLN,

-koszty eksploatacyjne: 10 PLN/m2,

Razem netto: 23552 PLN,

--zuzycie mediów

Spersonalizowaną ofertę najmu klient otrzymuje po obejrzeniu powierzchni.

Internet:

Dla zainteresowanych Najemców istnieje możliwość podpisania umowy na korzystanie z internetu: światłowód UPC na budynku.

Usługa jest płatna dodatkowo, poza opłatami za lokal.

Najemcy mają do dyspozycji salę konferencyjną na 30 osób.

Parking:

Naziemne miejsca parkingowe na dziedzińcu obiektu.

Za 1 miejsce 615 zł brutto i 140 zł kaucja zwrotna za pilota.

Umowa:

-czas nieokreślony

-kaucja 2-3 miesiące w zależności od długości okresu wypowiedzenia.

Opis budynku:

6-kondygnacyjny budynek biurowo-usługowy.

Sąsiedztwo innych firm oraz dostęp bezpośrednio od ulicy stwarzają doskonałe warunki do ulokowania tu zarówno małych, jak i średnich wielkości firm.

Zalety lokalizacji:

Prestiżowa lokalizacja w Centrum Warszawy tuż przy stacji metra-Świętokrzyska.

Doskonała lokalizacja pod względem komunikacji (2 linie metra, tramwaje, autobusy, 6 min-Dworzec Centralny PKP i Warszawa Śródmieście.

Do podanych cen należy doliczyć podatek VAT w wysokości 23 %

Zdjęcia pokazują ogólny standard budynku.

Zapraszam na spotkanie w celu obejrzenia lokalu

Zachęcam do kontaktu telefonicznego pod numerem: 731-321-117

Po więcej ofert warszawskich biur, magazynów czy lokali usługowych do wynajęcia, zapraszam na stronę:

https://www.propertyoffice.pl/

Treść niniejszego ogłoszenia nie stanowi oferty handlowej w rozumieniu art.66 1 kodeksu cywilnego oraz innych właściwych przepisów prawnych.

Treść niniejszego ogłoszenia nie stanowi oferty handlowej w rozumieniu art.66 1 kodeksu cywilnego oraz innych właściwych przepisów prawnych.

Oferta wysłana z programu IMO dla biur nieruchomości

Może Cię zainteresować:

Komentarze (0)

Nic nie znaleziono

Tylko zalogowani użytkownicy mogą dodawać komentarze

Mapa

Formularz kontaktowy

This site is protected by reCAPTCHA and the Google Privacy Policy and Terms of Service apply.

Podobne ogłoszenia

Hala Produkcyjno-Magazynowa Jastrowie, NEGOCJACJA

OOFERTA SPRZEDAŻY HALI PRODUKCYJNO-MAGAZYNOWEJ - JASTROWIENa sprzedaż hala produkcyjno-magazynowa zlokalizowana w Jastrowiu, idealna dla przedsiębiorców poszukujących funkcjonalnej przestrzeni do prow...

690 000,00 zł

Wielkopolskie

48 m² na Twój biznes przy Galerii ATUT - gotowy lokal handlowo-usługowy! Na sprzedaż oferujemy lokal handlowo-usługowy o p

48 m² na Twój biznes przy Galerii ATUT - gotowy lokal handlowo-usługowy! Na sprzedaż oferujemy lokal handlowo-usługowy o powierzchni 48 m², usytuowany przy parkingu tętniącej życiem Galerii ...

147 000,00 zł

Kraków

Dwa drewniane domy z czterema lokalami

Dwa drewniane domy z czterema lokalami mieszkalnymi w Łapszach Wyżnych Oferujemy na sprzedaż dwa budynki mieszkalne , jednorodzinne, wolnostojące w Łapszach Wyżnych. Domy są parterowe z uż...

2 449 000,00 zł

Łapsze Wyżne

Wyjątkowy obiekt mieszkalno - usługowy o pow. 820 m2 w Iwkowej Oferujemy Państwu unikalną nieruchomość o charakterze miesz

Wyjątkowy obiekt mieszkalno - usługowy o pow. 820 m2 w Iwkowej Oferujemy Państwu unikalną nieruchomość o charakterze mieszkalno-usługowym o powierzchni ok. 820 m² , położoną w malowniczej m...

4 590 000,00 zł

Iwkowa

Kęty, obręb Bielany, powiat oświęcimski

Kęty, obręb Bielany, powiat oświęcimski, województwo małopolskie. Na sprzedaż nieruchomość gruntowa zabudowana o powierzchni 3,1442 ha, położona w Bielanach, mieszcząca się na działce zabudowanej...

2 200 000,00 zł

Oświęcimski

Hala mag. - prod. pow. 860 m2 w centrum Proszowic!

Hala magazynowa o pow. 865 m2 - Proszowice ul. Nowa Do wynajęcia hala o przeznaczeniu magazynowo-produkcyjnym znajdująca się na trzeciej kondygnacji budynku handlowo-magazynowego zlokalizowanego...

8 500,00 zł

Proszowice

Warsztat o pow. 450 m2 w centrum Proszowic!

Hala warsztatowa o pow. 450 m2 - Proszowice ul. Nowa Do wynajęcia hala warsztatowa znajdująca się na parterze budynku handlowo-magazynowego zlokalizowanego w centrum Proszowic. Hala posiada trz...

4 500,00 zł

Proszowice

LOKAL USŁUGOWY HANDLOWY MNIKÓW PARKING 82M2

LOKAL USŁUGOWO-HANDLOWO-MAGAZYNOWY / DO WYNAJĘCIA / 82 M2 / Z POTENCJAŁEM NA RÓŻNORODNE DZIAŁALNOŚCI / CENTRUM MNIKOWA / PARTER / PARKING KTO MOŻE WYNAJĄĆ ❓ Lokal nadaje się na absolut...

3 000,00 zł

Mników

Facebook
Facebook
Sprzedawanko.pl – serwis ogłoszeń Firmowanko.pl – katalog firm i usług Pracowanko.pl – serwis pracy Ugościmy.pl – serwis noclegów Nporta.pl – katalog firm i usług