📢
🔥 Świętujemy 10.000 Opublikowanych Ogłoszeń 🔔 z tej Okazji mamy 10 Promowań za Free na SPRZEDAWANKO.PL🔥

2-pokojowe mieszkanie na Sołtysowicach

639 000,00 zł

{{ phone }}

{{ email }}

Dodane przez: HomePartner
HomePartner
Lokalizacja: Rafała Wojaczka
Telefon: {{ phone }}
Agent: Monika Łabęska - Cioch
E-mail: biuro@home-partner.com.pl
Telefon kom.: 536 496 163
Udostępnij:

Opublikowano:  | Wygaśnie:

Wyświetleń: 2 | ID ogłoszenia: 76636

Numer oferty: 20844

Szczegóły

Typ: Sprzedaż
Pow. użytkowa: 44.91 m2
Liczba pokoi: 2
Liczba sypialni: 1
Rodzaj zabudowy: blok
Piętro: 3
Liczba pięter: 5
Materiał budynku: silikat
Okna: PCV
Podłogi: beton
Rok budowy: 2025
Ogrzewanie: miejskie
Stan wykończenia: do wykończenia
Własność: własność
Telefon biuro:
Nr licencji: 23243
Data aktualizacji: 2026-04-20 11:43:40

Opis

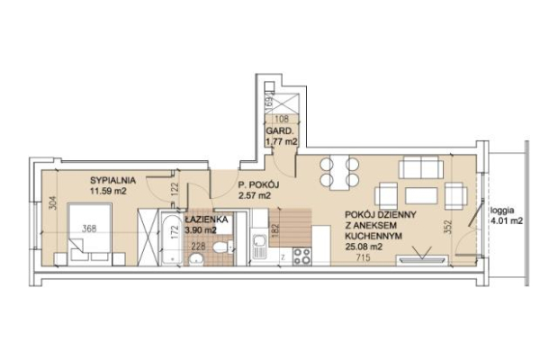
Na sprzedaż 2-pokojowe mieszkanie o powierzchni 44,91m2, znajdujące się trzecim piętrze nowej inwestycji deweloperskiej zlokalizowanej na wrocławskich Sołtysowicach.

Zakończenie budowy III Q 2025 r.

Rynek pierwotny, bez PCC i prowizji

Mieszkanie składa się z:

- salonu z aneksem kuchennym 25,08 m2

- sypialni 11,59 m2

- łazienki 3,90 m2

- przedpokoju 2,57 m2

- garderoby 1,77 m2

Mieszkanie dwustronne z ekspozycją północno-zachodnią i południowo-wschodnią.

OSIEDLE

Inwestycja to 5-piętrowe budynki mieszkaniowe utrzymane w neutralnych barwach - bieli oraz grafitu z detalami w piaskowym odcieniu. Dla mieszkańców dostępne są miejsca postojowe na terenie naziemnym inwestycji oraz w garażu podziemnym. Na terenie inwestycji znajdują się alejki spacerowe, plac zabaw oraz siłownia zewnętrzna.

LOKALIZACJA

Inwestycja zlokalizowana jest na wrocławskich Sołtysowicach w odległości 5 km od Rynku. W niewielkiej odległości od inwestycji znajduje się pełne zaplecze handlowe, usługowe, edukacyjne oraz rozrywkowe. W okolicy Las Sołtysowicki oraz wały nad Widawą - idealne miejsca do aktywnego wypoczynku na powietrzu.

Mieszkania atrakcyjne zarówno dla par, jak i rodzin z dziećmi.

KOMUNIKACJA

- 260 m - przystanek autobusowy Sołtysowicka - 1,4 km - stacja kolejowa Wrocław Sołtysowice

Możliwość nabycia miejsca postojowego:

- naziemne 44 000 zł

- w garażu podziemnym 59 000 zł

Komórka lokatorska: 4 500zł/m2

W ofercie również inne mieszkania na tym osiedlu.

Zapraszamy do kontaktu: +48 889 759 863

Feel free to contact us, talk and see the apartment. For more information please call us +48 889 759 863.

Por favor contáctenos para conocer más sobre la oferta y ver el apartamento. Podemos ayudar con todos los trámites. Para más información por favor llámanos +48 889 759 863.

Treść niniejszego ogłoszenia nie stanowi oferty handlowej w rozumieniu Kodeksu Cywilnego.

Oferta wysłana z programu IMO dla biur nieruchomości

Może Cię zainteresować:

Komentarze (0)

Nic nie znaleziono

Tylko zalogowani użytkownicy mogą dodawać komentarze

Mapa

Formularz kontaktowy

This site is protected by reCAPTCHA and the Google Privacy Policy and Terms of Service apply.

Podobne ogłoszenia

Hala Produkcyjno-Magazynowa Jastrowie, NEGOCJACJA

OOFERTA SPRZEDAŻY HALI PRODUKCYJNO-MAGAZYNOWEJ - JASTROWIENa sprzedaż hala produkcyjno-magazynowa zlokalizowana w Jastrowiu, idealna dla przedsiębiorców poszukujących funkcjonalnej przestrzeni do prow...

690 000,00 zł

Wielkopolskie

48 m² na Twój biznes przy Galerii ATUT - gotowy lokal handlowo-usługowy! Na sprzedaż oferujemy lokal handlowo-usługowy o p

48 m² na Twój biznes przy Galerii ATUT - gotowy lokal handlowo-usługowy! Na sprzedaż oferujemy lokal handlowo-usługowy o powierzchni 48 m², usytuowany przy parkingu tętniącej życiem Galerii ...

147 000,00 zł

Kraków

Dwa drewniane domy z czterema lokalami

Dwa drewniane domy z czterema lokalami mieszkalnymi w Łapszach Wyżnych Oferujemy na sprzedaż dwa budynki mieszkalne , jednorodzinne, wolnostojące w Łapszach Wyżnych. Domy są parterowe z uż...

2 449 000,00 zł

Łapsze Wyżne

Wyjątkowy obiekt mieszkalno - usługowy o pow. 820 m2 w Iwkowej Oferujemy Państwu unikalną nieruchomość o charakterze miesz

Wyjątkowy obiekt mieszkalno - usługowy o pow. 820 m2 w Iwkowej Oferujemy Państwu unikalną nieruchomość o charakterze mieszkalno-usługowym o powierzchni ok. 820 m² , położoną w malowniczej m...

4 590 000,00 zł

Iwkowa

Kęty, obręb Bielany, powiat oświęcimski

Kęty, obręb Bielany, powiat oświęcimski, województwo małopolskie. Na sprzedaż nieruchomość gruntowa zabudowana o powierzchni 3,1442 ha, położona w Bielanach, mieszcząca się na działce zabudowanej...

2 200 000,00 zł

Oświęcimski

Hala mag. - prod. pow. 860 m2 w centrum Proszowic!

Hala magazynowa o pow. 865 m2 - Proszowice ul. Nowa Do wynajęcia hala o przeznaczeniu magazynowo-produkcyjnym znajdująca się na trzeciej kondygnacji budynku handlowo-magazynowego zlokalizowanego...

8 500,00 zł

Proszowice

Warsztat o pow. 450 m2 w centrum Proszowic!

Hala warsztatowa o pow. 450 m2 - Proszowice ul. Nowa Do wynajęcia hala warsztatowa znajdująca się na parterze budynku handlowo-magazynowego zlokalizowanego w centrum Proszowic. Hala posiada trz...

4 500,00 zł

Proszowice

LOKAL USŁUGOWY HANDLOWY MNIKÓW PARKING 82M2

LOKAL USŁUGOWO-HANDLOWO-MAGAZYNOWY / DO WYNAJĘCIA / 82 M2 / Z POTENCJAŁEM NA RÓŻNORODNE DZIAŁALNOŚCI / CENTRUM MNIKOWA / PARTER / PARKING KTO MOŻE WYNAJĄĆ ❓ Lokal nadaje się na absolut...

3 000,00 zł

Mników

Facebook
Facebook
Sprzedawanko.pl – serwis ogłoszeń Firmowanko.pl – katalog firm i usług Pracowanko.pl – serwis pracy Ugościmy.pl – serwis noclegów Nporta.pl – katalog firm i usług