📢
🔥 Świętujemy 10.000 Opublikowanych Ogłoszeń 🔔 z tej Okazji mamy 10 Promowań za Free na SPRZEDAWANKO.PL🔥

Lokal 265 m2, Wrocław, Centrum

13 780,00 zł

{{ phone }}

{{ email }}

Dodane przez: HomePartner
HomePartner
Lokalizacja: Tęczowa
Telefon: {{ phone }}
Agent: Monika Łabęska - Cioch
E-mail: biuro@home-partner.com.pl
Telefon kom.: 536 496 163
Udostępnij:

Opublikowano:  | Wygaśnie:

Wyświetleń: 1 | ID ogłoszenia: 76603

Numer oferty: 20892

Szczegóły

Typ: Wynajem
Pow. użytkowa: 265 m2
Piętro: 3
Liczba pięter: 3
Materiał budynku: silikat
Rok budowy: 2006
Ogrzewanie: miejskie
Stan wykończenia: bardzo dobry
Własność: własność
Telefon biuro:
Nr licencji: 23243
Data aktualizacji: 2026-04-20 14:18:44
Typ lokalu: handel i usługi

Opis

Lokal, Centrum, Wrocław,

Oferuję do wynajęcia lokal biurowo-handlowo-usługowy o powierzchni 265 m2 zlokalizowany na trzecim piętrze nowoczesnego budynku przy ul. Tęczowej we Wrocławiu.

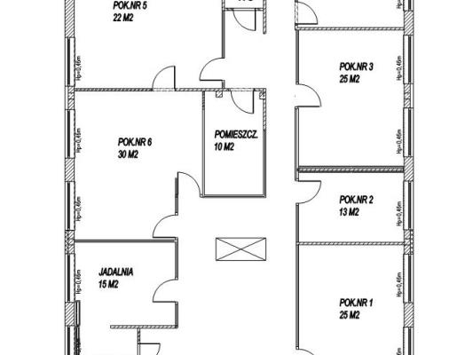
UKŁAD POMIESZCZEŃ

Struktura lokalu o powierzchni 265m2 obejmuje:

- powierzchnię biurową (10m2+13m2+20m2+22m2+25m2 x 2+30m2 )

- kuchnię 8m2

- jadalnię 15 m2 - toalety (5m2+9m2)

- komunikację 83 m2

Istnieje również możliwość wynajęcia pomieszczenia na serwerownię lub magazynek.

STANDARD I WYPOSAŻENIE

Lokal w bardzo dobrym stanie z ogrzewaniem miejskim oraz klimatyzacją. Łącze światłowodowe, monitoring 24h, system alarmowy, portiernia. Jest to jedyny lokal na kondygnacji co jest jego atutem.

CZYNSZ/ OPŁATY

Czynsz najmu: 52zł netto/m2/mc

Opłaty eksploatacyjne: 29,50 zł netto/m2/mc Udział w częściach wspólnych (30,3m2): 30 zł/mc netto/m2/mc

2 miejsca parkingowe płatne po 320 zł netto/miejsce (1 zawarte w czynszu)

Dodatkowo liczniki energii elektrycznej + woda i ścieki wg ilości osób.

Umowa na czas nieokreślony z 6 miesięcznym okresem wypowiedzenia lub na czas określony co najmniej 2 lata i przekształcenie umowy na czas nieokreślony z 3 miesięcznym okresem wypowiedzenia.

DLA KOGO

Lokal gotowy do rozpoczęcia działalności: biuro, usługi, księgowość i wiele innych wedle potrzeb przyszłego Najemcy.

Możliwa prezentacja online.

LOKALIZACJA I KOMUNIKACJA

Wrocław ul. Tęczowa. Dystans pieszy do Wrocławskiego Rynku. W pobliżu pełne zaplecze komunikacyjne (tramwaje i autobusy), handlowo-usługowe i edukacyjne. Na wyciągnięcie ręki przystanki tramwajowe i autobusowe, restauracje, Hala Świebodzki, sklepy, usługi.

ZALETY OFERTY:

-lokal w nowoczesnym budynku

-lokalizacja w centrum miasta

-wysokość 300 cm

-doskonała infrastruktura

Zapraszam do rozmów i obejrzenia mieszkania. Tel. 889 759 863

For more information please call us +48 889 759 863

Treść niniejszego ogłoszenia nie stanowi oferty handlowej w rozumieniu Kodeksu Cywilnego.

Oferta wysłana z programu IMO dla biur nieruchomości

Może Cię zainteresować:

Komentarze (0)

Nic nie znaleziono

Tylko zalogowani użytkownicy mogą dodawać komentarze

Mapa

Formularz kontaktowy

This site is protected by reCAPTCHA and the Google Privacy Policy and Terms of Service apply.

Podobne ogłoszenia

Hala Produkcyjno-Magazynowa Jastrowie, NEGOCJACJA

OOFERTA SPRZEDAŻY HALI PRODUKCYJNO-MAGAZYNOWEJ - JASTROWIENa sprzedaż hala produkcyjno-magazynowa zlokalizowana w Jastrowiu, idealna dla przedsiębiorców poszukujących funkcjonalnej przestrzeni do prow...

690 000,00 zł

Wielkopolskie

48 m² na Twój biznes przy Galerii ATUT - gotowy lokal handlowo-usługowy! Na sprzedaż oferujemy lokal handlowo-usługowy o p

48 m² na Twój biznes przy Galerii ATUT - gotowy lokal handlowo-usługowy! Na sprzedaż oferujemy lokal handlowo-usługowy o powierzchni 48 m², usytuowany przy parkingu tętniącej życiem Galerii ...

147 000,00 zł

Kraków

Dwa drewniane domy z czterema lokalami

Dwa drewniane domy z czterema lokalami mieszkalnymi w Łapszach Wyżnych Oferujemy na sprzedaż dwa budynki mieszkalne , jednorodzinne, wolnostojące w Łapszach Wyżnych. Domy są parterowe z uż...

2 449 000,00 zł

Łapsze Wyżne

Wyjątkowy obiekt mieszkalno - usługowy o pow. 820 m2 w Iwkowej Oferujemy Państwu unikalną nieruchomość o charakterze miesz

Wyjątkowy obiekt mieszkalno - usługowy o pow. 820 m2 w Iwkowej Oferujemy Państwu unikalną nieruchomość o charakterze mieszkalno-usługowym o powierzchni ok. 820 m² , położoną w malowniczej m...

4 590 000,00 zł

Iwkowa

Kęty, obręb Bielany, powiat oświęcimski

Kęty, obręb Bielany, powiat oświęcimski, województwo małopolskie. Na sprzedaż nieruchomość gruntowa zabudowana o powierzchni 3,1442 ha, położona w Bielanach, mieszcząca się na działce zabudowanej...

2 200 000,00 zł

Oświęcimski

Hala mag. - prod. pow. 860 m2 w centrum Proszowic!

Hala magazynowa o pow. 865 m2 - Proszowice ul. Nowa Do wynajęcia hala o przeznaczeniu magazynowo-produkcyjnym znajdująca się na trzeciej kondygnacji budynku handlowo-magazynowego zlokalizowanego...

8 500,00 zł

Proszowice

Warsztat o pow. 450 m2 w centrum Proszowic!

Hala warsztatowa o pow. 450 m2 - Proszowice ul. Nowa Do wynajęcia hala warsztatowa znajdująca się na parterze budynku handlowo-magazynowego zlokalizowanego w centrum Proszowic. Hala posiada trz...

4 500,00 zł

Proszowice

LOKAL USŁUGOWY HANDLOWY MNIKÓW PARKING 82M2

LOKAL USŁUGOWO-HANDLOWO-MAGAZYNOWY / DO WYNAJĘCIA / 82 M2 / Z POTENCJAŁEM NA RÓŻNORODNE DZIAŁALNOŚCI / CENTRUM MNIKOWA / PARTER / PARKING KTO MOŻE WYNAJĄĆ ❓ Lokal nadaje się na absolut...

3 000,00 zł

Mników

Facebook
Facebook
Sprzedawanko.pl – serwis ogłoszeń Firmowanko.pl – katalog firm i usług Pracowanko.pl – serwis pracy Ugościmy.pl – serwis noclegów Nporta.pl – katalog firm i usług