📢
🔥 Świętujemy 10.000 Opublikowanych Ogłoszeń 🔔 z tej Okazji mamy 10 Promowań za Free na SPRZEDAWANKO.PL🔥

Twój dom marzeń – 5 pokoi, standard PREMIUM

1 018 250,00 zł

{{ phone }}

{{ email }}

Dodane przez: HomePartner
HomePartner
Lokalizacja: Lipowa
Telefon: {{ phone }}
Agent: Monika Łabęska - Cioch
E-mail: biuro@home-partner.com.pl
Telefon kom.: 536 496 163
Udostępnij:

Opublikowano:  | Wygaśnie:

Wyświetleń: 1 | ID ogłoszenia: 76578

Numer oferty: 20871

Szczegóły

Typ: Sprzedaż
Pow. użytkowa: 131.73 m2
Pow. działki: 330 m2
Pow. całkowita: 131.73 m2
Liczba pokoi: 5
Liczba sypialni: 4
Liczba pięter: 1
Rodzaj zabudowy: szeregowy
Materiał budynku: ceramiczny Porotherm
Okna: PCV
Podłogi: beton
Rok budowy: 2025
Ogrzewanie: pompa ciepła
Własność: własność
Dach: dachówka ceramiczna
Telefon biuro:
Nr licencji: 23243
Data aktualizacji: 2026-04-20 11:45:45

Opis

Na sprzedaż energooszczędny dom w zabudowie szeregowej o powierzchni użytkowej 131,73 m, wyróżniający się wykończeniem w standardzie PREMIUM.

Nieruchomość usytuowana jest na wydzielonej działce.

Budynki w klasie PREMIUM charakteryzują się najwyższą jakością wykonania oraz zastosowaniem najlepszych materiałów.

Rynek pierwotny kupujący nie płaci prowizji oraz podatku PCC.

I ETAP INWESTYCJI DEWELOPERSKIEJ W GNIECHOWICACH. Docelowo zaprojektowano 10 domów w zabudowie szeregowej na działkach o wielkościach od 210 do 470 m2.

Zakończenie budowy GRUDZIEŃ 2025 r

Przekazanie domów: I Q 2026 r.

Przeniesienie własności: II Q 2026 r.

Rynek pierwotny. Kupujący nie płaci prowizji i podatku PCC.

Dom J, z ogrodem, usytuowany na działce 330 m2, pięć pokoi, kuchnia w aneksie, dwie łazienki, garaż. W cenie pełna pompa ciepła, rolety zewnętrzne na parterze, kabel do fotowoltaiki.

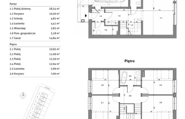
UKŁAD POMIESZCZEŃ

Parter: obszerny salon z aneksem kuchennym (28,54 m2) i z wyjściem na taras/ogród o wschodnio-południowej ekspozycji, łazienka (4,41 m2), pomieszczenie gospodarcze (5,18m2), garaż w bryle budynku (14,84)

I piętro: cztery ustawne sypialnie (10,95 m2, 11,09 m2, 12,59 m2, 12,94 m2, łazienka (5,99m2)

STANDARD

Podwyższony standard wykończenia:

- oszczędna pompa ciepła z możliwością chłodzenia w upalne dni

- kabel do instalacji fotowoltaicznej

- komfortowe i funkcjonalne ogrzewanie podłogowe w całym domu

- rolety zewnętrzne sterowane automatycznie na parterze budynku

- światłowód

- drzwi antywłamaniowe klasy C renomowanej firmy

- powierzchnie tarasów z płyt betonowych lub deski kompozytowej

- ściany z porothermu, dachówka ceramiczna

-okna pcv pięciokomorowe trzyszybowe

- ogrzewanie podłogowe , również w garażu

zbiornik na deszczówkę 4 tys litrów wkopany w ziemię

- dachówka ceramiczna z powłoką antyglonową

MEDIA

prąd, woda, zbiornik bezodpływowy

CENA: 1 018 250 zł

LOKALIZACJA I KOMUNIKACJA

Dom położony jest w miejscowości Gniechowice, w gminie Kąty Wrocławskie.

Spokojna i zielona okolica. Położenie na skraju Parku Krajobrazowego Doliny Bystrzycy daje możliwość kontaktu z pięknem natury i prowadzenia aktywnego trybu życia.

Dobry dojazd :

- do centrum Wrocławia - ok.25 min.

- do Centrum Handlowego Bielany Wrocławskie ok. 14 min

- do Kątów Wrocławskich 8 min.

- do Sobótki - 13 min.

- do Kobierzyc - 11 min.

- do autostrady A4 - 10 min.

- do portu lotniczego Wrocław- 20 min.

- do pałacu Krobielowice - 4km

Kursują także gminne autobusy, autobusy międzymiastowe oraz prywatne busy.

TEREN NIEZALEWOWY

Dom zlokalizowany z dala od zgiełku aglomeracji. Jednocześnie bliskość Wrocławia powoduje, że można łączyć pracę zawodową w mieście ze spokojem i ciszą wsi. W miejscowości sklep, kościół, restauracja, sklep Lewiatan, cukiernia i piekarnia, a także szkołą podstawowa, przedszkole w pobliskim Pustkowie Żurawskim oddalonym o ok. 6 km.

ZALETY OFERTY:

- doskonała lokalizacja

- funkcjonalny układ domu

- 5 pokoi

- spokojna okolica

- podwyższony standard wykończenia

Zapraszam do rozmów i obejrzenia domu. www.home-partner.com.pl Tel. 536 496 163

Feel free to contact us, talk and see the apartment. For more information please call us Tel +48 889 759 863.

Por favor contáctenos para conocer más sobre la oferta y ver el apartamento. Podemos ayudar con todos los trámites. Para más información por favor llámanos +48 889 759 863.

Treść niniejszego ogłoszenia nie stanowi oferty handlowej w rozumieniu Kodeksu Cywilnego.

Oferta wysłana z programu IMO dla biur nieruchomości

Może Cię zainteresować:

Komentarze (0)

Nic nie znaleziono

Tylko zalogowani użytkownicy mogą dodawać komentarze

Mapa

Formularz kontaktowy

This site is protected by reCAPTCHA and the Google Privacy Policy and Terms of Service apply.

Podobne ogłoszenia

4 Km od Trzebnicy! Spokojna i bezpieczna okolica!

Nieruchomości ApartamentPiotr Świętek tel. 798 857 342 Na sprzedaż oferuje Państwu działkę budowlaną w miejscowości Kobylice przy ulicy Radosnej, Gmina Trzebnica.I. Powierzchnia działki 1199 m2II. Dro...

197 835,00 zł

Dolnośląskie

30 min od Wrocławia! Piękna spokojna Lokalizacja!

Nieruchomości ApartamentPiotr Świętek tel. 798 857 342Na sprzedaż oferuje Państwu działkę budowlaną w miejscowości Kobylice przy ulicy Sosnowej.I. Powierzchnia działki 1118 m2Wymiary w przybliżeniu: 4...

220 000,00 zł

Dolnośląskie

Hala Produkcyjno-Magazynowa Jastrowie, NEGOCJACJA

OOFERTA SPRZEDAŻY HALI PRODUKCYJNO-MAGAZYNOWEJ - JASTROWIENa sprzedaż hala produkcyjno-magazynowa zlokalizowana w Jastrowiu, idealna dla przedsiębiorców poszukujących funkcjonalnej przestrzeni do prow...

690 000,00 zł

Wielkopolskie

48 m² na Twój biznes przy Galerii ATUT - gotowy lokal handlowo-usługowy! Na sprzedaż oferujemy lokal handlowo-usługowy o p

48 m² na Twój biznes przy Galerii ATUT - gotowy lokal handlowo-usługowy! Na sprzedaż oferujemy lokal handlowo-usługowy o powierzchni 48 m², usytuowany przy parkingu tętniącej życiem Galerii ...

147 000,00 zł

Kraków

Dwa drewniane domy z czterema lokalami

Dwa drewniane domy z czterema lokalami mieszkalnymi w Łapszach Wyżnych Oferujemy na sprzedaż dwa budynki mieszkalne , jednorodzinne, wolnostojące w Łapszach Wyżnych. Domy są parterowe z uż...

2 449 000,00 zł

Łapsze Wyżne

Wyjątkowy obiekt mieszkalno - usługowy o pow. 820 m2 w Iwkowej Oferujemy Państwu unikalną nieruchomość o charakterze miesz

Wyjątkowy obiekt mieszkalno - usługowy o pow. 820 m2 w Iwkowej Oferujemy Państwu unikalną nieruchomość o charakterze mieszkalno-usługowym o powierzchni ok. 820 m² , położoną w malowniczej m...

4 590 000,00 zł

Iwkowa

Kęty, obręb Bielany, powiat oświęcimski

Kęty, obręb Bielany, powiat oświęcimski, województwo małopolskie. Na sprzedaż nieruchomość gruntowa zabudowana o powierzchni 3,1442 ha, położona w Bielanach, mieszcząca się na działce zabudowanej...

2 200 000,00 zł

Oświęcimski

Hala mag. - prod. pow. 860 m2 w centrum Proszowic!

Hala magazynowa o pow. 865 m2 - Proszowice ul. Nowa Do wynajęcia hala o przeznaczeniu magazynowo-produkcyjnym znajdująca się na trzeciej kondygnacji budynku handlowo-magazynowego zlokalizowanego...

8 500,00 zł

Proszowice

Facebook
Facebook
Sprzedawanko.pl – serwis ogłoszeń Firmowanko.pl – katalog firm i usług Pracowanko.pl – serwis pracy Ugościmy.pl – serwis noclegów Nporta.pl – katalog firm i usług