📢
🔥 Świętujemy 10.000 Opublikowanych Ogłoszeń 🔔 z tej Okazji mamy 10 Promowań za Free na SPRZEDAWANKO.PL🔥

Dom, 6 pokoi, w Ostrowi Mazowieckiej.

1 200 000,00 zł

{{ email }}

Dodane przez: em5
Lokalizacja:
Agent: Andrzej Bakumenko Chętnicki
E-mail: andrzej.bakumenko.chetnicki@em5.pl
Udostępnij:

Opublikowano:  | Wygaśnie:

Wyświetleń: 3 | ID ogłoszenia: 75896

Numer oferty: 215041

Szczegóły

Typ: Sprzedaż
Rynek: Wtórny
Pow. użytkowa: 325 m2
Pow. działki: 1135 m2
Pow. całkowita: 238 m2
Liczba pokoi: 6
Liczba sypialni: 4
Liczba pięter: 2
Rodzaj zabudowy: Wolnostojący
Materiał budynku: pustak
Rok budowy: 0
Ogrzewanie: Co Własne
Własność: Własność
Telefon biuro: 886341886
Data aktualizacji: 2026-03-22 00:33:11
Inwestycja:

Opis

Większość atrakcyjnych nieruchomości w tej okolicy znika zanim trafia na portale. Dlatego pracujemy również na ofertach dostępnych tylko dla naszych klientów.

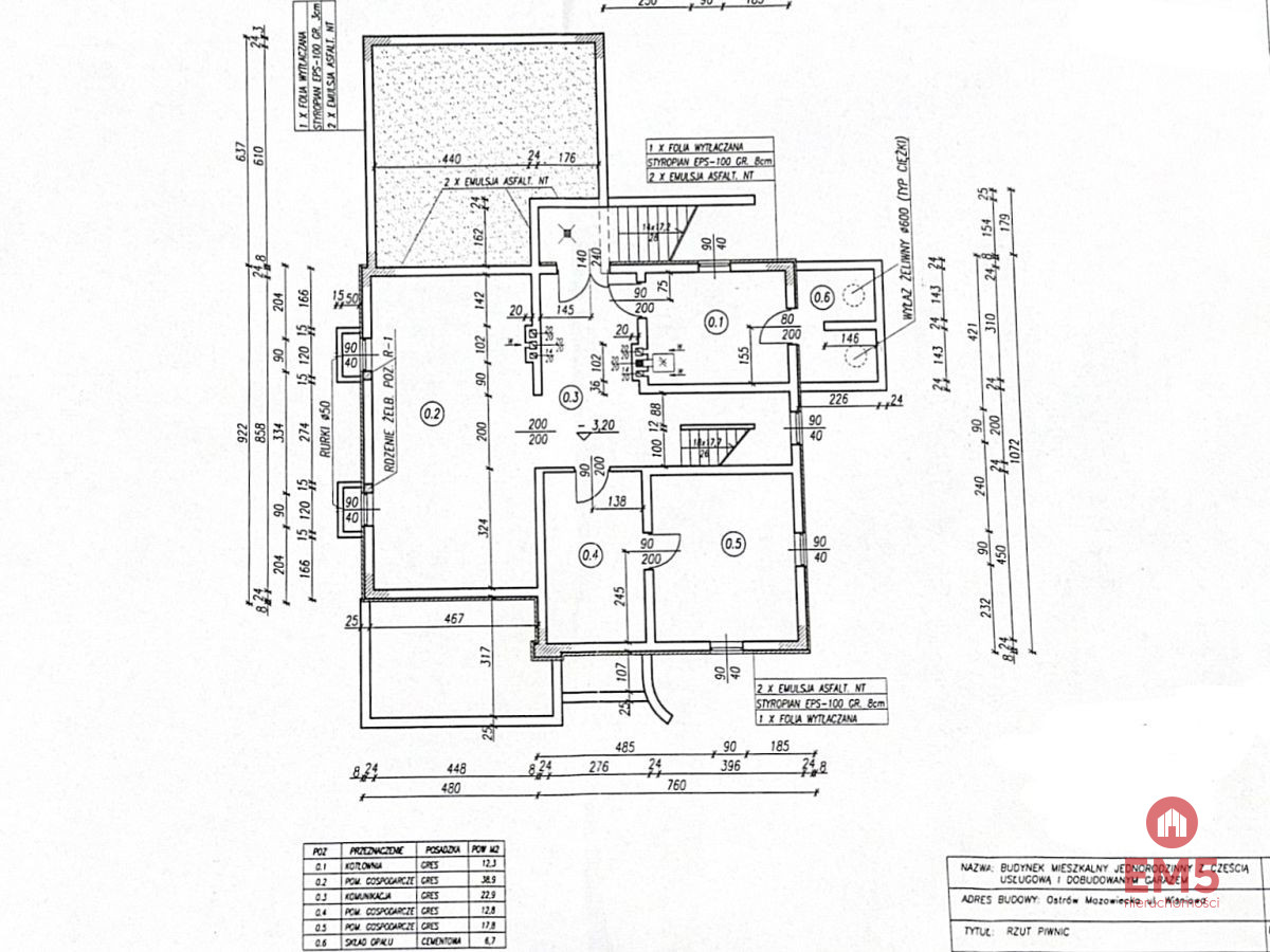
Oferujemy na sprzedaż dom jednorodzinny w Ostrowi Mazowieckiej o powierzchni 238 m2, usytuowany na działce o powierzchni 1135 m2. W skład nieruchomości wchodzi: Piwnica, kotłownia, 3 pomieszczenia gospodarcze. Parter: wiatrołap, duży hol, gabinet, pokój dzienny, kuchnio-jadalnia, łazienka. Poddasze: 4 pokoje, łazienka, korytarz, taras. Działka o powierzchni: 1135 m2 w kształcie prostokąta. Teren zagospodarowany. Media: prąd, woda, szambo.Lokalizacja, cicha i spokojna. W pobliżu sklepy, szkoła, przedszkole. Dodatkowe informacje: Dom wybudowany z wysokiej jakości materiałów. Ogrzewanie olejowe. Blachodachówka. Elewacja z tynku. Podjazd z kostki brukowej. Możliwość negocjacji.

Ten dom to idealne miejsce do życia dla rodziny ceniącej komfort i bliskość natury. Przestronny metraż zapewnia miejsce do odpoczynku i zabawy dla całej rodziny, a pięknie zagospodarowana działka daje możliwość spędzania czasu na świeżym powietrzu. Dom jest również świetnie skomunikowany z Warszawą, co czyni go idealną bazą wypadową do pracy lub nauki. Jeśli szukasz domu, który spełni Twoje oczekiwania, skontaktuj się z nami już dziś.


 


 


 


 


 


 


 


 


 



Jeśli ta nieruchomość nie spełnia wszystkich oczekiwań - skontaktuj się z nami. Pokażemy również inne oferty dopasowane do Twoich potrzeb, w tym takie, które nie są jeszcze publikowane.

Może Cię zainteresować:

Wirtualny spacer

Komentarze (0)

Nic nie znaleziono

Tylko zalogowani użytkownicy mogą dodawać komentarze

Mapa

Formularz kontaktowy

This site is protected by reCAPTCHA and the Google Privacy Policy and Terms of Service apply.

Podobne ogłoszenia

Luksusowy apartament 128 mkw | 40 mkw tarasu |

Szukasz bezkompromisowego komfortu, prestiżowej lokalizacji i przestrzeni, do której możesz wprowadzić się od zaraz, zabierając ze sobą jedynie walizki?Prezentuję wyjątkowy apartament o powierzchni 12...

1 749 000,00 zł

Kujawsko-pomorskie

Nowoczesny dom z ogrodem Igołomia Kraków

Nowoczesny dom premium, 180 m², 2018 r. dwa garaże, poddasze 90 m² , Igołomia - Kraków Dom który łączy przestrzeń, komfort i nowoczesne rozwiązania. Na sprzedaż wyjątkowy dom jedno...

1 500 000,00 zł

Igołomia

* Funkcjonalny dom z poddaszem użytkowym Łabiszyn

dom w Łabiszynie | 102m2 | pięć pokoi | ogródek | Łabiszyn | Szubin | BydgoszczPrzedmiotem sprzedaży jest dom jednorodzinny w zabudowie szeregowej (segment skrajny), zlokalizowany w Łabiszynie przy ul...

449 000,00 zł

Kujawsko-pomorskie

Dom, Przeginia Narodowa, Liszki, Czernichów

*zdjęcia należą do właściciela oferty Nowoczesny domu w Przeginii Narodowej, tuż obok miejscowości Liszki. Budynek jednorodzinny, wolnostojący wybudowany w 2025 r z najwyższ...

969 000,00 zł

Przeginia Narodowa

Działka mieszkaniowo-usługowa

Działka z MPZP, usługowo-mieszkaniowa w doskonałej lokalizacji.Zapraszam do zapoznania się z ofertą.Na sprzedaż atrakcyjna działka o przeznaczeniu usługowo-mieszkaniowym,zlokalizowana w miejscowości U...

419 000,00 zł

Wielkopolskie

Przytulne 2 pokojowe mieszkanie w Pile

Mieszkanie 2 pokoje, 2 piętro, gotowe do zamieszkaniaPrzytulne 2-pokojowe mieszkanie 40,58 m² w Pile - komfort i funkcjonalnośćNa sprzedaż wyjątkowo zadbane i funkcjonalne mieszkanie o powierzchni 40,...

269 000,00 zł

Wielkopolskie

Działki z MPZP

Działki z MPZP, usługowo-mieszkaniowe w doskonałej lokalizacji. Dodatkowe informacje:Bartosz tel. 573 094 074 Na sprzedaż teren składający się z dwóch działek, o przeznaczeniu usługowo-mieszkaniowym, ...

1 599 000,00 zł

Wielkopolskie

Działka z mediami | WZ w toku | 1043 mkw | Kaszuby

Na sprzedaż działka o powierzchni 1043 mkw, położona w miejscowości Zęblewo, gmina Szemud, w spokojnej, kaszubskiej okolicy, wśród zabudowy jednorodzinnej i terenów zielonych.Nieruchomość stanowi idea...

145 000,00 zł

Pomorskie

Facebook
Facebook
Sprzedawanko.pl – serwis ogłoszeń Firmowanko.pl – katalog firm i usług Pracowanko.pl – serwis pracy Ugościmy.pl – serwis noclegów Nporta.pl – katalog firm i usług