
| Dodane przez: | braciasadurscy |
| Lokalizacja: | Zakopiańska |
| Telefon: | {{ phone }} |
| Agent: | Dariusz Zieliński |
| E-mail: | darek.zielinski@sadurscy.pl |
| Telefon kom.: | +48 503-112-787 |
| Udostępnij: |
Opublikowano: | Wygaśnie:
Wyświetleń: 5 | ID ogłoszenia: 75598
Numer oferty: BS2-BW-313916-5
| Typ: | Wynajem |
| Rynek: | Wtórny |
| Pow. użytkowa: | 240 m2 |
| Cena za m2 (zł): | 38.33 |
| Rok budowy: | 1960 |
| Ogrzewanie: | C.O. GAZOWE |
| Nr licencji: | 20371 |
| Data aktualizacji: | 2026-04-16 |
| Typ lokalu: | biuro |
Funkcjonalny budynek biurowy 3 poziomy + 5 miejsc parkingowych
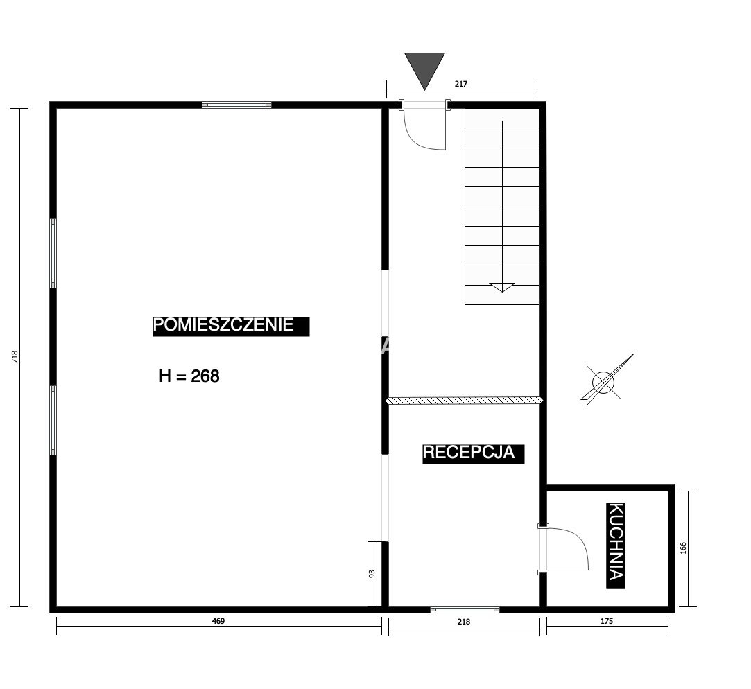
Do wynajęcia 3 poziomowy budynek.
Na parterze recepcja, pomieszczenie biurowe plus pomieszczenie socjalne.
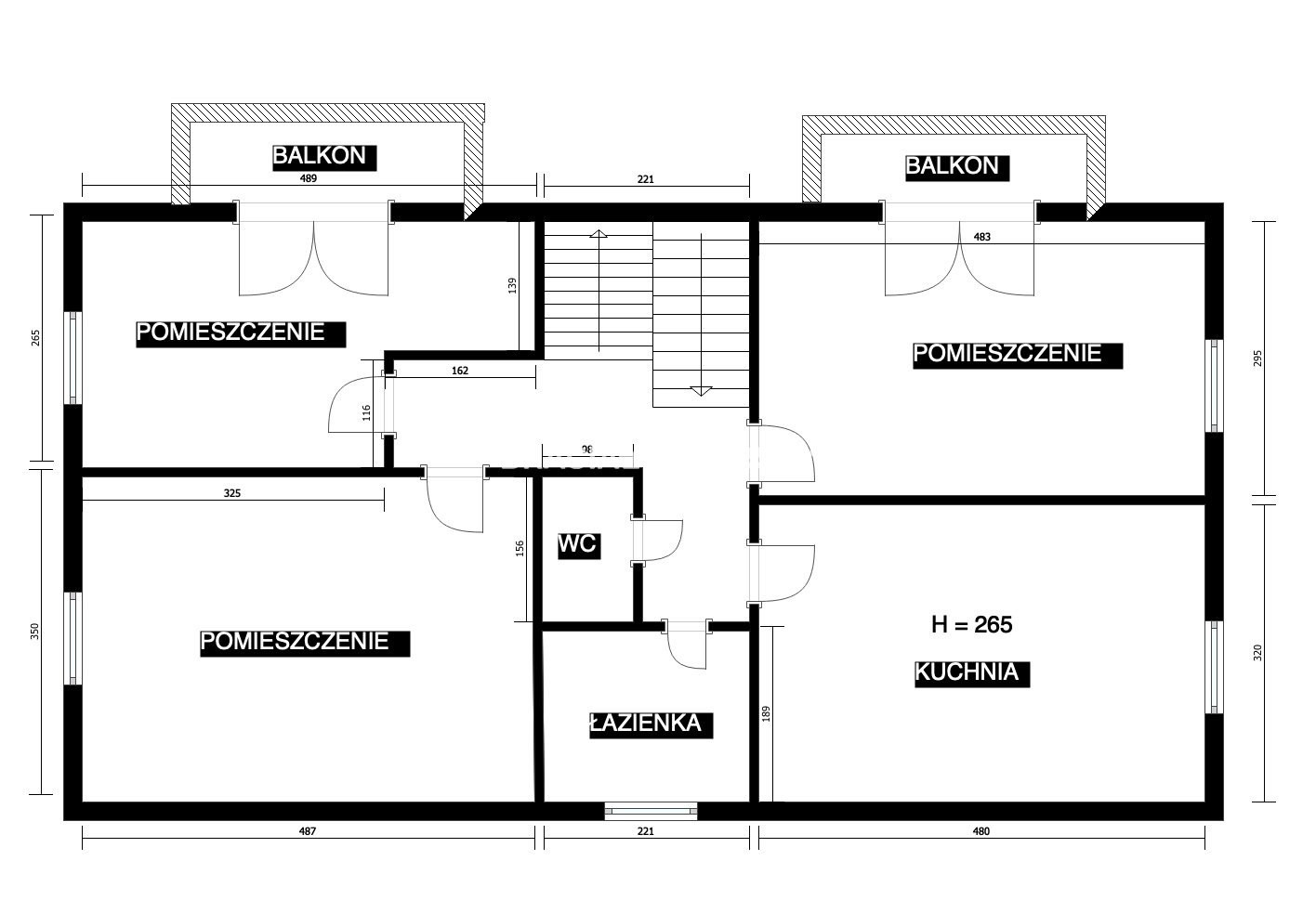
Na piętrze 4 pomieszczenia biurowe, toalety.
Na II piętrze 2 pomieszczenia biurowe i toaleta.
Budynek wyposażony w instalację wód-kań, gaz, prąd.
Ogrzewanie indywidualne gazowe.
Budynek podpiwniczony - kotłownia plus pomieszczenia magazynowe.
5 miejsc parkingowych.
Kontakt
Dariusz Zieliński
tel 503 112 787
Zobacz Wirtualny Spacer: https://my.matterport.com/show/?m=pWzD5iwbCqB
Pośrednik odpowiedzialny zawodowo za wykonanie umowy pośrednictwa: Dariusz Sadurski (licencja nr: 803)
--------------------------
::GRATIS | Nasza prowizja zawiera: koszt przedwstępnej notarialnej umowy sprzedaży nieruchomości z rynku wtórnego.
::GWARANCJA | Gwarancja zwrotu zadatku. Więcej informacji na sadurscy.pl/zwrot-zadatku/
Oferta wysłana z systemu Galactica Virgo
Nic nie znaleziono
Tylko zalogowani użytkownicy mogą dodawać komentarze
Nowoczesny dom z ogrodem Igołomia Kraków
Nowoczesny dom premium, 180 m², 2018 r. dwa garaże, poddasze 90 m² , Igołomia - Kraków Dom który łączy przestrzeń, komfort i nowoczesne rozwiązania. Na sprzedaż wyjątkowy dom jedno...
1 500 000,00 zł
* Funkcjonalny dom z poddaszem użytkowym Łabiszyn
dom w Łabiszynie | 102m2 | pięć pokoi | ogródek | Łabiszyn | Szubin | BydgoszczPrzedmiotem sprzedaży jest dom jednorodzinny w zabudowie szeregowej (segment skrajny), zlokalizowany w Łabiszynie przy ul...
449 000,00 zł
Dom, Przeginia Narodowa, Liszki, Czernichów
*zdjęcia należą do właściciela oferty Nowoczesny domu w Przeginii Narodowej, tuż obok miejscowości Liszki. Budynek jednorodzinny, wolnostojący wybudowany w 2025 r z najwyższ...
969 000,00 zł
Przytulne 2 pokojowe mieszkanie w Pile
Mieszkanie 2 pokoje, 2 piętro, gotowe do zamieszkaniaPrzytulne 2-pokojowe mieszkanie 40,58 m² w Pile - komfort i funkcjonalnośćNa sprzedaż wyjątkowo zadbane i funkcjonalne mieszkanie o powierzchni 40,...
269 000,00 zł
Działka z mediami | WZ w toku | 1043 mkw | Kaszuby
Na sprzedaż działka o powierzchni 1043 mkw, położona w miejscowości Zęblewo, gmina Szemud, w spokojnej, kaszubskiej okolicy, wśród zabudowy jednorodzinnej i terenów zielonych.Nieruchomość stanowi idea...
145 000,00 zł
Dom z widokiem na Jezioro Dobczyckie.
Dom z widokiem na Jezioro Dobczyckie - Twoje miejsce w sercu natury Z przyjemnością prezentuję wyjątkową ofertę sprzedaży nowoczesnego domu z potencjałem wykończenia „pod klucz”, położonego na...
595 000,00 zł