
| Dodane przez: | braciasadurscy |
| Lokalizacja: | Osiedle Złocień |
| Telefon: | {{ phone }} |
| Agent: | Marek Popiela |
| E-mail: | marek@sadurscy.pl |
| Telefon kom.: | +48 518-967-677 |
| Udostępnij: |
Opublikowano: | Wygaśnie:
Wyświetleń: 2 | ID ogłoszenia: 75314
Numer oferty: BS2-MS-314550-136
| Typ: | Sprzedaż |
| Rynek: | Pierwotny |
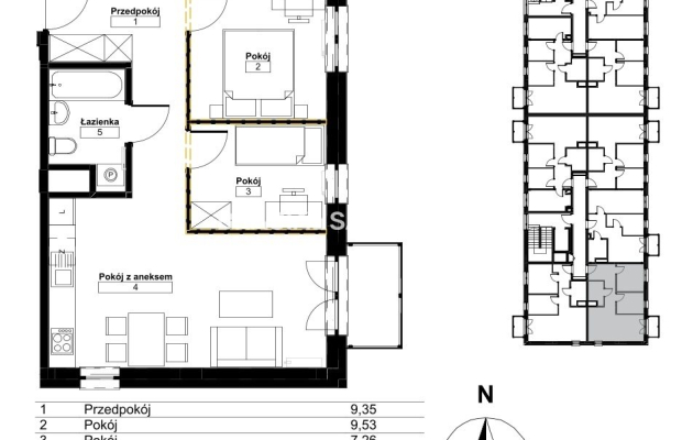
| Pow. użytkowa: | 52.92 m2 |
| Pow. całkowita: | 52.92 m2 |
| Cena za m2 (zł): | 12300 |
| Liczba pokoi: | 3 |
| Liczba sypialni: | 2 |
| Rodzaj zabudowy: | budynek wielorodzinny |
| Piętro: | 3 |
| Liczba pięter: | 4 |
| Materiał budynku: | tradycyjna |
| Okna: | PCV |
| Rok budowy: | 2026 |
| Ogrzewanie: | C.O. miejskie |
| Stan wykończenia: | deweloperski |
| Własność: | Własność |
| Data aktualizacji: | 2026-04-16 |
ZŁOCIEŃ - nowoczesne osiedle mieszkaniowe
Przedstawiamy wyjątkowe osiedle położone w południowo-wschodniej części miasta, które łączy nowoczesną architekturę, komfort mieszkania i bliskość zielonych przestrzeni.
O mieszkaniach
W ofercie znajdują się funkcjonalne dwu-, trzy- i czteropokojowe mieszkania o powierzchni od 33 do 60 m². Lokale na parterze posiadają prywatne ogródki, a mieszkania na wyższych piętrach - przestronne balkony. Najwyższe kondygnacje wyróżniają się dużymi tarasami na dachu, zapewniającymi relaks i piękne widoki. Budynek powstaje w tradycyjnej technologii i oferowany jest w stanie deweloperskim, z tynkami, wylewkami i kompletnymi instalacjami.
Architektura i infrastruktura osiedla
Osiedle składa się z czteropiętrowych budynków o nowoczesnej, jasnej elewacji. Teren jest ogrodzony, z zaplanowaną zielenią, wspólną strefą rekreacyjną oraz drogami dojazdowymi. Budynki wyposażone są w cichobieżne windy, a miejsca postojowe znajdują się zarówno w garażu podziemnym, jak i w garażach na parterze.
Okolica i udogodnienia
W sąsiedztwie osiedla znajduje się bogata infrastruktura handlowo-usługowa: sklepy spożywcze (Biedronka, Lidl, Żabka), drogeria Rossmann, restauracje, kawiarnie, a w odległości 2 km - bazarek miejski. Do centrum handlowego „Targowe” dojazd zajmuje około 15 minut.
Edukacja i opieka medyczna
W okolicy działają przedszkola i żłobki, m.in. „Akademia Smyka” i „Krasnal”, szkoły podstawowe nr 111 i 124 oraz XXV Liceum Ogólnokształcące im. Stefana Żeromskiego (ok. 3 km). Dostępna jest również opieka medyczna, apteki i przychodnie rodzinne.
Sport i rekreacja
Osiedle oferuje łatwy dostęp do siłowni plenerowych, fitness centrów i basenów, umożliwiając aktywny tryb życia.
Komunikacja
Doskonała lokalizacja zapewnia szybki dojazd do różnych części miasta dzięki bliskości ulic Agatowej, Henryka i Karola Czeczów oraz drogi krajowej S7. W odległości ok. 450 m znajduje się przystanek autobusowy linii 125 i 183, a stacja kolejowa - 2,3 km od osiedla.
Kontakt
Marek Popiela
+48 518 967 677
marek@sadurscy.pl
--------------------------
::GRATIS | Nasza prowizja zawiera: koszt przedwstępnej notarialnej umowy sprzedaży nieruchomości z rynku wtórnego.
::GWARANCJA | Gwarancja zwrotu zadatku. Więcej informacji na sadurscy.pl/zwrot-zadatku/
Oferta wysłana z systemu Galactica Virgo
Nic nie znaleziono
Tylko zalogowani użytkownicy mogą dodawać komentarze
Duże 3 pokojowe z balkonem na I piętrze!
"Nieruchomości Apartament"Mikołaj Krzyżosiak 513 383 116 Oferta dostępna tylko w naszym biurze!Na sprzedaż oferuję komfortowe mieszkanie o powierzchni 72,12 m², usytuowane na 1 piętrze w spokojnej o...
377 000,00 zł
Duże mieszkanie 134 m² w centrum Tucholi!
Na sprzedaż przestronne mieszkanie w centrum Tucholi o powierzchni 134 m².Oferuję na sprzedaż duże, funkcjonalne mieszkanie o powierzchni 134 m², położone na 2. piętrze w kamienicy w samym centrum Tuc...
350 000,00 zł
Gospodarstwo około 1,5 ha w Łazanach gm.Biskupice
Do sprzedania gospodarstwo o pow.około 1,5 ha z rozpoczętą budową/ przyziemie zaadoptowane do zamieszkania/.Powierzchnia zabudowy około 90 m2.zaadaptowane na dwa pokoje ,kuchnie,łazienkę,garaż,całoś...
650 000,00 zł
Działka budowlano-rolna w Łazanach gm.Biskupice
Działka 47 arów - część budowlana + zieleń, cicha okolica, media, atrakcyjna cena! Na sprzedaż działka o powierzchni 47 arów , w kształcie zbliżonym do prostokąta. Nieruchomość położona jest na...
390 000,00 zł
Gospodarstwo około 2 ha w Łazanach gm.Biskupice
Na sprzedaż: Gospodarstwo z działkami o łącznej powierzchni ok. 2 ha - rozpoczęta budowa, możliwość zamieszkania! Na sprzedaż nieruchomość gruntowa o łącznej powierzchni około 2 hektarów , ...
950 000,00 zł