📢
🔥 Świętujemy 10.000 Opublikowanych Ogłoszeń 🔔 z tej Okazji mamy 10 Promowań za Free na SPRZEDAWANKO.PL🔥

Smart Apartament na Prądniku Białym blisko Zieleni

661 980,00 zł

{{ phone }}

{{ email }}

Dodane przez: braciasadurscy
braciasadurscy
Lokalizacja: Pękowicka
Telefon: {{ phone }}
Agent: Patrycja Rubinkiewicz
E-mail: patrycja@sadurscy.pl
Telefon kom.: +48 505-236-943
Udostępnij:

Opublikowano:  | Wygaśnie:

Wyświetleń: 2 | ID ogłoszenia: 74821

Numer oferty: BS2-MS-304410-30

Szczegóły

Typ: Sprzedaż
Rynek: Pierwotny
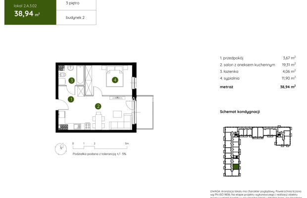
Pow. użytkowa: 38.94 m2
Cena za m2 (zł): 17000
Liczba pokoi: 2
Rodzaj zabudowy: blok
Piętro: 3
Liczba pięter: 3
Materiał budynku: pustak
Okna: PCV
Rok budowy: 2024
Ogrzewanie: C.O. miejskie
Stan wykończenia: deweloperski
Własność: Odrębna własność lokalu
Data aktualizacji: 2026-04-16

Opis


Z ogromną przyjemnością przedstawiamy Państwu ofertę mieszkania na sprzedaż w malowniczym rejonie Doliny Prądnika, na północy Krakowa, blisko granicy z gminą Zielonki. Nowoczesne osiedle otoczone jest rozległymi terenami zielonymi, co umożliwia codzienny kontakt z naturą i zapewnia wytchnienie od intensywnego miejskiego życia w centrum miasta.

Osiedle zostało zaprojektowane z myślą o rodzinach, parach oraz singlach, oferując szeroki wybór mieszkań o powierzchni od 26 do 73 m², w układach 1-, 2-, 3- i 4-pokojowych. Dbałość o komfort mieszkańców przejawia się w wysokiej jakości przestrzeni wspólnych, które sprzyjają nawiązywaniu sąsiedzkich relacji: skwer z ławeczkami, plac zabaw...

Budynki nowej inwestycji mające 3 i 4 kondygnacje, wyróżniają się kameralną architekturą, harmonizującą z okolicą. Przestronność obiektów gwarantuje mieszkańcom poczucie prywatności.

Zalety:


Home Management System to zaawansowana technologia inteligentnego domu, która umożliwia m.in. zarządzanie ogrzewaniem, oświetleniem i zaworami wody.
Pakiet antysmogowy w postaci filtrów montowanych w nawiewnikach okiennych dba o czystość powietrza we wnętrzach mieszkań.
Wysoki standard wykończenia części wspólnych obejmuje trwałe płytki gresowe, dekoracyjne panele imitujące drewno oraz energooszczędne oświetlenie LED.
Mieszkania na parterze posiadają tarasy z ogrodami o powierzchni do 123 m², natomiast mieszkania na wyższych kondygnacjach oferują przestronne balkony.
Termoizolacyjne łączniki balkonowe zapobiegają utracie ciepła, co przekłada się na oszczędności energetyczne.
Portfenetrowe okna zapewniają doskonałe doświetlenie wnętrz.
Na terenie osiedla zostanie zainstalowana stacja ładowania pojazdów elektrycznych, z myślą o mieszkańcach korzystających z ekologicznych środków transportu.
Zielone dachy budynków będą nie tylko estetyczne, ale również poprawią jakość powietrza i obniżą temperaturę otoczenia.


Prądnik biały to doskonale skomunikowana okolica, idealne miejsce dla osób szukających spokoju i bliskości natury, z jednoczesnym dostępem do nowoczesnych rozwiązań technologicznych.

Serdecznie zapraszam do kontaktu


--------------------------

::GRATIS | Nasza prowizja zawiera: koszt przedwstępnej notarialnej umowy sprzedaży nieruchomości z rynku wtórnego.
::GWARANCJA | Gwarancja zwrotu zadatku. Więcej informacji na sadurscy.pl/zwrot-zadatku/


Oferta wysłana z systemu Galactica Virgo

Może Cię zainteresować:

Komentarze (0)

Nic nie znaleziono

Tylko zalogowani użytkownicy mogą dodawać komentarze

Mapa

Formularz kontaktowy

This site is protected by reCAPTCHA and the Google Privacy Policy and Terms of Service apply.

Podobne ogłoszenia

Luksusowy apartament 128 mkw | 40 mkw tarasu |

Szukasz bezkompromisowego komfortu, prestiżowej lokalizacji i przestrzeni, do której możesz wprowadzić się od zaraz, zabierając ze sobą jedynie walizki?Prezentuję wyjątkowy apartament o powierzchni 12...

1 749 000,00 zł

Kujawsko-pomorskie

Nowoczesny dom z ogrodem Igołomia Kraków

Nowoczesny dom premium, 180 m², 2018 r. dwa garaże, poddasze 90 m² , Igołomia - Kraków Dom który łączy przestrzeń, komfort i nowoczesne rozwiązania. Na sprzedaż wyjątkowy dom jedno...

1 500 000,00 zł

Igołomia

* Funkcjonalny dom z poddaszem użytkowym Łabiszyn

dom w Łabiszynie | 102m2 | pięć pokoi | ogródek | Łabiszyn | Szubin | BydgoszczPrzedmiotem sprzedaży jest dom jednorodzinny w zabudowie szeregowej (segment skrajny), zlokalizowany w Łabiszynie przy ul...

449 000,00 zł

Kujawsko-pomorskie

Dom, Przeginia Narodowa, Liszki, Czernichów

*zdjęcia należą do właściciela oferty Nowoczesny domu w Przeginii Narodowej, tuż obok miejscowości Liszki. Budynek jednorodzinny, wolnostojący wybudowany w 2025 r z najwyższ...

969 000,00 zł

Przeginia Narodowa

Działka mieszkaniowo-usługowa

Działka z MPZP, usługowo-mieszkaniowa w doskonałej lokalizacji.Zapraszam do zapoznania się z ofertą.Na sprzedaż atrakcyjna działka o przeznaczeniu usługowo-mieszkaniowym,zlokalizowana w miejscowości U...

419 000,00 zł

Wielkopolskie

Przytulne 2 pokojowe mieszkanie w Pile

Mieszkanie 2 pokoje, 2 piętro, gotowe do zamieszkaniaPrzytulne 2-pokojowe mieszkanie 40,58 m² w Pile - komfort i funkcjonalnośćNa sprzedaż wyjątkowo zadbane i funkcjonalne mieszkanie o powierzchni 40,...

269 000,00 zł

Wielkopolskie

Działki z MPZP

Działki z MPZP, usługowo-mieszkaniowe w doskonałej lokalizacji. Dodatkowe informacje:Bartosz tel. 573 094 074 Na sprzedaż teren składający się z dwóch działek, o przeznaczeniu usługowo-mieszkaniowym, ...

1 599 000,00 zł

Wielkopolskie

Działka z mediami | WZ w toku | 1043 mkw | Kaszuby

Na sprzedaż działka o powierzchni 1043 mkw, położona w miejscowości Zęblewo, gmina Szemud, w spokojnej, kaszubskiej okolicy, wśród zabudowy jednorodzinnej i terenów zielonych.Nieruchomość stanowi idea...

145 000,00 zł

Pomorskie

Facebook
Facebook
Sprzedawanko.pl – serwis ogłoszeń Firmowanko.pl – katalog firm i usług Pracowanko.pl – serwis pracy Ugościmy.pl – serwis noclegów Nporta.pl – katalog firm i usług