📢
🔥 Świętujemy 10.000 Opublikowanych Ogłoszeń 🔔 z tej Okazji mamy 10 Promowań za Free na SPRZEDAWANKO.PL🔥

Mieszkanie z Imponującą Wysokością Pomieszczeń!

1 200 000,00 zł

{{ phone }}

{{ email }}

Dodane przez: braciasadurscy
braciasadurscy
Lokalizacja: Reduta
Telefon: {{ phone }}
Agent: Malwina Filas
E-mail: malwina@sadurscy.pl
Telefon kom.: +48 518-706-518
Udostępnij:

Opublikowano:  | Wygaśnie:

Wyświetleń: 2 | ID ogłoszenia: 74785

Numer oferty: BS2-MS-305255-89

Szczegóły

Typ: Sprzedaż
Rynek: Pierwotny
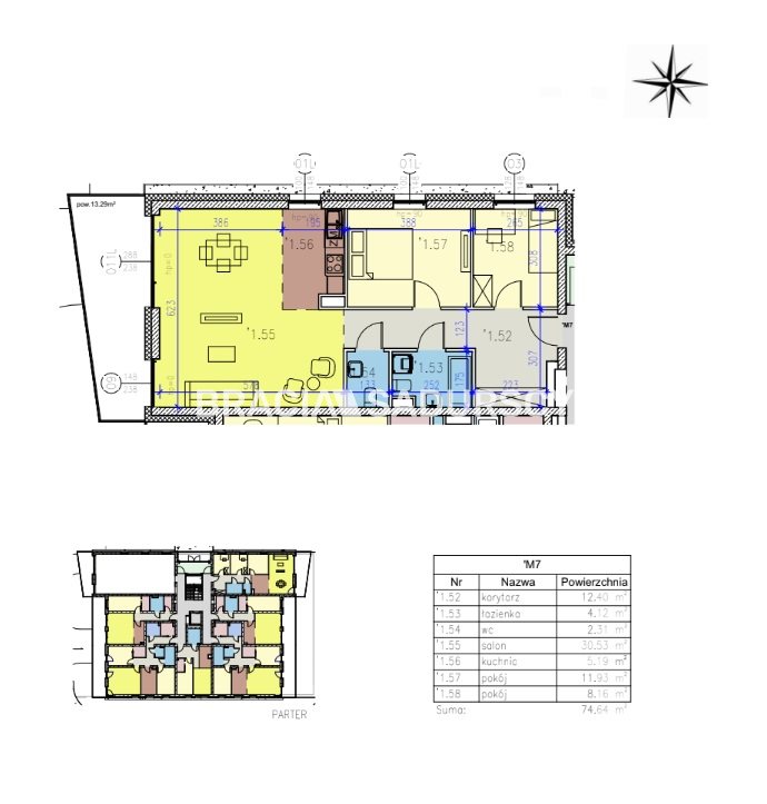
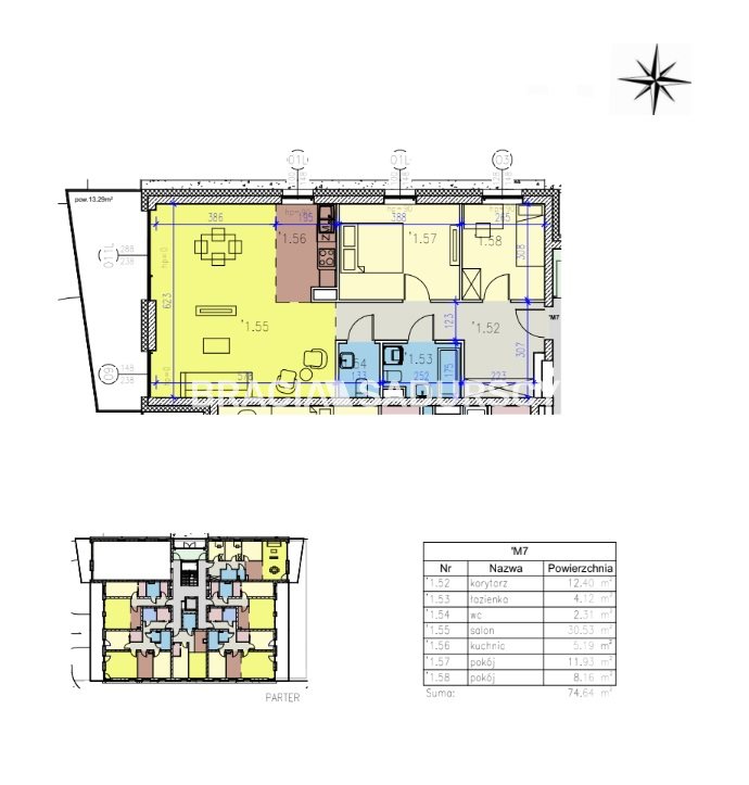
Pow. użytkowa: 74.64 m2
Cena za m2 (zł): 16077.17
Liczba pokoi: 3
Liczba sypialni: 2
Rodzaj zabudowy: nowe budownictwo
Piętro: 0
Liczba pięter: 5
Materiał budynku: mieszana
Okna: PCV
Rok budowy: 2023
Ogrzewanie: C.O. miejskie
Stan wykończenia: deweloperski
Własność: Własność
Data aktualizacji: 2026-04-16

Opis


Marzysz, aby mieszkać w cichej i spokojnej okolicy nie rezygnując jednocześnie z uroków miasta?
Jesteś w dobrym miejscu!

Przedstawiamy inwestycję w krakowskiej dzielnicy Prądnik Czerwony, która znajduje się tuż przy 8 hektarowym parku rekreacyjno-spacerowym. W skład wchodzą 2 budynki 6- kondygnacyjne , kolejno po 22 i 37 mieszkań. Funkcjonalne układy mieszkań mieszczące się w przedziałach od 40/41 m2- 137 m2 przypadną do gustu nawet tym najbardziej wymagającym.Inwestycja wykonana z najwyższej jakości materiałów budowlanych z dbałością o każdy szczegół.
Większość mieszkań na parterach będą mieć ogródki , na wyższych piętrach balkony . Podziemna część budynku przeznaczona jest na garaż z miejscami parkingowymi.

Wysokość pomieszczeń na poziomie 3,13 metra w mieszkaniach zlokalizowanych na parterze dodaje wyjątkowego charakteru, umożliwiając kreatywne aranżacje z nietypowym wyposażeniem.
Dzięki temu można łatwo wydzielić różne strefy funkcjonalne, używając antresoli lub podwieszanych przegród.

Niebywałym atutem jest lokalizacja, która sprzyja osobom zarówno przemieszczającym się samochodem jak i komunikacją miejską. Pobliskie tereny bogate są w punkty usługowo-handlowe oraz rozrywkowe np. Serenada, Park Wodny, Multikino , co z pewnością odpowie potrzebom zarówno młodszych jak i starszych osób. Obecność Parku tuż obok inwestycji daje możliwość obcowania z naturą oraz spędzenia wolnego czasu na świeżym powietrzu. W bliskim sąsiedztwie zabudowy wielorodzinnej znajdują się żłobki, przedszkola oraz szkoła.


Termin zakończenia budowy zaplanowano na II kwartał 2023 r.

Zapraszam do kontaktu:
Malwina Filas
malwina@sadurscy.pl
518-706-518


Zobacz Wirtualny Spacer: https://my.matterport.com/show/?m=C1ZFf2ayZZ4

--------------------------

::GRATIS | Nasza prowizja zawiera: koszt przedwstępnej notarialnej umowy sprzedaży nieruchomości z rynku wtórnego.
::GWARANCJA | Gwarancja zwrotu zadatku. Więcej informacji na sadurscy.pl/zwrot-zadatku/


Oferta wysłana z systemu Galactica Virgo

Może Cię zainteresować:

Film z Youtube

Wirtualny spacer

Komentarze (0)

Nic nie znaleziono

Tylko zalogowani użytkownicy mogą dodawać komentarze

Mapa

Formularz kontaktowy

This site is protected by reCAPTCHA and the Google Privacy Policy and Terms of Service apply.

Podobne ogłoszenia

Luksusowy apartament 128 mkw | 40 mkw tarasu |

Szukasz bezkompromisowego komfortu, prestiżowej lokalizacji i przestrzeni, do której możesz wprowadzić się od zaraz, zabierając ze sobą jedynie walizki?Prezentuję wyjątkowy apartament o powierzchni 12...

1 749 000,00 zł

Kujawsko-pomorskie

Nowoczesny dom z ogrodem Igołomia Kraków

Nowoczesny dom premium, 180 m², 2018 r. dwa garaże, poddasze 90 m² , Igołomia - Kraków Dom który łączy przestrzeń, komfort i nowoczesne rozwiązania. Na sprzedaż wyjątkowy dom jedno...

1 500 000,00 zł

Igołomia

* Funkcjonalny dom z poddaszem użytkowym Łabiszyn

dom w Łabiszynie | 102m2 | pięć pokoi | ogródek | Łabiszyn | Szubin | BydgoszczPrzedmiotem sprzedaży jest dom jednorodzinny w zabudowie szeregowej (segment skrajny), zlokalizowany w Łabiszynie przy ul...

449 000,00 zł

Kujawsko-pomorskie

Dom, Przeginia Narodowa, Liszki, Czernichów

*zdjęcia należą do właściciela oferty Nowoczesny domu w Przeginii Narodowej, tuż obok miejscowości Liszki. Budynek jednorodzinny, wolnostojący wybudowany w 2025 r z najwyższ...

969 000,00 zł

Przeginia Narodowa

Działka mieszkaniowo-usługowa

Działka z MPZP, usługowo-mieszkaniowa w doskonałej lokalizacji.Zapraszam do zapoznania się z ofertą.Na sprzedaż atrakcyjna działka o przeznaczeniu usługowo-mieszkaniowym,zlokalizowana w miejscowości U...

419 000,00 zł

Wielkopolskie

Przytulne 2 pokojowe mieszkanie w Pile

Mieszkanie 2 pokoje, 2 piętro, gotowe do zamieszkaniaPrzytulne 2-pokojowe mieszkanie 40,58 m² w Pile - komfort i funkcjonalnośćNa sprzedaż wyjątkowo zadbane i funkcjonalne mieszkanie o powierzchni 40,...

269 000,00 zł

Wielkopolskie

Działki z MPZP

Działki z MPZP, usługowo-mieszkaniowe w doskonałej lokalizacji. Dodatkowe informacje:Bartosz tel. 573 094 074 Na sprzedaż teren składający się z dwóch działek, o przeznaczeniu usługowo-mieszkaniowym, ...

1 599 000,00 zł

Wielkopolskie

Działka z mediami | WZ w toku | 1043 mkw | Kaszuby

Na sprzedaż działka o powierzchni 1043 mkw, położona w miejscowości Zęblewo, gmina Szemud, w spokojnej, kaszubskiej okolicy, wśród zabudowy jednorodzinnej i terenów zielonych.Nieruchomość stanowi idea...

145 000,00 zł

Pomorskie

Facebook
Facebook
Sprzedawanko.pl – serwis ogłoszeń Firmowanko.pl – katalog firm i usług Pracowanko.pl – serwis pracy Ugościmy.pl – serwis noclegów Nporta.pl – katalog firm i usług