
| Dodane przez: | braciasadurscy |
| Lokalizacja: | Reduta |
| Telefon: | {{ phone }} |
| Agent: | Malwina Filas |
| E-mail: | malwina@sadurscy.pl |
| Telefon kom.: | +48 518-706-518 |
| Udostępnij: |
Opublikowano: | Wygaśnie:
Wyświetleń: 2 | ID ogłoszenia: 74616
Numer oferty: BS2-MS-305254-89
| Typ: | Sprzedaż |
| Rynek: | Pierwotny |
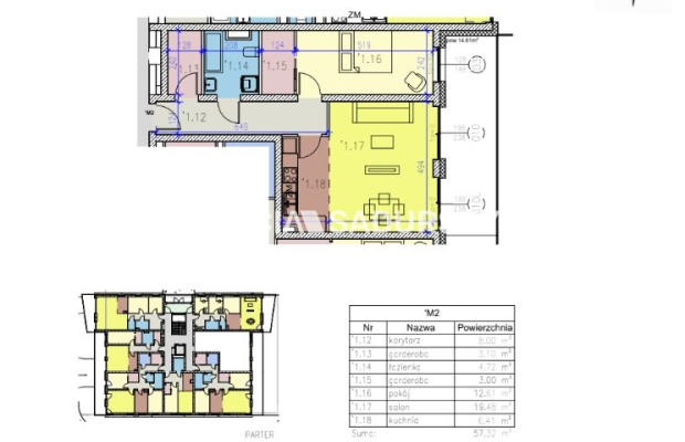
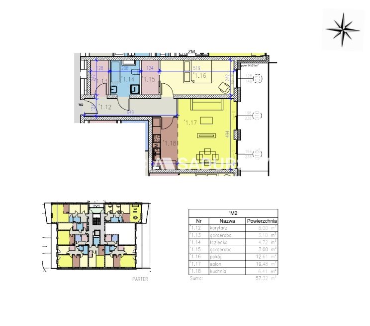
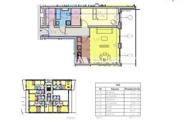
| Pow. użytkowa: | 57.32 m2 |
| Cena za m2 (zł): | 15317.52 |
| Liczba pokoi: | 2 |
| Liczba sypialni: | 1 |
| Rodzaj zabudowy: | nowe budownictwo |
| Piętro: | 0 |
| Liczba pięter: | 5 |
| Materiał budynku: | mieszana |
| Okna: | PCV |
| Rok budowy: | 2023 |
| Ogrzewanie: | C.O. miejskie |
| Stan wykończenia: | deweloperski |
| Własność: | Własność |
| Data aktualizacji: | 2026-04-16 |
Marzysz, aby mieszkać w cichej i spokojnej okolicy nie rezygnując jednocześnie z uroków miasta?
Jesteś w dobrym miejscu!
Przedstawiamy inwestycję w krakowskiej dzielnicy Prądnik Czerwony, która znajduje się tuż przy 8 hektarowym parku rekreacyjno-spacerowym. W skład wchodzą 2 budynki 6- kondygnacyjne , kolejno po 22 i 37 mieszkań. Funkcjonalne układy mieszkań mieszczące się w przedziałach od 40/41 m2- 137 m2 przypadną do gustu nawet tym najbardziej wymagającym.Inwestycja wykonana z najwyższej jakości materiałów budowlanych z dbałością o każdy szczegół.
Większość mieszkań na parterach będą mieć ogródki , na wyższych piętrach balkony . Podziemna część budynku przeznaczona jest na garaż z miejscami parkingowymi.
Wysokość pomieszczeń na poziomie 3,13 metr a w mieszkaniach zlokalizowanych na parterze dodaje wyjątkowego charakteru, umożliwiając kreatywne aranżacje z nietypowym wyposażeniem.
Dzięki temu można łatwo wydzielić różne strefy funkcjonalne, używając antresoli lub podwieszanych przegród.
Niebywałym atutem jest lokalizacja, która sprzyja osobom zarówno przemieszczającym się samochodem jak i komunikacją miejską. Pobliskie tereny bogate są w punkty usługowo-handlowe oraz rozrywkowe np. Serenada, Park Wodny, Multikino , co z pewnością odpowie potrzebom zarówno młodszych jak i starszych osób. Obecność Parku tuż obok inwestycji daje możliwość obcowania z naturą oraz spędzenia wolnego czasu na świeżym powietrzu. W bliskim sąsiedztwie zabudowy wielorodzinnej znajdują się żłobki, przedszkola oraz szkoła.
Termin zakończenia budowy zaplanowano na II kwartał 2023 r.
Zapraszam do kontaktu:
Malwina Filas
malwina@sadurscy.pl
518-706-518
Zobacz Wirtualny Spacer: https://my.matterport.com/show/?m=C1ZFf2ayZZ4
--------------------------
::GRATIS | Nasza prowizja zawiera: koszt przedwstępnej notarialnej umowy sprzedaży nieruchomości z rynku wtórnego.
::GWARANCJA | Gwarancja zwrotu zadatku. Więcej informacji na sadurscy.pl/zwrot-zadatku/
Oferta wysłana z systemu Galactica Virgo
Nic nie znaleziono
Tylko zalogowani użytkownicy mogą dodawać komentarze
* Funkcjonalny dom z poddaszem użytkowym Łabiszyn
dom w Łabiszynie | 102m2 | pięć pokoi | ogródek | Łabiszyn | Szubin | BydgoszczPrzedmiotem sprzedaży jest dom jednorodzinny w zabudowie szeregowej (segment skrajny), zlokalizowany w Łabiszynie przy ul...
449 000,00 zł
Dom, Przeginia Narodowa, Liszki, Czernichów
*zdjęcia należą do właściciela oferty Nowoczesny domu w Przeginii Narodowej, tuż obok miejscowości Liszki. Budynek jednorodzinny, wolnostojący wybudowany w 2025 r z najwyższ...
969 000,00 zł
Przytulne 2 pokojowe mieszkanie w Pile
Mieszkanie 2 pokoje, 2 piętro, gotowe do zamieszkaniaPrzytulne 2-pokojowe mieszkanie 40,58 m² w Pile - komfort i funkcjonalnośćNa sprzedaż wyjątkowo zadbane i funkcjonalne mieszkanie o powierzchni 40,...
269 000,00 zł
Działka z mediami | WZ w toku | 1043 mkw | Kaszuby
Na sprzedaż działka o powierzchni 1043 mkw, położona w miejscowości Zęblewo, gmina Szemud, w spokojnej, kaszubskiej okolicy, wśród zabudowy jednorodzinnej i terenów zielonych.Nieruchomość stanowi idea...
145 000,00 zł
Dom z widokiem na Jezioro Dobczyckie.
Dom z widokiem na Jezioro Dobczyckie - Twoje miejsce w sercu natury Z przyjemnością prezentuję wyjątkową ofertę sprzedaży nowoczesnego domu z potencjałem wykończenia „pod klucz”, położonego na...
595 000,00 zł