📢
🔥 Świętujemy 10.000 Opublikowanych Ogłoszeń 🔔 z tej Okazji mamy 10 Promowań za Free na SPRZEDAWANKO.PL🔥

Osiedle Złocień - nowe osiedle mieszkaniowe

609 000,00 zł

{{ phone }}

{{ email }}

Dodane przez: braciasadurscy
braciasadurscy
Lokalizacja: Agatowa
Telefon: {{ phone }}
Agent: Marek Popiela
E-mail: marek@sadurscy.pl
Telefon kom.: +48 518-967-677
Udostępnij:

Opublikowano:  | Wygaśnie:

Wyświetleń: 3 | ID ogłoszenia: 74109

Numer oferty: BS2-MS-310862-136

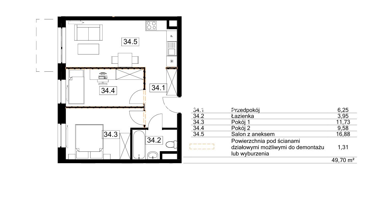
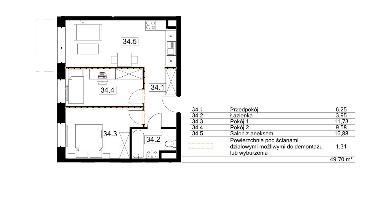
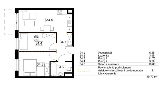
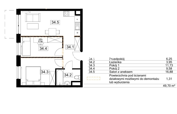
Szczegóły

Typ: Sprzedaż
Rynek: Pierwotny
Pow. użytkowa: 48.26 m2
Cena za m2 (zł): 12619.15
Liczba pokoi: 3
Liczba sypialni: 1
Rodzaj zabudowy: budynek wielorodzinny
Piętro: 0
Liczba pięter: 4
Materiał budynku: tradycyjna
Okna: PCV
Rok budowy: 2023
Ogrzewanie: C.O. miejskie
Stan wykończenia: deweloperski
Własność: Własność
Data aktualizacji: 2026-04-16

Opis


ZŁOCIEŃ - NOWOCZESNE OSIEDLE MIESZKANIOWE.

Prezentujemy nowoczesne osiedle zlokalizowane w południowo-wschodniej części miasta.
W III etapie powstanie czteropiętrowy budynek , w którym znajdują się mieszkania w przedziale od 25 do 68 m2 .

Podziemna część budynku przeznaczona jest na garaż z miejscami parkingowymi.

Mieszkania na parterach będą mieć ogródki , na wyższych piętrach balkony . Mieszkania na najwyższych piętrach będą posiadać duże tarasy na dachu.

Inwestycja budowana w tradycyjnej technologii. Mieszkania sprzedawane w stanie deweloperskim (tynki gipsowe, wylewki, instalacje).

Wokół malownicza okolica , zielona przestrzeń, a przy tym dobra komunikacja miejska. Atrakcyjne połączenie z obwodnicą S7 i A4. Niedaleko inwestycji realizowany będzie przystanek kolei aglomeracyjnej, dzięki któremu z łatwością można dostać się do centrum miasta. W okolicy znajdują się liczne sklepy spożywcze oraz inne punkty handlowo-usługowe.

Termin zakończenia budowy zaplanowano na II kwartał 2024 r.

Zapraszam do kontaktu:

Marek Popiela +48 518 967 677
marek@sadurscy.pl

--------------------------

::GRATIS | Nasza prowizja zawiera: koszt przedwstępnej notarialnej umowy sprzedaży nieruchomości z rynku wtórnego.
::GWARANCJA | Gwarancja zwrotu zadatku. Więcej informacji na sadurscy.pl/zwrot-zadatku/


Oferta wysłana z systemu Galactica Virgo

Może Cię zainteresować:

Komentarze (0)

Nic nie znaleziono

Tylko zalogowani użytkownicy mogą dodawać komentarze

Mapa

Formularz kontaktowy

This site is protected by reCAPTCHA and the Google Privacy Policy and Terms of Service apply.

Podobne ogłoszenia

Luksusowy apartament 128 mkw | 40 mkw tarasu |

Szukasz bezkompromisowego komfortu, prestiżowej lokalizacji i przestrzeni, do której możesz wprowadzić się od zaraz, zabierając ze sobą jedynie walizki?Prezentuję wyjątkowy apartament o powierzchni 12...

1 749 000,00 zł

Kujawsko-pomorskie

Nowoczesny dom z ogrodem Igołomia Kraków

Nowoczesny dom premium, 180 m², 2018 r. dwa garaże, poddasze 90 m² , Igołomia - Kraków Dom który łączy przestrzeń, komfort i nowoczesne rozwiązania. Na sprzedaż wyjątkowy dom jedno...

1 500 000,00 zł

Igołomia

* Funkcjonalny dom z poddaszem użytkowym Łabiszyn

dom w Łabiszynie | 102m2 | pięć pokoi | ogródek | Łabiszyn | Szubin | BydgoszczPrzedmiotem sprzedaży jest dom jednorodzinny w zabudowie szeregowej (segment skrajny), zlokalizowany w Łabiszynie przy ul...

449 000,00 zł

Kujawsko-pomorskie

Dom, Przeginia Narodowa, Liszki, Czernichów

*zdjęcia należą do właściciela oferty Nowoczesny domu w Przeginii Narodowej, tuż obok miejscowości Liszki. Budynek jednorodzinny, wolnostojący wybudowany w 2025 r z najwyższ...

969 000,00 zł

Przeginia Narodowa

Działka mieszkaniowo-usługowa

Działka z MPZP, usługowo-mieszkaniowa w doskonałej lokalizacji.Zapraszam do zapoznania się z ofertą.Na sprzedaż atrakcyjna działka o przeznaczeniu usługowo-mieszkaniowym,zlokalizowana w miejscowości U...

419 000,00 zł

Wielkopolskie

Przytulne 2 pokojowe mieszkanie w Pile

Mieszkanie 2 pokoje, 2 piętro, gotowe do zamieszkaniaPrzytulne 2-pokojowe mieszkanie 40,58 m² w Pile - komfort i funkcjonalnośćNa sprzedaż wyjątkowo zadbane i funkcjonalne mieszkanie o powierzchni 40,...

269 000,00 zł

Wielkopolskie

Działki z MPZP

Działki z MPZP, usługowo-mieszkaniowe w doskonałej lokalizacji. Dodatkowe informacje:Bartosz tel. 573 094 074 Na sprzedaż teren składający się z dwóch działek, o przeznaczeniu usługowo-mieszkaniowym, ...

1 599 000,00 zł

Wielkopolskie

Działka z mediami | WZ w toku | 1043 mkw | Kaszuby

Na sprzedaż działka o powierzchni 1043 mkw, położona w miejscowości Zęblewo, gmina Szemud, w spokojnej, kaszubskiej okolicy, wśród zabudowy jednorodzinnej i terenów zielonych.Nieruchomość stanowi idea...

145 000,00 zł

Pomorskie

Facebook
Facebook
Sprzedawanko.pl – serwis ogłoszeń Firmowanko.pl – katalog firm i usług Pracowanko.pl – serwis pracy Ugościmy.pl – serwis noclegów Nporta.pl – katalog firm i usług