
| Dodane przez: | braciasadurscy |
| Lokalizacja: | Pękowicka |
| Telefon: | {{ phone }} |
| Agent: | Patrycja Rubinkiewicz |
| E-mail: | patrycja@sadurscy.pl |
| Telefon kom.: | +48 505-236-943 |
| Udostępnij: |
Opublikowano: | Wygaśnie:
Wyświetleń: 3 | ID ogłoszenia: 74099
Numer oferty: BS2-MS-304000-31
| Typ: | Sprzedaż |
| Rynek: | Pierwotny |
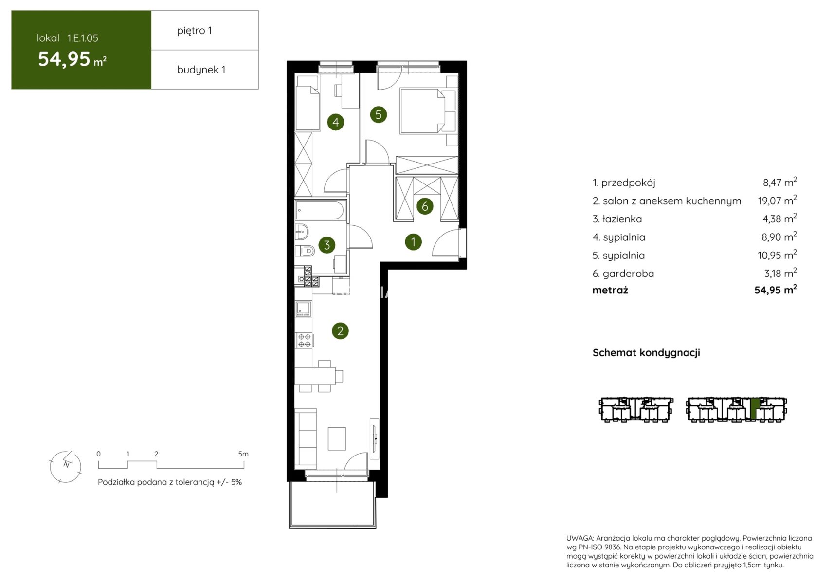
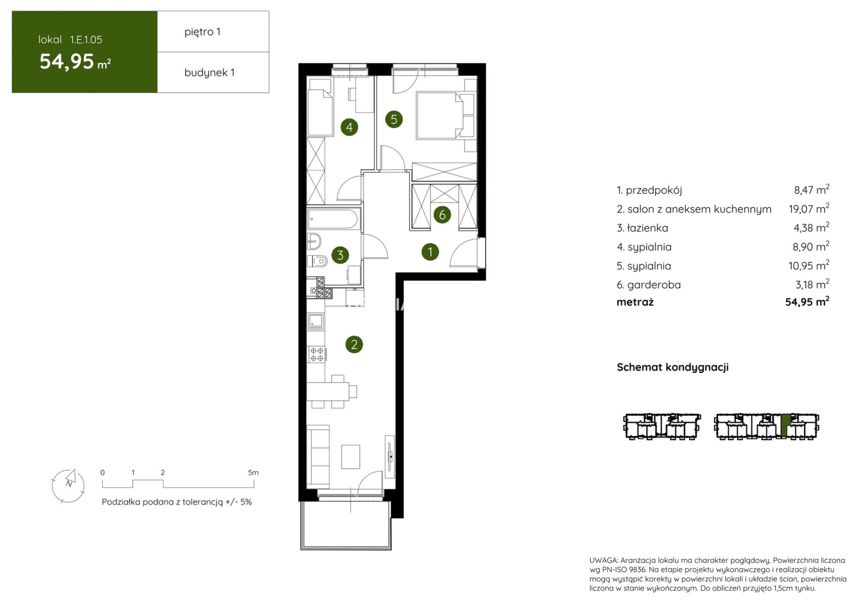
| Pow. użytkowa: | 54.95 m2 |
| Cena za m2 (zł): | 14225 |
| Liczba pokoi: | 3 |
| Liczba sypialni: | 2 |
| Rodzaj zabudowy: | blok |
| Piętro: | 1 |
| Liczba pięter: | 3 |
| Materiał budynku: | pustak |
| Okna: | PCV |
| Rok budowy: | 2024 |
| Ogrzewanie: | C.O. miejskie |
| Stan wykończenia: | deweloperski |
| Własność: | Odrębna własność lokalu |
| Data aktualizacji: | 2026-04-16 |
Z ogromną przyjemnością przedstawiamy Państwu ofertę mieszkania na sprzedaż w malowniczym rejonie Doliny Prądnika, na północy Krakowa, blisko granicy z gminą Zielonki. Nowoczesne osiedle otoczone jest rozległymi terenami zielonymi, co umożliwia codzienny kontakt z naturą i zapewnia wytchnienie od intensywnego miejskiego życia w centrum miasta.
Osiedle zostało zaprojektowane z myślą o rodzinach, parach oraz singlach, oferując szeroki wybór mieszkań o powierzchni od 26 do 73 m², w układach 1-, 2-, 3- i 4-pokojowych. Dbałość o komfort mieszkańców przejawia się w wysokiej jakości przestrzeni wspólnych, które sprzyjają nawiązywaniu sąsiedzkich relacji: skwer z ławeczkami, plac zabaw...
Budynki nowej inwestycji mające 3 i 4 kondygnacje, wyróżniają się kameralną architekturą, harmonizującą z okolicą. Przestronność obiektów gwarantuje mieszkańcom poczucie prywatności.
Zalety:
Home Management System to zaawansowana technologia inteligentnego domu, która umożliwia m.in. zarządzanie ogrzewaniem, oświetleniem i zaworami wody.
Pakiet antysmogowy w postaci filtrów montowanych w nawiewnikach okiennych dba o czystość powietrza we wnętrzach mieszkań.
Wysoki standard wykończenia części wspólnych obejmuje trwałe płytki gresowe, dekoracyjne panele imitujące drewno oraz energooszczędne oświetlenie LED.
Mieszkania na parterze posiadają tarasy z ogrodami o powierzchni do 123 m², natomiast mieszkania na wyższych kondygnacjach oferują przestronne balkony.
Termoizolacyjne łączniki balkonowe zapobiegają utracie ciepła, co przekłada się na oszczędności energetyczne.
Portfenetrowe okna zapewniają doskonałe doświetlenie wnętrz.
Na terenie osiedla zostanie zainstalowana stacja ładowania pojazdów elektrycznych, z myślą o mieszkańcach korzystających z ekologicznych środków transportu.
Zielone dachy budynków będą nie tylko estetyczne, ale również poprawią jakość powietrza i obniżą temperaturę otoczenia.
Prądnik biały to doskonale skomunikowana okolica, idealne miejsce dla osób szukających spokoju i bliskości natury, z jednoczesnym dostępem do nowoczesnych rozwiązań technologicznych.
Serdecznie zapraszam do kontaktu
Patrycja Rubinkiewicz
505 236 943
patrycja@sadurscy.pl
--------------------------
::GRATIS | Nasza prowizja zawiera: koszt przedwstępnej notarialnej umowy sprzedaży nieruchomości z rynku wtórnego.
::GWARANCJA | Gwarancja zwrotu zadatku. Więcej informacji na sadurscy.pl/zwrot-zadatku/
Oferta wysłana z systemu Galactica Virgo
Nic nie znaleziono
Tylko zalogowani użytkownicy mogą dodawać komentarze
Duże 3 pokojowe z balkonem na I piętrze!
"Nieruchomości Apartament"Mikołaj Krzyżosiak 513 383 116 Oferta dostępna tylko w naszym biurze!Na sprzedaż oferuję komfortowe mieszkanie o powierzchni 72,12 m², usytuowane na 1 piętrze w spokojnej o...
377 000,00 zł
Duże mieszkanie 134 m² w centrum Tucholi!
Na sprzedaż przestronne mieszkanie w centrum Tucholi o powierzchni 134 m².Oferuję na sprzedaż duże, funkcjonalne mieszkanie o powierzchni 134 m², położone na 2. piętrze w kamienicy w samym centrum Tuc...
350 000,00 zł
Gospodarstwo około 1,5 ha w Łazanach gm.Biskupice
Do sprzedania gospodarstwo o pow.około 1,5 ha z rozpoczętą budową/ przyziemie zaadoptowane do zamieszkania/.Powierzchnia zabudowy około 90 m2.zaadaptowane na dwa pokoje ,kuchnie,łazienkę,garaż,całoś...
650 000,00 zł
Działka budowlano-rolna w Łazanach gm.Biskupice
Działka 47 arów - część budowlana + zieleń, cicha okolica, media, atrakcyjna cena! Na sprzedaż działka o powierzchni 47 arów , w kształcie zbliżonym do prostokąta. Nieruchomość położona jest na...
390 000,00 zł
Gospodarstwo około 2 ha w Łazanach gm.Biskupice
Na sprzedaż: Gospodarstwo z działkami o łącznej powierzchni ok. 2 ha - rozpoczęta budowa, możliwość zamieszkania! Na sprzedaż nieruchomość gruntowa o łącznej powierzchni około 2 hektarów , ...
950 000,00 zł