📢
🔥 Bezpłatny Serwis Ogłoszeniowy 🔔 Dodaj Ogłoszenie Za Darmo Na SPRZEDAWANKO.PL🔥

Działka usługowo – inwestycyjna z pnb w Chrzanowie

397 000,00 zł

{{ phone }}

{{ email }}

Dodane przez: braciasadurscy
braciasadurscy
Lokalizacja: Śląska
Telefon: {{ phone }}
Agent: Marek Wawrzeń
E-mail: marek3@sadurscy.pl
Telefon kom.: +48 798-352-683
Udostępnij:

Opublikowano:  | Wygaśnie:

Wyświetleń: 4 | ID ogłoszenia: 72528

Numer oferty: BS5-GS-300443-67

Szczegóły

Typ: Sprzedaż
Rynek: Wtórny
Pow. użytkowa: 1155 m2
Cena za m2 (zł): 343.72
Własność: własność
Typ działki: budowlana
Szer. działki (m): 54
Nr licencji: 26458
Data aktualizacji: 2026-04-08

Opis


D ziałka usługowo - inwestycyjna z pnb w Chrzanowie

Oferujemy na sprzedaż działkę budowlaną położoną w Chrzanowie przy ul. Śląskiej (głównej drodze prowadzącej do Jaworzna), w pobliżu zjazdu z autostrady A4.
Działka o powierzchni 1155 m 2 , w kształcie prostokąta o wymiarach z ok. 21 x 54 m. Teren płaski, niezabudowany i niezadrzewiony.

Nieruchomość posiada prawomocne pozwolenie na budowę z pełną dokumentacją do zaplanowanej inwestycji tj. budowy budynku usługowo - handlowego wraz z infrastrukturą techniczną, z uwzględnieniem budowy zjazdu publicznego z drogi gminnej.

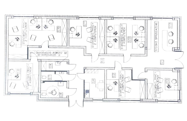
OPIS INWESTYCJI
Planowana inwestycja ma polegać na budowie budynku usługowo - handlowego o nw. parametrach:
1. Zestawienie powierzchni użytkowej budynku:
pow. zabudowy - 230 m 2
kubatura - 724 m3
pow. całkowita - 179,58 m 2
pow. użytkowa - 179,58 m 2

2. Rozkład pomieszczeń:
hol - 3,93 m 2
biuro - 13,2 m 2
biuro - 14,86 m 2
pom. socjalne - 8,88 m 2
komunikacja - 32,15 m 2
wc - 6,29 m 2
wc - 3,6 m 2
pom. gospodarcze - 3,6 m 2
biuro - 14,42 m 2
biuro - 28,09 m 2
biuro - 16,97 m 2
biuro - 20,24 m 2
pom. handlowe - 13,35 m 2
RAZEM: 179,58 m 2

Przy budynku zaplanowano wykonanie 8 miejsc postojowych.

WARUNKI ZABUDOWY
Decyzja o warunkach zabudowy przewiduje nw. parametry:
- powierzchnia inwestycji - 70%
- powierzchnia biologicznie czynna - min. 30%
- wysokość budynku - 11 m (co pozwala na ewentualną rozbudowę planowanego budynku)

MEDIA:
- prąd, woda, gaz, kanalizacja - znajdują się przy działce
- wydano warunki przyłączy dla wszystkich mediów
- światłowód przy działce

INNE:
działka utwardzona ok. 10 lat temu kamieniem

FORMA WŁASNOŚCI:
uregulowana, bez obciążeń

Biuro pomaga bezpiecznie przeprowadzić transakcję.

Szczegóły oferty
798 352 683
marek3@sadurscy.pl


Zobacz Wirtualny Spacer: https://panoramy.galactica.pl/virgo/447589

Pośrednik odpowiedzialny zawodowo za wykonanie umowy pośrednictwa: Marek Wawrzeń (licencja nr: 26458)


Oferta wysłana z systemu Galactica Virgo

Może Cię zainteresować:

Film z Youtube

Wirtualny spacer

Komentarze (0)

Nic nie znaleziono

Tylko zalogowani użytkownicy mogą dodawać komentarze

Mapa

Formularz kontaktowy

This site is protected by reCAPTCHA and the Google Privacy Policy and Terms of Service apply.

Podobne ogłoszenia

GOTOWY DOM DO WPROWADZENIA - OKAZJA

Twój azyl spokoju w Łochowie - nowoczesny dom, w którym chce się żyćWyobraź sobie poranek z kawą na zadaszonym tarasie, śpiew ptaków i zieleń własnego, starannie zaprojektowanego ogrodu… a to wszystko...

1 090 000,00 zł

Kujawsko-pomorskie

Wola: mieszkanie na wynajem

Warszawa - Do wynajęcia: mieszkanie o pow. 120 m2 na 7 piętrze bloku mieszkalnego na warszawskiej Woli, w okolicach ul. Okopowej,poleca Agencja Nieruchomości Property Office (tel. 731-321-117, mail: k...

8 000,00 zł

Warszawa

Targówek: lokal biurowy na wynajem

Warszawa - Do wynajęcia: lokal biurowy o pow. 140 m2 na 2 piętrze w budynku biurowym na terenie kompleksu magazynowo- biurowego na warszawskim Targówku, w okolicach ul. Rzecznej, poleca Property Offic...

7 700,00 zł

Warszawa

Ursus: lokal biurowy na wynajem

Warszawa - Do wynajęcia: lokal biurowy o pow. 28 m2 na 4 piętrze w budynku biurowym w warszawskim Ursusie,poleca Agencja Nieruchomości Property Office (tel. 731-321-117, mail: katarzyna@propertyoffice...

1 540,00 zł

Warszawa

Ursus: lokal biurowy na wynajem

Warszawa - Do wynajęcia biuro o pow. 22,78 m2 na 2 piętrze w budynku biurowym w Ursusie w okolicach ul. Wojciechowskiego.poleca Agencja Nieruchomości Property Office (tel. 731-321-117, mail: katarzyna...

1 253,00 zł

Warszawa

Ursus: lokal biurowy na wynajem

Warszawa - Do wynajęcia: biuro do pow. 13,60m2 na 1 piętrze w budynku biurowym w Ursusie w okolicach ul. Wojciechowskiego.poleca Property Office (tel. 731-321-117, mail: katarzyna@propertyoffice.pl)--...

1 020,00 zł

Warszawa

Ursus: lokal biurowy na wynajem

Warszawa - Do wynajęcia: biuro do pow. 56 m2 na 2 piętrze w budynku biurowym w warszawskim Ursusie w okolicach ul. Wojciechowskiego.poleca Agencja Nieruchomości Property Office (tel. 731-321-117, mail...

3 080,00 zł

Warszawa

Ursus: lokal biurowy na wynajem

Włochy - Do wynajęcia: biuro do pow. 56 m2 na 2 piętrze w budynku biurowym w warszawskim Ursusie w okolicach ul. Wojciechowskiego.poleca Agencja Nieruchomości Property Office (tel. 731-321-117, mail: ...

2 505,00 zł

Warszawa

Ursus: lokal biurowy na wynajem

Warszawa - Do wynajęcia: 3-pokojowe biuro o pow. 40,80 m2 na parterze w budynku biurowym w warszawskim Ursusie w okolicach ul. Wojciechowskiego.poleca Agencja Nieruchomości Property Office (tel. 731-3...

3 060,00 zł

Warszawa

Mokotów: lokal biurowy na wynajem

Warszawa - Do wynajęcia: lokal biurowy o pow. 20 m2 na 1 piętrze budynku biurowego na warszawskim Mokotowie (Siekierki), w okolicach ul. Bartyckiej,poleca Agencja Nieruchomości Property Office (tel. 7...

1 500,00 zł

Warszawa

Targówek: lokal biurowo-magazynowy na wynajem

Warszawa - Do wynajęcia lokal biurowo-magazynowy o pow. 857 m2 na parterze hali magazynowej na warszawskim Targówku, w okolicach ul. Zabranieckiej.poleca Agencja Nieruchomości Property (tel. 731-321-1...

25 056,00 zł

Warszawa

Żoliborz: lokal biurowo-usługowy na wynajem

Warszawa - Do wynajęcia: lokal usługowo-biurowy o pow. 7 m2 na parterze budynku biurowo-usługowego na warszawskim Żoliborzu, niedaleko stacji Metro Marymont.poleca Agencja Nieruchomości Property Offic...

600,00 zł

Warszawa

Mokotów: lokal biurowy na wynajem

Warszawa - Do wynajęcia: 2-pokojowy lokal biurowy o pow. 40 m2 na 1 piętrze budynku biurowego warszawskim Mokotowie (Siekierki), w okolicach ul. Bartyckiej, poleca Agencja Nieruchomości Property Offic...

2 800,00 zł

Warszawa

Śródmieście: biuro serwisowane na wynajem

Warszawa - Do wynajęcia: umeblowane biuro dla 5 osób na 1 piętrze kameralnego biurowca, na warszawskim Trakcie Królewskim, w okolicach Placu Zamkowego,poleca Agencja Nieruchomości Property Office (tel...

1 500,00 zł

Warszawa

Śródmieście: biuro serwisowane na wynajem

Warszawa - Do wynajęcia: biuro serwisowane dla 4 osób na 1 piętrze kameralnego biurowca, na warszawskim Trakcie Królewskim, w OKOLICACH Placu Zamkowego,poleca Agencja Nieruchomości Property Office (te...

1 600,00 zł

Warszawa

Śródmieście: biuro serwisowane na wynajem

Warszawa - Do wynajęcia: biuro serwisowane dla 3 osób na 1 piętrze kameralnego biurowca, na warszawskim Trakcie Królewskim, w okolicach Placu Zamkowego,poleca Agencja Nieruchomości Property Office (te...

1 500,00 zł

Warszawa

Śródmieście: biuro serwisowane na wynajem

Warszawa - Do wynajęcia: biuro serwisowane dla 6 osób na 1 piętrze kameralnego biurowca, na warszawskim Trakcie Królewskim, w okolicach Placu Zamkowego,poleca Agencja Nieruchomości Property Office (te...

2 200,00 zł

Warszawa

Śródmieście: biuro serwisowane na wynajem

Warszawa - Do wynajęcia: biuro serwisowane dla 9 osób na 1 piętrze kameralnego biurowca, na warszawskim Trakcie Królewskim, w okolicach Placu Zamkowego,poleca Property Office (tel. 731-321-117, mail: ...

3 200,00 zł

Warszawa

Śródmieście: lokal na usługi medyczne na wynajem

Warszawa - Do wynajęcia: lokal o pow. 690 m2 na usługi medyczne w kameralnym biurowcu, na warszawskim Trakcie Królewskim, w okolicach Placu Zamkowego,poleca Agencja Nieruchomości Property Office (tel....

27 600,00 zł

Warszawa

Śródmieście: biuro serwisowane na wynajem

Warszawa - Do wynajęcia: biuro serwisowane dla 5 osób na 1 piętrze kameralnego biurowca, na warszawskim Trakcie Królewskim, w okolicach Placu Zamkowego,poleca Agencja Nieruchomości Property Office (te...

1 500,00 zł

Warszawa

Facebook
Facebook
Sprzedawanko.pl – serwis ogłoszeń Firmowanko.pl – katalog firm i usług Pracowanko.pl – serwis pracy Ugościmy.pl – serwis noclegów Nporta.pl – katalog firm i usług