📢
🔥 Bezpłatny Serwis Ogłoszeniowy 🔔 Dodaj Ogłoszenie Za Darmo Na SPRZEDAWANKO.PL🔥

Śródmieście: lokal gastronomiczny na wynajem

9 322,00 zł

{{ phone }}

{{ email }}

Dodane przez: PropertyOffice
Lokalizacja: Bielańska
Telefon: {{ phone }}
Agent: Property Office Sp. o.o.
E-mail: katarzyna@propertyoffice.pl
Telefon kom.:
Udostępnij:

Opublikowano:  | Wygaśnie:

Wyświetleń: 5 | ID ogłoszenia: 72181

Numer oferty: 360502

Szczegóły

Typ: Wynajem
Rynek: Nie
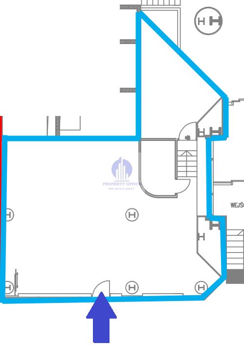
Pow. użytkowa: 124.3 m2
Piętro: 0
Liczba pięter: 27
Rok budowy: 1991
Ogrzewanie: miejskie
Stan wykończenia: bardzo dobry
Własność: własność
Telefon biuro: 731321117
Nr licencji: 22020
Data aktualizacji: 2026-04-09 14:09:58
Inwestycja:
Typ lokalu: handel i usługi/lokal gastronomiczny

Opis

Warszawa - Do wynajęcia: lokal gastronomiczny o pow.124,30m2 na parterze biurowca na warszawskim Śródmieściu, w okolicach ul. Bielańskiej,

poleca Agencja Nieruchomości Property Office (tel. 731-321-117; mail: katarzyna@propertyoffice.pl)

----------------Bez prowizji od Najemcy------------

Powierzchnia z przeznaczeniem na działalność gastronomiczną.

Sala konsumpcyjna + toaleta dla klientów (przystosowana dla osób z niepełnosprawnościami) + zaplecze socjalne dla pracowników + magazynek.

Standard: do odświeżenia, i małego remontu; ewentualnie do zmiany aranżacji powierzchni.

Lokal po kawiarni (rezygnacja z lokalu z powody zmiany koncepcji biznesowej).

Brak gazu w budynku,.

Wysokość: około 4 m

Sufit podwieszany.

Gres na podłodze.

Lokal posiada duże przeszklone witryny oraz oświetlenie punktowe na suficie.

Bardzo duży ruch pieszych w sąsiedztwie lokalu.

Całodobowy dostęp.

Na miesięczne koszty najmu netto składają się:

-czynsz: 9322,50 EUR,

-opłata eksploatacyjna: 30 PLN/m2 (3729 PLN),

-zużycie mediów,

Opłaty naliczane są od powierzchni brutto, tzn. z wliczonym współczynnikiem powierzchni wspólnych (6%).

Powierzchnia netto: 113 m2

Powierzchnia brutto: 124,30 m2

Bez opłat marketingowych i odstępnego.

Możliwość uzyskania zachęt finansowych od Wynajmującego.

Internet: odrębna umowa z operatorem telekomunikacyjnym.

Parking:

Obiekt zapewnia dostęp do około 10 naziemnych oraz 30 podziemnych miejsc parkingowych.

w. 125,00/250.00 EUR/stanowisko/miesiąc,

umowa:

-czas określony: 10 lat (do ustalenia),

-kaucja/gwarancja bankowa: 3 miesiące,

-akt 777 kpc na płatności i zwrot przedmiotu najmu,

Opis budynku:

Budynek biurowy oferujący atrakcyjne biura od pojedynczych gabinetów po duże moduły biurowe.

Okablowanie komputerowe.

Kontrola dostępu.

Czujniki dymu.

BMS.

W budynku: kawiarnia, kiosk, drogeria, bank, bankomat.

W okolicy budynku: gastronomia, pkt. usługowe, zróżnicowany transport publiczny, apteka, sklepy

Zalety lokalizacji:

Budynek jest doskonale skomunikowany z cała Warszawą : stacja metra Ratusz Arsenał, tramwaje, autobusy ZTM, autobusy podmiejskie.

Dużym walorem jest sąsiedztwo Parku Saskiego oraz obiektów kultury jak Kino Muranów czy Teatr Capitol.

W pobliżu znajduje się wiele punktów handlowych, usługowych, bankowych czy gastronomicznych dużych sieci (KFC, Pizza Hut) oraz Urząd Wojewódzki.

Do podanych cen należy doliczyć podatek VAT w wysokości 23 %

Zdjęcia pokazują ogólny standard budynku.

Zapraszam na spotkanie w celu obejrzenia lokalu

Zachęcam do kontaktu telefonicznego pod numerem: 731-321-117

Po więcej ofert warszawskich biur, magazynów czy lokali usługowych do wynajęcia, zapraszam na stronę:

https://www.propertyoffice.pl/

Treść niniejszego ogłoszenia nie stanowi oferty handlowej w rozumieniu art.66 1 kodeksu cywilnego oraz innych właściwych przepisów prawnych.

Treść niniejszego ogłoszenia nie stanowi oferty handlowej w rozumieniu art.66 1 kodeksu cywilnego oraz innych właściwych przepisów prawnych.

Oferta wysłana z programu IMO dla biur nieruchomości

Może Cię zainteresować:

Komentarze (0)

Nic nie znaleziono

Tylko zalogowani użytkownicy mogą dodawać komentarze

Mapa

Formularz kontaktowy

This site is protected by reCAPTCHA and the Google Privacy Policy and Terms of Service apply.

Podobne ogłoszenia

Wola: lokal biurowy na wynajem

Warszawa - Do wynajęcia: lokal biurowy o pow. 12,56 m2 na 3 piętrze w budynku biurowym w okolicach ul. Górczewskiej i stacji metra Ks. Janusza,poleca Agencja Nieruchomości Property Office (tel. 731-32...

690,00 zł

Warszawa

Wola: lokal biurowy na wynajem

Warszawa - Do wynajęcia: lokal biurowy o pow.35,59 m2 , na parterze budynku biurowego na warszawskiej Woli w okolicach ul. Górczewskiej i stacji metra Ks. Janusza.poleca Agencja Nieruchomości Property...

1 957,00 zł

Warszawa

Wola:lokal biurowy na wynajem

Warszawa - Do wynajęcia: 1-pokojowy lokal biurowy o pow.14,51 m2 na 2 piętrze w budynku biurowym na warszawskiej Woli, w okolicach stacji metra Ks. Janusza, poleca Agencja Nieruchomości Property Offic...

798,00 zł

Warszawa

Śródmieście : lokal biurowy na wynajem

Warszawa - Do wynajęcia: atrakcyjny lokal biurowy o pow.37,40 m2 w centrum Warszawy, w kameralnym budynku biurowym w okolicach ul. Marszałkowskiej,poleca Agencja Nieruchomości Property Office (tel. 73...

635,00 zł

Warszawa

Śródmieście : lokal handlowo-usługowy na wynajem

Warszawa - Do wynajęcia: lokal usługowo-biurowy o pow.198 m2 w kameralnym apartamentowcu w centrum Warszawy, w okolicach ul. Żurawiej,poleca Agencja Nieruchomości Property Office (tel. 731-321-117, ma...

3 764,00 zł

Warszawa

Śródmieście : lokal biurowy na wynajem

Warszawa - Do wynajęcia: atrakcyjny lokal biurowy o pow.62,70 m2 w centrum Warszawy, w kameralnym budynku biurowym w okolicach ul. Marszałkowskiej,poleca Agencja Nieruchomości Property Office (tel. 73...

1 065,00 zł

Warszawa

Śródmieście : lokal biurowy na wynajem

Warszawa - Do wynajęcia: atrakcyjny lokal biurowy o pow.18,70 m2 w centrum Warszawy, w kameralnym budynku biurowym w okolicach ul. Marszałkowskiej,poleca Agencja Nieruchomości Property Office (tel. 73...

318,00 zł

Warszawa

Mokotów: lokal biurowy na wynajem

Warszawa- Do wynajęcia: lokal biurowy o pow.50,37 m2 na niskim parterze w budynku biurowym na warszawskim Mokotowie, w okolicach ul. Chełmskiej.poleca Agencja Nieruchomości Property Office (tel. 731-3...

2 165,00 zł

Warszawa

Mokotów: lokal biurowy na wynajem

Warszawa - Do wynajęcia: lokal biurowy o pow.224,62m2 m2 na 1 piętrze w budynku biurowym na warszawskim Mokotowie, w okolicach ul. Chełmskiej.poleca Agencja Nieruchomości Property Office (tel. 731-321...

12 346,00 zł

Warszawa

Targówek: magazyn 173 m2

Warszawa - Do wynajęcia: magazyn o pow.173 m2 na terenie kompleksu magazynowo- biurowego na warszawskim Targówku w okolicach ul. Rzecznej,poleca Property Office (tel. 731-321-117, mail: katarzyna@prop...

7 000,00 zł

Warszawa

Wola: lokal biurowy na wynajem

Warszawa - Do wynajęcia: lokal biurowy o pow.25 m2 na 1 piętrze kameralnego budynku magazynowo- biurowego na warszawskiej Woli, w okolicach ul. Kasprzaka,poleca Agencja Nieruchomości Property Office (...

1 400,00 zł

Warszawa

Wilanów : lokal biurowy na wynajem

Warszawa - Do wynajęcia: klimatyzowany lokal biurowy o pow.24 m2 na 3 piętrze kameralnego biurowca na warszawskim Wilanowie, w okolicach ul. Nałęczowskiej. poleca Agencja Nieruchomości Property Office...

2 568,00 zł

Warszawa

Wilanów : lokal biurowy na wynajem

Warszawa - Do wynajęcia: klimatyzowany lokal biurowy o pow.18 m2 na niskim parterze kameralnego biurowca na warszawskim Wilanowie, w okolicach ul. Nałęczowskiej. poleca Agencja Nieruchomości Property ...

1 907,00 zł

Warszawa

Targówek: magazyn/usługi 335 m2

Warszawa - Do wynajęcia: lokal usługowo-magazynowy o pow. 335 m2 na parterze budynku biurowego na warszawskim Targówku, w okolicach ul. Rzecznej, poleca Property Office (tel. 731-321-117, mail: katarz...

15 000,00 zł

Warszawa

Wilanów : lokal biurowy na wynajem

Warszawa - Do wynajęcia: klimatyzowany lokal biurowy o pow.28 m2 na niskim parterze kameralnego biurowca na warszawskim Wilanowie, w okolicach ul. Nałęczowskiej. poleca Agencja Nieruchomości Property ...

2 967,00 zł

Warszawa

Wilanów : lokal biurowy na wynajem

Warszawa - Do wynajęcia: klimatyzowany lokal biurowy o pow.27 m2 na 3 piętrze kameralnego biurowca na warszawskim Wilanowie, w okolicach ul. Nałęczowskiej. poleca Agencja Nieruchomości Property Office...

2 889,00 zł

Warszawa

Wola: lokal na wynajem

Warszawa - Do wynajęcia: klimatyzowany lokal biurowy o pow. 38,10 m2 na 6 piętrze w biurowcu na warszawskiej Woli, w okolicach ul. Żelaznej, poleca Agencja Nieruchomości Property Office (tel. 731-321-...

4 650,00 zł

Warszawa

Wilanów : lokal biurowo-usługowy na wynajem

Warszawa - Do wynajęcia: lokal usługowo-biurowy o pow.65 m2 na parterze domu jednorodzinnego na warszawskim Wilanowie, w okolicach ul. Królowej Marysieńkipoleca Agencja Nieruchomości Property Office (...

5 000,00 zł

Warszawa

Wilanów : lokal biurowy na wynajem

Warszawa - Do wynajęcia: klimatyzowany lokal biurowy o pow.31,50 m2 na 3 piętrze kameralnego biurowca na warszawskim Wilanowie, w okolicach ul. Nałęczowskiej. poleca Agencja Nieruchomości Property Off...

3 371,00 zł

Warszawa

Targówek: lokal biurowy na wynajem

Warszawa - Do wynajęcia: lokal biurowy o pow.19 m2 na parterze budynku biurowo-magazynowego na warszawskim Targówku ,w okolicach ul. ks. Ziemowita,poleca Agencja Nieruchomości Property Office (tel. 73...

874,00 zł

Warszawa

Facebook
Facebook
Sprzedawanko.pl – serwis ogłoszeń Firmowanko.pl – katalog firm i usług Pracowanko.pl – serwis pracy Ugościmy.pl – serwis noclegów Nporta.pl – katalog firm i usług