📢
🔥 Bezpłatny Serwis Ogłoszeniowy 🔔 Dodaj Ogłoszenie Za Darmo Na SPRZEDAWANKO.PL🔥

Twój dom marzeń – 5 pokoi, standard PREMIUM

1 018 250,00 zł

{{ phone }}

{{ email }}

Dodane przez: HomePartner
HomePartner
Lokalizacja: Lipowa
Telefon: {{ phone }}
Agent: Monika Łabęska - Cioch
E-mail: biuro@home-partner.com.pl
Telefon kom.: 536 496 163
Udostępnij:

Opublikowano:  | Wygaśnie:

Wyświetleń: 6 | ID ogłoszenia: 72071

Numer oferty: 20773

Szczegóły

Typ: Sprzedaż
Pow. użytkowa: 131.73 m2
Pow. działki: 330 m2
Pow. całkowita: 131.73 m2
Liczba pokoi: 5
Liczba sypialni: 4
Liczba pięter: 1
Rodzaj zabudowy: szeregowy
Materiał budynku: ceramiczny Porotherm
Okna: PCV
Podłogi: beton
Rok budowy: 2025
Ogrzewanie: pompa ciepła
Własność: własność
Dach: dachówka ceramiczna
Telefon biuro:
Nr licencji: 23243
Data aktualizacji: 2026-04-07 11:51:51

Opis

Na sprzedaż energooszczędny dom w zabudowie szeregowej o powierzchni użytkowej 131,73 m, wyróżniający się wykończeniem w standardzie PREMIUM.

Nieruchomość usytuowana jest na wydzielonej działce.

Budynki w klasie PREMIUM charakteryzują się najwyższą jakością wykonania oraz zastosowaniem najlepszych materiałów.

Rynek pierwotny kupujący nie płaci prowizji oraz podatku PCC.

I ETAP INWESTYCJI DEWELOPERSKIEJ W GNIECHOWICACH. Docelowo zaprojektowano 10 domów w zabudowie szeregowej na działkach o wielkościach od 210 do 470 m2.

Zakończenie budowy GRUDZIEŃ 2025 r

Przekazanie domów: I Q 2026 r.

Przeniesienie własności: II Q 2026 r.

Rynek pierwotny. Kupujący nie płaci prowizji i podatku PCC.

Dom J, z ogrodem, usytuowany na działce 330 m2, pięć pokoi, kuchnia w aneksie, dwie łazienki, garaż. W cenie pełna pompa ciepła, rolety zewnętrzne na parterze, kabel do fotowoltaiki.

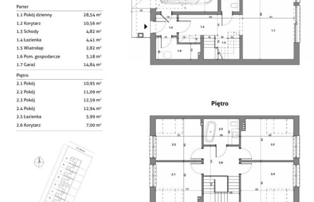
UKŁAD POMIESZCZEŃ

Parter: obszerny salon z aneksem kuchennym (28,54 m2) i z wyjściem na taras/ogród o wschodnio-południowej ekspozycji, łazienka (4,41 m2), pomieszczenie gospodarcze (5,18m2), garaż w bryle budynku (14,84)

I piętro: cztery ustawne sypialnie (10,95 m2, 11,09 m2, 12,59 m2, 12,94 m2, łazienka (5,99m2)

STANDARD

Podwyższony standard wykończenia:

- oszczędna pompa ciepła z możliwością chłodzenia w upalne dni

- kabel do instalacji fotowoltaicznej

- komfortowe i funkcjonalne ogrzewanie podłogowe w całym domu

- rolety zewnętrzne sterowane automatycznie na parterze budynku

- światłowód

- drzwi antywłamaniowe klasy C renomowanej firmy

- powierzchnie tarasów z płyt betonowych lub deski kompozytowej

- ściany z porothermu, dachówka ceramiczna

-okna pcv pięciokomorowe trzyszybowe

- ogrzewanie podłogowe , również w garażu

zbiornik na deszczówkę 4 tys litrów wkopany w ziemię

- dachówka ceramiczna z powłoką antyglonową

MEDIA

prąd, woda, zbiornik bezodpływowy

CENA: 1 018 250 zł

LOKALIZACJA I KOMUNIKACJA

Dom położony jest w miejscowości Gniechowice, w gminie Kąty Wrocławskie.

Spokojna i zielona okolica. Położenie na skraju Parku Krajobrazowego Doliny Bystrzycy daje możliwość kontaktu z pięknem natury i prowadzenia aktywnego trybu życia.

Dobry dojazd :

- do centrum Wrocławia - ok.25 min.

- do Centrum Handlowego Bielany Wrocławskie ok. 14 min

- do Kątów Wrocławskich 8 min.

- do Sobótki - 13 min.

- do Kobierzyc - 11 min.

- do autostrady A4 - 10 min.

- do portu lotniczego Wrocław- 20 min.

- do pałacu Krobielowice - 4km

Kursują także gminne autobusy, autobusy międzymiastowe oraz prywatne busy.

TEREN NIEZALEWOWY

Dom zlokalizowany z dala od zgiełku aglomeracji. Jednocześnie bliskość Wrocławia powoduje, że można łączyć pracę zawodową w mieście ze spokojem i ciszą wsi. W miejscowości sklep, kościół, restauracja, sklep Lewiatan, cukiernia i piekarnia, a także szkołą podstawowa, przedszkole w pobliskim Pustkowie Żurawskim oddalonym o ok. 6 km.

ZALETY OFERTY:

- doskonała lokalizacja

- funkcjonalny układ domu

- 5 pokoi

- spokojna okolica

- podwyższony standard wykończenia

Zapraszam do rozmów i obejrzenia domu. www.home-partner.com.pl Tel. 536 496 163

Feel free to contact us, talk and see the apartment. For more information please call us Tel +48 889 759 863.

Por favor contáctenos para conocer más sobre la oferta y ver el apartamento. Podemos ayudar con todos los trámites. Para más información por favor llámanos +48 889 759 863.

Treść niniejszego ogłoszenia nie stanowi oferty handlowej w rozumieniu Kodeksu Cywilnego.

Oferta wysłana z programu IMO dla biur nieruchomości

Może Cię zainteresować:

Komentarze (0)

Nic nie znaleziono

Tylko zalogowani użytkownicy mogą dodawać komentarze

Mapa

Formularz kontaktowy

This site is protected by reCAPTCHA and the Google Privacy Policy and Terms of Service apply.

Podobne ogłoszenia

Śródmieście: lokal biurowy na wynajem

Warszawa - Do wynajęcia: lokal biurowy o pow. 311,47 m2 na warszawskim Śródmieściu, w kamienicy biurowej w okolicach ul. Królewskiej i Ogrodu Saskiego, poleca Agencja Nieruchomości Property Office (te...

5 917,00 zł

Warszawa

Śródmieście: lokal usługowo-handlowy na wynajem

Warszawa - Do wynajęcia: lokal usługowo-handlowy o pow. 344 m2 na warszawskim Śródmieściu,, w kamienicy biurowej w okolicach ul. Królewskiej i Ogrodu Saskiego, poleca Agencja Nieruchomości Property Of...

8 772,00 zł

Warszawa

Śródmieście: lokal biurowy na wynajem

Warszawa - Do wynajęcia: klimatyzowany lokal biurowy o pow.17 m2 na 3 piętrze budynku biurowego w Śródmieściu Warszawy, w okolicach stacji Metro Politechnika, poleca Agencja Nieruchomości Property Off...

1 020,00 zł

Warszawa

Śródmieście: lokal biurowy na wynajem

Warszawa - Do wynajęcia: klimatyzowany lokal biurowy o pow.21 m2 na 2 piętrze budynku biurowego w Śródmieściu Warszawy, w okolicach stacji Metro Politechnika, poleca Agencja Nieruchomości Property Off...

1 260,00 zł

Warszawa

Śródmieście: lokal biurowy na wynajem

Warszawa - Do wynajęcia: lokal biurowy o pow. 797 m2 w Centrum, w kamienicy biurowej w okolicach ul. Królewskiej i Ogrodu Saskiego, poleca Agencja Nieruchomości Property Office (tel. 731-321-117, mail...

15 143,00 zł

Warszawa

Śródmieście: lokal biurowy na wynajem

Warszawa - Do wynajęcia: lokal biurowy o pow. 29 m2 na 1 piętrze budynku biurowego w Śródmieściu Warszawy, w okolicach stacji Metro Politechnika, poleca Agencja Nieruchomości Property Office (tel. 731...

1 740,00 zł

Warszawa

Śródmieście: lokal biurowy na wynajem

blisko stacji Metro Politechnika---------------------------------------------------Warszawa- Do wynajęcia: klimatyzowany lokal biurowy o pow. 22 m2 na 3 piętrze budynku biurowego w Śródmieściu Warszaw...

1 320,00 zł

Warszawa

Mokotów: lokal biurowy na wynajem

Warszawa - Do wynajęcia: lokal biurowy o pow. 77 m2 na 5 piętrze w budynku biurowym na warszawskim Mokotowie, w okolicach Placu Unii Lubelskiej.poleca Agencja Nieruchomości Property Office (tel. 731-3...

4 119,00 zł

Warszawa

Mokotów: lokal biurowy na wynajem

Warszawa - Do wynajęcia: 1-pokojowe biuro o pow. 37 m2 na 4 piętrze w budynku biurowym na warszawskim Mokotowie, w okolicach Placu Unii Lubelskiej.poleca Agencja Nieruchomości Property Office (tel. 73...

1 979,00 zł

Warszawa

Mokotów: lokal biurowy na wynajem

Warszawa - Do wynajęcia: 1-pokojowy lokal biurowy o pow. 55,19 m2 na 5 piętrze w budynku biurowym na warszawskim Mokotowie, w okolicach Placu Unii Lubelskiej.poleca Agencja Nieruchomości Property Offi...

2 952,00 zł

Warszawa

Mokotów: lokal biurowy na wynajem

Warszawa - Do wynajęcia: lokal biurowy o pow. 84,66 m2 na 3 piętrze w budynku biurowym na warszawskim Mokotowie, w okolicach Placu Unii Lubelskiej.poleca Agencja Nieruchomości Property Office (tel. 73...

4 529,00 zł

Warszawa

Mokotów: lokal biurowy na wynajem

Warszawa - Do wynajęcia: 1-pokojowy lokal biurowy o pow. 22 m2 na 5 piętrze w budynku biurowym na warszawskim Mokotowie, w okolicach Placu Unii Lubelskiej.poleca Agencja Nieruchomości Property Office ...

1 177,00 zł

Warszawa

Mokotów: lokal biurowy na wynajem

Warszawa - Do wynajęcia lokal biurowy o pow. 152 m2 na 4 piętrze w budynku biurowym na warszawskim Mokotowie, w okolicach Placu Unii Lubelskiej.poleca Agencja Nieruchomości Property Office (tel. 731-3...

8 132,00 zł

Warszawa

Wola: lokal biurowy na wynajem

Do wynajęcia: 1-pokojowy lokal biurowy o pow.14,42 m2 na 3 piętrze budynku biurowego na warszawskiej Woli, w okolicach ul. Księcia Janusza,poleca Agencja Nieruchomości Property Office (tel. 731-321-11...

865,00 zł

Warszawa

Mokotów: 1-pokojowy lokal biurowy na wynajem

Warszawa - Do wynajęcia: 1-pokojowy lokal biurowy o pow. 27,50 m2 na 1 piętrze w budynku biurowym na warszawskim Mokotowie, w okolicach Placu Unii Lubelskiej.poleca Agencja Nieruchomości Property Offi...

1 471,00 zł

Warszawa

Wola: lokal biurowy na wynajem

Warszawa - Do wynajęcia: lokal biurowy o pow.82,29 m2 na 2 piętrze w budynku biurowym w okolicach stacji metra Ks. Janusza , poleca Agencja nieruchomości Property Office (tel. 731-321-117, mail: katar...

5 431,00 zł

Warszawa

Wola: lokal biurowy na wynajem

Warszawa - Do wynajęcia: 1-pokojowy lokal biurowy o pow.15,68 m2 na 3 piętrze budynku biurowego na warszawskiej Woli, w okolicach ul. Księcia Janusza,poleca Agencja Nieruchomości Property Office (tel....

940,00 zł

Warszawa

Wola: lokal biurowy na wynajem

Warszawa - Do wynajęcia: 1-pokojowy lokal biurowy o pow.18,05 m2 na 4 piętrze budynku biurowego na warszawskiej Woli, w okolicach ul. Księcia Janusza,poleca Agencja Nieruchomości Property Office (tel....

1 083,00 zł

Warszawa

Wola: lokal biurowy na wynajem

Warszawa - Do wynajęcia: klimatyzowany lokal biurowy o pow. 134,11m2 na 4 piętrze budynku biurowego na warszawskiej Woli, w okolicach ul. Górczewskiej i stacji metra Ks. Janusza.poleca Agencja Nieruch...

11 131,00 zł

Warszawa

Wola: lokal biurowy na wynajem

Warszawa - Do wynajęcia: klimatyzowany lokal biurowy o pow.43,28 m2 na 3 piętrze budynku biurowego na warszawskiej Woli, w okolicach ul. Górczewskiej i stacji metra Ks. Janusza.poleca Agencja Nierucho...

3 592,00 zł

Warszawa

Facebook
Facebook
Sprzedawanko.pl – serwis ogłoszeń Firmowanko.pl – katalog firm i usług Pracowanko.pl – serwis pracy Ugościmy.pl – serwis noclegów Nporta.pl – katalog firm i usług