📢
🔥 Bezpłatny Serwis Ogłoszeniowy 🔔 Dodaj Ogłoszenie Za Darmo Na SPRZEDAWANKO.PL🔥

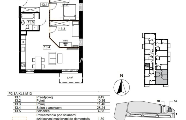
Osiedle Złocień - nowe osiedle mieszkaniowe

769 000,00 zł

{{ phone }}

{{ email }}

Dodane przez: braciasadurscy
braciasadurscy
Lokalizacja: Agatowa
Telefon: {{ phone }}
Agent: Marek Popiela
E-mail: marek@sadurscy.pl
Telefon kom.: +48 518-967-677
Udostępnij:

Opublikowano:  | Wygaśnie:

Wyświetleń: 7 | ID ogłoszenia: 70676

Numer oferty: BS2-MS-310809-135

Szczegóły

Typ: Sprzedaż
Rynek: Pierwotny
Pow. użytkowa: 64.33 m2
Cena za m2 (zł): 11953.99
Liczba pokoi: 3
Liczba sypialni: 1
Rodzaj zabudowy: budynek wielorodzinny
Piętro: 2
Liczba pięter: 4
Materiał budynku: tradycyjna
Okna: PCV
Rok budowy: 2023
Ogrzewanie: C.O. miejskie
Stan wykończenia: deweloperski
Własność: Własność
Data aktualizacji: 2026-04-02

Opis


ZŁOCIEŃ - NOWOCZESNE OSIEDLE MIESZKANIOWE.

Prezentujemy nowoczesne osiedle zlokalizowane w południowo-wschodniej części miasta.
W III etapie powstanie czteropiętrowy budynek , w którym znajdują się mieszkania w przedziale od 25 do 68 m2 .

Podziemna część budynku przeznaczona jest na garaż z miejscami parkingowymi.

Mieszkania na parterach będą mieć ogródki , na wyższych piętrach balkony . Mieszkania na najwyższych piętrach będą posiadać duże tarasy na dachu.

Inwestycja budowana w tradycyjnej technologii. Mieszkania sprzedawane w stanie deweloperskim (tynki gipsowe, wylewki, instalacje).

Wokół malownicza okolica , zielona przestrzeń, a przy tym dobra komunikacja miejska. Atrakcyjne połączenie z obwodnicą S7 i A4. Niedaleko inwestycji realizowany będzie przystanek kolei aglomeracyjnej, dzięki któremu z łatwością można dostać się do centrum miasta. W okolicy znajdują się liczne sklepy spożywcze oraz inne punkty handlowo-usługowe.

Termin zakończenia budowy zaplanowano na II kwartał 2024 r.

Zapraszam do kontaktu:

Marek Popiela +48 518 967 677
marek@sadurscy.pl

--------------------------

::GRATIS | Nasza prowizja zawiera: koszt przedwstępnej notarialnej umowy sprzedaży nieruchomości z rynku wtórnego.
::GWARANCJA | Gwarancja zwrotu zadatku. Więcej informacji na sadurscy.pl/zwrot-zadatku/


Oferta wysłana z systemu Galactica Virgo

Może Cię zainteresować:

Komentarze (0)

Nic nie znaleziono

Tylko zalogowani użytkownicy mogą dodawać komentarze

Mapa

Formularz kontaktowy

This site is protected by reCAPTCHA and the Google Privacy Policy and Terms of Service apply.

Podobne ogłoszenia

2 pokoje na Szwederowie, świetna lokalizacja

Na wynajem przytulne i funkcjonalne mieszkanie o powierzchni 42,40 m², idealne dla singla, pary lub jako pierwsze lokum dla młodej osoby pracującej.Lokal został zaprojektowany w sposób maksymalnie wyk...

2 200,00 zł

Kujawsko-pomorskie

Mieszkanie 46m2 w samym Centrum Iławy

Na sprzedaż przytulne i funkcjonalne mieszkanie o powierzchni 46m2, położone w ścisłym centrum Iławy, w świeżo wybudowanym bloku z 2025 roku. To doskonała propozycja do zamieszkania jak i pod inwestyc...

519 520,00 zł

Warmińsko-mazurskie

Wspaniały dom w Pękowicach w cichej okolicy

Wspaniały dom zlokalizowany na uroczej działce w podkrakowskich Pękowicach. Serdecznie zapraszam do zapoznania się z tą ofertą: wybudowany z najwyższą dbałością o detale, przy użyciu wysok...

2 289 000,00 zł

Pękowice

Wspaniała działka budowlana w Książniczkach 21,5a

Serdecznie zapraszam do zapoznania się z ofertą dwóch atrakcyjnych działek w Książniczkach o łącznej powierzchni 21,53 arów. Nieruchomości gruntowe określone w Miejscowym Planie Zagospodarowania P...

578 000,00 zł

Krakowski

Pokój 20 m2 ul. Nastrojowa

Oferta dostępna od 01.06.2026 r. Do wynajęcia pokój z balkonem o pow. 20m2 położony w domu wielorodzinnym na pierwszym piętrze. Do dyspozycji wspólna kuchnia z jadalnią, łazienka oraz prze...

1 200,00 zł

Bydgoszcz

Pokój 20 m2 ul. Nastrojowa

Do wynajęcia pokój o pow. 20 m2 położony w domu wielorodzinnym na pierwszym piętrze. Do dyspozycji wspólna kuchnia z jadalnią, łazienka oraz przedpokój. Pokój wyposażony. Koszty najmu ...

900,00 zł

Bydgoszcz

Nowoczesny dom z ogrodem Igołomia Kraków

Nowoczesny dom premium, 180 m², 2018 r. dwa garaże, poddasze 90 m² , Igołomia - Kraków Dom który łączy przestrzeń, komfort i nowoczesne rozwiązania. Na sprzedaż wyjątkowy dom jedno...

1 500 000,00 zł

Igołomia

Działka ROD, z domkiem letniskowym !

Sprzedam działkę ROD 500 m² z domkiem - ChojniceNa sprzedaż działka rekreacyjna o powierzchni 500 m², położona na terenie ROD "Kolejarz" w Chojnicach. Idealne miejsce na odpoczynek, weekendy z rodziną...

160 000,00 zł

Pomorskie

Lokal mieszkalno-usługowy w centrum.

Lokal mieszkalno-komercyjny w centrum Krakowa | ul. Wrocławska, Kraków | 115 m² Na sprzedaż lokal mieszkalno-komercyjny o powierzchni 115 m² , położony przy prestiżowej i doskonale skomuni...

860 000,00 zł

Kraków

Kamienica inwestycyjna 6 lokali Tczew Nowe Miasto

Kamienica inwestycyjna | 6 mieszkań | Tczew Nowe Miasto-Wojska PolskiegoŚwietna okazja inwestycyjna w sercu Tczewa!Na sprzedaż kamienica z ogromnym potencjałem - idealna pod wynajem, flip lub podział ...

880 000,00 zł

Pomorskie

Wola: lokal biurowy na wynajem

Warszawa - Do wynajęcia: lokal biurowy o pow. 12,56 m2 na 3 piętrze w budynku biurowym w okolicach ul. Górczewskiej i stacji metra Ks. Janusza,poleca Agencja Nieruchomości Property Office (tel. 731-32...

690,00 zł

Warszawa

Wola: lokal biurowy na wynajem

Warszawa - Do wynajęcia: lokal biurowy o pow.35,59 m2 , na parterze budynku biurowego na warszawskiej Woli w okolicach ul. Górczewskiej i stacji metra Ks. Janusza.poleca Agencja Nieruchomości Property...

1 957,00 zł

Warszawa

Wola:lokal biurowy na wynajem

Warszawa - Do wynajęcia: 1-pokojowy lokal biurowy o pow.14,51 m2 na 2 piętrze w budynku biurowym na warszawskiej Woli, w okolicach stacji metra Ks. Janusza, poleca Agencja Nieruchomości Property Offic...

798,00 zł

Warszawa

Śródmieście : lokal biurowy na wynajem

Warszawa - Do wynajęcia: atrakcyjny lokal biurowy o pow.37,40 m2 w centrum Warszawy, w kameralnym budynku biurowym w okolicach ul. Marszałkowskiej,poleca Agencja Nieruchomości Property Office (tel. 73...

635,00 zł

Warszawa

Śródmieście : lokal handlowo-usługowy na wynajem

Warszawa - Do wynajęcia: lokal usługowo-biurowy o pow.198 m2 w kameralnym apartamentowcu w centrum Warszawy, w okolicach ul. Żurawiej,poleca Agencja Nieruchomości Property Office (tel. 731-321-117, ma...

3 764,00 zł

Warszawa

Śródmieście : lokal biurowy na wynajem

Warszawa - Do wynajęcia: atrakcyjny lokal biurowy o pow.62,70 m2 w centrum Warszawy, w kameralnym budynku biurowym w okolicach ul. Marszałkowskiej,poleca Agencja Nieruchomości Property Office (tel. 73...

1 065,00 zł

Warszawa

Śródmieście : lokal biurowy na wynajem

Warszawa - Do wynajęcia: atrakcyjny lokal biurowy o pow.18,70 m2 w centrum Warszawy, w kameralnym budynku biurowym w okolicach ul. Marszałkowskiej,poleca Agencja Nieruchomości Property Office (tel. 73...

318,00 zł

Warszawa

Mokotów: lokal biurowy na wynajem

Warszawa- Do wynajęcia: lokal biurowy o pow.50,37 m2 na niskim parterze w budynku biurowym na warszawskim Mokotowie, w okolicach ul. Chełmskiej.poleca Agencja Nieruchomości Property Office (tel. 731-3...

2 165,00 zł

Warszawa

Mokotów: lokal biurowy na wynajem

Warszawa - Do wynajęcia: lokal biurowy o pow.224,62m2 m2 na 1 piętrze w budynku biurowym na warszawskim Mokotowie, w okolicach ul. Chełmskiej.poleca Agencja Nieruchomości Property Office (tel. 731-321...

12 346,00 zł

Warszawa

Targówek: magazyn 173 m2

Warszawa - Do wynajęcia: magazyn o pow.173 m2 na terenie kompleksu magazynowo- biurowego na warszawskim Targówku w okolicach ul. Rzecznej,poleca Property Office (tel. 731-321-117, mail: katarzyna@prop...

7 000,00 zł

Warszawa

Facebook
Facebook
Sprzedawanko.pl – serwis ogłoszeń Firmowanko.pl – katalog firm i usług Pracowanko.pl – serwis pracy Ugościmy.pl – serwis noclegów Nporta.pl – katalog firm i usług