📢
🔥 Bezpłatny Serwis Ogłoszeniowy 🔔 Dodaj Ogłoszenie Za Darmo Na SPRZEDAWANKO.PL🔥

Osiedle Złocień - nowe osiedle mieszkaniowe

609 000,00 zł

{{ phone }}

{{ email }}

Dodane przez: braciasadurscy
braciasadurscy
Lokalizacja: Agatowa
Telefon: {{ phone }}
Agent: Marek Popiela
E-mail: marek@sadurscy.pl
Telefon kom.: +48 518-967-677
Udostępnij:

Opublikowano:  | Wygaśnie:

Wyświetleń: 7 | ID ogłoszenia: 70361

Numer oferty: BS2-MS-310862-135

Szczegóły

Typ: Sprzedaż
Rynek: Pierwotny
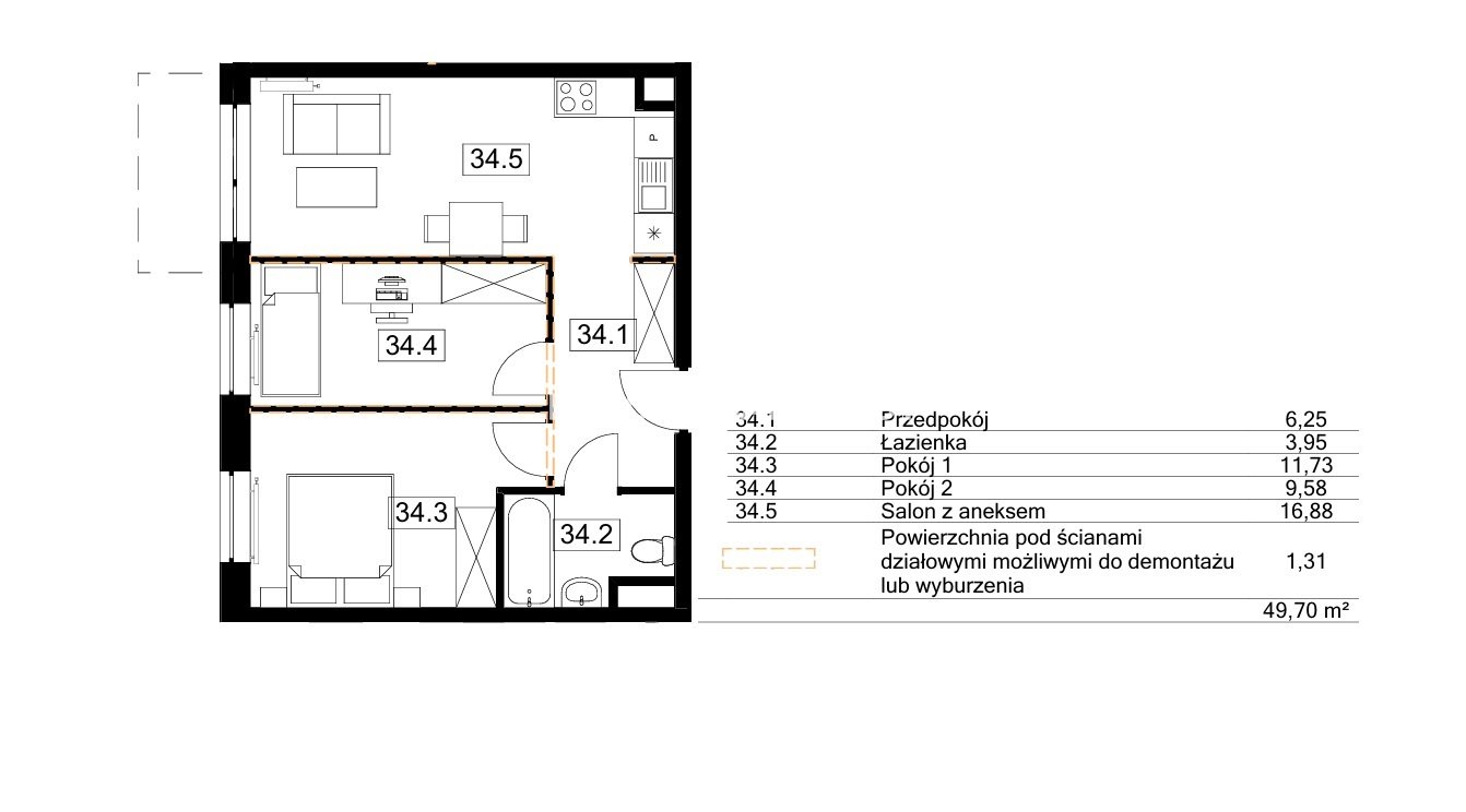
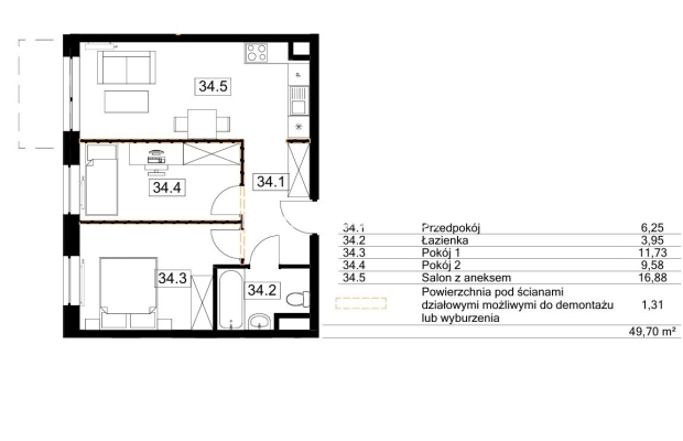
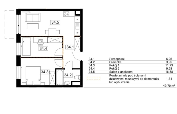
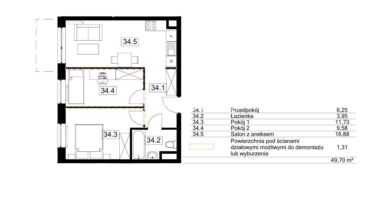
Pow. użytkowa: 48.26 m2
Cena za m2 (zł): 12619.15
Liczba pokoi: 3
Liczba sypialni: 1
Rodzaj zabudowy: budynek wielorodzinny
Piętro: 0
Liczba pięter: 4
Materiał budynku: tradycyjna
Okna: PCV
Rok budowy: 2023
Ogrzewanie: C.O. miejskie
Stan wykończenia: deweloperski
Własność: Własność
Data aktualizacji: 2026-04-02

Opis


ZŁOCIEŃ - NOWOCZESNE OSIEDLE MIESZKANIOWE.

Prezentujemy nowoczesne osiedle zlokalizowane w południowo-wschodniej części miasta.
W III etapie powstanie czteropiętrowy budynek , w którym znajdują się mieszkania w przedziale od 25 do 68 m2 .

Podziemna część budynku przeznaczona jest na garaż z miejscami parkingowymi.

Mieszkania na parterach będą mieć ogródki , na wyższych piętrach balkony . Mieszkania na najwyższych piętrach będą posiadać duże tarasy na dachu.

Inwestycja budowana w tradycyjnej technologii. Mieszkania sprzedawane w stanie deweloperskim (tynki gipsowe, wylewki, instalacje).

Wokół malownicza okolica , zielona przestrzeń, a przy tym dobra komunikacja miejska. Atrakcyjne połączenie z obwodnicą S7 i A4. Niedaleko inwestycji realizowany będzie przystanek kolei aglomeracyjnej, dzięki któremu z łatwością można dostać się do centrum miasta. W okolicy znajdują się liczne sklepy spożywcze oraz inne punkty handlowo-usługowe.

Termin zakończenia budowy zaplanowano na II kwartał 2024 r.

Zapraszam do kontaktu:

Marek Popiela +48 518 967 677
marek@sadurscy.pl

--------------------------

::GRATIS | Nasza prowizja zawiera: koszt przedwstępnej notarialnej umowy sprzedaży nieruchomości z rynku wtórnego.
::GWARANCJA | Gwarancja zwrotu zadatku. Więcej informacji na sadurscy.pl/zwrot-zadatku/


Oferta wysłana z systemu Galactica Virgo

Może Cię zainteresować:

Komentarze (0)

Nic nie znaleziono

Tylko zalogowani użytkownicy mogą dodawać komentarze

Mapa

Formularz kontaktowy

This site is protected by reCAPTCHA and the Google Privacy Policy and Terms of Service apply.

Podobne ogłoszenia

Mieszkanie w kamienicy do własnej aranżacji

Nieruchomości ApartamentEwelina Gruszczyńska-Malinatel. 573 087 693 Mieszkanie / 4 pokoje / wysoki parterNa sprzedaż mieszkanie o powierzchni użytkowej 80,6 m², położone w ...

510 000,00 zł

Dolnośląskie

Dom mieszkalno - usługowy

Na sprzedaż wyjątkowa nieruchomość o szerokim potencjale inwestycyjnym , idealna zarówno do zamieszkania jak i prowadzenia działalności gospodarczej.Nieruchomość położona przy drodze, na dużej ogrodzo...

3 200 000,00 zł

Strzegom

Nowe 3 pok. mieszkanie w domu wolnostojącym,7arów

Do wynajęcia nowoczesne, 3-pokojowe mieszkanie w domu wolnostojącym na 7-arowej działce - wysoki standard, tylko 2,4 km od Rynku w Wieliczce Biuro Nieruchomości Bracia Sadurscy preze...

4 500,00 zł

Wieliczka

Dom do własnej aranżacji

Szukasz miejsca, gdzie codzienność zwalnia, a przestrzeń naprawdę ma znaczenie? Ta nieruchomość w Nowej Karczmie to idealne połączenie komfortu życia, funkcjonalności i klimatu kaszubskiej natury.Na s...

849 000,00 zł

Pomorskie

Osiedle FI, Podgórze, 3 pokoje z balkonem

Nowoczesne mieszkanie 66 m² na prestiżowym osiedlu Fi przy ul. Szafrana - komfort, przestrzeń i świetna lokalizacja Na sprzedaż przestronne, funkcjonalne mieszkanie o powierzchni 66 m²,...

1 199 000,00 zł

Kraków

Apartament inwestycyjny nad wodą | Marina | Wysoki

Biuro Nieruchomości Apartament ma zaszczyt zaprezentować Państwu wyjątkową inwestycję nad samą Zatoką Gdańską - SOLMARINA, gdzie luksus spotyka się z wodą, naturą i stylem życia klasy premium.Na sprze...

1 825 430,00 zł

Pomorskie

Mokotów: lokal biurowy na wynajem

Warszawa - Do wynajęcia: lokal biurowy o pow.26,38 m2 na 12 piętrze w budynku biurowym na warszawskim Mokotowie, niedaleko warszawskiej Galerii Mokotów.poleca Agencja Nieruchomości Property Office (te...

2 110,00 zł

Warszawa

Mokotów: lokal biurowy na wynajem

Warszawa - Do wynajęcia: umeblowany lokal biurowy o pow. 145 m2 na 8 piętrze budynku biurowego na warszawskim Mokotowie, przy ul. Puławskiejpoleca Agencja Nieruchomości Property Office (tel. 731-321-1...

2 320,00 zł

Warszawa

Mokotów: lokal biurowy na wynajem

Warszawa - Do wynajęcia: lokal biurowy o pow.37,30 m2 na 12 piętrze w budynku biurowym na warszawskim Mokotowie, niedaleko warszawskiej Galerii Mokotów.poleca Agencja Nieruchomości Property Office (te...

2 797,00 zł

Warszawa

Mokotów: biuro serwisowane na wynajem

Warszawa - Do wynajęcia: gotowe biuro dla 6 osób na 3 piętrze biurowca na warszawskim Mokotowie, w okolicach ul. Cybernetyki,poleca Agencja Nieruchomości Property Office (tel. 731-321-117, mail: katar...

6 600,00 zł

Warszawa

Mokotów: lokal biurowy na wynajem

Warszawa - Do wynajęcia: lokal biurowy o pow.27,52 m2 na 3 piętrze kameralnego budynku biurowego na warszawskim Mokotowie, w okolicach ulic: Puławskiej i Dąbrowskiego.poleca Agencja Nieruchomości Prop...

2 174,00 zł

Warszawa

Mokotów: lokal biurowy na wynajem

Warszawa - Do wynajęcia: klimatyzowany lokal biurowy o pow.20,78 m2 na 3 piętrze w budynku biurowym na warszawskim Mokotowie, w okolicach ul. Puławskiej i Dąbrowskiego, poleca Agencja Nieruchomości Pr...

1 537,00 zł

Warszawa

Mokotów: umeblowany lokal biurowy na wynajem

Warszawa - Do wynajęcia: umeblowany lokal biurowy o pow. 64 m2 na 7 piętrze budynku biurowego na warszawskim Mokotowie, przy ul. Puławskiejpoleca Agencja Nieruchomości Property Office (tel. 731-321-11...

1 024,00 zł

Warszawa

Lokal biurowy 25,29 m² na wynajem| Mokotów | BEZ PROWIZJI

Do wynajęcia lokal biurowy o powierzchni 25,29 m, położony na 1 piętrze budynku biurowego na warszawskim Mokotowie (<b>okolice Al. Wilanowskiej).</b><b>*** BRAK PROWIZJI ***</b&gt...

2 023,00 zł

Warszawa

Lokal biurowy 27,89 m² na wynajem| Mokotów | BEZ PROWIZJI

Do wynajęcia lokal biurowy o powierzchni 27,89 m, położony na 1 piętrze budynku biurowego na warszawskim Mokotowie (<b>okolice Al. Wilanowskiej).</b><b>*** BRAK PROWIZJI ***</b&gt...

2 231,00 zł

Warszawa

Mokotów: lokal biurowy na wynajem

Warszawa - Do wynajęcia: lokal biurowy o pow.24,11 m2 na 2 piętrze w budynku biurowym na warszawskim Mokotowie, w okolicach ul. Gagarina.poleca Agencja Nieruchomości Property Office (tel. 731-321-117,...

1 902,00 zł

Warszawa

Mokotów: lokal biurowy na wynajem

Do wynajęcia: lokal biurowy o pow.42,51 m2 na 2 piętrze budynku biurowego na warszawskim Mokotowie, w okolicach Al. Wilanowskiej.poleca Agencja Nieruchomości Property Office (tel. 731-321-117, mail: k...

3 400,00 zł

Warszawa

Mokotów: lokal biurowy na wynajem

Do wynajęcia: lokal biurowy o pow.37,69 m2 na 2 piętrze budynku biurowego na warszawskim Mokotowie, w okolicach Al. Wilanowskiej.poleca Agencja Nieruchomości Property Office (tel. 731-321-117, mail: k...

3 015,00 zł

Warszawa

Lokal biurowy 36,07 m² na wynajem| Mokotów | BEZ PROWIZJI

Do wynajęcia lokal biurowy o powierzchni 36,07 m, położony na 1 piętrze budynku biurowego na warszawskim Mokotowie (<b>okolice Al. Wilanowskiej).</b><b>*** BRAK PROWIZJI ***</b&gt...

2 885,00 zł

Warszawa

Wilanów: biuro serwisowane na wynajem

Warszawa - Do wynajęcia: biuro serwisowane dla 12 osób na 1 piętrze biurowca na warszawskim Wilanowie, w okolicach Al. Rzeczypospolitejpoleca Agencja Nieruchomości Property Office (tel. 731-321-117, m...

15 000,00 zł

Warszawa

Facebook
Facebook
Sprzedawanko.pl – serwis ogłoszeń Firmowanko.pl – katalog firm i usług Pracowanko.pl – serwis pracy Ugościmy.pl – serwis noclegów Nporta.pl – katalog firm i usług