📢
🔥 Bezpłatny Serwis Ogłoszeniowy 🔔 Dodaj Ogłoszenie Za Darmo Na SPRZEDAWANKO.PL🔥

Smart Apartament na Prądniku Białym blisko Zieleni

890 473,00 zł

{{ phone }}

{{ email }}

Dodane przez: braciasadurscy
braciasadurscy
Lokalizacja: Pękowicka
Telefon: {{ phone }}
Agent: Patrycja Rubinkiewicz
E-mail: patrycja@sadurscy.pl
Telefon kom.: +48 505-236-943
Udostępnij:

Opublikowano:  | Wygaśnie:

Wyświetleń: 2 | ID ogłoszenia: 70281

Numer oferty: BS2-MS-304004-30

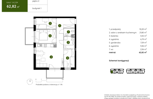
Szczegóły

Typ: Sprzedaż
Rynek: Pierwotny
Pow. użytkowa: 62.82 m2
Cena za m2 (zł): 14175
Liczba pokoi: 3
Liczba sypialni: 2
Rodzaj zabudowy: blok
Piętro: 2
Liczba pięter: 3
Materiał budynku: pustak
Okna: PCV
Rok budowy: 2024
Ogrzewanie: C.O. miejskie
Stan wykończenia: deweloperski
Własność: Odrębna własność lokalu
Data aktualizacji: 2026-04-02

Opis


Z ogromną przyjemnością przedstawiamy Państwu ofertę mieszkania na sprzedaż w malowniczym rejonie Doliny Prądnika, na północy Krakowa, blisko granicy z gminą Zielonki. Nowoczesne osiedle otoczone jest rozległymi terenami zielonymi, co umożliwia codzienny kontakt z naturą i zapewnia wytchnienie od intensywnego miejskiego życia w centrum miasta.

Osiedle zostało zaprojektowane z myślą o rodzinach, parach oraz singlach, oferując szeroki wybór mieszkań o powierzchni od 26 do 73 m², w układach 1-, 2-, 3- i 4-pokojowych. Dbałość o komfort mieszkańców przejawia się w wysokiej jakości przestrzeni wspólnych, które sprzyjają nawiązywaniu sąsiedzkich relacji: skwer z ławeczkami, plac zabaw...

Budynki nowej inwestycji mające 3 i 4 kondygnacje, wyróżniają się kameralną architekturą, harmonizującą z okolicą. Przestronność obiektów gwarantuje mieszkańcom poczucie prywatności.

Zalety:


Home Management System to zaawansowana technologia inteligentnego domu, która umożliwia m.in. zarządzanie ogrzewaniem, oświetleniem i zaworami wody.
Pakiet antysmogowy w postaci filtrów montowanych w nawiewnikach okiennych dba o czystość powietrza we wnętrzach mieszkań.
Wysoki standard wykończenia części wspólnych obejmuje trwałe płytki gresowe, dekoracyjne panele imitujące drewno oraz energooszczędne oświetlenie LED.
Mieszkania na parterze posiadają tarasy z ogrodami o powierzchni do 123 m², natomiast mieszkania na wyższych kondygnacjach oferują przestronne balkony.
Termoizolacyjne łączniki balkonowe zapobiegają utracie ciepła, co przekłada się na oszczędności energetyczne.
Portfenetrowe okna zapewniają doskonałe doświetlenie wnętrz.
Na terenie osiedla zostanie zainstalowana stacja ładowania pojazdów elektrycznych, z myślą o mieszkańcach korzystających z ekologicznych środków transportu.
Zielone dachy budynków będą nie tylko estetyczne, ale również poprawią jakość powietrza i obniżą temperaturę otoczenia.


Prądnik biały to doskonale skomunikowana okolica, idealne miejsce dla osób szukających spokoju i bliskości natury, z jednoczesnym dostępem do nowoczesnych rozwiązań technologicznych.

Serdecznie zapraszam do kontaktu
Patrycja Rubinkiewicz
505 236 943
patrycja@sadurscy.pl

--------------------------

::GRATIS | Nasza prowizja zawiera: koszt przedwstępnej notarialnej umowy sprzedaży nieruchomości z rynku wtórnego.
::GWARANCJA | Gwarancja zwrotu zadatku. Więcej informacji na sadurscy.pl/zwrot-zadatku/


Oferta wysłana z systemu Galactica Virgo

Może Cię zainteresować:

Komentarze (0)

Nic nie znaleziono

Tylko zalogowani użytkownicy mogą dodawać komentarze

Mapa

Formularz kontaktowy

This site is protected by reCAPTCHA and the Google Privacy Policy and Terms of Service apply.

Podobne ogłoszenia

Rewelacyjny dom z dużą działką 947 mkw.

Rewelacyjny dom na dużej działce. Zapraszam! Atutem tego domu jest wyremontowany dom do zamieszkania w bajecznym stylu.Działka o powierzchni 947 mkw.Łazienka z prysznicem 2,61 mkw.Garaż 7,92 mkw.dwa p...

850 000,00 zł

Kujawsko-pomorskie

Mieszkanie 2 balkony 3 pokoje na Osiedlu Leśnym

Tylko u Nas! Na sprzedaż: 3- pokojowe mieszkanie z 2 balkonami na 2 piętrze na Osiedlu Leśnym do generalnego remontu. Oferuję do sprzedaży ciche, słoneczne i otoczone zielenią mieszkanie położone w at...

540 000,00 zł

Kujawsko-pomorskie

Włochy: lokal biurowy na wynajem

Warszawa- Do wynajęcia: moduł biurowy o pow.639 m2 w biurowcu na warszawskich Włochach, w okolicach ul.1 Sierpnia.poleca Agencja Nieruchomości Property Office (tel. 731-321-117, mail: katarzyna@proper...

10 863,00 zł

Warszawa

Włochy: lokal biurowy na wynajem

Warszawa - Do wynajęcia: moduł biurowy o pow. 315 m2 w biurowcu na warszawskich Włochach, w okolicach ul.1 Sierpnia.poleca Agencja Nieruchomości Property Office (tel. 731-321-117, mail: katarzyna@prop...

5 355,00 zł

Warszawa

Włochy: lokal biurowy na wynajem

Warszawa - Do wynajęcia: moduł biurowy o pow. 324 m2 w biurowcu na warszawskich Włochach, w okolicach ul.1 Sierpnia.poleca Agencja Nieruchomości Property Office (tel. 731-321-117, mail: katarzyna@prop...

5 508,00 zł

Warszawa

Włochy: lokal biurowy na wynajem

Warszawa - Do wynajęcia: moduł biurowy o pow. 337 m2 w biurowcu na warszawskich Włochach, w okolicach ul.1 Sierpnia.poleca Agencja Nieruchomości Property Office (tel. 731-321-117, mail: katarzyna@prop...

5 729,00 zł

Warszawa

Włochy: lokal biurowy na wynajem

Warszawa - Do wynajęcia: moduł biurowy o pow. 360 m2 w biurowcu na warszawskich Włochach, w okolicach ul.1 Sierpnia.poleca Agencja Nieruchomości Property Office (tel. 731-321-117, mail: katarzyna@prop...

6 120,00 zł

Warszawa

Włochy: lokal biurowy na wynajem

Warszawa - Do wynajęcia: moduł biurowy o pow.639 m2 w biurowcu na warszawskich Włochach, w okolicach ul.1 Sierpnia.poleca Agencja Nieruchomości Property Office (tel. 731-321-117, mail: katarzyna@prope...

10 863,00 zł

Warszawa

Wawer: lokal biurowy na wynajem

Warszawa - Do wynajęcia: Lokal biurowy o pow. 341 m2 na 1 piętrze budynku biurowo-usługowego w Wawrze (Warszawa), w OKOLICACH ul. Zwoleńskiej,poleca Agencja Nieruchomości Property Office (tel. 731-321...

3 751,00 zł

Warszawa

Ochota: lokal biurowy na podnajem

Warszawa - Do podnajmu: lokal biurowy o pow. 264,24 m2 na 11 piętrze w nowoczesnym biurowcu na warszawskiej Ochocie, w OKOLICACH ul. Niemcewicza.poleca Agencja Nieruchomości Property Office (tel. 731-...

4 352,00 zł

Warszawa

Białołęka: lokal biurowy na wynajem

Warszawa - Do wynajęcia: biuro o pow. 311,74 m2 na 1 piętrze w nowoczesnym budynku biurowym na warszawskiej Białołęce, w okolicach ul. Marywilskiej, poleca Agencja Nieruchomości Property Office (tel. ...

3 740,00 zł

Warszawa

Wilanów : lokal biurowy na wynajem

Warszawa - Do wynajęcia: lokal biurowy o pow.758 m2 na warszawskim Wilanowie, w okolicach ul. Kardynała Hlondapoleca Agencja Nieruchomości Property Office (tel. 731-321-117, mail: katarzyna@propertyof...

52 302,00 zł

Warszawa

Wawer: lokal biurowy na wynajem

Warszawa - Do wynajęcia: Lokal biurowy o pow. 950 m2 na 1 piętrze budynku biurowo-usługowego w Wawrze (Warszawa), w okolicach ul. Zwoleńskiej,poleca Agencja Nieruchomości Property Office (tel. 731-321...

10 450,00 zł

Warszawa

Wilanów : lokal biurowy na wynajem

Warszawa - Do wynajęcia: lokal biurowy o pow.1033 m2 na 1 piętrze w nowoczesnym kameralnym budynku biurowym na warszawskim Wilanowie, w okolicach ul. Kardynała Hlonda,poleca Agencja Nieruchomości Prop...

71 277,00 zł

Warszawa

Wilanów : lokal biurowy na wynajem

Warszawa - Do wynajęcia: lokal biurowy o pow.1490 m2 na parterze w nowoczesnym kameralnym budynku biurowym na warszawskim Wilanowie, w okolicach ul. Kardynała Hlonda,poleca Agencja Nieruchomości Prope...

102 810,00 zł

Warszawa

Mokotów : lokal biurowy na wynajem

Warszawa - Do wynajęcia: lokal biurowy o pow. 450 m2 na 4 piętrze eleganckiego i nowoczesnego budynku biurowego na warszawskim Mokotowie w okolicach ul. Suwak.poleca Agencja Nieruchomości Property Off...

6 525,00 zł

Warszawa

Mokotów :lokal biurowy na wynajem

Warszawa - Do wynajęcia: lokal biurowy o pow. 900 m2 na 4 piętrze eleganckiego i nowoczesnego budynku biurowego na warszawskim Mokotowie w okolicach ul. Suwak.poleca Agencja Nieruchomości Property Off...

13 050,00 zł

Warszawa

Mokotów : lokal biurowy na wynajem

Warszawa - Do wynajęcia: lokal biurowy o pow. 130 m2 na parterze budynku biurowego na warszawskim Mokotowie w okolicach ul. Suwak.poleca Agencja Nieruchomości Property Office (tel. 731-321-117, mail: ...

1 885,00 zł

Warszawa

Włochy: lokal biurowy o pow. 957 m2

Warszawa - Do wynajęcia: lokal biurowy o pow. 957 m2 na 5 piętrze nowoczesnego biurowca na warszawskich Włochach, przy Al. Jerozolimskich,poleca Agencja Nieruchomości Property Office (tel. 731-321-117...

13 398,00 zł

Warszawa

Włochy: lokal biurowy na wynajem

Warszawa - Do wynajęcia: lokal biurowy o pow.546 m2 na 5 piętrze nowoczesnego biurowca na warszawskich Włochach, przy Al. Jerozolimskich,poleca Agencja Nieruchomości Property Office (tel. 731-321-117,...

7 644,00 zł

Warszawa

Facebook
Facebook
Sprzedawanko.pl – serwis ogłoszeń Firmowanko.pl – katalog firm i usług Pracowanko.pl – serwis pracy Ugościmy.pl – serwis noclegów Nporta.pl – katalog firm i usług