📢
🔥 Bezpłatny Serwis Ogłoszeniowy 🔔 Dodaj Ogłoszenie Za Darmo Na SPRZEDAWANKO.PL🔥

Nowoczesny dom w Niemczu!!!

1 171 000,00 zł

{{ email }}

Dodane przez: Domator
Lokalizacja:
Agent: Andrzej Owczarski
E-mail: biuro@domatornieruchomosci.pl
Telefon kom.: +48 602559663
Udostępnij:

Opublikowano:  | Wygaśnie:

Wyświetleń: 8 | ID ogłoszenia: 68149

Numer oferty: DMT-DS-113116

Szczegóły

Typ: Sprzedaż
Rynek: Wtórny
Pow. użytkowa: 162 m2
Pow. działki: 525 m2
Pow. całkowita: 162 m2
Cena za m2 (zł): 7228.4
Liczba pokoi: 5
Liczba pięter: 2
Rodzaj zabudowy: bliźniak
Okna: PCV 3 szyby, ciepły montaż
Rok budowy: 2022
Ogrzewanie: pompa ciepła
Dach: dachówka
Telefon biuro: 52 329 03 90
Nr licencji: 11511
Data aktualizacji: 2024-06-06

Opis


Na sprzedaż 1 część domu dwurodzinnego w stanie deweloperskim wybudowany w 2022 roku w bardzo dobrej lokalizacji w Niemczu. Nowoczesna nieruchomość z garażem w bryle oraz użytkowym poddaszem 60m2 posadowiona jest na działce o powierzchni 525m2. Powierzchnia użytkowa 162,14;
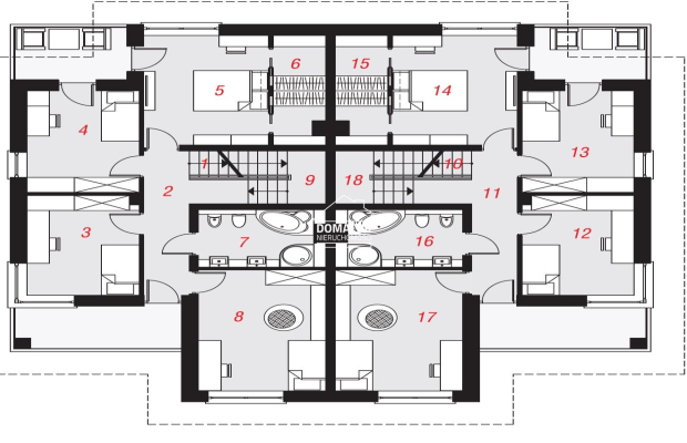
Dom posiada funkcjonalny układ pomieszczeń, które obejmują:
PARTER
- wiatrołap 3.03m2
- korytarz 4,98m2
- salon z jadalnią 32,80 m2 z wyjściem na taras
- kuchnia 10,63 m2
- kotłownia 5,23 m2( po podłodze 7,01m2)
- łazienka 4,12m2
- garaż 19,13m2
PIĘTRO
1. Schody 5,83
2. Korytarz 8,56
3. Pokój 11,43
4. Pokój 11,76
5. Pokój 14,14
6. Garderoba 5,62
7. Łazienka 7,30
8. Pokój 15,95
9. Schody strych.- brak
Wymiary dla jednego mieszkania w budynku szeregowym (dwurodzinnym)
powierzchnia użytkowa: 143,01 m2 + garaż: 19,13 m2 razem 162,14 m2
powierzchnia całkowita: 208,06m2 ( z tarasami i balkonami oraz wiatrołapami przed wejściami gł. ) plus powierzchnia strychu 60 m2
powierzchnia zabudowy: 112,22m2
powierzchnia dachu: 156,70m2
powierzchnia netto: 168,88m2
kubatura brutto: 940,17m3
wysokość budynku: 9 m

Infrastruktura, instalacje : wodna - z sieci wodociągowej ,kanalizacyjna sanitarna ,kanalizacja deszczowa ,elektryczna, c.o i c.w.u. -pompa ciepła typu powietrze -woda wraz z zasobnikiem c.w.u. firmy DIMPLEX , wentylacja grawitacyjna , sieć telekomunikacyjna , podgrzewanie podłogowe, dodatkowe grzejniki elektryczne w łazienkach.
W podpiwniczonej kotłowni z pompą ciepła przewidziano możliwość zagospodarowania pralni i pomieszczenia technicznego.

Budynek wybudowany z - suporeksu, ocieplony styropianem 20 cm - ceramiczna dachówka w kolorze grafitowym, podbitka, rynny - okna 3 szybowe na niemieckich profilach PCV, antywłamaniowe drzwi wejściowe w kolorze grafitowym - tynk silikonowy w kolorze białym - wewnątrz na ścianach tynki gipsowe, na podłogach wylewki, ogrzewanie podłogowe - rozprowadzone instalacje: elektryczna, wodna, kanalizacyjna,parapety wewnętrzne z granitu w kolorze jasnym , parapety zewnętrzne z blachy aluminiowej powlekanej w kolorze grafitowym , zewnętrzne automatyczne rolety antywłamaniowe na wszystkich oknach , zewnętrzne ogrodzenie domu panelowe, wysokość ogrodzenia 1,7 m ,brama wjazdowa i garażowa automatyczne sterowana, furtka z domofonem , wjazd do garażu , taras , schody tarasowe , wejście zewnętrzne - utwardzony ekskluzywną płytą tarasową Magna , balustrady zewnętrzne szklane.

Instalacje dodatkowe : Wyprowadzenie instalacji wodnej i elektrycznej na podłączenie podlewania ogrodowego, wyprowadzenie instalacji elektrycznej pod klimatyzację w salonie i sypialni , dodatkowa instalacja trójfazowa w garażu np. na ładowanie samochodu elektrycznego oraz na tarasie na podłączenie np. jacuzzi , rozprowadzenie instalacji natryskowej w ogrodzie , led-owe oświetlenie zewnętrzne domu , instalacja pod monitoring oraz alarm, RTV, internet , instalacja pod SMART READY ( inteligentne sterowanie), automatyczne sterowanie bramą wjazdową i garażową , domofon.

Pod indywidualne zamówienie za dodatkową opłatą: Basen zewnętrzny, fotowoltaika, jacuzzi oraz pomieszczenie gospodarcze na ogrodzie 5 m2 , wbudowanie podziemnego pojemnika na deszczówkę, wykończenie pod klucz wraz z projektem.

W pobliżu znajdują się :
Szkoła Podstawowa 300 m, żłobek 220 m, przedszkole 160m
Przystanek autobusowy 230m
Poczta 220m
Kościół 380 m, boisko 260m
Sklep spożywczy Żabka, ABC 260 m, Sklep POLO 830m
Przychodnia Stomatologiczna 650m rehabilitacyjna 430 m
Galeria Osielsko 2 km, Biedronka 918 m
Hotel i restauracja 1600 m
Myślęcinek -Leśny Park Kultury i Wypoczynku 900 m , Ogród Botaniczny 1240m
Autostrada S5 9km
Cena sprzedaży jednego mieszkania w budynku szeregowym stan deweloperski


Stan deweloperski (w tym automatyczne podlewanie ogrodowe, wyłożenie kaflami części podpiwniczonej oraz pomalowanie, granitowe parapety wewnętrzne, sterowanie SMART HOME, trawa, nasadzenia, użytkowy strych 60m2) dokładny opis w ofercie, którą załączamy.


Cena: 7894 zł/m2 .

Cena łączna: 1 235 000 zł


Stan deweloperski z częściowym wykończeniem, który dodatkowo obejmuje:


Opcja nr 1:

gładzie, malowanie, drzwi wewnętrzne, gniazdka wewnętrzne, posadzkę żywiczną w garażu, kominek

Opcja nr 2:

gładzie z malowaniem i wykonanie pełnej instalacji fotowoltaicznej

Cena: 8572,83 zł/m2

Cena łączna: 1 470 000 zł
Serdecznie zapraszam do kontaktu z chęcią odpowiem na wszystkie Państwa pytania.
Pośrednik odpowiedzialny zawodowo za wykonanie umowy pośrednictwa: Andrzej Owczarski (licencja nr: 11511)

--------------------------

Treść niniejszego ogłoszenia nie stanowi oferty handlowej w rozumieniu Kodeksu Cywilnego.


Oferta wysłana z systemu Galactica Virgo

Może Cię zainteresować:

Komentarze (0)

Nic nie znaleziono

Tylko zalogowani użytkownicy mogą dodawać komentarze

Mapa

Formularz kontaktowy

This site is protected by reCAPTCHA and the Google Privacy Policy and Terms of Service apply.

Podobne ogłoszenia

Wola: lokal biurowy na wynajem

Warszawa - Do wynajęcia: lokal biurowy o pow. 12,56 m2 na 3 piętrze w budynku biurowym w okolicach ul. Górczewskiej i stacji metra Ks. Janusza,poleca Agencja Nieruchomości Property Office (tel. 731-32...

690,00 zł

Warszawa

Wola: lokal biurowy na wynajem

Warszawa - Do wynajęcia: lokal biurowy o pow.35,59 m2 , na parterze budynku biurowego na warszawskiej Woli w okolicach ul. Górczewskiej i stacji metra Ks. Janusza.poleca Agencja Nieruchomości Property...

1 957,00 zł

Warszawa

Wola:lokal biurowy na wynajem

Warszawa - Do wynajęcia: 1-pokojowy lokal biurowy o pow.14,51 m2 na 2 piętrze w budynku biurowym na warszawskiej Woli, w okolicach stacji metra Ks. Janusza, poleca Agencja Nieruchomości Property Offic...

798,00 zł

Warszawa

Śródmieście : lokal biurowy na wynajem

Warszawa - Do wynajęcia: atrakcyjny lokal biurowy o pow.37,40 m2 w centrum Warszawy, w kameralnym budynku biurowym w okolicach ul. Marszałkowskiej,poleca Agencja Nieruchomości Property Office (tel. 73...

635,00 zł

Warszawa

Śródmieście : lokal handlowo-usługowy na wynajem

Warszawa - Do wynajęcia: lokal usługowo-biurowy o pow.198 m2 w kameralnym apartamentowcu w centrum Warszawy, w okolicach ul. Żurawiej,poleca Agencja Nieruchomości Property Office (tel. 731-321-117, ma...

3 764,00 zł

Warszawa

Śródmieście : lokal biurowy na wynajem

Warszawa - Do wynajęcia: atrakcyjny lokal biurowy o pow.62,70 m2 w centrum Warszawy, w kameralnym budynku biurowym w okolicach ul. Marszałkowskiej,poleca Agencja Nieruchomości Property Office (tel. 73...

1 065,00 zł

Warszawa

Śródmieście : lokal biurowy na wynajem

Warszawa - Do wynajęcia: atrakcyjny lokal biurowy o pow.18,70 m2 w centrum Warszawy, w kameralnym budynku biurowym w okolicach ul. Marszałkowskiej,poleca Agencja Nieruchomości Property Office (tel. 73...

318,00 zł

Warszawa

Mokotów: lokal biurowy na wynajem

Warszawa- Do wynajęcia: lokal biurowy o pow.50,37 m2 na niskim parterze w budynku biurowym na warszawskim Mokotowie, w okolicach ul. Chełmskiej.poleca Agencja Nieruchomości Property Office (tel. 731-3...

2 165,00 zł

Warszawa

Mokotów: lokal biurowy na wynajem

Warszawa - Do wynajęcia: lokal biurowy o pow.224,62m2 m2 na 1 piętrze w budynku biurowym na warszawskim Mokotowie, w okolicach ul. Chełmskiej.poleca Agencja Nieruchomości Property Office (tel. 731-321...

12 346,00 zł

Warszawa

Targówek: magazyn 173 m2

Warszawa - Do wynajęcia: magazyn o pow.173 m2 na terenie kompleksu magazynowo- biurowego na warszawskim Targówku w okolicach ul. Rzecznej,poleca Property Office (tel. 731-321-117, mail: katarzyna@prop...

7 000,00 zł

Warszawa

Wola: lokal biurowy na wynajem

Warszawa - Do wynajęcia: lokal biurowy o pow.25 m2 na 1 piętrze kameralnego budynku magazynowo- biurowego na warszawskiej Woli, w okolicach ul. Kasprzaka,poleca Agencja Nieruchomości Property Office (...

1 400,00 zł

Warszawa

Wilanów : lokal biurowy na wynajem

Warszawa - Do wynajęcia: klimatyzowany lokal biurowy o pow.24 m2 na 3 piętrze kameralnego biurowca na warszawskim Wilanowie, w okolicach ul. Nałęczowskiej. poleca Agencja Nieruchomości Property Office...

2 568,00 zł

Warszawa

Wilanów : lokal biurowy na wynajem

Warszawa - Do wynajęcia: klimatyzowany lokal biurowy o pow.18 m2 na niskim parterze kameralnego biurowca na warszawskim Wilanowie, w okolicach ul. Nałęczowskiej. poleca Agencja Nieruchomości Property ...

1 907,00 zł

Warszawa

Targówek: magazyn/usługi 335 m2

Warszawa - Do wynajęcia: lokal usługowo-magazynowy o pow. 335 m2 na parterze budynku biurowego na warszawskim Targówku, w okolicach ul. Rzecznej, poleca Property Office (tel. 731-321-117, mail: katarz...

15 000,00 zł

Warszawa

Wilanów : lokal biurowy na wynajem

Warszawa - Do wynajęcia: klimatyzowany lokal biurowy o pow.28 m2 na niskim parterze kameralnego biurowca na warszawskim Wilanowie, w okolicach ul. Nałęczowskiej. poleca Agencja Nieruchomości Property ...

2 967,00 zł

Warszawa

Wilanów : lokal biurowy na wynajem

Warszawa - Do wynajęcia: klimatyzowany lokal biurowy o pow.27 m2 na 3 piętrze kameralnego biurowca na warszawskim Wilanowie, w okolicach ul. Nałęczowskiej. poleca Agencja Nieruchomości Property Office...

2 889,00 zł

Warszawa

Wola: lokal na wynajem

Warszawa - Do wynajęcia: klimatyzowany lokal biurowy o pow. 38,10 m2 na 6 piętrze w biurowcu na warszawskiej Woli, w okolicach ul. Żelaznej, poleca Agencja Nieruchomości Property Office (tel. 731-321-...

4 650,00 zł

Warszawa

Wilanów : lokal biurowo-usługowy na wynajem

Warszawa - Do wynajęcia: lokal usługowo-biurowy o pow.65 m2 na parterze domu jednorodzinnego na warszawskim Wilanowie, w okolicach ul. Królowej Marysieńkipoleca Agencja Nieruchomości Property Office (...

5 000,00 zł

Warszawa

Wilanów : lokal biurowy na wynajem

Warszawa - Do wynajęcia: klimatyzowany lokal biurowy o pow.31,50 m2 na 3 piętrze kameralnego biurowca na warszawskim Wilanowie, w okolicach ul. Nałęczowskiej. poleca Agencja Nieruchomości Property Off...

3 371,00 zł

Warszawa

Włochy: lokal biurowy na wynajem

Warszawa - Do wynajęcia lokal biurowy o pow.72,26 m2 na 2 piętrze kameralnego budynku biurowego na warszawskich Włochach, w okolicach Al. Krakowskiej.poleca Agencja Nieruchomości Property Office (tel....

1 011,00 zł

Warszawa

Facebook
Facebook
Sprzedawanko.pl – serwis ogłoszeń Firmowanko.pl – katalog firm i usług Pracowanko.pl – serwis pracy Ugościmy.pl – serwis noclegów Nporta.pl – katalog firm i usług