📢
🔥 Świętujemy 10.000 Opublikowanych Ogłoszeń 🔔 z tej Okazji mamy 10 Promowań za Free na SPRZEDAWANKO.PL🔥

Wola : lokal biurowy na wynajem

18 290,00 zł

{{ phone }}

{{ email }}

Dodane przez: PropertyOffice
Lokalizacja: Okopowa
Telefon: {{ phone }}
Agent: Property Office Sp. o.o.
E-mail: katarzyna@propertyoffice.pl
Telefon kom.:
Udostępnij:

Opublikowano:  | Wygaśnie:

Wyświetleń: 6 | ID ogłoszenia: 67150

Numer oferty: 359015

Szczegóły

Typ: Wynajem
Rynek: Nie
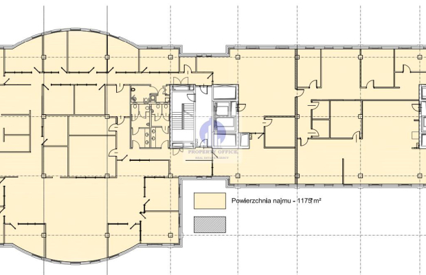
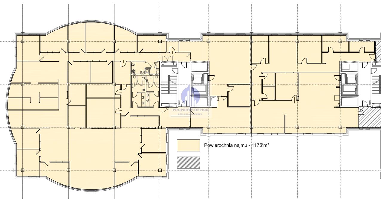
Pow. użytkowa: 1180 m2
Piętro: 1
Liczba pięter: 8
Rok budowy: 2003
Ogrzewanie: miejskie
Stan wykończenia: bardzo dobry
Własność: własność
Telefon biuro: 731321117
Nr licencji: 22020
Data aktualizacji: 2026-03-20 13:15:12
Inwestycja:
Typ lokalu: biura/biuro

Opis

Warszawa - Do wynajęcia: lokal biurowy o pow. 1180 m2 na 1 piętrze budynku biurowego w okolicach ul. Okopowej, na warszawskiej Woli,

poleca Agencja Nieruchomości Property Office (tel. 731-321-117, mail: katarzyna@propertyoffice.pl)

---------Bez prowizji od Najemcy---------

Powierzchnia może być zaaranżowana albo w układzie open space albo gabinetowym.

Do lokalu przynależy taras wielkości 25 m2.

Lokal z dobrym dostępem naturalnego światła.

Lokal w podziale na:

-open space,

-pokoje biurowe,

-salka konferencyjna,

-recepcja,

-magazynek,

-aneks kuchenny,

-łazienki,

Mozliwość zmiany aranżacji powierzchni.

Be pośredni dostep dp klatki schodowej i do wind.

Podniesione podłogi.

Klimatyzacja.

Kontrola dostępu.

Recepcja i ochrona 24h/7.

Duża wysokość pomieszczeń.

Powierzchnia magazynowa dostępna na poziomie parkingu.

Otwierane okna.

Parametry techniczne powierzchni nie pozwalają na prowadzenie w lokalu działalności o profilu typowo medczynym.

Na miesięczne koszty najmu netto składają się:

-czynsz: 18290 EUR,

-opłaty eksploatacyjne: 25,50 PLN/m2 (30090 PLN),

-zużycie mediów,

Opłaty naliczane są od powierzchni brutto, tzn. z wliczonym współczynnikiem powierzchni wspólnych (4%).

Spersonalizowaną ofertę finansową, klient otrzymuje po prezentacji lokalu.

Internet:

-opcjonalnie,

-Najemca indywidualnie podpisuje umowę z operatorem telekomunikacyjnym.

Parking:

Do dyspozycji najemców oddano również ponad 200 podziemnych oraz 14 naziemnych miejsc parkingowych.

Czynsz za miejsce parkingowe: 110 EUR za miejsce.

Budynek posiada dedykowane miejsca dla rowerzystów, motocyklistów jak również stacje dokowania samochodów elektrycznych.

Umowa:

-okres do ustalenia

-kaucja 3 miesiące,

Opis budynku:

8-kondygnacyjny budynek oferujący biura do wynajęcia o łącznej powierzchni ponad 10 600 m2.

Cztery windy i dwie klatki schodowe umożliwiają dogodne dotarcie do każdego piętra. Budynek posiada recepcję oraz ochronę, a także obszerny hol na parterze budynku.

W niedalekiej odległości od budynku znajduje się CH Arkadia z szeroką ofertą punktów handlowych, usługowych, gastronomicznych oraz miejscami rozrywki.

Udogodnienia dla Najemców: stacja benzynowa, myjnia samochodowa,

Lokalizacja budynku gwarantuje doskonały dostęp prywatnym i publicznym transportem.

W sąsiedztwie budynku znajduje się stacja benzynowa z myjnią samochodową.

Do podanych cen należy doliczyć podatek VAT w wysokości 23 %

Zdjęcia pokazują ogólny standard budynku.

Zapraszam na spotkanie w celu obejrzenia lokalu

Zachęcam do kontaktu telefonicznego pod numerem: 731-321-117

Po więcej ofert warszawskich biur, magazynów czy lokali usługowych do wynajęcia, zapraszam na stronę:

https://www.propertyoffice.pl/

Treść niniejszego ogłoszenia nie stanowi oferty handlowej w rozumieniu art.66 1 kodeksu cywilnego oraz innych właściwych przepisów prawnych.

Treść niniejszego ogłoszenia nie stanowi oferty handlowej w rozumieniu art.66 1 kodeksu cywilnego oraz innych właściwych przepisów prawnych.

Oferta wysłana z programu IMO dla biur nieruchomości

Może Cię zainteresować:

Komentarze (0)

Nic nie znaleziono

Tylko zalogowani użytkownicy mogą dodawać komentarze

Mapa

Formularz kontaktowy

This site is protected by reCAPTCHA and the Google Privacy Policy and Terms of Service apply.

Podobne ogłoszenia

Działka siedliskowa 2 ha w Skorzewie

Oferta sprzedaży działki siedliskowej - Skorzewo, gmina Kościerzyna Na sprzedaż wyjątkowa działka siedliskowa o powierzchni około 20 000 m² (dokładną powierzchnię ustalimy z przyszłym właścicielem), p...

400 000,00 zł

Pomorskie

Krowoderskich Zuchów|3 pokoje|56,7 m²| Rodzinne

3-pokojowe mieszkanie 56,7 m² | ul. Krowoderskich Zuchów | + piwnica Na sprzedaż funkcjonalne mieszkanie o powierzchni 56,7 m² , położone przy ul. Krowoderskich Zuchów w Krakowie, w doskona...

815 000,00 zł

Kraków

Praga Północ: lokal biurowy na wynajem

Warszawa - Do wynajęcia: lokal biurowy o pow. 14,70 m2 na 7 piętrze w budynku biurowym na warszawskiej Pradze Północ, w okolicach ul. Targowej,poleca Agencja Nieruchomości Property Office (tel. 731-32...

852,00 zł

Warszawa

Śródmieście: lokal biurowy na wynajem

Warszawa - Do wynajęcia: lokal biurowy o pow. 110 m2 w odrestaurowanej kamienicy w Śródmieściu, niedaleko Placu Politechniki, poleca Agencja nieruchomości Property Office (tel. 731-321-117, mail: kata...

12 435,00 zł

Warszawa

Śródmieście:lokal biurowo-usługowy na wynajem

Warszawa - Do wynajęcia: lokal usługowo-biurowy o pow.107,80 m2 na parterze biurowca w okolicach ul. Bielańskiej, na warszawskim Śródmieściu,poleca Property Office (tel. 731-321-117; mail: katarzyna@p...

2 695,00 zł

Warszawa

Śródmieście: lokal gastronomiczny na wynajem

Warszawa - Do wynajęcia: lokal gastronomiczny o pow.124,30m2 na parterze biurowca na warszawskim Śródmieściu, w okolicach ul. Bielańskiej,poleca Agencja Nieruchomości Property Office (tel. 731-321-117...

9 322,00 zł

Warszawa

Śródmieście: lokal biurowy na wynajem

Warszawa - Do wynajęcia: moduł biurowy o pow. 142 m2 na 2 piętrze odrestaurowanej kamienicy w Śródmieściu, niedaleko Placu Politechniki,poleca Agencja Nieruchomości Property Office (tel. 731-321-117, ...

16 053,00 zł

Warszawa

Przepiękny dom na sprzedaż w spokojnej okolicy!

Oferujemy Państwu na sprzedaż przepiękny dom wolno-stojący, położony na ponad 7 arowej działce, w bardzo spokojnej i urokliwej okolicy. Dom został wybudowany w 2013 roku z pustaka ceramiczn...

1 289 000,00 zł

Krakowski

Facebook
Facebook
Sprzedawanko.pl – serwis ogłoszeń Firmowanko.pl – katalog firm i usług Pracowanko.pl – serwis pracy Ugościmy.pl – serwis noclegów Nporta.pl – katalog firm i usług