📢
🔥 Bezpłatny Serwis Ogłoszeniowy 🔔 Dodaj Ogłoszenie Za Darmo Na SPRZEDAWANKO.PL🔥

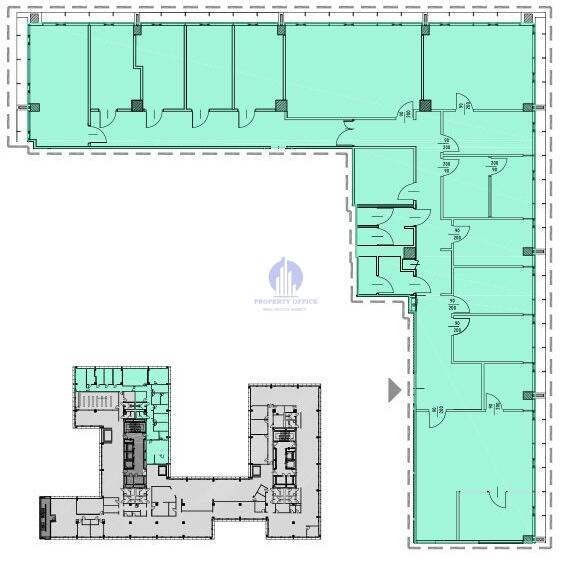
Mokotów: lokal biurowy na wynajem

5 698,00 zł

{{ phone }}

{{ email }}

Dodane przez: PropertyOffice
Lokalizacja: Wołoska
Telefon: {{ phone }}
Agent: Property Office Sp. o.o.
E-mail: katarzyna@propertyoffice.pl
Telefon kom.:
Udostępnij:

Opublikowano:  | Wygaśnie:

Wyświetleń: 4 | ID ogłoszenia: 66362

Numer oferty: 355249

Szczegóły

Typ: Wynajem
Rynek: Nie
Pow. użytkowa: 393 m2
Piętro: 6
Liczba pięter: 7
Rok budowy: 2008
Ogrzewanie: miejskie
Stan wykończenia: bardzo dobry
Własność: własność
Telefon biuro: 731321117
Nr licencji: 22020
Data aktualizacji: 2026-03-12 21:13:00
Inwestycja:
Typ lokalu: biura/biuro

Opis

Warszawa - Do wynajęcia: biuro o powierzchni 393 m2 na 6 piętrze biurowca na warszawskim Mokotowie, w okolicach ul. Wołoskiej,

poleca Agencja Nieruchomości Property Office (tel. 731-321-117, mail: katarzyna@propertyoffice.pl)

----------------Bez prowizji od Najemcy------------

Lokal znajdujący się w w nowoczesnym biurowcu niedaleko Galerii Mokotów i ul. Wołoskiej, na warszawskim Mokotowie.

Idealne miejsce do pracy w biznesowym centrum Mokotowa.

Lokal biurowy znajdujący się w mokotowskim biurowcu. którego konstrukcja daje możliwość swobodnego podziału powierzchni, zgodnie z potrzebami Najemcy.

Lokal z optymalnym dostępem naturalnego światła.

Biuro wyposażone jest m.in.: w uchylne okna, podnoszone podłogi, podwieszane sufity, klimatyzację z możliwością regulacji temperatury, czujniki dymu oraz wykładzinę.

Najemca może wejść do lokalu zarówno w stanie istniejącym, jak również poczekać na nową aranżację przygotowaną pod kątem potrzeb Najemcy, co trwa około 2-3 miesięcy.

Na miesięczne koszty najmu netto składają się:

-czynsz: 14,50-15,50 EUR/m2,

-koszty eksploatacyjne: 28,57 PLN/m2,

-energia elektryczna

Opłaty naliczane są od powierzchni brutto, czyli z wliczonym współczynnikiem powierzchni wspólnych.

Spersonalizowaną ofertę najmu, klient otrzymuje po prezentacji lokalu.

Internet:

-opcjonalnie,

-Najemca indywidualnie podpisuje umowę z operatorem telekomunikacyjnym.

Parking:

Obiekt zapewnia dostęp do około 260 podziemnych miejsc parkingowych.

-100 EUR/stanowisko/miesiąc,

Współczynnik miejsc parkingowych: 1/70 m2,

Stacja ładowania samochodów elektrycznych.

Udogodnienia dla rowerzystów:

-stacja Veturillo w pobliżu,

-infrastruktura dla rowerzystów w kompleksie,

Umowa:

-czas określony: 5 lat

-kaucja w wysokości 3-miesięcznego czynszu z opłatami eksploatacyjnymi (brutto)

Opis budynku:

9-kondygnacyjny budynek biurowy, oferujący około 16 000 m2 powierzchni do wynajęcia.

Powierzchnia typowego piętra wynosi około 2 600 m2.

Standard budynku:

-recepcja na parterze,

-Klimatyzacja,

-pełne okablowanie,

-czujniki dymu,

-Ochrona budynku,

-Kable światłowodowe

-system zarządzania budynkiem-BMS,

Udogodnienia dla Najemców w budynku i w sąsiedztwie:

-sklep spozywczy,

-bank i bankomat,

-apteka,

-kawiarnie i restauracja,

Zalety lokalizacji:

Dzięki bliskiej odległości od stacji metra Wierzbno oraz licznych linii autobusowych i tramwajowych, lokalizacja zapewnia wyjątkowo dogodne połączenia komunikacyjne zarówno z centrum miasta, jak i z lotniskiem (ok. 10 minut drogi samochodem).

Do podanych cen należy doliczyć podatek VAT w wysokości 23 %

Zdjęcia pokazują ogólny standard budynku.

Zapraszam na spotkanie w celu obejrzenia lokalu

Zachęcam do kontaktu telefonicznego pod numerem: 731-321-117

Po więcej ofert warszawskich biur, magazynów czy lokali usługowych do wynajęcia, zapraszam na stronę:

https://www.propertyoffice.pl/

Treść niniejszego ogłoszenia nie stanowi oferty handlowej w rozumieniu art.66 1 kodeksu cywilnego oraz innych właściwych przepisów prawnych.

Treść niniejszego ogłoszenia nie stanowi oferty handlowej w rozumieniu art.66 1 kodeksu cywilnego oraz innych właściwych przepisów prawnych.

Oferta wysłana z programu IMO dla biur nieruchomości

Może Cię zainteresować:

Komentarze (0)

Nic nie znaleziono

Tylko zalogowani użytkownicy mogą dodawać komentarze

Mapa

Formularz kontaktowy

This site is protected by reCAPTCHA and the Google Privacy Policy and Terms of Service apply.

Podobne ogłoszenia

Wola: lokal biurowy na wynajem

Warszawa - Do wynajęcia: lokal biurowy o pow. 12,56 m2 na 3 piętrze w budynku biurowym w okolicach ul. Górczewskiej i stacji metra Ks. Janusza,poleca Agencja Nieruchomości Property Office (tel. 731-32...

690,00 zł

Warszawa

Wola: lokal biurowy na wynajem

Warszawa - Do wynajęcia: lokal biurowy o pow.35,59 m2 , na parterze budynku biurowego na warszawskiej Woli w okolicach ul. Górczewskiej i stacji metra Ks. Janusza.poleca Agencja Nieruchomości Property...

1 957,00 zł

Warszawa

Wola:lokal biurowy na wynajem

Warszawa - Do wynajęcia: 1-pokojowy lokal biurowy o pow.14,51 m2 na 2 piętrze w budynku biurowym na warszawskiej Woli, w okolicach stacji metra Ks. Janusza, poleca Agencja Nieruchomości Property Offic...

798,00 zł

Warszawa

Śródmieście : lokal biurowy na wynajem

Warszawa - Do wynajęcia: atrakcyjny lokal biurowy o pow.37,40 m2 w centrum Warszawy, w kameralnym budynku biurowym w okolicach ul. Marszałkowskiej,poleca Agencja Nieruchomości Property Office (tel. 73...

635,00 zł

Warszawa

Śródmieście : lokal handlowo-usługowy na wynajem

Warszawa - Do wynajęcia: lokal usługowo-biurowy o pow.198 m2 w kameralnym apartamentowcu w centrum Warszawy, w okolicach ul. Żurawiej,poleca Agencja Nieruchomości Property Office (tel. 731-321-117, ma...

3 764,00 zł

Warszawa

Śródmieście : lokal biurowy na wynajem

Warszawa - Do wynajęcia: atrakcyjny lokal biurowy o pow.62,70 m2 w centrum Warszawy, w kameralnym budynku biurowym w okolicach ul. Marszałkowskiej,poleca Agencja Nieruchomości Property Office (tel. 73...

1 065,00 zł

Warszawa

Śródmieście : lokal biurowy na wynajem

Warszawa - Do wynajęcia: atrakcyjny lokal biurowy o pow.18,70 m2 w centrum Warszawy, w kameralnym budynku biurowym w okolicach ul. Marszałkowskiej,poleca Agencja Nieruchomości Property Office (tel. 73...

318,00 zł

Warszawa

Mokotów: lokal biurowy na wynajem

Warszawa- Do wynajęcia: lokal biurowy o pow.50,37 m2 na niskim parterze w budynku biurowym na warszawskim Mokotowie, w okolicach ul. Chełmskiej.poleca Agencja Nieruchomości Property Office (tel. 731-3...

2 165,00 zł

Warszawa

Mokotów: lokal biurowy na wynajem

Warszawa - Do wynajęcia: lokal biurowy o pow.224,62m2 m2 na 1 piętrze w budynku biurowym na warszawskim Mokotowie, w okolicach ul. Chełmskiej.poleca Agencja Nieruchomości Property Office (tel. 731-321...

12 346,00 zł

Warszawa

Targówek: magazyn 173 m2

Warszawa - Do wynajęcia: magazyn o pow.173 m2 na terenie kompleksu magazynowo- biurowego na warszawskim Targówku w okolicach ul. Rzecznej,poleca Property Office (tel. 731-321-117, mail: katarzyna@prop...

7 000,00 zł

Warszawa

Wola: lokal biurowy na wynajem

Warszawa - Do wynajęcia: lokal biurowy o pow.25 m2 na 1 piętrze kameralnego budynku magazynowo- biurowego na warszawskiej Woli, w okolicach ul. Kasprzaka,poleca Agencja Nieruchomości Property Office (...

1 400,00 zł

Warszawa

Wilanów : lokal biurowy na wynajem

Warszawa - Do wynajęcia: klimatyzowany lokal biurowy o pow.24 m2 na 3 piętrze kameralnego biurowca na warszawskim Wilanowie, w okolicach ul. Nałęczowskiej. poleca Agencja Nieruchomości Property Office...

2 568,00 zł

Warszawa

Wilanów : lokal biurowy na wynajem

Warszawa - Do wynajęcia: klimatyzowany lokal biurowy o pow.18 m2 na niskim parterze kameralnego biurowca na warszawskim Wilanowie, w okolicach ul. Nałęczowskiej. poleca Agencja Nieruchomości Property ...

1 907,00 zł

Warszawa

Targówek: magazyn/usługi 335 m2

Warszawa - Do wynajęcia: lokal usługowo-magazynowy o pow. 335 m2 na parterze budynku biurowego na warszawskim Targówku, w okolicach ul. Rzecznej, poleca Property Office (tel. 731-321-117, mail: katarz...

15 000,00 zł

Warszawa

Wilanów : lokal biurowy na wynajem

Warszawa - Do wynajęcia: klimatyzowany lokal biurowy o pow.28 m2 na niskim parterze kameralnego biurowca na warszawskim Wilanowie, w okolicach ul. Nałęczowskiej. poleca Agencja Nieruchomości Property ...

2 967,00 zł

Warszawa

Wilanów : lokal biurowy na wynajem

Warszawa - Do wynajęcia: klimatyzowany lokal biurowy o pow.27 m2 na 3 piętrze kameralnego biurowca na warszawskim Wilanowie, w okolicach ul. Nałęczowskiej. poleca Agencja Nieruchomości Property Office...

2 889,00 zł

Warszawa

Wola: lokal na wynajem

Warszawa - Do wynajęcia: klimatyzowany lokal biurowy o pow. 38,10 m2 na 6 piętrze w biurowcu na warszawskiej Woli, w okolicach ul. Żelaznej, poleca Agencja Nieruchomości Property Office (tel. 731-321-...

4 650,00 zł

Warszawa

Wilanów : lokal biurowo-usługowy na wynajem

Warszawa - Do wynajęcia: lokal usługowo-biurowy o pow.65 m2 na parterze domu jednorodzinnego na warszawskim Wilanowie, w okolicach ul. Królowej Marysieńkipoleca Agencja Nieruchomości Property Office (...

5 000,00 zł

Warszawa

Wilanów : lokal biurowy na wynajem

Warszawa - Do wynajęcia: klimatyzowany lokal biurowy o pow.31,50 m2 na 3 piętrze kameralnego biurowca na warszawskim Wilanowie, w okolicach ul. Nałęczowskiej. poleca Agencja Nieruchomości Property Off...

3 371,00 zł

Warszawa

Wilanów : lokal biurowy na wynajem

Warszawa - Do wynajęcia: klimatyzowany lokal biurowy o pow.135 m2 na niskim parterze kameralnego biurowca na warszawskim Wilanowie, w okolicach ul. Nałęczowskiej.poleca Agencja Nieruchomości Property ...

16 743,00 zł

Warszawa

Facebook
Facebook
Sprzedawanko.pl – serwis ogłoszeń Firmowanko.pl – katalog firm i usług Pracowanko.pl – serwis pracy Ugościmy.pl – serwis noclegów Nporta.pl – katalog firm i usług