📢
🔥 Bezpłatny Serwis Ogłoszeniowy 🔔 Dodaj Ogłoszenie Za Darmo Na SPRZEDAWANKO.PL🔥

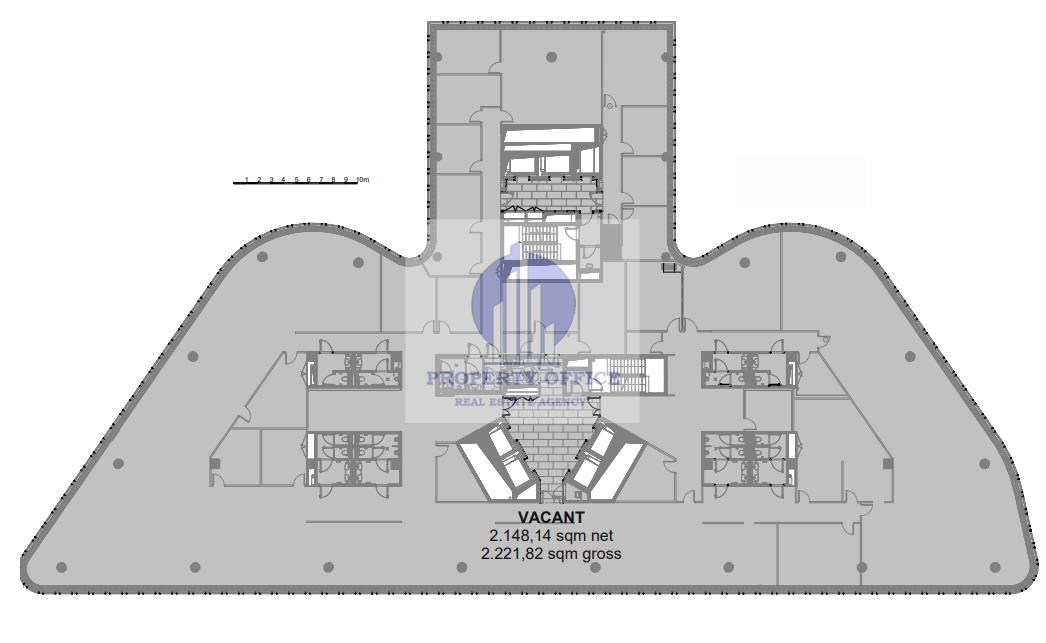
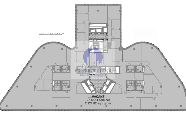
Mokotów: biuro 2222 m2

35 552,00 zł

{{ phone }}

{{ email }}

Dodane przez: PropertyOffice
Lokalizacja: Samochodowa
Telefon: {{ phone }}
Agent: Property Office Sp. o.o.
E-mail: katarzyna@propertyoffice.pl
Telefon kom.:
Udostępnij:

Opublikowano:  | Wygaśnie:

Wyświetleń: 5 | ID ogłoszenia: 66306

Numer oferty: 355098

Szczegóły

Typ: Wynajem
Rynek: Nie
Pow. użytkowa: 2222 m2
Piętro: 2
Liczba pięter: 11
Rok budowy: 2013
Ogrzewanie: miejskie
Stan wykończenia: bardzo dobry
Własność: własność
Telefon biuro: 731321117
Nr licencji: 22020
Data aktualizacji: 2026-02-10 18:13:59
Inwestycja:
Typ lokalu: biura/biuro

Opis

Do wynajęcia: lokal biurowy o pow. 2222 m2 na 2 piętrze w nowoczesnym biurowcu na warszawskim Mokotowie, w OKOLICACH ul. Samochodowej.

poleca Agencja Nieruchomości Property Office (tel. 731-321-117, mail: katarzyna@propertyoffice.pl)

BEZ PROWIZJI

Powierzchnia biurowa zajmująca całe piętro budynku.

Układ mieszany: open space + pokoje biurowe + pomieszczenia pomocnicze i socjalne..

Lokal o wysokim standardzie wykończenia, które łatwo dostosować do zmieniających się potrzeb najemców.

Lokal zaprojektowany w sposób umożliwiący dostosowanie do wymagań Najemcy, jak również efektywne wykorzystanie powierzchni.

Optymalny dostęp światła dziennego do powierzchni biurowej: otwierane okna od sufitu do podłogi.

Wysokość: 2,70 m.

Podnoszone podłogi.

Podwieszany sufit.

Klimatyzacja.

Wykładzina dywanowa w płytkach.

Puszki podłogowe.

Miejsce na ekspozycję logotypu Najemcy na zewnatrz budynku.

Na miesięczne koszty najmu netto składają się:

-czynsz: przy zapytaniu ofertowym,

-koszty eksploatacyjne: przy zapytaniu ofertowym

-media,

Opłaty naliczane są od powierzchni brutto, tzn. z wliczonym współczynnikiem powierzchni wspólnych.

Spersonalizowaną ofertę najmu, klient otrzymuje po prezentacji lokalu.

Internet:

-opcjonalnie,

-Najemca indywidualnie podpisuje umowę z operatorem telekomunikacyjnym.

Parking:

Naziemne i podziemne miejsca parkingowe.

297 miejsc parkingowych zlokalizowanych na 4 kondygnacjach podziemnych.

Zewnętrzny parking dla gości i dostaw.

System rozpoznający tablice rejestracyjne umożliwiający rotacyjne parkowanie.

Udogodnienia dla rowerzystów:

-szatnie z prysznicami dla rowerzystów,

-przebieralnie,

-szafki z funkcją suszenia ubrań,

-kodowane szafki,

-stacja Veturilo w sasiedztwie,

-stacja naprawy rowerów,

-nowoczesna zadaszona wiata rowerowa,

-ścieżki rowerowe obok budynku,

-parking dla prawie 140 rowerów,

Umowa:

-czas określony: minimum 5 lat,

-kaucja 3 miesiące,

Opis budynku:

Nowoczesny budynek biurowy klasy A.

Powierzchnia typowego piętra wynosi około 2100 m2.

Na parterze budynku zaprojektowano powierzchnie handlowo-usługowe.

9 wind szybkobieżnych.

HVAC: klimakonwektory, VRV, freecooling,

Dwa niezależne źródła zasilania.

Kontrola dostępu do budynku.

Monitoring i całodobowa ochrona.

Oświetlenie LED w częściach wspólnych.

Agregat prądotwórczy do użyutku najemców.

System zarządzania budynkiem-BMS.

Udogodnienia dla Najemców: reprezentacyjne lobby recepcyjne z wyznaczoną strefą dla gości, kurier, bankomat, pokój matki/ojca z dzieckiem,

Zalety lokalizacji:

Położenie pozwala na pełne korzystanie ze stołecznej oferty handlowo usługowej, gastronomicznej, kulturalnej i hotelowej. Lokalizacja umożliwia sprawne przemieszczanie się, zarówno transportem publicznym, jak i prywatnym.

W pobliżu przystanki autobusowe, nieco dalej przystanki tramwajowe i stacje I linii metra: Wierzbno i Wilanowska.

Do podanych cen należy doliczyć podatek VAT w wysokości 23 %

Zdjęcia pokazują ogólny standard budynku.

Zapraszam na spotkanie w celu obejrzenia lokalu

Zachęcam do kontaktu telefonicznego pod numerem: 731-321-117

Po więcej ofert warszawskich biur, magazynów czy lokali usługowych do wynajęcia, zapraszam na stronę:

https://www.propertyoffice.pl/

Treść niniejszego ogłoszenia nie stanowi oferty handlowej w rozumieniu art.66 1 kodeksu cywilnego oraz innych właściwych przepisów prawnych.

Treść niniejszego ogłoszenia nie stanowi oferty handlowej w rozumieniu art.66 1 kodeksu cywilnego oraz innych właściwych przepisów prawnych.

Oferta wysłana z programu IMO dla biur nieruchomości

Może Cię zainteresować:

Komentarze (0)

Nic nie znaleziono

Tylko zalogowani użytkownicy mogą dodawać komentarze

Mapa

Formularz kontaktowy

This site is protected by reCAPTCHA and the Google Privacy Policy and Terms of Service apply.

Podobne ogłoszenia

Wola: lokal biurowy na wynajem

Warszawa - Do wynajęcia: lokal biurowy o pow. 12,56 m2 na 3 piętrze w budynku biurowym w okolicach ul. Górczewskiej i stacji metra Ks. Janusza,poleca Agencja Nieruchomości Property Office (tel. 731-32...

690,00 zł

Warszawa

Wola: lokal biurowy na wynajem

Warszawa - Do wynajęcia: lokal biurowy o pow.35,59 m2 , na parterze budynku biurowego na warszawskiej Woli w okolicach ul. Górczewskiej i stacji metra Ks. Janusza.poleca Agencja Nieruchomości Property...

1 957,00 zł

Warszawa

Wola:lokal biurowy na wynajem

Warszawa - Do wynajęcia: 1-pokojowy lokal biurowy o pow.14,51 m2 na 2 piętrze w budynku biurowym na warszawskiej Woli, w okolicach stacji metra Ks. Janusza, poleca Agencja Nieruchomości Property Offic...

798,00 zł

Warszawa

Śródmieście : lokal biurowy na wynajem

Warszawa - Do wynajęcia: atrakcyjny lokal biurowy o pow.37,40 m2 w centrum Warszawy, w kameralnym budynku biurowym w okolicach ul. Marszałkowskiej,poleca Agencja Nieruchomości Property Office (tel. 73...

635,00 zł

Warszawa

Śródmieście : lokal handlowo-usługowy na wynajem

Warszawa - Do wynajęcia: lokal usługowo-biurowy o pow.198 m2 w kameralnym apartamentowcu w centrum Warszawy, w okolicach ul. Żurawiej,poleca Agencja Nieruchomości Property Office (tel. 731-321-117, ma...

3 764,00 zł

Warszawa

Śródmieście : lokal biurowy na wynajem

Warszawa - Do wynajęcia: atrakcyjny lokal biurowy o pow.62,70 m2 w centrum Warszawy, w kameralnym budynku biurowym w okolicach ul. Marszałkowskiej,poleca Agencja Nieruchomości Property Office (tel. 73...

1 065,00 zł

Warszawa

Śródmieście : lokal biurowy na wynajem

Warszawa - Do wynajęcia: atrakcyjny lokal biurowy o pow.18,70 m2 w centrum Warszawy, w kameralnym budynku biurowym w okolicach ul. Marszałkowskiej,poleca Agencja Nieruchomości Property Office (tel. 73...

318,00 zł

Warszawa

Mokotów: lokal biurowy na wynajem

Warszawa- Do wynajęcia: lokal biurowy o pow.50,37 m2 na niskim parterze w budynku biurowym na warszawskim Mokotowie, w okolicach ul. Chełmskiej.poleca Agencja Nieruchomości Property Office (tel. 731-3...

2 165,00 zł

Warszawa

Mokotów: lokal biurowy na wynajem

Warszawa - Do wynajęcia: lokal biurowy o pow.224,62m2 m2 na 1 piętrze w budynku biurowym na warszawskim Mokotowie, w okolicach ul. Chełmskiej.poleca Agencja Nieruchomości Property Office (tel. 731-321...

12 346,00 zł

Warszawa

Targówek: magazyn 173 m2

Warszawa - Do wynajęcia: magazyn o pow.173 m2 na terenie kompleksu magazynowo- biurowego na warszawskim Targówku w okolicach ul. Rzecznej,poleca Property Office (tel. 731-321-117, mail: katarzyna@prop...

7 000,00 zł

Warszawa

Wola: lokal biurowy na wynajem

Warszawa - Do wynajęcia: lokal biurowy o pow.25 m2 na 1 piętrze kameralnego budynku magazynowo- biurowego na warszawskiej Woli, w okolicach ul. Kasprzaka,poleca Agencja Nieruchomości Property Office (...

1 400,00 zł

Warszawa

Wilanów : lokal biurowy na wynajem

Warszawa - Do wynajęcia: klimatyzowany lokal biurowy o pow.24 m2 na 3 piętrze kameralnego biurowca na warszawskim Wilanowie, w okolicach ul. Nałęczowskiej. poleca Agencja Nieruchomości Property Office...

2 568,00 zł

Warszawa

Wilanów : lokal biurowy na wynajem

Warszawa - Do wynajęcia: klimatyzowany lokal biurowy o pow.18 m2 na niskim parterze kameralnego biurowca na warszawskim Wilanowie, w okolicach ul. Nałęczowskiej. poleca Agencja Nieruchomości Property ...

1 907,00 zł

Warszawa

Targówek: magazyn/usługi 335 m2

Warszawa - Do wynajęcia: lokal usługowo-magazynowy o pow. 335 m2 na parterze budynku biurowego na warszawskim Targówku, w okolicach ul. Rzecznej, poleca Property Office (tel. 731-321-117, mail: katarz...

15 000,00 zł

Warszawa

Wilanów : lokal biurowy na wynajem

Warszawa - Do wynajęcia: klimatyzowany lokal biurowy o pow.28 m2 na niskim parterze kameralnego biurowca na warszawskim Wilanowie, w okolicach ul. Nałęczowskiej. poleca Agencja Nieruchomości Property ...

2 967,00 zł

Warszawa

Wilanów : lokal biurowy na wynajem

Warszawa - Do wynajęcia: klimatyzowany lokal biurowy o pow.27 m2 na 3 piętrze kameralnego biurowca na warszawskim Wilanowie, w okolicach ul. Nałęczowskiej. poleca Agencja Nieruchomości Property Office...

2 889,00 zł

Warszawa

Wola: lokal na wynajem

Warszawa - Do wynajęcia: klimatyzowany lokal biurowy o pow. 38,10 m2 na 6 piętrze w biurowcu na warszawskiej Woli, w okolicach ul. Żelaznej, poleca Agencja Nieruchomości Property Office (tel. 731-321-...

4 650,00 zł

Warszawa

Wilanów : lokal biurowo-usługowy na wynajem

Warszawa - Do wynajęcia: lokal usługowo-biurowy o pow.65 m2 na parterze domu jednorodzinnego na warszawskim Wilanowie, w okolicach ul. Królowej Marysieńkipoleca Agencja Nieruchomości Property Office (...

5 000,00 zł

Warszawa

Wilanów : lokal biurowy na wynajem

Warszawa - Do wynajęcia: klimatyzowany lokal biurowy o pow.31,50 m2 na 3 piętrze kameralnego biurowca na warszawskim Wilanowie, w okolicach ul. Nałęczowskiej. poleca Agencja Nieruchomości Property Off...

3 371,00 zł

Warszawa

Targówek: lokal biurowy na wynajem

Warszawa - Do wynajęcia: biuro o pow.12 m2 na warszawskim Targówku Fabrycznym, w okolicach ul. Ks. Ziemowita,poleca Agencja Nieruchomości Property Office (tel. 731-321-117, mail: katarzyna@propertyoff...

552,00 zł

Warszawa

Facebook
Facebook
Sprzedawanko.pl – serwis ogłoszeń Firmowanko.pl – katalog firm i usług Pracowanko.pl – serwis pracy Ugościmy.pl – serwis noclegów Nporta.pl – katalog firm i usług