📢
🔥 Bezpłatny Serwis Ogłoszeniowy 🔔 Dodaj Ogłoszenie Za Darmo Na SPRZEDAWANKO.PL🔥

Włochy: lokal biurowy na wynajem

5 427,00 zł

{{ phone }}

{{ email }}

Dodane przez: PropertyOffice
Lokalizacja: 1 Sierpnia
Telefon: {{ phone }}
Agent: Property Office Sp. o.o.
E-mail: katarzyna@propertyoffice.pl
Telefon kom.:
Udostępnij:

Opublikowano:  | Wygaśnie:

Wyświetleń: 5 | ID ogłoszenia: 66029

Numer oferty: 350547

Szczegóły

Typ: Wynajem
Rynek: Nie
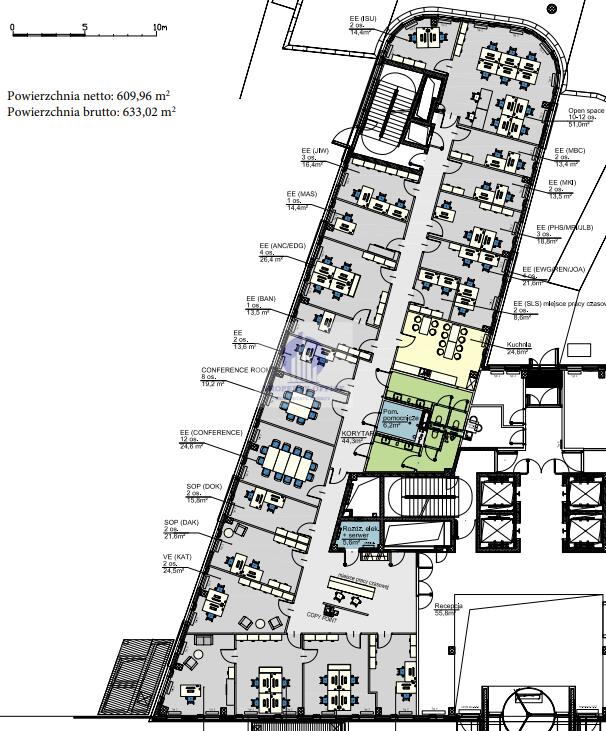
Pow. użytkowa: 319.29 m2
Piętro: 0
Liczba pięter: 7
Rok budowy: 2017
Ogrzewanie: miejskie
Stan wykończenia: bardzo dobry
Własność: własność
Telefon biuro: 731321117
Nr licencji: 22020
Data aktualizacji: 2026-04-11 10:19:14
Inwestycja:
Typ lokalu: biura/biuro

Opis

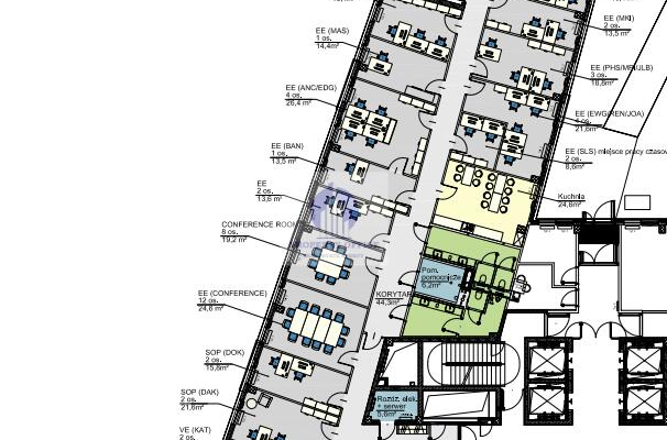
Warszawa - Do wynajęcia: atrakcyjny lokal biurowy o pow. 319,29 m2 na parterze biurowca na warszawskich Włochach, w okolicach ul.1 Sierpnia.

poleca Agencja Nieruchomości Property Office(tel. 731-3 21-117, mail: katarzyna@propertyoffice.pl)

------------Bez prowizji od najemcy------------

Lokal biurowy w podziale na pokoje biurowe, salki konferencyjne, kuchnie, serwerownię i pomieszczenia pomocnicze,

Wysokość: 2,92-2,97 m.

Możliwość zmiany aranżacji powierzchni.

Powierzchnia z optymalnym dostępem naturalnego światła.

Standard powierzchni biurowej: Belki chłodzące, oświetlenie w części biurowej, uchylne okna, drzwi wejściowe, grzejniki, podniesiona podłoga, wyposażenie toalet, kontrola dostępu, 24h ochrona, BMS.

Na miesięczne koszty najmu netto składają się:

-czynsz : 5417,93 EUR,

-koszty eksploatacyjne: 25 PLN/m2

-media,

Opłaty naliczane są od powierzchni brutto, tzn. z wliczonym współczynnikiem powierzchni wspólnych:

Spersonalizowaną ofertę finansową, klient otrzymuje po prezentacji lokalu.

Internet:odrębna umowa z operatorem telekomunikacyjnym.

Parking:

- Do dyspozycji najemców oddano 248 podziemnych miejsc parkingowych.

-150 EUR / stanowisko / miesiąc

Stacje ładowania pojazdów elektrycznych.

Współczynnik miejsc parkingowych: 1/60 m2.

Sezonowa wypożyczalnia rowerów.

Stacja naprawy rowerów.

Miejsca postojowe oraz szatnie z prysznicami dla rowerzystów..

Parking dla gości.

Umowa:

-czas określony

-kaucja 3 miesiące,

Opis budynku:

Budynek oferuje ponad 10 000 m2 powierzchni biurowej do wynajęcia, rozmieszczonej na 7 kondygnacjach naziemnych.

Powierzchnia typowego pietra to 1770 m2.

Oprócz biur, w kompleksie funkcjonuje hotel z centrum konferencyjnym, restauracje oraz wiele innych udogodnień dla najemców.

Projekt wyróżnia duży udział terenów zielonych i nietuzinkowa architektura.

Standard budynku:

Podwieszany sufit w korytarzach, belki chłodzące, oświetlenie w części biurowej, uchylne okna, drzwi wejściowe, grzejniki, podniesiona podłoga, wyposażenie toalet, kontrola dostępu, 24h ochrona, BMS.

Udogodnienia:

Hotel na terenie kompleksu, centrum konferencyjne, restauracja, kawiarnia, klub fitness, kiosk, placówka bankowa, paczkomat Inpost, kantyna dla pracowników

Zalety lokalizacji:

Sześć linii autobusowych zapewnia szybki dojazd do praktycznie każdej części miasta.

W bezpośrednim sąsiedztwie budynku znajduje się przystanek SKM łączącej lotnisko z Dworcem Centralnym.

Lokalizacja przy głównej arterii Warszawy gwarantuje dobry dojazd do centrum i nowo otwartej trasy NS.

Możliwość dojazdu rowerem wzdłuż rozbudowywanej sieci ścieżek rowerowych miasta.

Zaledwie pięć minut trwa dojazd do lotniska im. Fryderyka Chopina.

Do podanych cen należy doliczyć podatek VAT w wysokości 23 %

Zdjęcia pokazują ogólny standard budynku.

Zapraszam na spotkanie w celu obejrzenia lokalu

Zachęcam do kontaktu telefonicznego pod numerem: 731-321-117

Po więcej ofert warszawskich biur, magazynów czy lokali usługowych do wynajęcia, zapraszam na stronę:

https://www.propertyoffice.pl/

Treść niniejszego ogłoszenia nie stanowi oferty handlowej w rozumieniu art.66 1 kodeksu cywilnego oraz innych właściwych przepisów prawnych.

Treść niniejszego ogłoszenia nie stanowi oferty handlowej w rozumieniu art.66 1 kodeksu cywilnego oraz innych właściwych przepisów prawnych.

Oferta wysłana z programu IMO dla biur nieruchomości

Może Cię zainteresować:

Komentarze (0)

Nic nie znaleziono

Tylko zalogowani użytkownicy mogą dodawać komentarze

Mapa

Formularz kontaktowy

This site is protected by reCAPTCHA and the Google Privacy Policy and Terms of Service apply.

Podobne ogłoszenia

Wola: lokal biurowy na wynajem

Warszawa - Do wynajęcia: lokal biurowy o pow. 12,56 m2 na 3 piętrze w budynku biurowym w okolicach ul. Górczewskiej i stacji metra Ks. Janusza,poleca Agencja Nieruchomości Property Office (tel. 731-32...

690,00 zł

Warszawa

Wola: lokal biurowy na wynajem

Warszawa - Do wynajęcia: lokal biurowy o pow.35,59 m2 , na parterze budynku biurowego na warszawskiej Woli w okolicach ul. Górczewskiej i stacji metra Ks. Janusza.poleca Agencja Nieruchomości Property...

1 957,00 zł

Warszawa

Wola:lokal biurowy na wynajem

Warszawa - Do wynajęcia: 1-pokojowy lokal biurowy o pow.14,51 m2 na 2 piętrze w budynku biurowym na warszawskiej Woli, w okolicach stacji metra Ks. Janusza, poleca Agencja Nieruchomości Property Offic...

798,00 zł

Warszawa

Śródmieście : lokal biurowy na wynajem

Warszawa - Do wynajęcia: atrakcyjny lokal biurowy o pow.37,40 m2 w centrum Warszawy, w kameralnym budynku biurowym w okolicach ul. Marszałkowskiej,poleca Agencja Nieruchomości Property Office (tel. 73...

635,00 zł

Warszawa

Śródmieście : lokal handlowo-usługowy na wynajem

Warszawa - Do wynajęcia: lokal usługowo-biurowy o pow.198 m2 w kameralnym apartamentowcu w centrum Warszawy, w okolicach ul. Żurawiej,poleca Agencja Nieruchomości Property Office (tel. 731-321-117, ma...

3 764,00 zł

Warszawa

Śródmieście : lokal biurowy na wynajem

Warszawa - Do wynajęcia: atrakcyjny lokal biurowy o pow.62,70 m2 w centrum Warszawy, w kameralnym budynku biurowym w okolicach ul. Marszałkowskiej,poleca Agencja Nieruchomości Property Office (tel. 73...

1 065,00 zł

Warszawa

Śródmieście : lokal biurowy na wynajem

Warszawa - Do wynajęcia: atrakcyjny lokal biurowy o pow.18,70 m2 w centrum Warszawy, w kameralnym budynku biurowym w okolicach ul. Marszałkowskiej,poleca Agencja Nieruchomości Property Office (tel. 73...

318,00 zł

Warszawa

Mokotów: lokal biurowy na wynajem

Warszawa- Do wynajęcia: lokal biurowy o pow.50,37 m2 na niskim parterze w budynku biurowym na warszawskim Mokotowie, w okolicach ul. Chełmskiej.poleca Agencja Nieruchomości Property Office (tel. 731-3...

2 165,00 zł

Warszawa

Mokotów: lokal biurowy na wynajem

Warszawa - Do wynajęcia: lokal biurowy o pow.224,62m2 m2 na 1 piętrze w budynku biurowym na warszawskim Mokotowie, w okolicach ul. Chełmskiej.poleca Agencja Nieruchomości Property Office (tel. 731-321...

12 346,00 zł

Warszawa

Targówek: magazyn 173 m2

Warszawa - Do wynajęcia: magazyn o pow.173 m2 na terenie kompleksu magazynowo- biurowego na warszawskim Targówku w okolicach ul. Rzecznej,poleca Property Office (tel. 731-321-117, mail: katarzyna@prop...

7 000,00 zł

Warszawa

Wola: lokal biurowy na wynajem

Warszawa - Do wynajęcia: lokal biurowy o pow.25 m2 na 1 piętrze kameralnego budynku magazynowo- biurowego na warszawskiej Woli, w okolicach ul. Kasprzaka,poleca Agencja Nieruchomości Property Office (...

1 400,00 zł

Warszawa

Wilanów : lokal biurowy na wynajem

Warszawa - Do wynajęcia: klimatyzowany lokal biurowy o pow.24 m2 na 3 piętrze kameralnego biurowca na warszawskim Wilanowie, w okolicach ul. Nałęczowskiej. poleca Agencja Nieruchomości Property Office...

2 568,00 zł

Warszawa

Wilanów : lokal biurowy na wynajem

Warszawa - Do wynajęcia: klimatyzowany lokal biurowy o pow.18 m2 na niskim parterze kameralnego biurowca na warszawskim Wilanowie, w okolicach ul. Nałęczowskiej. poleca Agencja Nieruchomości Property ...

1 907,00 zł

Warszawa

Targówek: magazyn/usługi 335 m2

Warszawa - Do wynajęcia: lokal usługowo-magazynowy o pow. 335 m2 na parterze budynku biurowego na warszawskim Targówku, w okolicach ul. Rzecznej, poleca Property Office (tel. 731-321-117, mail: katarz...

15 000,00 zł

Warszawa

Wilanów : lokal biurowy na wynajem

Warszawa - Do wynajęcia: klimatyzowany lokal biurowy o pow.28 m2 na niskim parterze kameralnego biurowca na warszawskim Wilanowie, w okolicach ul. Nałęczowskiej. poleca Agencja Nieruchomości Property ...

2 967,00 zł

Warszawa

Wilanów : lokal biurowy na wynajem

Warszawa - Do wynajęcia: klimatyzowany lokal biurowy o pow.27 m2 na 3 piętrze kameralnego biurowca na warszawskim Wilanowie, w okolicach ul. Nałęczowskiej. poleca Agencja Nieruchomości Property Office...

2 889,00 zł

Warszawa

Wola: lokal na wynajem

Warszawa - Do wynajęcia: klimatyzowany lokal biurowy o pow. 38,10 m2 na 6 piętrze w biurowcu na warszawskiej Woli, w okolicach ul. Żelaznej, poleca Agencja Nieruchomości Property Office (tel. 731-321-...

4 650,00 zł

Warszawa

Wilanów : lokal biurowo-usługowy na wynajem

Warszawa - Do wynajęcia: lokal usługowo-biurowy o pow.65 m2 na parterze domu jednorodzinnego na warszawskim Wilanowie, w okolicach ul. Królowej Marysieńkipoleca Agencja Nieruchomości Property Office (...

5 000,00 zł

Warszawa

Wilanów : lokal biurowy na wynajem

Warszawa - Do wynajęcia: klimatyzowany lokal biurowy o pow.31,50 m2 na 3 piętrze kameralnego biurowca na warszawskim Wilanowie, w okolicach ul. Nałęczowskiej. poleca Agencja Nieruchomości Property Off...

3 371,00 zł

Warszawa

Włochy: lokal biurowy na wynajem

Warszawa - Do wynajęcia lokal biurowy o pow.72,26 m2 na 2 piętrze kameralnego budynku biurowego na warszawskich Włochach, w okolicach Al. Krakowskiej.poleca Agencja Nieruchomości Property Office (tel....

1 011,00 zł

Warszawa

Facebook
Facebook
Sprzedawanko.pl – serwis ogłoszeń Firmowanko.pl – katalog firm i usług Pracowanko.pl – serwis pracy Ugościmy.pl – serwis noclegów Nporta.pl – katalog firm i usług