📢
🔥 Bezpłatny Serwis Ogłoszeniowy 🔔 Dodaj Ogłoszenie Za Darmo Na SPRZEDAWANKO.PL🔥

ZŁOCIEŃ – Twoje mieszkanie na wschodzie Krakowa

457 306,00 zł

{{ phone }}

{{ email }}

Dodane przez: braciasadurscy
braciasadurscy
Lokalizacja: Osiedle Złocień
Telefon: {{ phone }}
Agent: Marek Popiela
E-mail: marek@sadurscy.pl
Telefon kom.: +48 518-967-677
Udostępnij:

Opublikowano:  | Wygaśnie:

Wyświetleń: 9 | ID ogłoszenia: 65289

Numer oferty: BS2-MS-314475-134

Szczegóły

Typ: Sprzedaż
Rynek: Pierwotny
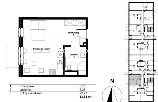
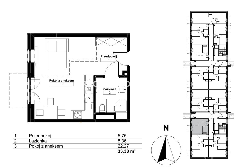
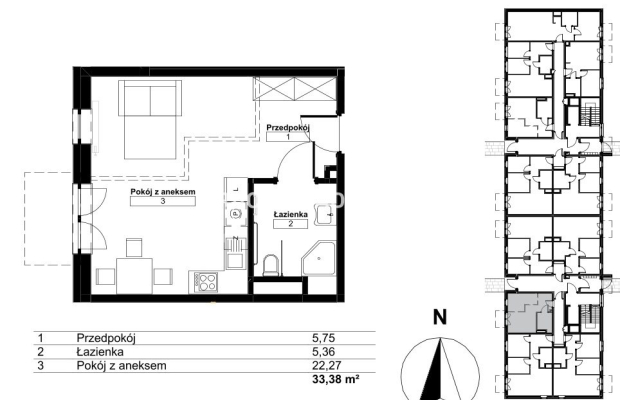
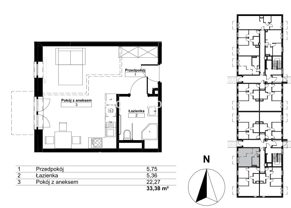
Pow. użytkowa: 33.38 m2
Cena za m2 (zł): 13700
Liczba pokoi: 2
Liczba sypialni: 1
Rodzaj zabudowy: budynek wielorodzinny
Piętro: 0
Liczba pięter: 4
Materiał budynku: tradycyjna
Okna: PCV
Rok budowy: 2026
Ogrzewanie: C.O. miejskie
Stan wykończenia: deweloperski
Własność: Własność
Data aktualizacji: 2026-03-24

Opis



ZŁOCIEŃ - nowoczesne osiedle mieszkaniowe

Przedstawiamy wyjątkowe osiedle położone w południowo-wschodniej części miasta, które łączy nowoczesną architekturę, komfort mieszkania i bliskość zielonych przestrzeni.

O mieszkaniach
W ofercie znajdują się funkcjonalne dwu-, trzy- i czteropokojowe mieszkania o powierzchni od 33 do 60 m². Lokale na parterze posiadają prywatne ogródki, a mieszkania na wyższych piętrach - przestronne balkony. Najwyższe kondygnacje wyróżniają się dużymi tarasami na dachu, zapewniającymi relaks i piękne widoki. Budynek powstaje w tradycyjnej technologii i oferowany jest w stanie deweloperskim, z tynkami, wylewkami i kompletnymi instalacjami.

Architektura i infrastruktura osiedla
Osiedle składa się z czteropiętrowych budynków o nowoczesnej, jasnej elewacji. Teren jest ogrodzony, z zaplanowaną zielenią, wspólną strefą rekreacyjną oraz drogami dojazdowymi. Budynki wyposażone są w cichobieżne windy, a miejsca postojowe znajdują się zarówno w garażu podziemnym, jak i w garażach na parterze.

Okolica i udogodnienia
W sąsiedztwie osiedla znajduje się bogata infrastruktura handlowo-usługowa: sklepy spożywcze (Biedronka, Lidl, Żabka), drogeria Rossmann, restauracje, kawiarnie, a w odległości 2 km - bazarek miejski. Do centrum handlowego „Targowe” dojazd zajmuje około 15 minut.

Edukacja i opieka medyczna
W okolicy działają przedszkola i żłobki, m.in. „Akademia Smyka” i „Krasnal”, szkoły podstawowe nr 111 i 124 oraz XXV Liceum Ogólnokształcące im. Stefana Żeromskiego (ok. 3 km). Dostępna jest również opieka medyczna, apteki i przychodnie rodzinne.

Sport i rekreacja
Osiedle oferuje łatwy dostęp do siłowni plenerowych, fitness centrów i basenów, umożliwiając aktywny tryb życia.

Komunikacja
Doskonała lokalizacja zapewnia szybki dojazd do różnych części miasta dzięki bliskości ulic Agatowej, Henryka i Karola Czeczów oraz drogi krajowej S7. W odległości ok. 450 m znajduje się przystanek autobusowy linii 125 i 183, a stacja kolejowa - 2,3 km od osiedla.

Kontakt
Marek Popiela
+48 518 967 677
marek@sadurscy.pl


--------------------------

::GRATIS | Nasza prowizja zawiera: koszt przedwstępnej notarialnej umowy sprzedaży nieruchomości z rynku wtórnego.
::GWARANCJA | Gwarancja zwrotu zadatku. Więcej informacji na sadurscy.pl/zwrot-zadatku/


Oferta wysłana z systemu Galactica Virgo

Może Cię zainteresować:

Komentarze (0)

Nic nie znaleziono

Tylko zalogowani użytkownicy mogą dodawać komentarze

Mapa

Formularz kontaktowy

This site is protected by reCAPTCHA and the Google Privacy Policy and Terms of Service apply.

Podobne ogłoszenia

Kawalerka do wynajęcia z miejscem parkingowym.

Na wynajem - przytulna kawalerka w centrum Bydgoszczy + miejsce parkingowe Oferujemy do wynajęcia bardzo ładną, w pełni umeblowaną kawalerkę położoną w samym centrum Bydgoszczy. Mieszkanie ...

1 700,00 zł

Bydgoszcz

Szklary Górne, gmina Lubin, działka budowlana, 1327 m2, cena 225 590,00 zł. Zapraszam do zapoznania się z ofertą sprzedaży

Szklary Górne, gmina Lubin, działka budowlana, 1327 m2, cena 225 590,00 zł. Zapraszam do zapoznania się z ofertą sprzedaży 25 działek budowlanych położonych w miejscowości Szklary Górne. Działk...

225 590,00 zł

Dolnośląskie

Sobolice, gmina Bytom Odrzański, działka, sprzedam, 3000 m2, 130 000 zł. Na sprzedaż działka położona w miejscowości Soboli

Sobolice, gmina Bytom Odrzański, działka, sprzedam, 3000 m2, 130 000 zł. Na sprzedaż działka położona w miejscowości Sobolice o powierzchni 30 ar, działka o płaskim ukształtowaniu terenu z wydanym...

130 000,00 zł

Lubuskie

Szymocin, gm Grębocice, działka budowlana 1500, cena 115 000zł. Zapraszamy do zapoznania się z ofertą działek budowlany

Szymocin, gm Grębocice, działka budowlana 1500, cena 115 000zł. Zapraszamy do zapoznania się z ofertą działek budowlanych. Znakomita lokalizacja na ruchliwej drodze z bliskim dostępem do ...

115 000,00 zł

Dolnośląskie

Ostaszów, gmina Przemków, działki, sprzedam, 5000,00 zł/ar. Zapraszam do zapoznania się z ofertą sprzedaży działek budowla

Ostaszów, gmina Przemków, działki, sprzedam, 5000,00 zł/ar. Zapraszam do zapoznania się z ofertą sprzedaży działek budowlanych położonych w Ostaszowie. Dojazd do działek drogą utwardzoną, media...

50 000,00 zł

Dolnośląskie

Podbrzezie Dolne, gmina Kożuchów, powiat nowosolski, działka, sprzedam, 839m2, 57 052 zł netto. Na sprzedaż działka budowl

Podbrzezie Dolne, gmina Kożuchów, powiat nowosolski, działka, sprzedam, 839m2, 57 052 zł netto. Na sprzedaż działka budowlana o powierzchni 839 m2 położona w miejscowości Podbrzezie Dolne, gmina ...

57 052,00 zł

Lubuskie

Ostaszów, gmina Przemków, działka budowlana 15 ar, sprzedam, 75000,00 zł. Na sprzedaż działki budowlane położone w Ostaszo

Ostaszów, gmina Przemków, działka budowlana 15 ar, sprzedam, 75000,00 zł. Na sprzedaż działki budowlane położone w Ostaszowie. Dojazd do działki drogą utwardzoną, media prąd, woda, kanalizacja ...

75 000,00 zł

Dolnośląskie

Jakubowo Lubińskie, gmina Przemków, działka 7459 m2, sprzedam, 175 000 zł. Na sprzedaż działka o powierzchni 74,59 ar z wy

Jakubowo Lubińskie, gmina Przemków, działka 7459 m2, sprzedam, 175 000 zł. Na sprzedaż działka o powierzchni 74,59 ar z wydanymi warunkami zabudowy położona w Jakubowie Lubińskim. Nieruchomość ...

175 000,00 zł

Dolnośląskie

Facebook
Facebook
Sprzedawanko.pl – serwis ogłoszeń Firmowanko.pl – katalog firm i usług Pracowanko.pl – serwis pracy Ugościmy.pl – serwis noclegów Nporta.pl – katalog firm i usług