📢
🔥 WIOSNA 2026 W SPRZEDAWANKO.PL 🔔 NA START WSZYSTKO ZA FREE PRZEZ 3 MIESIĄCE (90 DNI) 🔥

Twój dom marzeń – 5 pokoi, standard PREMIUM

1 018 250,00 zł

{{ phone }}

{{ email }}

Dodane przez: HomePartner
HomePartner
Lokalizacja: Lipowa
Telefon: {{ phone }}
Agent: Monika Łabęska - Cioch
E-mail: biuro@home-partner.com.pl
Telefon kom.: 536 496 163
Udostępnij:

Opublikowano:  | Wygaśnie:

Wyświetleń: 8 | ID ogłoszenia: 63554

Numer oferty: 20627

Szczegóły

Typ: Sprzedaż
Rynek: Wtórny
Ogłoszeniodawca: Firmowy
Pow. użytkowa m2: 131.73
Pow. działki m2: 330
Pow. całkowita m2: 131.73
Liczba pokoi: 5
Liczba sypialni: 4
Podłogi: beton
Rok budowy: 2025
Nr licencji: 23243
Data aktualizacji: 2026-03-12 07:23:06

Opis

Na sprzedaż energooszczędny dom w zabudowie szeregowej o powierzchni użytkowej 131,73 m, wyróżniający się wykończeniem w standardzie PREMIUM.

 

Nieruchomość usytuowana jest na wydzielonej działce.

 

Budynki w klasie PREMIUM charakteryzują się najwyższą jakością wykonania oraz zastosowaniem najlepszych materiałów.

 

Rynek pierwotny kupujący nie płaci prowizji oraz podatku PCC.

 

I ETAP INWESTYCJI DEWELOPERSKIEJ W GNIECHOWICACH. Docelowo zaprojektowano 10 domów w zabudowie szeregowej na działkach o wielkościach od 210 do 470 m2.

Zakończenie budowy GRUDZIEŃ 2025 r

 

Przekazanie domów: I Q 2026 r.

 

Przeniesienie własności: II Q 2026 r.

 

Rynek pierwotny. Kupujący nie płaci prowizji i podatku PCC.

 

Dom J, z ogrodem, usytuowany na działce 330 m2, pięć pokoi, kuchnia w aneksie, dwie łazienki, garaż. W cenie pełna pompa ciepła, rolety zewnętrzne na parterze, kabel do fotowoltaiki.

 

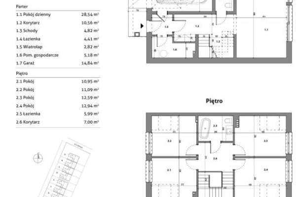
UKŁAD POMIESZCZEŃ

Parter: obszerny salon z aneksem kuchennym (28,54 m2) i z wyjściem na taras/ogród o wschodnio-południowej ekspozycji, łazienka (4,41 m2), pomieszczenie gospodarcze (5,18m2), garaż w bryle budynku (14,84)

I piętro: cztery ustawne sypialnie (10,95 m2, 11,09 m2, 12,59 m2, 12,94 m2, łazienka (5,99m2)

 

STANDARD

Podwyższony standard wykończenia:

- oszczędna pompa ciepła z możliwością chłodzenia w upalne dni

- kabel do instalacji fotowoltaicznej

- komfortowe i funkcjonalne ogrzewanie podłogowe w całym domu

- rolety zewnętrzne sterowane automatycznie na parterze budynku

- światłowód

- drzwi antywłamaniowe klasy C renomowanej firmy

- powierzchnie tarasów z płyt betonowych lub deski kompozytowej

- ściany z porothermu, dachówka ceramiczna

-okna pcv pięciokomorowe trzyszybowe

- ogrzewanie podłogowe , również w garażu

zbiornik na deszczówkę 4 tys litrów wkopany w ziemię

- dachówka ceramiczna z powłoką antyglonową

 

MEDIA

prąd, woda, zbiornik bezodpływowy

 

CENA: 1 018 250 zł

 

LOKALIZACJA I KOMUNIKACJA

Dom położony jest w miejscowości Gniechowice, w gminie Kąty Wrocławskie.

 

Spokojna i zielona okolica. Położenie na skraju Parku Krajobrazowego Doliny Bystrzycy daje możliwość kontaktu z pięknem natury i prowadzenia aktywnego trybu życia.

 

Dobry dojazd :

- do centrum Wrocławia - ok.25 min.

- do Centrum Handlowego Bielany Wrocławskie ok. 14 min

- do Kątów Wrocławskich 8 min.

- do Sobótki - 13 min.

- do Kobierzyc - 11 min.

- do autostrady A4 - 10 min.

- do portu lotniczego Wrocław- 20 min.

- do pałacu Krobielowice - 4km

 

Kursują także gminne autobusy, autobusy międzymiastowe oraz prywatne busy.

 

TEREN NIEZALEWOWY

 

Dom zlokalizowany z dala od zgiełku aglomeracji. Jednocześnie bliskość Wrocławia powoduje, że można łączyć pracę zawodową w mieście ze spokojem i ciszą wsi. W miejscowości sklep, kościół, restauracja, sklep Lewiatan, cukiernia i piekarnia, a także szkołą podstawowa, przedszkole w pobliskim Pustkowie Żurawskim oddalonym o ok. 6 km.

 

ZALETY OFERTY:

- doskonała lokalizacja

- funkcjonalny układ domu

- 5 pokoi

- spokojna okolica

- podwyższony standard wykończenia

 

Zapraszam do rozmów i obejrzenia domu. www.home-partner.com.pl Tel. 536 496 163

 

Feel free to contact us, talk and see the apartment. For more information please call us Tel +48 889 759 863.

 

Por favor contáctenos para conocer más sobre la oferta y ver el apartamento. Podemos ayudar con todos los trámites. Para más información por favor llámanos +48 889 759 863.

 

Treść niniejszego ogłoszenia nie stanowi oferty handlowej w rozumieniu Kodeksu Cywilnego.

 

Oferta wysłana z programu IMO dla biur nieruchomości

Może Cię zainteresować:

Komentarze (0)

Nic nie znaleziono

Tylko zalogowani użytkownicy mogą dodawać komentarze

Mapa

Formularz kontaktowy

This site is protected by reCAPTCHA and the Google Privacy Policy and Terms of Service apply.

Podobne ogłoszenia

Widokowa działka w sasiędztwie lasu / MPZP / 10 ar

Biuro Nieruchomości Bracia Sadurscy ma przyjemność zaprezentować Państwu, działkę budowlaną pod zabudowę jednorodzinną w miejscowości Stróża (gmina Pcim). MPZP - 190.MN/RM (zabudowa jednoro...

160 000,00 zł

Stróża

Bronowice, parter, 95 m2 biur + parking

Oferujemy do wynajęcia powierzchnię biurową ~95m2 w nowoczesnym budynku biurowym z portiernią i dostępem 24h *Zdjęcia należą do właściciela oferty Na powierzchnię składa się 3 pokoi biuro...

6 600,00 zł

Kraków

Widokowa działka w sasiędztwie lasu / MPZP / 20 ar

Biuro Nieruchomości Bracia Sadurscy ma przyjemność zaprezentować Państwu, działkę budowlaną pod zabudowę jednorodzinną w miejscowości Stróża (gmina Pcim). MPZP - 190.MN/RM (zabudowa jednoro...

280 000,00 zł

Stróża

Widokowa działka w sasiędztwie lasu / MPZP / 30 ar

Biuro Nieruchomości Bracia Sadurscy ma przyjemność zaprezentować Państwu, działkę budowlaną pod zabudowę jednorodzinną w miejscowości Stróża (gmina Pcim). MPZP - 190.MN/RM (zabudowa jednoro...

340 000,00 zł

Stróża

Działka usługowa 1754 m² |ul.Klasztorna|inwestycja

Działka usługowa 1 754 m² | Kraków - ul. Klasztorna | inwestycja Na sprzedaż działka usługowa o powierzchni 1 754 m² położona przy ul. Klasztornej w Kraków . Nieruchomość posiada fron...

2 000 000,00 zł

Kraków

Fantastyczny dom w Olkuszu.

OLKUSZ - UL. SOSNOWA Dom jednorodzinny z funkcją usługową - lokal gastronomiczny | gotowa inwestycja Na sprzedaż atrakcyjna nieruchomość mieszkalno-usługowa położona w Olkuszu przy ul. ...

1 590 000,00 zł

Olkusz

Lokal mieszkalno-usługowy w centrum.

Lokal mieszkalno-komercyjny w centrum Krakowa | ul. Wrocławska, Kraków | 115 m² Na sprzedaż lokal mieszkalno-komercyjny o powierzchni 115 m² , położony przy prestiżowej i doskonale skomuni...

890 000,00 zł

Kraków

Słoneczne mieszkanie ul. Reduta!

Słoneczne mieszkanie z balkonem i miejscem postojowym - Reduta! LOKALIZACJA Mieszkanie usytuowane jest w jednej z najbardziej pożądanych dzielnic Krakowa - Prądnik Czerwony, przy ul. Re...

3 000,00 zł

Kraków

Idealne 3 pokoje z balkonem w zielonej okolicy!

Atrakcyjna oferta 3-pokojowego mieszkania w zielonej okolicy - ul. Powstańców! Oferujemy do sprzedaży komfortowe, 3-pokojowe mieszkanie w świetnej lokalizacji! Idealne zarówno do zamieszkania...

729 000,00 zł

Kraków

Ciche 2 pokoje z oddzielna kuchnią

Do wynajęcia od zaraz mieszkanie 2 pokoje z oddzielną kuchnią ul. Gołężycka, Wrocław, Fabryczna, osiedle Kozanów- 49 m2.FUNKCJONALNOŚĆMieszkanie bardzo przyjemne i zadbane, dwustronne, z dużym balkone...

2 200,00 zł

Wrocław

Dwupoziomowy Apartament w Zielonej Okolicy!

English version belowOferuję do wynajęcia od zaraz zadbane mieszkanie dwupoziomowe.Mieszkanie przyjazne zwierzętom! Wrocław Klecina, ul. WałbrzyskaNa wynajem przestronne, dwupoziomowe mieszkanie o pow...

3 500,00 zł

Wrocław

Stylowe 2 pokoje z balkonem

Oferuję do wynajęcia od marca bardzo klimatyczne mieszkanie, designersko urządzone. Salon z aneksem kuchennym i osobna sypialnia, łazienka z wanną, dodatkowo przypisane miejsce postojowe naziemne (za ...

2 400,00 zł

Wrocław

Facebook
Facebook
Sprzedawanko.pl – serwis ogłoszeń Firmowanko.pl – katalog firm i usług Pracowanko.pl – serwis pracy Ugościmy.pl – serwis noclegów Nporta.pl – katalog firm i usług