📢
🔥 WIOSNA 2026 W SPRZEDAWANKO.PL 🔔 NA START WSZYSTKO ZA FREE PRZEZ 3 MIESIĄCE (90 DNI) 🔥

DOM 192 M2 STAN SUROWY 7 POKOI WIDOK RUPNIÓW

400 000,00 zł

{{ email }}

Dodane przez: braciasadurscy
braciasadurscy
Lokalizacja:
Agent: Marzena Wróbel
E-mail: marzena@sadurscy.pl
Telefon kom.: +48 537-765-461
Udostępnij:

Opublikowano:  | Wygaśnie:

Wyświetleń: 2 | ID ogłoszenia: 63468

Numer oferty: BS5-DS-312087-10

Szczegóły

Typ: Sprzedaż
Rynek: Wtórny
Pow. użytkowa m2: 192.19
Pow. działki m2: 1252
Pow. całkowita m2: 192.19
Cena za m2 (zł): 2081.27
Liczba pokoi: 7
Liczba sypialni: 7
Liczba pięter: 2
Rodzaj zabudowy: jednorodzinny
Okna: stare drewniane
Rok budowy: 1994
Ogrzewanie: inne
Własność: Własność
Dach: inne
Szer. działki (m): 49
Wirtualny spacer: https://sb360.online/ntgnrv
Telefon biuro: +48 537-765-461
Data aktualizacji: 2026-03-11

Opis


DOM / 192,19 M2 / 7 POKOI / 2 ŁAZIENKI / STAN SUROWY / RUPNIÓW / GMINA WIEJSKA LIMANOWA / POWIAT LIMANOWSKI

KTO MOŻE ZAMIESZKAĆ ❓
Mieszkanie jest idealne dla rodziny z dziećmi nawet 2+6, inwestorzy którzy chcieliby prowadzić mały "pensjonat"

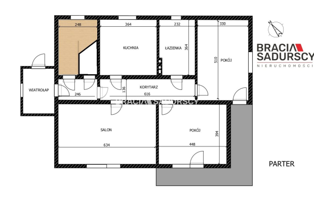
JAKIE JEST ROZMIESZCZENIE DOMU ❓

✅ PARTER ✅

✅ SALON / SYPIALNIA 1 [ ok. 25 M2 ] południe
✅ POKÓJ 2 [ ok. 17,6 M2 ] południe
- z tarasem
✅ POKÓJ 3 [ ok. 16,8 M2 ] północ
✅ KUCHNIA [ ok. 13,2 M2 ] północ
✅ ŁAZIENKA [ ok. 8,4 M2 ] północ
✅ WIATROŁAP [ ok. 3,3 M2 ] zachód
✅ KORYTARZ [ ok. 8,4 M2 ]


✅ PIERWSZE PIĘTRO ✅

✅ POKÓJ 4 [ ok. 26,4 M2 ] południe
- Z balkonem
✅ POKÓJ 5 [ ok. 18,5 M2 ] południe
- Z balkonem
✅ POKÓJ 6 [ ok. 11,9 M2 ] północ
✅ POKÓJ 7 [ ok. 13,5 M2 ] północ
- może też pełnić funkcje kuchni
✅ ŁAZIENKA [ ok. 9,1 M2 ] północ
✅ KORYTARZ [ ok. 8,4 M2 ]

✅ PODDASZE ✅ [ ok. 100 M2 ]

Można wstawić okna i dowolnie dostosować do potrzeb użytkowych lub zrobić duży strych


Z CZEGO JEST ZROBIONY DOM❓

✅ Pustak żużlowy
✅ Okna do wymiany
✅ Dach do wymiany

JAKIE SĄ OGÓLNE CECHY DOMU ❓

⚡ dom z 1994
⚡ pokoje można przerobić dowolnie na garderobę / siłownie / gabinet / pokój tematyczny
⚡ widokowa działka (góry)
⚡ wymiary działki 30,54 x 49,02 x 29,2 x 37,7 m
⚡ powierzchnia działki 12,52 ara
⚡ przyjazne sąsiedztwo
⚡ w tej samej miejscowości sklep spożywczo-przemysłowy Centrum Delikatesy - tania sieciówka
⚡ blisko do Krakowa 60 min, Limanowa 18 min
⚡ogrzewanie planowane centralne

CZY DZIAŁKA JEST UZBROJONA❓


✔ podjazd do domu - droga żwirowa prywatna / współwłasność - nowy właściciel będzie wpisany do aktu notarialnego
✔ prąd - doprowadzony do domu, / założona skrzynka
✔ woda - miejska podłączona do domu
✔ gaz - w sąsiedztwie, można zroibić przyłącze
✔ kanalizacja - szambo, 3 zbiorniki

GDZIE MOŻNA ZAMIESZKAĆ ❓

RUPNIÓW / POW. LIMANOWSKI / GM. LIMANOWA

✅ Sklep spożywczo-przemysłowy DELIKATESY CENTRUM 2 min samochodem
✅ Lokalny sklep spożywczy 3 min samochodem
✅ Sklep budowlany / hurtownia / skład budowlany 3 min samochodem
✅ Szkoła podstawowa 3 min samochodem
✅ Przedszkole 3 min samochodem
✅ Przystanek autobusowy 1 min samochodem Trasa Kraków - Limanowa
✅ Kościół 3 min samochodem


ZAPRASZAM NA PREZENTACJĘ DOMU I !!! OBEJRZENIA VIDEO !!! ORAZ WIRTUALNEGO SPACERU PO DOMU
Prezentacja bezpłatna
Biuro pobiera jednorazową prowizję w momencie zakupu
Korzystając z usług biura kupujący może liczyć na gwarancję zwrotu zadatku (szczegóły ustalane indywidualnie)
Kontakt do agenta
Marzena Wróbel
537 - 765 - 461

✳✳✳✳✳✳✳✳✳✳✳✳✳✳✳✳✳✳✳✳✳✳✳✳✳✳✳✳✳✳✳✳✳✳✳✳✳✳✳✳✳✳✳✳✳✳✳✳✳✳✳✳✳✳✳✳✳✳✳✳✳✳✳✳✳✳✳✳✳✳✳✳✳✳✳✳✳✳✳
HOUSE / 192.19 M2 / 7 ROOMS / 2 BATHROOMS / SHELL CONDITION / RUPNIÓW / LIMANOWA RURAL MUNICIPALITY / LIMANOWA COUNTY



WHO CAN LIVE HERE ❓

The house is ideal for a family with children, even 2+6, or investors who would like to run a small guesthouse.



WHAT IS THE LAYOUT OF THE HOUSE ❓


✅ GROUND FLOOR ✅

✅ LIVING ROOM / BEDROOM 1 [approx. 25 M2] south
✅ ROOM 2 [approx. 17.6 M2] south
- with terrace
✅ ROOM 3 [approx. 16.8 M2] north
✅ KITCHEN [approx. 13.2 M2] north
✅ BATHROOM [approx. 8.4 M2] north
✅ VESTIBULE [approx. 3.3 M2] west
✅ CORRIDOR [approx. 8.4 M2]


✅ FIRST FLOOR ✅

✅ ROOM 4 [approx. 26.4 M2] south
- with balcony
✅ ROOM 5 [approx. 18.5 M2] south
- with balcony
✅ ROOM 6 [approx. 11.9 M2] north
✅ ROOM 7 [approx. 13.5 M2] north
- can also serve as a kitchen
✅ BATHROOM [approx. 9.1 M2] north
✅ CORRIDOR [approx. 8.4 M2]


✅ ATTIC ✅ [approx. 100 M2]

Windows can be installed and the space can be adapted for use or converted into a large attic.



WHAT IS THE HOUSE MADE OF ❓


✅ Cinder block
✅ Windows need replacement
✅ Roof needs replacement



GENERAL FEATURES OF THE HOUSE ❓


⚡ House from 1994
⚡ Rooms can be freely converted into a wardrobe / gym / office / themed room
⚡ Plot with a mountain view
⚡ Plot dimensions 30.54 x 49.02 x 29.2 x 37.7 m
⚡ Plot area 12.52 ares
⚡ Friendly neighborhood
⚡ In the same village there is a grocery and general store “ Delikatesy Centrum ” - affordable chain
⚡ Close to Kraków (60 min), Limanowa (18 min)
⚡ Planned central heating


IS THE PLOT EQUIPPED WITH UTILITIES ❓


✔ Driveway to the house - private gravel road / co-ownership - the new owner will be included in the notarial deed
✔ Electricity - connected to the house, fuse box installed
✔ Water - municipal, connected to the house
✔ Gas - available in the neighborhood, connection possible
✔ Sewage - septic tank, 3 containers


WHERE CAN YOU LIVE ❓


RUPNIÓW / LIMANOWA COUNTY / LIMANOWA MUNICIPALITY

✅ Grocery and general store DELIKATESY CENTRUM 2 min by car
✅ Local grocery store 3 min by car
✅ Building materials store / warehouse 3 min by car
✅ Primary school 3 min by car
✅ Kindergarten 3 min by car
✅ Bus stop 1 min by car Route Kraków - Limanowa
✅ Church 3 min by car


I INVITE YOU TO A PRESENTATION OF THE HOUSE AND TO WATCH THE VIDEO AND VIRTUAL TOUR OF THE PROPERTY
Presentation free of charge
The agency charges a one-time commission at the time of purchase
By using the agency’s services, the buyer can count on a deposit refund guarantee (details arranged individually)
Contact agent
Marzena Wróbel
537 - 765 - 461


Zobacz Wirtualny Spacer: https://sb360.online/ntgnrv


Oferta wysłana z systemu Galactica Virgo

Może Cię zainteresować:

Film z Youtube

Komentarze (0)

Nic nie znaleziono

Tylko zalogowani użytkownicy mogą dodawać komentarze

Mapa

Formularz kontaktowy

This site is protected by reCAPTCHA and the Google Privacy Policy and Terms of Service apply.

Podobne ogłoszenia

Widokowa działka w sasiędztwie lasu / MPZP / 10 ar

Biuro Nieruchomości Bracia Sadurscy ma przyjemność zaprezentować Państwu, działkę budowlaną pod zabudowę jednorodzinną w miejscowości Stróża (gmina Pcim). MPZP - 190.MN/RM (zabudowa jednoro...

160 000,00 zł

Stróża

Bronowice, parter, 95 m2 biur + parking

Oferujemy do wynajęcia powierzchnię biurową ~95m2 w nowoczesnym budynku biurowym z portiernią i dostępem 24h *Zdjęcia należą do właściciela oferty Na powierzchnię składa się 3 pokoi biuro...

6 600,00 zł

Kraków

Widokowa działka w sasiędztwie lasu / MPZP / 20 ar

Biuro Nieruchomości Bracia Sadurscy ma przyjemność zaprezentować Państwu, działkę budowlaną pod zabudowę jednorodzinną w miejscowości Stróża (gmina Pcim). MPZP - 190.MN/RM (zabudowa jednoro...

280 000,00 zł

Stróża

Widokowa działka w sasiędztwie lasu / MPZP / 30 ar

Biuro Nieruchomości Bracia Sadurscy ma przyjemność zaprezentować Państwu, działkę budowlaną pod zabudowę jednorodzinną w miejscowości Stróża (gmina Pcim). MPZP - 190.MN/RM (zabudowa jednoro...

340 000,00 zł

Stróża

Działka usługowa 1754 m² |ul.Klasztorna|inwestycja

Działka usługowa 1 754 m² | Kraków - ul. Klasztorna | inwestycja Na sprzedaż działka usługowa o powierzchni 1 754 m² położona przy ul. Klasztornej w Kraków . Nieruchomość posiada fron...

2 000 000,00 zł

Kraków

Fantastyczny dom w Olkuszu.

OLKUSZ - UL. SOSNOWA Dom jednorodzinny z funkcją usługową - lokal gastronomiczny | gotowa inwestycja Na sprzedaż atrakcyjna nieruchomość mieszkalno-usługowa położona w Olkuszu przy ul. ...

1 590 000,00 zł

Olkusz

Lokal mieszkalno-usługowy w centrum.

Lokal mieszkalno-komercyjny w centrum Krakowa | ul. Wrocławska, Kraków | 115 m² Na sprzedaż lokal mieszkalno-komercyjny o powierzchni 115 m² , położony przy prestiżowej i doskonale skomuni...

890 000,00 zł

Kraków

Słoneczne mieszkanie ul. Reduta!

Słoneczne mieszkanie z balkonem i miejscem postojowym - Reduta! LOKALIZACJA Mieszkanie usytuowane jest w jednej z najbardziej pożądanych dzielnic Krakowa - Prądnik Czerwony, przy ul. Re...

3 000,00 zł

Kraków

Idealne 3 pokoje z balkonem w zielonej okolicy!

Atrakcyjna oferta 3-pokojowego mieszkania w zielonej okolicy - ul. Powstańców! Oferujemy do sprzedaży komfortowe, 3-pokojowe mieszkanie w świetnej lokalizacji! Idealne zarówno do zamieszkania...

729 000,00 zł

Kraków

Ciche 2 pokoje z oddzielna kuchnią

Do wynajęcia od zaraz mieszkanie 2 pokoje z oddzielną kuchnią ul. Gołężycka, Wrocław, Fabryczna, osiedle Kozanów- 49 m2.FUNKCJONALNOŚĆMieszkanie bardzo przyjemne i zadbane, dwustronne, z dużym balkone...

2 200,00 zł

Wrocław

Dwupoziomowy Apartament w Zielonej Okolicy!

English version belowOferuję do wynajęcia od zaraz zadbane mieszkanie dwupoziomowe.Mieszkanie przyjazne zwierzętom! Wrocław Klecina, ul. WałbrzyskaNa wynajem przestronne, dwupoziomowe mieszkanie o pow...

3 500,00 zł

Wrocław

Stylowe 2 pokoje z balkonem

Oferuję do wynajęcia od marca bardzo klimatyczne mieszkanie, designersko urządzone. Salon z aneksem kuchennym i osobna sypialnia, łazienka z wanną, dodatkowo przypisane miejsce postojowe naziemne (za ...

2 400,00 zł

Wrocław

Facebook
Facebook
Sprzedawanko.pl – serwis ogłoszeń Firmowanko.pl – katalog firm i usług Pracowanko.pl – serwis pracy Ugościmy.pl – serwis noclegów Nporta.pl – katalog firm i usług