
| Dodane przez: | braciasadurscy |
| Lokalizacja: | Pękowicka |
| Agent: | Patrycja Rubinkiewicz |
| E-mail: | patrycja@sadurscy.pl |
| Telefon kom.: | +48 505-236-943 |
| Udostępnij: |
Opublikowano: | Wygaśnie:
Wyświetleń: 11 | ID ogłoszenia: 62808
Numer oferty: BS2-MS-303951-20
| Typ: | Sprzedaż |
| Rynek: | Pierwotny |
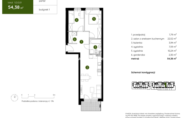
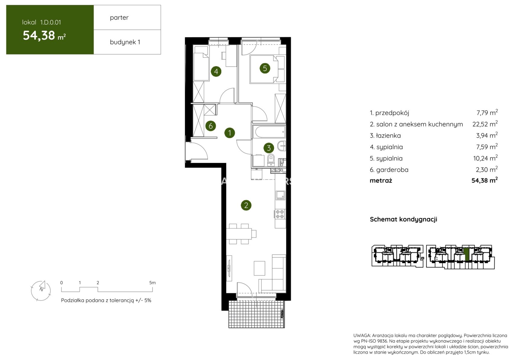
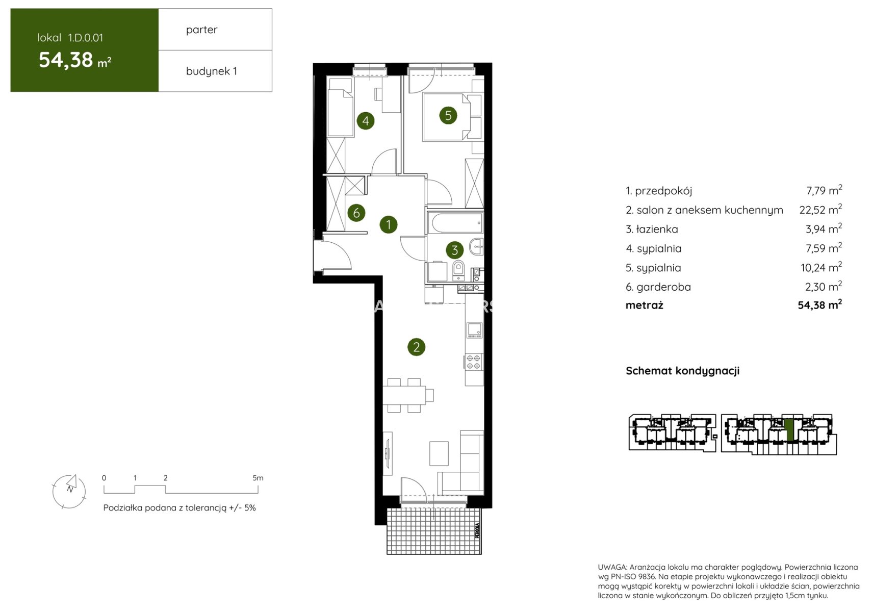
| Pow. użytkowa: | 54.38 m2 |
| Cena za m2 (zł): | 14175 |
| Liczba pokoi: | 3 |
| Liczba sypialni: | 2 |
| Rodzaj zabudowy: | blok |
| Piętro: | 0 |
| Liczba pięter: | 3 |
| Materiał budynku: | pustak |
| Okna: | PCV |
| Rok budowy: | 2024 |
| Ogrzewanie: | C.O. miejskie |
| Stan wykończenia: | deweloperski |
| Własność: | Odrębna własność lokalu |
| Data aktualizacji: | 2026-02-19 |
Z ogromną przyjemnością przedstawiamy Państwu ofertę mieszkania na sprzedaż w malowniczym rejonie Doliny Prądnika, na północy Krakowa, blisko granicy z gminą Zielonki. Nowoczesne osiedle otoczone jest rozległymi terenami zielonymi, co umożliwia codzienny kontakt z naturą i zapewnia wytchnienie od intensywnego miejskiego życia w centrum miasta.
Osiedle zostało zaprojektowane z myślą o rodzinach, parach oraz singlach, oferując szeroki wybór mieszkań o powierzchni od 26 do 73 m², w układach 1-, 2-, 3- i 4-pokojowych. Dbałość o komfort mieszkańców przejawia się w wysokiej jakości przestrzeni wspólnych, które sprzyjają nawiązywaniu sąsiedzkich relacji: skwer z ławeczkami, plac zabaw...
Budynki nowej inwestycji mające 3 i 4 kondygnacje, wyróżniają się kameralną architekturą, harmonizującą z okolicą. Przestronność obiektów gwarantuje mieszkańcom poczucie prywatności.
Zalety:
Home Management System to zaawansowana technologia inteligentnego domu, która umożliwia m.in. zarządzanie ogrzewaniem, oświetleniem i zaworami wody.
Pakiet antysmogowy w postaci filtrów montowanych w nawiewnikach okiennych dba o czystość powietrza we wnętrzach mieszkań.
Wysoki standard wykończenia części wspólnych obejmuje trwałe płytki gresowe, dekoracyjne panele imitujące drewno oraz energooszczędne oświetlenie LED.
Mieszkania na parterze posiadają tarasy z ogrodami o powierzchni do 123 m², natomiast mieszkania na wyższych kondygnacjach oferują przestronne balkony.
Termoizolacyjne łączniki balkonowe zapobiegają utracie ciepła, co przekłada się na oszczędności energetyczne.
Portfenetrowe okna zapewniają doskonałe doświetlenie wnętrz.
Na terenie osiedla zostanie zainstalowana stacja ładowania pojazdów elektrycznych, z myślą o mieszkańcach korzystających z ekologicznych środków transportu.
Zielone dachy budynków będą nie tylko estetyczne, ale również poprawią jakość powietrza i obniżą temperaturę otoczenia.
Prądnik biały to doskonale skomunikowana okolica, idealne miejsce dla osób szukających spokoju i bliskości natury, z jednoczesnym dostępem do nowoczesnych rozwiązań technologicznych.
Serdecznie zapraszam do kontaktu
Patrycja Rubinkiewicz
505 236 943
patrycja@sadurscy.pl
--------------------------
::GRATIS | Nasza prowizja zawiera: koszt przedwstępnej notarialnej umowy sprzedaży nieruchomości z rynku wtórnego.
::GWARANCJA | Gwarancja zwrotu zadatku. Więcej informacji na sadurscy.pl/zwrot-zadatku/
Oferta wysłana z systemu Galactica Virgo
Nic nie znaleziono
Tylko zalogowani użytkownicy mogą dodawać komentarze
Nowoczesny dom z ogrodem Igołomia Kraków
Nowoczesny dom premium, 180 m², 2018 r. dwa garaże, poddasze 90 m² , Igołomia - Kraków Dom który łączy przestrzeń, komfort i nowoczesne rozwiązania. Na sprzedaż wyjątkowy dom jedno...
1 500 000,00 zł
* Funkcjonalny dom z poddaszem użytkowym Łabiszyn
dom w Łabiszynie | 102m2 | pięć pokoi | ogródek | Łabiszyn | Szubin | BydgoszczPrzedmiotem sprzedaży jest dom jednorodzinny w zabudowie szeregowej (segment skrajny), zlokalizowany w Łabiszynie przy ul...
449 000,00 zł
Dom, Przeginia Narodowa, Liszki, Czernichów
*zdjęcia należą do właściciela oferty Nowoczesny domu w Przeginii Narodowej, tuż obok miejscowości Liszki. Budynek jednorodzinny, wolnostojący wybudowany w 2025 r z najwyższ...
969 000,00 zł
Przytulne 2 pokojowe mieszkanie w Pile
Mieszkanie 2 pokoje, 2 piętro, gotowe do zamieszkaniaPrzytulne 2-pokojowe mieszkanie 40,58 m² w Pile - komfort i funkcjonalnośćNa sprzedaż wyjątkowo zadbane i funkcjonalne mieszkanie o powierzchni 40,...
269 000,00 zł
Działka z mediami | WZ w toku | 1043 mkw | Kaszuby
Na sprzedaż działka o powierzchni 1043 mkw, położona w miejscowości Zęblewo, gmina Szemud, w spokojnej, kaszubskiej okolicy, wśród zabudowy jednorodzinnej i terenów zielonych.Nieruchomość stanowi idea...
145 000,00 zł
Dom z widokiem na Jezioro Dobczyckie.
Dom z widokiem na Jezioro Dobczyckie - Twoje miejsce w sercu natury Z przyjemnością prezentuję wyjątkową ofertę sprzedaży nowoczesnego domu z potencjałem wykończenia „pod klucz”, położonego na...
595 000,00 zł