📢
🔥 Bezpłatny Serwis Ogłoszeniowy 🔔 Dodaj Ogłoszenie Za Darmo Na SPRZEDAWANKO.PL🔥

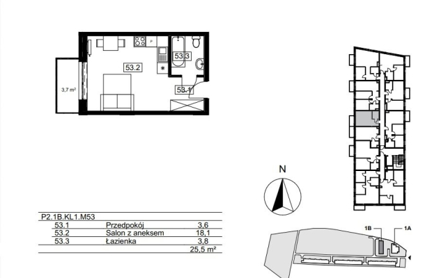
Osiedle Złocień - nowe osiedle mieszkaniowe

419 000,00 zł

{{ email }}

Dodane przez: braciasadurscy
braciasadurscy
Lokalizacja: Agatowa
Agent: Marek Popiela
E-mail: marek@sadurscy.pl
Telefon kom.: +48 518-967-677
Udostępnij:

Opublikowano:  | Wygaśnie:

Wyświetleń: 9 | ID ogłoszenia: 62458

Numer oferty: BS2-MS-310830-133

Szczegóły

Typ: Sprzedaż
Rynek: Pierwotny
Pow. użytkowa: 25.72 m2
Cena za m2 (zł): 16290.82
Liczba pokoi: 1
Liczba sypialni: 1
Rodzaj zabudowy: budynek wielorodzinny
Piętro: 2
Liczba pięter: 4
Materiał budynku: tradycyjna
Okna: PCV
Rok budowy: 2023
Ogrzewanie: C.O. miejskie
Stan wykończenia: deweloperski
Własność: Własność
Data aktualizacji: 2026-02-19

Opis


ZŁOCIEŃ - NOWOCZESNE OSIEDLE MIESZKANIOWE.

Prezentujemy nowoczesne osiedle zlokalizowane w południowo-wschodniej części miasta.
W III etapie powstanie czteropiętrowy budynek , w którym znajdują się mieszkania w przedziale od 25 do 68 m2 .

Podziemna część budynku przeznaczona jest na garaż z miejscami parkingowymi.

Mieszkania na parterach będą mieć ogródki , na wyższych piętrach balkony . Mieszkania na najwyższych piętrach będą posiadać duże tarasy na dachu.

Inwestycja budowana w tradycyjnej technologii. Mieszkania sprzedawane w stanie deweloperskim (tynki gipsowe, wylewki, instalacje).

Wokół malownicza okolica , zielona przestrzeń, a przy tym dobra komunikacja miejska. Atrakcyjne połączenie z obwodnicą S7 i A4. Niedaleko inwestycji realizowany będzie przystanek kolei aglomeracyjnej, dzięki któremu z łatwością można dostać się do centrum miasta. W okolicy znajdują się liczne sklepy spożywcze oraz inne punkty handlowo-usługowe.

Termin zakończenia budowy zaplanowano na II kwartał 2024 r.

Zapraszam do kontaktu:

Marek Popiela +48 518 967 677
marek@sadurscy.pl

--------------------------

::GRATIS | Nasza prowizja zawiera: koszt przedwstępnej notarialnej umowy sprzedaży nieruchomości z rynku wtórnego.
::GWARANCJA | Gwarancja zwrotu zadatku. Więcej informacji na sadurscy.pl/zwrot-zadatku/


Oferta wysłana z systemu Galactica Virgo

Może Cię zainteresować:

Komentarze (0)

Nic nie znaleziono

Tylko zalogowani użytkownicy mogą dodawać komentarze

Mapa

Formularz kontaktowy

This site is protected by reCAPTCHA and the Google Privacy Policy and Terms of Service apply.

Podobne ogłoszenia

Włochy: lokal biurowy na wynajem

Warszawa - Do wynajęcia: lokal biurowy o pow. 245 m2 na parterze w biurowcu na warszawskich Włochach, w okolicach ul. Krańcowej,poleca Agencja Nieruchomości Property Office (tel. 731-321-117, mail: ka...

2 940,00 zł

Warszawa

Włochy: lokal biurowy na wynajem

Warszawa - Do wynajęcia: lokal biurowy o pow. 344 m2 na 1 piętrze w biurowcu na warszawskich Włochach, w okolicach ul. Krańcowej,poleca Agencja Nieruchomości Property Office (tel. 731-321-117, mail: k...

4 128,00 zł

Warszawa

Śródmieście : lokal biurowy na wynajem

Warszawa - Do wynajęcia: atrakcyjny lokal biurowy o pow.710 m2 na 7 piętrze w budynku biurowym na warszawskim Powiślu , w okolicach ul. Solec, poleca Agencja Nieruchomości Property Office (tel. 731-32...

12 070,00 zł

Warszawa

Śródmieście: lokal biurowy na wynajem

Warszawa - Do wynajęcia: biuro o pow.384 m2 na 17 piętrze biurowca w warszawskim Śródmieściu, w okolicach Ronda ONZ,poleca Agencja Nieruchomości Property Office (tel. 731-321-117, mail: katarzyna@prop...

7 488,00 zł

Warszawa

Śródmieście: lokal biurowy na wynajem

Warszawa - Do wynajęcia: biuro o pow.863m2 na 25 piętrze biurowca w warszawskim Śródmieściu, w okolicach Ronda ONZ,poleca Agencja Nieruchomości Property Office (tel. 731-321-117, mail: katarzyna@prope...

19 849,00 zł

Warszawa

Śródmieście: lokal biurowy na wynajem

Warszawa - Do wynajęcia: biuro o pow.375 m2 na 9 piętrze biurowca w warszawskim Śródmieściu, w okolicach Ronda ONZ,poleca Agencja Nieruchomości Property Office (tel. 731-321-117, mail: katarzyna@prope...

6 938,00 zł

Warszawa

Śródmieście: lokal biurowy na wynajem

Warszawa - Do wynajęcia: biuro o pow.392 m2 na 9 piętrze biurowca w warszawskim Śródmieściu, w okolicach Ronda ONZ,poleca Agencja Nieruchomości Property Office (tel. 731-321-117, mail: katarzyna@prope...

7 252,00 zł

Warszawa

Wola: lokal biurowy na wynajem

Warszawa - Do wynajęcia: biuro o pow. 664 m2 na 30 piętrze eleganckiego biurowca na warszawskiej Woli, w okolicach ul. Towarowej, poleca Agencja Nieruchomości Property Office (tel. 731-321-117, mail: ...

12 948,00 zł

Warszawa

Facebook
Facebook
Sprzedawanko.pl – serwis ogłoszeń Firmowanko.pl – katalog firm i usług Pracowanko.pl – serwis pracy Ugościmy.pl – serwis noclegów Nporta.pl – katalog firm i usług