📢
🔥 Bezpłatny Serwis Ogłoszeniowy 🔔 Dodaj Ogłoszenie Za Darmo Na SPRZEDAWANKO.PL🔥

Smart Apartament na Prądniku Białym blisko Zieleni

613 590,00 zł

{{ email }}

Dodane przez: braciasadurscy
braciasadurscy
Lokalizacja: Pękowicka
Agent: Patrycja Rubinkiewicz
E-mail: patrycja@sadurscy.pl
Telefon kom.: +48 505-236-943
Udostępnij:

Opublikowano:  | Wygaśnie:

Wyświetleń: 7 | ID ogłoszenia: 62321

Numer oferty: BS2-MS-304400-27

Szczegóły

Typ: Sprzedaż
Rynek: Pierwotny
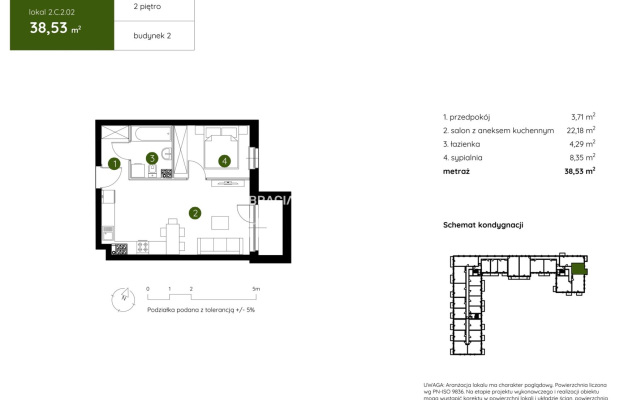
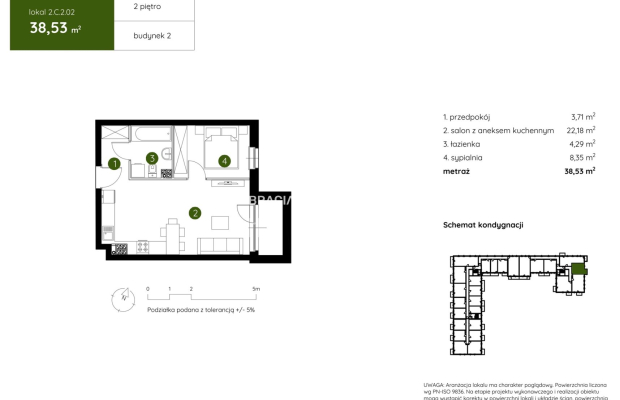
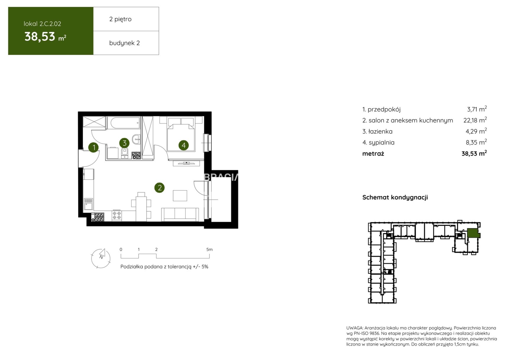
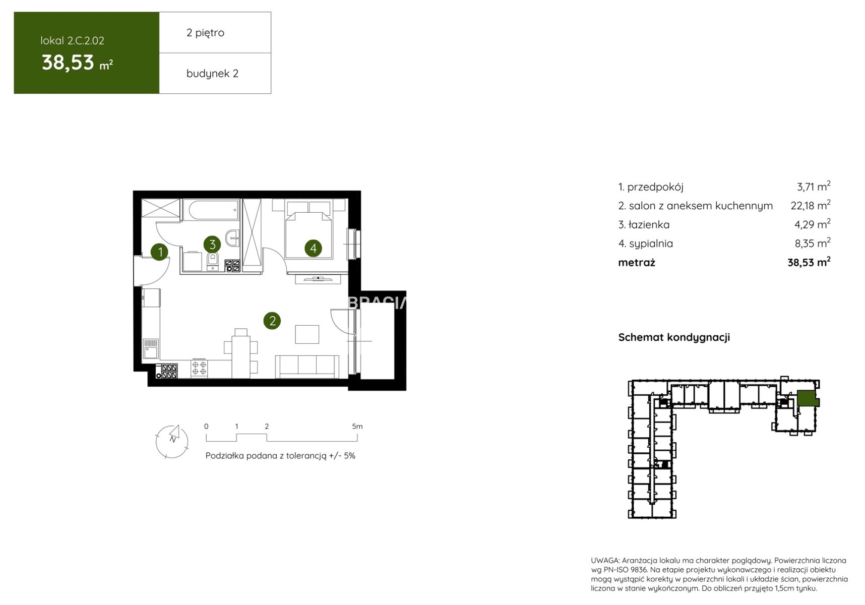
Pow. użytkowa: 38.53 m2
Cena za m2 (zł): 15925
Liczba pokoi: 2
Liczba sypialni: 2
Rodzaj zabudowy: blok
Piętro: 2
Liczba pięter: 3
Materiał budynku: pustak
Okna: PCV
Rok budowy: 2024
Ogrzewanie: C.O. miejskie
Stan wykończenia: deweloperski
Własność: Odrębna własność lokalu
Data aktualizacji: 2026-02-19

Opis


Z ogromną przyjemnością przedstawiamy Państwu ofertę mieszkania na sprzedaż w malowniczym rejonie Doliny Prądnika, na północy Krakowa, blisko granicy z gminą Zielonki. Nowoczesne osiedle otoczone jest rozległymi terenami zielonymi, co umożliwia codzienny kontakt z naturą i zapewnia wytchnienie od intensywnego miejskiego życia w centrum miasta.

Osiedle zostało zaprojektowane z myślą o rodzinach, parach oraz singlach, oferując szeroki wybór mieszkań o powierzchni od 26 do 73 m², w układach 1-, 2-, 3- i 4-pokojowych. Dbałość o komfort mieszkańców przejawia się w wysokiej jakości przestrzeni wspólnych, które sprzyjają nawiązywaniu sąsiedzkich relacji: skwer z ławeczkami, plac zabaw...

Budynki nowej inwestycji mające 3 i 4 kondygnacje, wyróżniają się kameralną architekturą, harmonizującą z okolicą. Przestronność obiektów gwarantuje mieszkańcom poczucie prywatności.

Zalety:


Home Management System to zaawansowana technologia inteligentnego domu, która umożliwia m.in. zarządzanie ogrzewaniem, oświetleniem i zaworami wody.
Pakiet antysmogowy w postaci filtrów montowanych w nawiewnikach okiennych dba o czystość powietrza we wnętrzach mieszkań.
Wysoki standard wykończenia części wspólnych obejmuje trwałe płytki gresowe, dekoracyjne panele imitujące drewno oraz energooszczędne oświetlenie LED.
Mieszkania na parterze posiadają tarasy z ogrodami o powierzchni do 123 m², natomiast mieszkania na wyższych kondygnacjach oferują przestronne balkony.
Termoizolacyjne łączniki balkonowe zapobiegają utracie ciepła, co przekłada się na oszczędności energetyczne.
Portfenetrowe okna zapewniają doskonałe doświetlenie wnętrz.
Na terenie osiedla zostanie zainstalowana stacja ładowania pojazdów elektrycznych, z myślą o mieszkańcach korzystających z ekologicznych środków transportu.
Zielone dachy budynków będą nie tylko estetyczne, ale również poprawią jakość powietrza i obniżą temperaturę otoczenia.


Prądnik biały to doskonale skomunikowana okolica, idealne miejsce dla osób szukających spokoju i bliskości natury, z jednoczesnym dostępem do nowoczesnych rozwiązań technologicznych.

Serdecznie zapraszam do kontaktu


--------------------------

::GRATIS | Nasza prowizja zawiera: koszt przedwstępnej notarialnej umowy sprzedaży nieruchomości z rynku wtórnego.
::GWARANCJA | Gwarancja zwrotu zadatku. Więcej informacji na sadurscy.pl/zwrot-zadatku/


Oferta wysłana z systemu Galactica Virgo

Może Cię zainteresować:

Komentarze (0)

Nic nie znaleziono

Tylko zalogowani użytkownicy mogą dodawać komentarze

Mapa

Formularz kontaktowy

This site is protected by reCAPTCHA and the Google Privacy Policy and Terms of Service apply.

Podobne ogłoszenia

Apartament inwestycyjny nad wodą | Marina | Wysoki

Biuro Nieruchomości Apartament ma zaszczyt zaprezentować Państwu wyjątkową inwestycję nad samą Zatoką Gdańską - SOLMARINA, gdzie luksus spotyka się z wodą, naturą i stylem życia klasy premium.Na sprze...

1 825 430,00 zł

Pomorskie

Mokotów: lokal biurowy na wynajem

Warszawa - Do wynajęcia: lokal biurowy o pow.26,38 m2 na 12 piętrze w budynku biurowym na warszawskim Mokotowie, niedaleko warszawskiej Galerii Mokotów.poleca Agencja Nieruchomości Property Office (te...

2 110,00 zł

Warszawa

Mokotów: lokal biurowy na wynajem

Warszawa - Do wynajęcia: umeblowany lokal biurowy o pow. 145 m2 na 8 piętrze budynku biurowego na warszawskim Mokotowie, przy ul. Puławskiejpoleca Agencja Nieruchomości Property Office (tel. 731-321-1...

2 320,00 zł

Warszawa

Mokotów: lokal biurowy na wynajem

Warszawa - Do wynajęcia: lokal biurowy o pow.37,30 m2 na 12 piętrze w budynku biurowym na warszawskim Mokotowie, niedaleko warszawskiej Galerii Mokotów.poleca Agencja Nieruchomości Property Office (te...

2 797,00 zł

Warszawa

Mokotów: biuro serwisowane na wynajem

Warszawa - Do wynajęcia: gotowe biuro dla 6 osób na 3 piętrze biurowca na warszawskim Mokotowie, w okolicach ul. Cybernetyki,poleca Agencja Nieruchomości Property Office (tel. 731-321-117, mail: katar...

6 600,00 zł

Warszawa

Mokotów: lokal biurowy na wynajem

Warszawa - Do wynajęcia: lokal biurowy o pow.27,52 m2 na 3 piętrze kameralnego budynku biurowego na warszawskim Mokotowie, w okolicach ulic: Puławskiej i Dąbrowskiego.poleca Agencja Nieruchomości Prop...

2 174,00 zł

Warszawa

Mokotów: lokal biurowy na wynajem

Warszawa - Do wynajęcia: klimatyzowany lokal biurowy o pow.20,78 m2 na 3 piętrze w budynku biurowym na warszawskim Mokotowie, w okolicach ul. Puławskiej i Dąbrowskiego, poleca Agencja Nieruchomości Pr...

1 537,00 zł

Warszawa

Mokotów: umeblowany lokal biurowy na wynajem

Warszawa - Do wynajęcia: umeblowany lokal biurowy o pow. 64 m2 na 7 piętrze budynku biurowego na warszawskim Mokotowie, przy ul. Puławskiejpoleca Agencja Nieruchomości Property Office (tel. 731-321-11...

1 024,00 zł

Warszawa

Lokal biurowy 25,29 m² na wynajem| Mokotów | BEZ PROWIZJI

Do wynajęcia lokal biurowy o powierzchni 25,29 m, położony na 1 piętrze budynku biurowego na warszawskim Mokotowie (<b>okolice Al. Wilanowskiej).</b><b>*** BRAK PROWIZJI ***</b&gt...

2 023,00 zł

Warszawa

Lokal biurowy 27,89 m² na wynajem| Mokotów | BEZ PROWIZJI

Do wynajęcia lokal biurowy o powierzchni 27,89 m, położony na 1 piętrze budynku biurowego na warszawskim Mokotowie (<b>okolice Al. Wilanowskiej).</b><b>*** BRAK PROWIZJI ***</b&gt...

2 231,00 zł

Warszawa

Mokotów: lokal biurowy na wynajem

Warszawa - Do wynajęcia: lokal biurowy o pow.24,11 m2 na 2 piętrze w budynku biurowym na warszawskim Mokotowie, w okolicach ul. Gagarina.poleca Agencja Nieruchomości Property Office (tel. 731-321-117,...

1 902,00 zł

Warszawa

Mokotów: lokal biurowy na wynajem

Do wynajęcia: lokal biurowy o pow.42,51 m2 na 2 piętrze budynku biurowego na warszawskim Mokotowie, w okolicach Al. Wilanowskiej.poleca Agencja Nieruchomości Property Office (tel. 731-321-117, mail: k...

3 400,00 zł

Warszawa

Mokotów: lokal biurowy na wynajem

Do wynajęcia: lokal biurowy o pow.37,69 m2 na 2 piętrze budynku biurowego na warszawskim Mokotowie, w okolicach Al. Wilanowskiej.poleca Agencja Nieruchomości Property Office (tel. 731-321-117, mail: k...

3 015,00 zł

Warszawa

Lokal biurowy 36,07 m² na wynajem| Mokotów | BEZ PROWIZJI

Do wynajęcia lokal biurowy o powierzchni 36,07 m, położony na 1 piętrze budynku biurowego na warszawskim Mokotowie (<b>okolice Al. Wilanowskiej).</b><b>*** BRAK PROWIZJI ***</b&gt...

2 885,00 zł

Warszawa

Wilanów: biuro serwisowane na wynajem

Warszawa - Do wynajęcia: biuro serwisowane dla 6 osób na 1 piętrze biurowca na warszawskim Wilanowie, w okolicach Al. Rzeczypospolitejpoleca Agencja Nieruchomości Property Office (tel. 731-321-117, ma...

7 500,00 zł

Warszawa

Wilanów: biuro serwisowane na wynajem

Warszawa - Do wynajęcia: biuro serwisowane dla 12 osób na 1 piętrze biurowca na warszawskim Wilanowie, w okolicach Al. Rzeczypospolitejpoleca Agencja Nieruchomości Property Office (tel. 731-321-117, m...

15 000,00 zł

Warszawa

Zelków. Urokliwa nieruchomość w zacisznym miejscu.

Do sprzedaży pięknie położona nieruchomość. W otoczeniu lasu, przy szlaku rowerowym Dolinki Podkrakowskie Lokalizacja: Działka położona w wyjątkowo cichej i spokojnej okolicy, w sąsiedztwie...

1 280 000,00 zł

Zelków

Mieszkanie dwupokojowe z aneksem Ruczaj

Na wynajem przytulne i funkcjonalne mieszkanie 2-pokojowe o powierzchni 38 m², położone na I piętrze zadbanego budynku z 2008 roku. Lokal składa się z dwóch komfortowych pokoi, aneksu kuchennego...

2 300,00 zł

Kraków

Mieszkanie 46m2 w samym Centrum Iławy

Na sprzedaż przytulne i funkcjonalne mieszkanie o powierzchni 46m2, położone w ścisłym centrum Iławy, w świeżo wybudowanym bloku z 2025 roku. To doskonała propozycja do zamieszkania jak i pod inwestyc...

519 520,00 zł

Warmińsko-mazurskie

2 pokoje na Szwederowie, świetna lokalizacja

Na wynajem przytulne i funkcjonalne mieszkanie o powierzchni 42,40 m², idealne dla singla, pary lub jako pierwsze lokum dla młodej osoby pracującej.Lokal został zaprojektowany w sposób maksymalnie wyk...

2 200,00 zł

Kujawsko-pomorskie

Facebook
Facebook
Sprzedawanko.pl – serwis ogłoszeń Firmowanko.pl – katalog firm i usług Pracowanko.pl – serwis pracy Ugościmy.pl – serwis noclegów Nporta.pl – katalog firm i usług