📢
🔥 Bezpłatny Serwis Ogłoszeniowy 🔔 Dodaj Ogłoszenie Za Darmo Na SPRZEDAWANKO.PL🔥

Smart Apartament na Prądniku Białym blisko Zieleni

781 066,00 zł

{{ email }}

Dodane przez: braciasadurscy
braciasadurscy
Lokalizacja: Pękowicka
Agent: Patrycja Rubinkiewicz
E-mail: patrycja@sadurscy.pl
Telefon kom.: +48 505-236-943
Udostępnij:

Opublikowano:  | Wygaśnie:

Wyświetleń: 8 | ID ogłoszenia: 61784

Numer oferty: BS2-MS-304192-28

Szczegóły

Typ: Sprzedaż
Rynek: Pierwotny
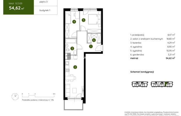
Pow. użytkowa: 54.62 m2
Cena za m2 (zł): 14300
Liczba pokoi: 3
Rodzaj zabudowy: blok
Piętro: 3
Liczba pięter: 3
Materiał budynku: pustak
Okna: PCV
Rok budowy: 2024
Ogrzewanie: C.O. miejskie
Stan wykończenia: deweloperski
Własność: Odrębna własność lokalu
Data aktualizacji: 2026-02-19

Opis


Z ogromną przyjemnością przedstawiamy Państwu ofertę mieszkania na sprzedaż w malowniczym rejonie Doliny Prądnika, na północy Krakowa, blisko granicy z gminą Zielonki. Nowoczesne osiedle otoczone jest rozległymi terenami zielonymi, co umożliwia codzienny kontakt z naturą i zapewnia wytchnienie od intensywnego miejskiego życia w centrum miasta.

Osiedle zostało zaprojektowane z myślą o rodzinach, parach oraz singlach, oferując szeroki wybór mieszkań o powierzchni od 26 do 73 m², w układach 1-, 2-, 3- i 4-pokojowych. Dbałość o komfort mieszkańców przejawia się w wysokiej jakości przestrzeni wspólnych, które sprzyjają nawiązywaniu sąsiedzkich relacji: skwer z ławeczkami, plac zabaw...

Budynki nowej inwestycji mające 3 i 4 kondygnacje, wyróżniają się kameralną architekturą, harmonizującą z okolicą. Przestronność obiektów gwarantuje mieszkańcom poczucie prywatności.

Zalety:


Home Management System to zaawansowana technologia inteligentnego domu, która umożliwia m.in. zarządzanie ogrzewaniem, oświetleniem i zaworami wody.
Pakiet antysmogowy w postaci filtrów montowanych w nawiewnikach okiennych dba o czystość powietrza we wnętrzach mieszkań.
Wysoki standard wykończenia części wspólnych obejmuje trwałe płytki gresowe, dekoracyjne panele imitujące drewno oraz energooszczędne oświetlenie LED.
Mieszkania na parterze posiadają tarasy z ogrodami o powierzchni do 123 m², natomiast mieszkania na wyższych kondygnacjach oferują przestronne balkony.
Termoizolacyjne łączniki balkonowe zapobiegają utracie ciepła, co przekłada się na oszczędności energetyczne.
Portfenetrowe okna zapewniają doskonałe doświetlenie wnętrz.
Na terenie osiedla zostanie zainstalowana stacja ładowania pojazdów elektrycznych, z myślą o mieszkańcach korzystających z ekologicznych środków transportu.
Zielone dachy budynków będą nie tylko estetyczne, ale również poprawią jakość powietrza i obniżą temperaturę otoczenia.


Prądnik biały to doskonale skomunikowana okolica, idealne miejsce dla osób szukających spokoju i bliskości natury, z jednoczesnym dostępem do nowoczesnych rozwiązań technologicznych.

Serdecznie zapraszam do kontaktu


--------------------------

::GRATIS | Nasza prowizja zawiera: koszt przedwstępnej notarialnej umowy sprzedaży nieruchomości z rynku wtórnego.
::GWARANCJA | Gwarancja zwrotu zadatku. Więcej informacji na sadurscy.pl/zwrot-zadatku/


Oferta wysłana z systemu Galactica Virgo

Może Cię zainteresować:

Komentarze (0)

Nic nie znaleziono

Tylko zalogowani użytkownicy mogą dodawać komentarze

Mapa

Formularz kontaktowy

This site is protected by reCAPTCHA and the Google Privacy Policy and Terms of Service apply.

Podobne ogłoszenia

Wola: lokal biurowy na wynajem

Warszawa - Do wynajęcia: lokal biurowy o pow. 12,56 m2 na 3 piętrze w budynku biurowym w okolicach ul. Górczewskiej i stacji metra Ks. Janusza,poleca Agencja Nieruchomości Property Office (tel. 731-32...

690,00 zł

Warszawa

Wola: lokal biurowy na wynajem

Warszawa - Do wynajęcia: lokal biurowy o pow.35,59 m2 , na parterze budynku biurowego na warszawskiej Woli w okolicach ul. Górczewskiej i stacji metra Ks. Janusza.poleca Agencja Nieruchomości Property...

1 957,00 zł

Warszawa

Wola:lokal biurowy na wynajem

Warszawa - Do wynajęcia: 1-pokojowy lokal biurowy o pow.14,51 m2 na 2 piętrze w budynku biurowym na warszawskiej Woli, w okolicach stacji metra Ks. Janusza, poleca Agencja Nieruchomości Property Offic...

798,00 zł

Warszawa

Śródmieście : lokal biurowy na wynajem

Warszawa - Do wynajęcia: atrakcyjny lokal biurowy o pow.37,40 m2 w centrum Warszawy, w kameralnym budynku biurowym w okolicach ul. Marszałkowskiej,poleca Agencja Nieruchomości Property Office (tel. 73...

635,00 zł

Warszawa

Śródmieście : lokal handlowo-usługowy na wynajem

Warszawa - Do wynajęcia: lokal usługowo-biurowy o pow.198 m2 w kameralnym apartamentowcu w centrum Warszawy, w okolicach ul. Żurawiej,poleca Agencja Nieruchomości Property Office (tel. 731-321-117, ma...

3 764,00 zł

Warszawa

Śródmieście : lokal biurowy na wynajem

Warszawa - Do wynajęcia: atrakcyjny lokal biurowy o pow.62,70 m2 w centrum Warszawy, w kameralnym budynku biurowym w okolicach ul. Marszałkowskiej,poleca Agencja Nieruchomości Property Office (tel. 73...

1 065,00 zł

Warszawa

Śródmieście : lokal biurowy na wynajem

Warszawa - Do wynajęcia: atrakcyjny lokal biurowy o pow.18,70 m2 w centrum Warszawy, w kameralnym budynku biurowym w okolicach ul. Marszałkowskiej,poleca Agencja Nieruchomości Property Office (tel. 73...

318,00 zł

Warszawa

Mokotów: lokal biurowy na wynajem

Warszawa- Do wynajęcia: lokal biurowy o pow.50,37 m2 na niskim parterze w budynku biurowym na warszawskim Mokotowie, w okolicach ul. Chełmskiej.poleca Agencja Nieruchomości Property Office (tel. 731-3...

2 165,00 zł

Warszawa

Mokotów: lokal biurowy na wynajem

Warszawa - Do wynajęcia: lokal biurowy o pow.224,62m2 m2 na 1 piętrze w budynku biurowym na warszawskim Mokotowie, w okolicach ul. Chełmskiej.poleca Agencja Nieruchomości Property Office (tel. 731-321...

12 346,00 zł

Warszawa

Targówek: magazyn 173 m2

Warszawa - Do wynajęcia: magazyn o pow.173 m2 na terenie kompleksu magazynowo- biurowego na warszawskim Targówku w okolicach ul. Rzecznej,poleca Property Office (tel. 731-321-117, mail: katarzyna@prop...

7 000,00 zł

Warszawa

Wola: lokal biurowy na wynajem

Warszawa - Do wynajęcia: lokal biurowy o pow.25 m2 na 1 piętrze kameralnego budynku magazynowo- biurowego na warszawskiej Woli, w okolicach ul. Kasprzaka,poleca Agencja Nieruchomości Property Office (...

1 400,00 zł

Warszawa

Wilanów : lokal biurowy na wynajem

Warszawa - Do wynajęcia: klimatyzowany lokal biurowy o pow.24 m2 na 3 piętrze kameralnego biurowca na warszawskim Wilanowie, w okolicach ul. Nałęczowskiej. poleca Agencja Nieruchomości Property Office...

2 568,00 zł

Warszawa

Wilanów : lokal biurowy na wynajem

Warszawa - Do wynajęcia: klimatyzowany lokal biurowy o pow.18 m2 na niskim parterze kameralnego biurowca na warszawskim Wilanowie, w okolicach ul. Nałęczowskiej. poleca Agencja Nieruchomości Property ...

1 907,00 zł

Warszawa

Targówek: magazyn/usługi 335 m2

Warszawa - Do wynajęcia: lokal usługowo-magazynowy o pow. 335 m2 na parterze budynku biurowego na warszawskim Targówku, w okolicach ul. Rzecznej, poleca Property Office (tel. 731-321-117, mail: katarz...

15 000,00 zł

Warszawa

Wilanów : lokal biurowy na wynajem

Warszawa - Do wynajęcia: klimatyzowany lokal biurowy o pow.28 m2 na niskim parterze kameralnego biurowca na warszawskim Wilanowie, w okolicach ul. Nałęczowskiej. poleca Agencja Nieruchomości Property ...

2 967,00 zł

Warszawa

Wilanów : lokal biurowy na wynajem

Warszawa - Do wynajęcia: klimatyzowany lokal biurowy o pow.27 m2 na 3 piętrze kameralnego biurowca na warszawskim Wilanowie, w okolicach ul. Nałęczowskiej. poleca Agencja Nieruchomości Property Office...

2 889,00 zł

Warszawa

Wola: lokal na wynajem

Warszawa - Do wynajęcia: klimatyzowany lokal biurowy o pow. 38,10 m2 na 6 piętrze w biurowcu na warszawskiej Woli, w okolicach ul. Żelaznej, poleca Agencja Nieruchomości Property Office (tel. 731-321-...

4 650,00 zł

Warszawa

Wilanów : lokal biurowo-usługowy na wynajem

Warszawa - Do wynajęcia: lokal usługowo-biurowy o pow.65 m2 na parterze domu jednorodzinnego na warszawskim Wilanowie, w okolicach ul. Królowej Marysieńkipoleca Agencja Nieruchomości Property Office (...

5 000,00 zł

Warszawa

Wilanów : lokal biurowy na wynajem

Warszawa - Do wynajęcia: klimatyzowany lokal biurowy o pow.31,50 m2 na 3 piętrze kameralnego biurowca na warszawskim Wilanowie, w okolicach ul. Nałęczowskiej. poleca Agencja Nieruchomości Property Off...

3 371,00 zł

Warszawa

Targówek: lokal biurowy na wynajem

Warszawa - Do wynajęcia: lokal biurowy o pow.19 m2 na parterze budynku biurowo-magazynowego na warszawskim Targówku ,w okolicach ul. ks. Ziemowita,poleca Agencja Nieruchomości Property Office (tel. 73...

874,00 zł

Warszawa

Facebook
Facebook
Sprzedawanko.pl – serwis ogłoszeń Firmowanko.pl – katalog firm i usług Pracowanko.pl – serwis pracy Ugościmy.pl – serwis noclegów Nporta.pl – katalog firm i usług