📢
🔥 Bezpłatny Serwis Ogłoszeniowy 🔔 Dodaj Ogłoszenie Za Darmo Na SPRZEDAWANKO.PL🔥

Osiedle Złocień - nowe osiedle mieszkaniowe

609 000,00 zł

{{ email }}

Dodane przez: braciasadurscy
braciasadurscy
Lokalizacja: Agatowa
Agent: Marek Popiela
E-mail: marek@sadurscy.pl
Telefon kom.: +48 518-967-677
Udostępnij:

Opublikowano:  | Wygaśnie:

Wyświetleń: 7 | ID ogłoszenia: 61413

Numer oferty: BS2-MS-310841-133

Szczegóły

Typ: Sprzedaż
Rynek: Pierwotny
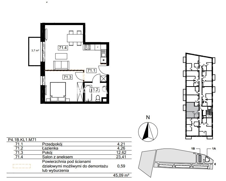
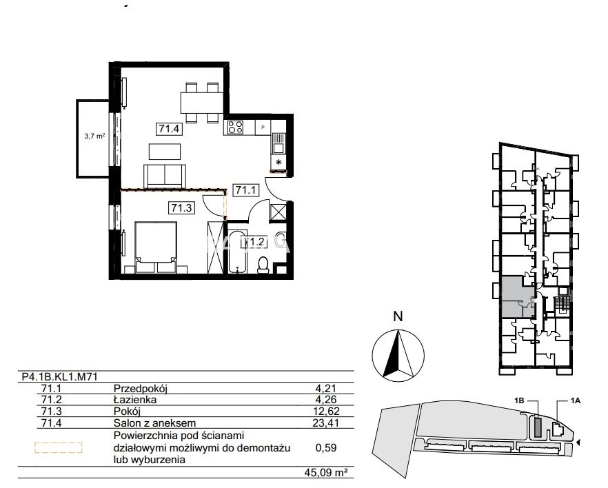
Pow. użytkowa: 44.5 m2
Cena za m2 (zł): 13685.39
Liczba pokoi: 2
Liczba sypialni: 1
Rodzaj zabudowy: budynek wielorodzinny
Piętro: 4
Liczba pięter: 4
Materiał budynku: tradycyjna
Okna: PCV
Rok budowy: 2023
Ogrzewanie: C.O. miejskie
Stan wykończenia: deweloperski
Własność: Własność
Data aktualizacji: 2026-02-19

Opis


ZŁOCIEŃ - NOWOCZESNE OSIEDLE MIESZKANIOWE.

Prezentujemy nowoczesne osiedle zlokalizowane w południowo-wschodniej części miasta.
W III etapie powstanie czteropiętrowy budynek , w którym znajdują się mieszkania w przedziale od 25 do 68 m2 .

Podziemna część budynku przeznaczona jest na garaż z miejscami parkingowymi.

Mieszkania na parterach będą mieć ogródki , na wyższych piętrach balkony . Mieszkania na najwyższych piętrach będą posiadać duże tarasy na dachu.

Inwestycja budowana w tradycyjnej technologii. Mieszkania sprzedawane w stanie deweloperskim (tynki gipsowe, wylewki, instalacje).

Wokół malownicza okolica , zielona przestrzeń, a przy tym dobra komunikacja miejska. Atrakcyjne połączenie z obwodnicą S7 i A4. Niedaleko inwestycji realizowany będzie przystanek kolei aglomeracyjnej, dzięki któremu z łatwością można dostać się do centrum miasta. W okolicy znajdują się liczne sklepy spożywcze oraz inne punkty handlowo-usługowe.

Termin zakończenia budowy zaplanowano na II kwartał 2024 r.

Zapraszam do kontaktu:

Marek Popiela +48 518 967 677
marek@sadurscy.pl

--------------------------

::GRATIS | Nasza prowizja zawiera: koszt przedwstępnej notarialnej umowy sprzedaży nieruchomości z rynku wtórnego.
::GWARANCJA | Gwarancja zwrotu zadatku. Więcej informacji na sadurscy.pl/zwrot-zadatku/


Oferta wysłana z systemu Galactica Virgo

Może Cię zainteresować:

Komentarze (0)

Nic nie znaleziono

Tylko zalogowani użytkownicy mogą dodawać komentarze

Mapa

Formularz kontaktowy

This site is protected by reCAPTCHA and the Google Privacy Policy and Terms of Service apply.

Podobne ogłoszenia

GOTOWY DOM DO WPROWADZENIA - OKAZJA

Twój azyl spokoju w Łochowie - nowoczesny dom, w którym chce się żyćWyobraź sobie poranek z kawą na zadaszonym tarasie, śpiew ptaków i zieleń własnego, starannie zaprojektowanego ogrodu… a to wszystko...

1 090 000,00 zł

Kujawsko-pomorskie

Wola: mieszkanie na wynajem

Warszawa - Do wynajęcia: mieszkanie o pow. 120 m2 na 7 piętrze bloku mieszkalnego na warszawskiej Woli, w okolicach ul. Okopowej,poleca Agencja Nieruchomości Property Office (tel. 731-321-117, mail: k...

8 000,00 zł

Warszawa

Targówek: lokal biurowy na wynajem

Warszawa - Do wynajęcia: lokal biurowy o pow. 140 m2 na 2 piętrze w budynku biurowym na terenie kompleksu magazynowo- biurowego na warszawskim Targówku, w okolicach ul. Rzecznej, poleca Property Offic...

7 700,00 zł

Warszawa

Ursus: lokal biurowy na wynajem

Warszawa - Do wynajęcia: lokal biurowy o pow. 28 m2 na 4 piętrze w budynku biurowym w warszawskim Ursusie,poleca Agencja Nieruchomości Property Office (tel. 731-321-117, mail: katarzyna@propertyoffice...

1 540,00 zł

Warszawa

Ursus: lokal biurowy na wynajem

Warszawa - Do wynajęcia biuro o pow. 22,78 m2 na 2 piętrze w budynku biurowym w Ursusie w okolicach ul. Wojciechowskiego.poleca Agencja Nieruchomości Property Office (tel. 731-321-117, mail: katarzyna...

1 253,00 zł

Warszawa

Ursus: lokal biurowy na wynajem

Warszawa - Do wynajęcia: biuro do pow. 13,60m2 na 1 piętrze w budynku biurowym w Ursusie w okolicach ul. Wojciechowskiego.poleca Property Office (tel. 731-321-117, mail: katarzyna@propertyoffice.pl)--...

1 020,00 zł

Warszawa

Ursus: lokal biurowy na wynajem

Warszawa - Do wynajęcia: biuro do pow. 56 m2 na 2 piętrze w budynku biurowym w warszawskim Ursusie w okolicach ul. Wojciechowskiego.poleca Agencja Nieruchomości Property Office (tel. 731-321-117, mail...

3 080,00 zł

Warszawa

Ursus: lokal biurowy na wynajem

Włochy - Do wynajęcia: biuro do pow. 56 m2 na 2 piętrze w budynku biurowym w warszawskim Ursusie w okolicach ul. Wojciechowskiego.poleca Agencja Nieruchomości Property Office (tel. 731-321-117, mail: ...

2 505,00 zł

Warszawa

Ursus: lokal biurowy na wynajem

Warszawa - Do wynajęcia: 3-pokojowe biuro o pow. 40,80 m2 na parterze w budynku biurowym w warszawskim Ursusie w okolicach ul. Wojciechowskiego.poleca Agencja Nieruchomości Property Office (tel. 731-3...

3 060,00 zł

Warszawa

Mokotów: lokal biurowy na wynajem

Warszawa - Do wynajęcia: lokal biurowy o pow. 20 m2 na 1 piętrze budynku biurowego na warszawskim Mokotowie (Siekierki), w okolicach ul. Bartyckiej,poleca Agencja Nieruchomości Property Office (tel. 7...

1 500,00 zł

Warszawa

Targówek: lokal biurowo-magazynowy na wynajem

Warszawa - Do wynajęcia lokal biurowo-magazynowy o pow. 857 m2 na parterze hali magazynowej na warszawskim Targówku, w okolicach ul. Zabranieckiej.poleca Agencja Nieruchomości Property (tel. 731-321-1...

25 056,00 zł

Warszawa

Żoliborz: lokal biurowo-usługowy na wynajem

Warszawa - Do wynajęcia: lokal usługowo-biurowy o pow. 7 m2 na parterze budynku biurowo-usługowego na warszawskim Żoliborzu, niedaleko stacji Metro Marymont.poleca Agencja Nieruchomości Property Offic...

600,00 zł

Warszawa

Mokotów: lokal biurowy na wynajem

Warszawa - Do wynajęcia: 2-pokojowy lokal biurowy o pow. 40 m2 na 1 piętrze budynku biurowego warszawskim Mokotowie (Siekierki), w okolicach ul. Bartyckiej, poleca Agencja Nieruchomości Property Offic...

2 800,00 zł

Warszawa

Śródmieście: biuro serwisowane na wynajem

Warszawa - Do wynajęcia: umeblowane biuro dla 5 osób na 1 piętrze kameralnego biurowca, na warszawskim Trakcie Królewskim, w okolicach Placu Zamkowego,poleca Agencja Nieruchomości Property Office (tel...

1 500,00 zł

Warszawa

Śródmieście: biuro serwisowane na wynajem

Warszawa - Do wynajęcia: biuro serwisowane dla 4 osób na 1 piętrze kameralnego biurowca, na warszawskim Trakcie Królewskim, w OKOLICACH Placu Zamkowego,poleca Agencja Nieruchomości Property Office (te...

1 600,00 zł

Warszawa

Śródmieście: biuro serwisowane na wynajem

Warszawa - Do wynajęcia: biuro serwisowane dla 3 osób na 1 piętrze kameralnego biurowca, na warszawskim Trakcie Królewskim, w okolicach Placu Zamkowego,poleca Agencja Nieruchomości Property Office (te...

1 500,00 zł

Warszawa

Śródmieście: biuro serwisowane na wynajem

Warszawa - Do wynajęcia: biuro serwisowane dla 6 osób na 1 piętrze kameralnego biurowca, na warszawskim Trakcie Królewskim, w okolicach Placu Zamkowego,poleca Agencja Nieruchomości Property Office (te...

2 200,00 zł

Warszawa

Śródmieście: biuro serwisowane na wynajem

Warszawa - Do wynajęcia: biuro serwisowane dla 9 osób na 1 piętrze kameralnego biurowca, na warszawskim Trakcie Królewskim, w okolicach Placu Zamkowego,poleca Property Office (tel. 731-321-117, mail: ...

3 200,00 zł

Warszawa

Śródmieście: lokal na usługi medyczne na wynajem

Warszawa - Do wynajęcia: lokal o pow. 690 m2 na usługi medyczne w kameralnym biurowcu, na warszawskim Trakcie Królewskim, w okolicach Placu Zamkowego,poleca Agencja Nieruchomości Property Office (tel....

27 600,00 zł

Warszawa

Śródmieście: biuro serwisowane na wynajem

Warszawa - Do wynajęcia: biuro serwisowane dla 5 osób na 1 piętrze kameralnego biurowca, na warszawskim Trakcie Królewskim, w okolicach Placu Zamkowego,poleca Agencja Nieruchomości Property Office (te...

1 500,00 zł

Warszawa

Facebook
Facebook
Sprzedawanko.pl – serwis ogłoszeń Firmowanko.pl – katalog firm i usług Pracowanko.pl – serwis pracy Ugościmy.pl – serwis noclegów Nporta.pl – katalog firm i usług