📢
🔥 Bezpłatny Serwis Ogłoszeniowy 🔔 Dodaj Ogłoszenie Za Darmo Na SPRZEDAWANKO.PL🔥

Smart Apartament na Prądniku Białym blisko Zieleni

952 737,00 zł

{{ email }}

Dodane przez: braciasadurscy
braciasadurscy
Lokalizacja: Pękowicka
Agent: Patrycja Rubinkiewicz
E-mail: patrycja@sadurscy.pl
Telefon kom.: +48 505-236-943
Udostępnij:

Opublikowano:  | Wygaśnie:

Wyświetleń: 8 | ID ogłoszenia: 61398

Numer oferty: BS2-MS-304457-27

Szczegóły

Typ: Sprzedaż
Rynek: Pierwotny
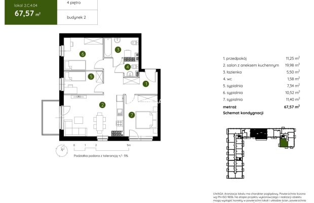
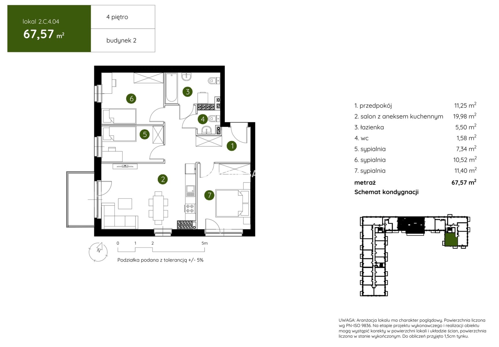
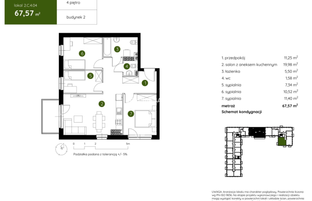
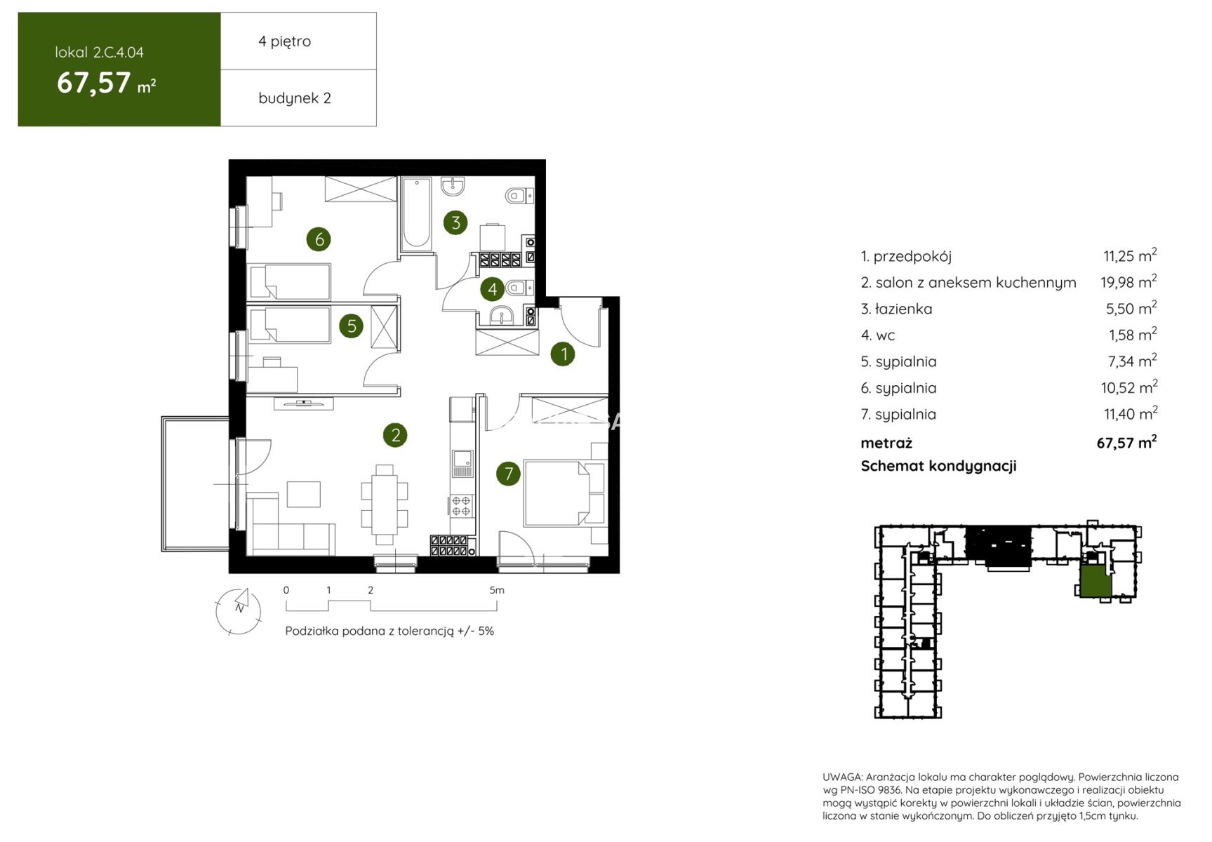
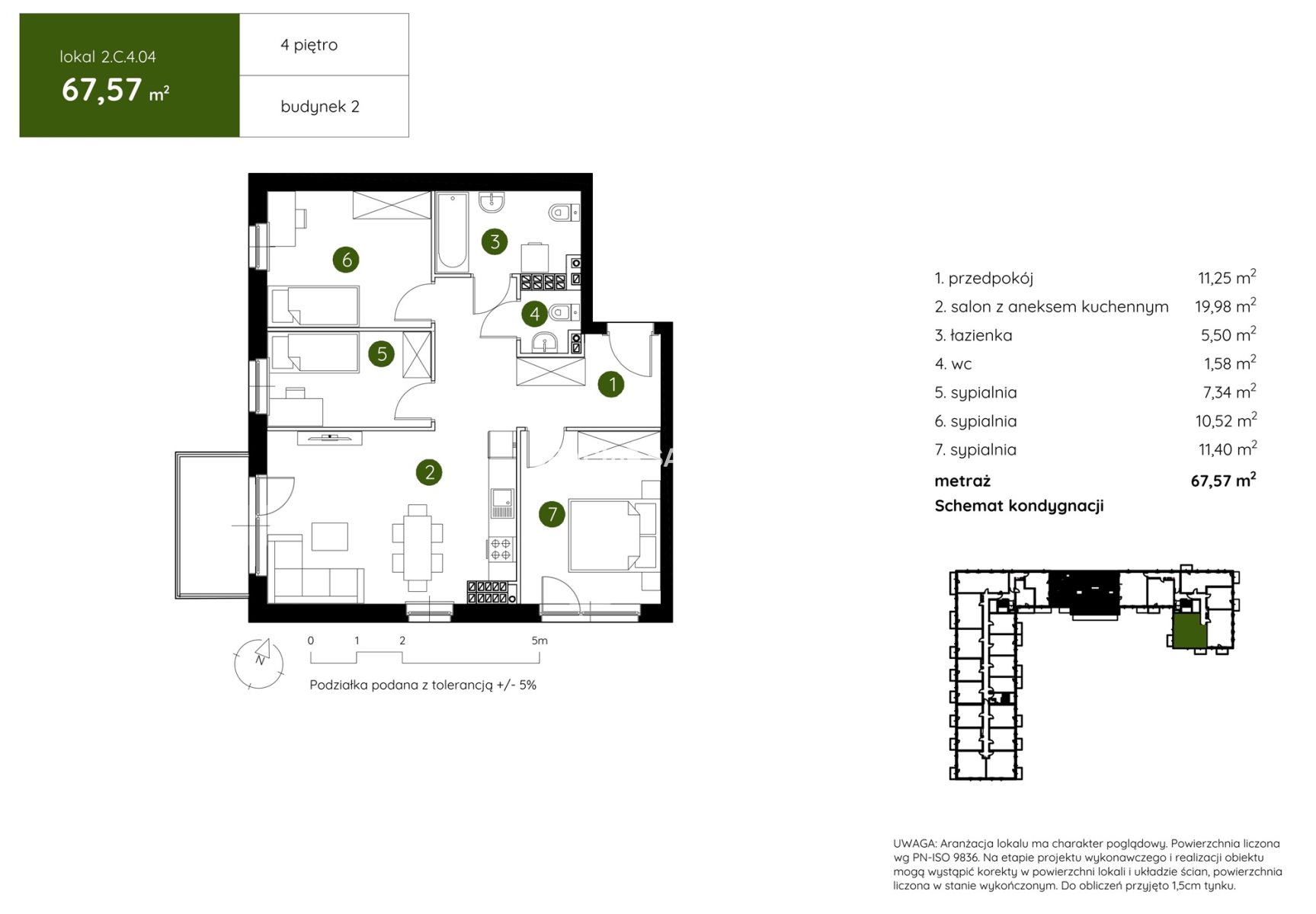
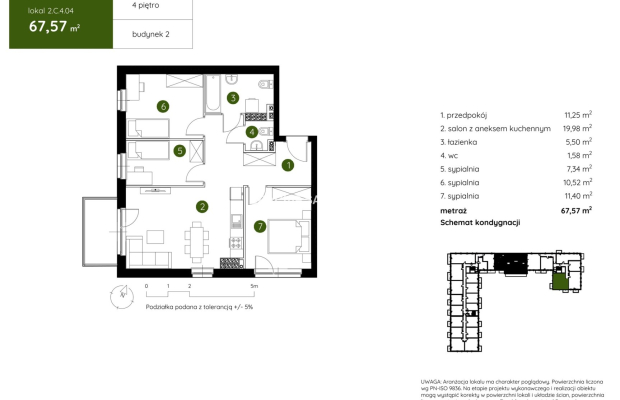
Pow. użytkowa: 67.57 m2
Cena za m2 (zł): 14100
Liczba pokoi: 4
Rodzaj zabudowy: blok
Piętro: 4
Liczba pięter: 3
Materiał budynku: pustak
Okna: PCV
Rok budowy: 2024
Ogrzewanie: C.O. miejskie
Stan wykończenia: deweloperski
Własność: Odrębna własność lokalu
Data aktualizacji: 2026-02-19

Opis


Z ogromną przyjemnością przedstawiamy Państwu ofertę mieszkania na sprzedaż w malowniczym rejonie Doliny Prądnika, na północy Krakowa, blisko granicy z gminą Zielonki. Nowoczesne osiedle otoczone jest rozległymi terenami zielonymi, co umożliwia codzienny kontakt z naturą i zapewnia wytchnienie od intensywnego miejskiego życia w centrum miasta.

Osiedle zostało zaprojektowane z myślą o rodzinach, parach oraz singlach, oferując szeroki wybór mieszkań o powierzchni od 26 do 73 m², w układach 1-, 2-, 3- i 4-pokojowych. Dbałość o komfort mieszkańców przejawia się w wysokiej jakości przestrzeni wspólnych, które sprzyjają nawiązywaniu sąsiedzkich relacji: skwer z ławeczkami, plac zabaw...

Budynki nowej inwestycji mające 3 i 4 kondygnacje, wyróżniają się kameralną architekturą, harmonizującą z okolicą. Przestronność obiektów gwarantuje mieszkańcom poczucie prywatności.

Zalety:


Home Management System to zaawansowana technologia inteligentnego domu, która umożliwia m.in. zarządzanie ogrzewaniem, oświetleniem i zaworami wody.
Pakiet antysmogowy w postaci filtrów montowanych w nawiewnikach okiennych dba o czystość powietrza we wnętrzach mieszkań.
Wysoki standard wykończenia części wspólnych obejmuje trwałe płytki gresowe, dekoracyjne panele imitujące drewno oraz energooszczędne oświetlenie LED.
Mieszkania na parterze posiadają tarasy z ogrodami o powierzchni do 123 m², natomiast mieszkania na wyższych kondygnacjach oferują przestronne balkony.
Termoizolacyjne łączniki balkonowe zapobiegają utracie ciepła, co przekłada się na oszczędności energetyczne.
Portfenetrowe okna zapewniają doskonałe doświetlenie wnętrz.
Na terenie osiedla zostanie zainstalowana stacja ładowania pojazdów elektrycznych, z myślą o mieszkańcach korzystających z ekologicznych środków transportu.
Zielone dachy budynków będą nie tylko estetyczne, ale również poprawią jakość powietrza i obniżą temperaturę otoczenia.


Prądnik biały to doskonale skomunikowana okolica, idealne miejsce dla osób szukających spokoju i bliskości natury, z jednoczesnym dostępem do nowoczesnych rozwiązań technologicznych.

Serdecznie zapraszam do kontaktu


--------------------------

::GRATIS | Nasza prowizja zawiera: koszt przedwstępnej notarialnej umowy sprzedaży nieruchomości z rynku wtórnego.
::GWARANCJA | Gwarancja zwrotu zadatku. Więcej informacji na sadurscy.pl/zwrot-zadatku/


Oferta wysłana z systemu Galactica Virgo

Może Cię zainteresować:

Komentarze (0)

Nic nie znaleziono

Tylko zalogowani użytkownicy mogą dodawać komentarze

Mapa

Formularz kontaktowy

This site is protected by reCAPTCHA and the Google Privacy Policy and Terms of Service apply.

Podobne ogłoszenia

GOTOWY DOM DO WPROWADZENIA - OKAZJA

Twój azyl spokoju w Łochowie - nowoczesny dom, w którym chce się żyćWyobraź sobie poranek z kawą na zadaszonym tarasie, śpiew ptaków i zieleń własnego, starannie zaprojektowanego ogrodu… a to wszystko...

1 090 000,00 zł

Kujawsko-pomorskie

Wola: mieszkanie na wynajem

Warszawa - Do wynajęcia: mieszkanie o pow. 120 m2 na 7 piętrze bloku mieszkalnego na warszawskiej Woli, w okolicach ul. Okopowej,poleca Agencja Nieruchomości Property Office (tel. 731-321-117, mail: k...

8 000,00 zł

Warszawa

Targówek: lokal biurowy na wynajem

Warszawa - Do wynajęcia: lokal biurowy o pow. 140 m2 na 2 piętrze w budynku biurowym na terenie kompleksu magazynowo- biurowego na warszawskim Targówku, w okolicach ul. Rzecznej, poleca Property Offic...

7 700,00 zł

Warszawa

Ursus: lokal biurowy na wynajem

Warszawa - Do wynajęcia: lokal biurowy o pow. 28 m2 na 4 piętrze w budynku biurowym w warszawskim Ursusie,poleca Agencja Nieruchomości Property Office (tel. 731-321-117, mail: katarzyna@propertyoffice...

1 540,00 zł

Warszawa

Ursus: lokal biurowy na wynajem

Warszawa - Do wynajęcia biuro o pow. 22,78 m2 na 2 piętrze w budynku biurowym w Ursusie w okolicach ul. Wojciechowskiego.poleca Agencja Nieruchomości Property Office (tel. 731-321-117, mail: katarzyna...

1 253,00 zł

Warszawa

Ursus: lokal biurowy na wynajem

Warszawa - Do wynajęcia: biuro do pow. 13,60m2 na 1 piętrze w budynku biurowym w Ursusie w okolicach ul. Wojciechowskiego.poleca Property Office (tel. 731-321-117, mail: katarzyna@propertyoffice.pl)--...

1 020,00 zł

Warszawa

Ursus: lokal biurowy na wynajem

Warszawa - Do wynajęcia: biuro do pow. 56 m2 na 2 piętrze w budynku biurowym w warszawskim Ursusie w okolicach ul. Wojciechowskiego.poleca Agencja Nieruchomości Property Office (tel. 731-321-117, mail...

3 080,00 zł

Warszawa

Ursus: lokal biurowy na wynajem

Włochy - Do wynajęcia: biuro do pow. 56 m2 na 2 piętrze w budynku biurowym w warszawskim Ursusie w okolicach ul. Wojciechowskiego.poleca Agencja Nieruchomości Property Office (tel. 731-321-117, mail: ...

2 505,00 zł

Warszawa

Ursus: lokal biurowy na wynajem

Warszawa - Do wynajęcia: 3-pokojowe biuro o pow. 40,80 m2 na parterze w budynku biurowym w warszawskim Ursusie w okolicach ul. Wojciechowskiego.poleca Agencja Nieruchomości Property Office (tel. 731-3...

3 060,00 zł

Warszawa

Mokotów: lokal biurowy na wynajem

Warszawa - Do wynajęcia: lokal biurowy o pow. 20 m2 na 1 piętrze budynku biurowego na warszawskim Mokotowie (Siekierki), w okolicach ul. Bartyckiej,poleca Agencja Nieruchomości Property Office (tel. 7...

1 500,00 zł

Warszawa

Targówek: lokal biurowo-magazynowy na wynajem

Warszawa - Do wynajęcia lokal biurowo-magazynowy o pow. 857 m2 na parterze hali magazynowej na warszawskim Targówku, w okolicach ul. Zabranieckiej.poleca Agencja Nieruchomości Property (tel. 731-321-1...

25 056,00 zł

Warszawa

Żoliborz: lokal biurowo-usługowy na wynajem

Warszawa - Do wynajęcia: lokal usługowo-biurowy o pow. 7 m2 na parterze budynku biurowo-usługowego na warszawskim Żoliborzu, niedaleko stacji Metro Marymont.poleca Agencja Nieruchomości Property Offic...

600,00 zł

Warszawa

Mokotów: lokal biurowy na wynajem

Warszawa - Do wynajęcia: 2-pokojowy lokal biurowy o pow. 40 m2 na 1 piętrze budynku biurowego warszawskim Mokotowie (Siekierki), w okolicach ul. Bartyckiej, poleca Agencja Nieruchomości Property Offic...

2 800,00 zł

Warszawa

Śródmieście: biuro serwisowane na wynajem

Warszawa - Do wynajęcia: umeblowane biuro dla 5 osób na 1 piętrze kameralnego biurowca, na warszawskim Trakcie Królewskim, w okolicach Placu Zamkowego,poleca Agencja Nieruchomości Property Office (tel...

1 500,00 zł

Warszawa

Śródmieście: biuro serwisowane na wynajem

Warszawa - Do wynajęcia: biuro serwisowane dla 4 osób na 1 piętrze kameralnego biurowca, na warszawskim Trakcie Królewskim, w OKOLICACH Placu Zamkowego,poleca Agencja Nieruchomości Property Office (te...

1 600,00 zł

Warszawa

Śródmieście: biuro serwisowane na wynajem

Warszawa - Do wynajęcia: biuro serwisowane dla 3 osób na 1 piętrze kameralnego biurowca, na warszawskim Trakcie Królewskim, w okolicach Placu Zamkowego,poleca Agencja Nieruchomości Property Office (te...

1 500,00 zł

Warszawa

Śródmieście: biuro serwisowane na wynajem

Warszawa - Do wynajęcia: biuro serwisowane dla 6 osób na 1 piętrze kameralnego biurowca, na warszawskim Trakcie Królewskim, w okolicach Placu Zamkowego,poleca Agencja Nieruchomości Property Office (te...

2 200,00 zł

Warszawa

Śródmieście: biuro serwisowane na wynajem

Warszawa - Do wynajęcia: biuro serwisowane dla 9 osób na 1 piętrze kameralnego biurowca, na warszawskim Trakcie Królewskim, w okolicach Placu Zamkowego,poleca Property Office (tel. 731-321-117, mail: ...

3 200,00 zł

Warszawa

Śródmieście: lokal na usługi medyczne na wynajem

Warszawa - Do wynajęcia: lokal o pow. 690 m2 na usługi medyczne w kameralnym biurowcu, na warszawskim Trakcie Królewskim, w okolicach Placu Zamkowego,poleca Agencja Nieruchomości Property Office (tel....

27 600,00 zł

Warszawa

Śródmieście: biuro serwisowane na wynajem

Warszawa - Do wynajęcia: biuro serwisowane dla 5 osób na 1 piętrze kameralnego biurowca, na warszawskim Trakcie Królewskim, w okolicach Placu Zamkowego,poleca Agencja Nieruchomości Property Office (te...

1 500,00 zł

Warszawa

Facebook
Facebook
Sprzedawanko.pl – serwis ogłoszeń Firmowanko.pl – katalog firm i usług Pracowanko.pl – serwis pracy Ugościmy.pl – serwis noclegów Nporta.pl – katalog firm i usług