📢
🔥 Już Jutro Nowa Promocja tylko na Sprzedawanko.pl! 🔔 Skorzystaj teraz! 🔥

Lubin, Chróstnik, grunt inwestycyjny, 1,420 ha, 2 500 000 zł, Sprzedam. Na sprzedaż atrakcyjnie położony grunt inwestycyjn

2 500 000,00 zł

{{ phone }}

{{ email }}

Dodane przez: WGNPolkowice
WGNPolkowice
Lokalizacja: Chróstnik
Telefon: {{ phone }}
Udostępnij:

Opublikowano:  | Wygaśnie:

ID ogłoszenia: 5786

Szczegóły

Typ: Sprzedaż
Pow. użytkowa m2: 14200
Pow. działki m2: 14200
Agent: Marek Świdziński
E-mail: m.swidzinski@wgn.pl
Telefon biuro: 724 359 329

Opis

Lubin, Chróstnik, grunt inwestycyjny, 1,420 ha, 2 500 000 zł, Sprzedam.

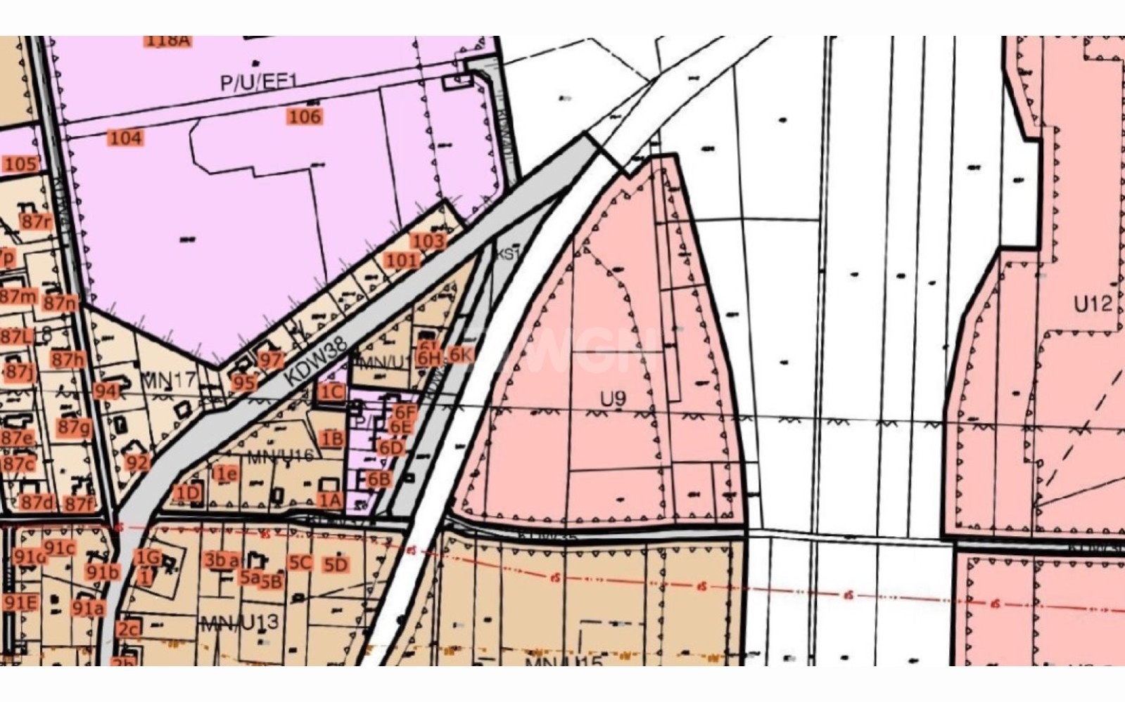
Na sprzedaż atrakcyjnie położony grunt inwestycyjny przy zjeździe z drogi ekspresowej S3, węźle drogowym Lubin Południe, w miejscowości Chróstnik, województwo dolnośląskie, powiat Lubiński, gmina Lubin.

Teren znajduje się na dwóch działkach 435 oraz 436/1. W MPZP, grunt oznaczony symbolem U9:

Przeznaczenie podstawowe:

- zabudowa usługowa,

Przeznaczenie uzupełniające:

- zabudowa mieszkaniowa na powierzchni nie większej niż 20% działki,

- urządzenia sportowo- rekreacyjne,

Inne:

- wysokość budynków, z wyjątkiem sakralnych, nie może przekraczać 12m,

- wysokość budowli nie może przekraczać 50m,

- dopuszcza się dowolny rodzaj dachu oraz pokrycie,

Media w granicach działki.

Zainteresowanych zapraszam do osobistego zapoznania się z całą nieruchomością podczas prezentacji.

Zapraszamy do naszych biur:

Zapewniamy pomoc w doborze oraz uzyskaniu najkorzystniejszego kredytu hipotecznego na
zakup bądź remont nieruchomości.

WGN zapewnia rynkowe ceny, bezpieczeństwo korzystnej transakcji oraz pomoc notariusza.
Wyróżniamy się pełnym zaangażowaniem, ekspercką wiedzą i najwyższym poziomem usług
opartych na ponad 30-letnim doświadczeniu. Stosujemy System Jakości ZJ WGN oraz Kodeks
Etyki Zawodowej Polskiej Federacji Rynku Nieruchomości.

Kupujący ponosi koszty związane z zakupem nieruchomości:
- podatek od czynności cywilno-prawnych
- taksy notarialnej
- wpisów do księgi wieczystej
- obsługi transakcji przez biuro nieruchomości.

Informacje dotyczące nieruchomości zostały sporządzone na podstawie oświadczeń i nie są ofertą w rozumieniu przepisów prawa, mają charakter wyłącznie informacyjny i mogą podlegać aktualizacji, zalecamy ich osobistą weryfikację.
Wszystkie teksty, rysunki, zdjęcia oraz wszystkie inne informacje opublikowane na niniejszych stronach podlegają prawom autorskim WGN Polkowice, ul. Słubicka 5C. Wszelkie kopiowanie, dystrybucja, elektroniczne przetwarzanie oraz przesyłanie zawartości bez zezwolenia zabronione. Wszelkie prawa zastrzeżone.

Dzwoniąc do biura pytaj o numer oferty 4081.

Komentarze (0)

Nic nie znaleziono

Tylko zalogowani użytkownicy mogą dodawać komentarze

Mapa

Formularz kontaktowy

This site is protected by reCAPTCHA and the Google Privacy Policy and Terms of Service apply.

Podobne ogłoszenia

2-pok./nowe budownictwo/winda/do wejscia/Łagiewnik

Jasne, 2-pok. mieszkanie z 2011r. w Borku Fałęckim, ul. Zbrojarzy, gotowe do wejścia Do sprzedaży oferujemy 2-pok.mieszkanie o pow. 36,21 m2 usytuowane na 2.piętrze w 3.piętrowym b...

555 000,00 zł

Kraków

2 pok, duży balkon, osoba kuchnia, parking, tv ENG

English version bellow Do wynajęcia funkcjonalne i ciche mieszkanie o powierzchni 51,5 m² w spokojnej części Bronowic, położone na 4. z 5 pięter w budynku z windą. Lokal po odświeżeniu, gotowy ...

3 300,00 zł

Kraków

Przytulne mieszkanie / garaż / UJ / MPK /Zakrzówek

Biuro Nieruchomości Bracia Sadurscy ma przyjemność zaprezentować przestronne i jasne mieszkanie w sąsiedztwie Zakrzówka. Mieszkanie znajduje się w świetnie skomunikowanej okolicy. Szybki doj...

2 800,00 zł

Kraków

Nowoczesne 3‑pokojowe mieszkanie z klimatyzacją przy ul. Walerego Sławka - gotowe do wprowadzenia! Na sprzedaż jasne, przes

Nowoczesne 3‑pokojowe mieszkanie z klimatyzacją przy ul. Walerego Sławka - gotowe do wprowadzenia! Na sprzedaż jasne, przestronne, rozkładowe mieszkanie o powierzchni 56,01 m² , położone w ...

988 000,00 zł

Kraków

Klasyczna przedwojenna willa miejska ze schronem

Z prawdziwą przyjemnością oferuję do sprzedania DOM dwukondygnacyjny w wolnostojący z lat 30 XX wieku, o powierzchni ok. 300 m2 usytuowany we Wrocławiu na osiedlu Brochów. Dom posadowiony jest na dzia...

1 890 000,00 zł

Wrocław

Klasyczna przedwojenna willa miejska ze schronem

Z prawdziwą przyjemnością oferuję do sprzedania DOM dwukondygnacyjny w wolnostojący z lat 30 XX wieku, o powierzchni ok. 300 m2 usytuowany we Wrocławiu na osiedlu Brochów. Dom posadowiony jest na dzia...

1 890 000,00 zł

Wrocław

Zabytkowy Zespół Dworsko-Parkowy (XIXw. 1880 r)

Na sprzedaż wyjątkowa nieruchomość zabytkowy Zespół Dworsko-Parkowy (XIXw. budowany do ok. 1880 r).Malowniczy zabytkowy zespół dworsko-parkowy w Turce/k. Lublina wybudowany został w latach 1861-1878 ...

10 500 000,00 zł

Turka

Dom wolno stojący - Czyżyny!

*zdjęcia należą do właściciela oferty. Dom wolno stojący na osiedlu domów jednorodzinnych w Czyżynach o pow.: 230,03 m 2 , na działce - 665 m 2 . Przestronny, komfortowy dom w bardzo dobrym s...

3 200 000,00 zł

Kraków

3 pokoje na Woli Justowskiej - 67,37m2

* zdjęcia należą do właściciela oferty 3 pokoje - Wola Justowska - 67,37m2 Do sprzedania mieszkanie w nowej inwestycji przy ulicy Borowego na Woli Justowskiej , wykończone p...

1 715 000,00 zł

Kraków

Dwa drewniane domy z czterema lokalami

Dwa drewniane domy z czterema lokalami mieszkalnymi w Łapszach Wyżnych Oferujemy na sprzedaż dwa budynki mieszkalne , jednorodzinne, wolnostojące w Łapszach Wyżnych. Domy są parterowe z uż...

2 449 000,00 zł

Łapsze Wyżne

Dwa drewniane domy z czterema lokalami

Dwa drewniane domy z czterema lokalami mieszkalnymi w Łapszach Wyżnych Oferujemy na sprzedaż dwa budynki mieszkalne , jednorodzinne, wolnostojące w Łapszach Wyżnych. Domy są parterowe z uż...

2 449 000,00 zł

Łapsze Wyżne

2 SYPIALNIE NOWA HUTA WANDA 44 M2 OSOBNA KUCHNIA

2 POKOJE SYPIALNIANE / 44 M2 / 9 PIĘTRO / WINDA / NOWA HUTA / BALKON / WIDOK / PRZYJAZNE ZWIERZĘTOM KTO MOŻE ZAMIESZKAĆ ❓ Mieszkanie jest idealne dla singla , rodziny 2+1, przyjaciół, s...

2 200,00 zł

Kraków

M-3 POK 4 PIĘTRO 53 M2 HOME OFFICE BALKON PREMIUM

3 POKÓJ / 53 M2 / 4 PIĘTRO / MIEJSCE POSTOJOWE / PRĄDNIK CZERWONY / PRACA ZDALNA / BALKON / BLISKO SERENADA / PREMIUM KTO MOŻE ZAMIESZKAĆ ❓ Mieszkanie jest idealne dla osób pracujących z...

3 700,00 zł

Kraków

2 pokoje + osobna kuchnia, blisko tramwaj, Park

Mieszkanie pełne możliwości - ul. Ułanów, Kraków Ta oferta to doskonała propozycja dla osób, które cenią sobie dobrą lokalizację, funkcjonalny układ i możliwość stworzenia wnętrza dopasowanego ...

599 000,00 zł

Kraków

Nowe 2-pokojowe z ogródkiem i parkingiem

* zdjęcia należą do właściciela mieszkania Kraków, Grzegórzki / Dąbie - 2 pokoje z ogródkiem 30m2 i z miejscem parkingowym Cena mieszkania: Powierzchnia: 41,64m2 Ogródek: 30m2 Stan nier...

920 000,00 zł

Kraków

Do wynajęcia mieszkanie o powierzchni 41 m2 położone przy ul. Piotra Skargi. Nieruchomość zlokalizowana na drugim piętrze. Sk

Do wynajęcia mieszkanie o powierzchni 41 m2 położone przy ul. Piotra Skargi. Nieruchomość zlokalizowana na drugim piętrze. Składa się z salonu z wyjściem na duży balkon, sypialni, kuchni, łazienk...

1 400,00 zł

Tarnów

3 pok Modrzejewskiej, Krowodrza

3-pokojowy lokal na wynajem - ul. Heleny Modrzejewskiej, Krowodrza - Azory Do wynajęcia przestronny lokal o powierzchni 72 m², położony na drugim piętrze w niskim, kameralnym budynku. Lokal ...

3 000,00 zł

Kraków

Maciejowice - widokowa działka z przyłączami

Uzbrojona działka budowlana - Maciejowice, gm. Kocmyrzów-Luborzyca Oferujemy wyjątkową działkę budowlaną położoną w malowniczej miejscowości Maciejowice (gmina Kocmyrzów-Luborzyca). Nieruc...

345 000,00 zł

Maciejowice

3 pok Modrzejewskiej, Krowodrza

3-pokojowe mieszkanie na wynajem - ul. Heleny Modrzejewskiej, Krowodrza - Azory Do wynajęcia przestronne mieszkanie o powierzchni 72 m², położone na drugim piętrze w niskim, kameralnym budyn...

3 000,00 zł

Kraków

Dom na wsi w Przyłęku pow. Zwoleń, mazowieckie.

Siedlisko ( dom murowany 55 m2 plus budynki gospodarcze ) na działce o pow. 0,36 ha (3623 m2) w cichej i spokojnej miejscowości Przyłęk gm. Przyłęk pow. zwoleński woj. mazowieckie w bliskiej odległo...

195 000,00 zł

Przyłęk

PIĘKNY DOM W DOBREJ CENIE NA ATRAKCYJNEJ DZIAŁCE

SOLIDNY, PONADCZASOWY W ATRAKCYJNEJ CENIE NA DUŻEJ 55 AR ZAGOSPODAROWANEJ DZIAŁCE LOKALIZACJA, DZIAŁKA Z przyjemnością prezentujemy atrakcyjną ofertę sprzedaż...

1 990 000,00 zł

Mogilany

2 pokoje przy Bonarce

2 pokoje | Od zaraz | Pets Friendly Biuro Nieruchomości Bracia Sadurscy ma przyjemność zaprezentować komfortowe mieszkanie dwupokojowe o powierzchni 37,55 m² , zlokalizowane w nowoczesn...

2 700,00 zł

Kraków

2 pokojowe przy Bonarce

2 pokoje | Od zaraz | Pets Friendly Biuro Nieruchomości Bracia Sadurscy ma przyjemność zaprezentować komfortowe mieszkanie o powierzchni 38 m² , zlokalizowane w nowoczesnym kompleksie p...

2 600,00 zł

Kraków

GUSTOWNE, PIEKNE, SŁONECZNE 3-POKOJOWE Z BALKONEM

ATRAKCYJNE, GOTOWE DO WEJŚCIA, PO GENERALNYM REMONCIE W BARDZO DOBREJ LOKALIZACJI MIESZKANIE, BUDYNEK Z dużą przyjemnością prezentujemy bardzo atrakcyjne mies...

792 000,00 zł

Kraków

Nowoczesna kawalerka przy Bonarce

Kawalerka | Od zaraz | Pets Friendly Biuro Nieruchomości Bracia Sadurscy ma przyjemność zaprezentować komfortową kawalerkę o powierzchni 25,32 m² , zlokalizowaną w nowoczesnym kompleksi...

1 990,00 zł

Kraków

Kawalerka 30 m2 (oddzielna kuchnia) centrum Puław.

Mieszkanie (kawalerka z oddzielną kuchnią oraz balkonem) o pow. 30 m2 po generalnym remoncie w bardzo dobrym stanie technicznym na drugim piętrze kamienicy w centrum Puław woj. lubelskie.Mieszkanie: p...

270 000,00 zł

Puławy

Blisko Nałęczowa, 3 pokoje z garażem i działką.

** Oferta tylko w Biurze KNC City **** Klucze w biurze - możliwość prezentacji w dogodnej porze **NIEZABITÓW gm.Poniatowa: polecam do zakupu mieszkanie 3 pokojowe o pow. 63 m² zlokalizowane na 2 pięt...

299 000,00 zł

Niezabitów

Zabytkowy Zespół Dworsko-Parkowy (XIXw. 1880 r)

Na sprzedaż wyjątkowa nieruchomość zabytkowy Zespół Dworsko-Parkowy (XIXw. budowany do ok. 1880 r).Malowniczy zabytkowy zespół dworsko-parkowy w Turce/k. Lublina wybudowany został w latach 1861-1878 ...

10 500 000,00 zł

Turka

Facebook
Facebook
Sprzedawanko.pl – serwis ogłoszeń Firmowanko.pl – katalog firm i usług Pracowanko.pl – serwis pracy Ugościmy.pl – serwis noclegów Nporta.pl – katalog firm i usług