📢
🔥 PRZEDWIOŚNIE 2026 W SPRZEDAWANKO.PL 🔔 WSZYSTKO ZA FREE DO 20.03.2026 r. 🔥

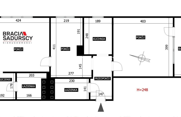
3 pok, 2 łazienki, balkon, 1 piętro, możliwy garaż

780 000,00 zł

{{ phone }}

{{ email }}

Dodane przez: braciasadurscy
braciasadurscy
Lokalizacja: os. Albertyńskie
Telefon: {{ phone }}
Udostępnij:

Opublikowano:  | Wygaśnie:

ID ogłoszenia: 38275

Szczegóły

Typ: Sprzedaż
Rynek: Wtórny
Pow. użytkowa m2: 60.26
Pow. całkowita m2: 60.26
Cena za m2 (zł): 12943.91
Liczba pokoi: 3
Liczba sypialni: 3
Rodzaj zabudowy: blok
Piętro: 1
Liczba pięter: 8
Materiał budynku: wielka płyta
Okna: PCV
Rok budowy: 1966
Ogrzewanie: C.O. miejskie
Stan wykończenia: do remontu
Własność: Własność
Agent: Norbert Borowiak
E-mail: norbert@sadurscy.pl
Telefon kom.: +48 577-072-177
Data aktualizacji: 2026-02-26

Opis


Na sprzedaż 3-pokojowe mieszkanie z loggią, dwiema łazienkami oraz osobną kuchnią. Do mieszkania przynależy piwnica o powierzchni ponad 2 m 2 . Dzielnica: Bieńczyce, Osiedle Albertyńskie. Mieszkanie o łącznej powierzchni 62,76 m 2 (60,26 m 2 bez piwnicy).

Układ i powierzchnia: rozkład pomieszczeń pozwala na stworzenie idealnej przestrzeni dla rodziny lub jako nieruchomość inwestycyjna. W mieszkaniu gaz do gotowania w kuchni, ogrzewanie oraz woda ciepła miejsca (MPEC). Mieszkanie do remontu, instalacje elektryczne stare.

3 pokoje o powierzchni: ok. 16 m² / ok. 10 m² / ok. 16 m²
2 łazienki o powierzchni: ok. 3,25 m² / ok. 3,30 m²
Kuchnia: ok. 4,70 m²
Dodatkowe pomieszczenie: ok. 3,50 m²
Przedpokój: ok. 4,10 m²
Balkon: ponad 5 m²

- Piętro: 1
- Winda: tak
- Piwnica: ponad 2 m 2
- Garaż: możliwość dokupienia

Czynsz administracyjny: ok. 720 zł / miesięcznie.

Kontakt:
Norbert Borowiak
+48 577 072 177

Prezentacja nieruchomości po podpisaniu umowy pośrednictwa jest bezpłatna.

Oferta wysłana z systemu Galactica Virgo

Komentarze (0)

Nic nie znaleziono

Tylko zalogowani użytkownicy mogą dodawać komentarze

Mapa

Formularz kontaktowy

This site is protected by reCAPTCHA and the Google Privacy Policy and Terms of Service apply.

Podobne ogłoszenia

Centrum Logistyczne do kupna

Na sprzedaż nieruchomość w Rudawie koło Krzeszowic gmina Zabierzów przy drodze krajowej 79. Nieruchomość zlokalizowana jest w województwie małopolskim około 10 km od Krakowa . Na terenie gminy z...

10 408 100,00 zł

Rudawa

Nieruchomośc z przeznaczeniem pod fabrykę / centru

Polecamy do sprzedaży nieruchomość z przeznaczeniem pod fabrykę / centrum logistyczne . Cały teren do sprzedaży liczy 9,45 ha. Centrum Logistyczno - Magazynowe Zielony Port w Szczucinie leży...

65 000 000,00 zł

Szczucin

Do wynajecia budynek w Zagórzu

Do wynajecia budynek dwukondygnacyjny o powierzchni całkowitej 220 m2 /parter 110 m2, poddasze 110 m2/ w miejscowości Zagórze gm. Niepołomice pow. wielicki.Parter budynku do wykończenia pod wynajmu...

10 500,00 zł

Wielicki

Komercja przy drodze 94 Tarnów - motoryzacja

Polecamy do sprzedaży teren komercyjny bezpośrednio przy drodze 94 w Tarnowie . Nieruchomość zlokalizowana jest przy głównej drodze wjazdowej do Tarnowa od strony Krakowa. NA SPRZEDAŻ DZ...

10 000 000,00 zł

Tarnowski

Powierzchnie biurowe, szkolne na Starym Mieście

Do wynajęcia powierzchnie biurowe, szkolne lub do innego zagospodarowania przy ul. Batorego w Krakowie (Stare Miasto). Powierzchnie do wynajęcia: - Parter: 450m2 (wolne od lipca); - I piętro...

16 800,00 zł

Kraków

Wyjątkowy lokal przy ul. Długiej

Zdjęcia w ogłoszeniu należą do Właściciela oferty STARE MIASTO Do wynajęcia przestronny lokal położony przy ulicy Długiej , w samym sercu Krakowa. Nieruchomość znajduje się na trze...

2 650,00 zł

Kraków

lokal biurowy 55,5m2 Prądnik Czerwony Olsza

Kraków- Prądnik Czerwony/Olsza rejon ul. Bajana Lokal biurowy o powierzchni ok. 55,5 m2, położony na pierwszym ...

3 900,00 zł

Kraków

lokal biurowy 18,5 m2 pradnik Biały

Kraków- Prądnik Biały rejon ul. Jasnogórska Lokal biurowy o powierzchni ok.18,5 m 2, położony na drugim pietrze/2 piętrowego budynku b...

1 300,00 zł

Kraków

lokal biurowy 128 m2 Centrum Krakow blisko Wawelu

Kraków- Centrum miasta- blisko Wawelu rejon ul. Zwierzynieckiej Lokal biurowy o powierzchni ok. 128 m2, położony ...

11 055,00 zł

Kraków

lokal handlowo-usługowy lub biurowy 100m2 Olsza

Kraków- Prądnik Czerwony/Olsza rejon ul. Bajana Lokal usługowy lub usługowo-biurowy lub handlowy Lokal biurowy - usługowy lu...

7 999,00 zł

Kraków

LOKAL OK 15,5 M2 BIUROWY PRĄDNIK BIAŁY -BIUROWIEC

Kraków- Prądnik Biały rejon ul. Jasnogórska Lokal biurowy o powierzchni ok.15,5 m 2, położony na drugim pietrze/2 piętrowego budynku b...

1 100,00 zł

Kraków

lokal biurowy 44 m2 Prądnik Biały biurowiec

Kraków- Prądnik Biały rejon ul. Jasnogórska Lokal biurowy o powierzchni ok.44 m2, położony na pierwszym pietrze/2 piętrowego budyn...

3 100,00 zł

Kraków

Lokal usługowy w sercu Krakowa – Karmelicka

ZDJĘCIA W OFERCIE NALEŻĄ DO WŁAŚCICIELA OFERTY Lokal znajduje się przy ul. Karmelickiej - jednej z najbardziej prestiżowych i uczęszczanych ulic w centrum Krakowa - wejście w oficynie kamienicy...

4 900,00 zł

Kraków

lokal biurowy w biurowcu 155 m2 Prądnik Biały

Kraków- Prądnik Biały rejon ul. Jasnogórska Lokal biurowy o powierzchni ok.155 m 2, położony na drugim piętrze/2 piętrowe...

11 000,00 zł

Kraków

lokal biurowy w biurowcu 11m2 Pradnk Bialy

Kraków- Prądnik Biały rejon ul. Jasnogórska Lokal biurowy o powierzchni ok.11 m2, położony na drugim pietrze/2 piętrowego budynku biu...

800,00 zł

Kraków

lokal 93m2 parter z witryna wynajem

Kraków - Wola Duchacka Lokal handlowy parter-front z witryną Może być również biurowo-usługowy!! Lokalizacja Wola Duchacka/Kurdwanów ! ...

5 500,00 zł

Kraków

nowy lokal biurowo usługowy 110 m2 Sakwina

Skawina nowy lokal 110 m2 (do własnej aranżacji!!) blisko centrum Lokal biurowy - usługowy o powierzchni 11 0 m2, położony na parterze w now ym budyn...

5 500,00 zł

Skawina

nowy lokal 170 m2 Sakwina

Skawina nowy lokal 170 m2(do własnej aranżacji!!) blisko centrum rejon ul. Babetty Lokal biurowy - handlowy - usługowy o powierzchni 17 0 m2, położony...

10 200,00 zł

Skawina

Kurdwanów lokal front 75 m2

Kraków - Wola Duchacka Lokal handlowy parter-front z witryną. Może być również biurowo-usługowy!! Lokalizacja Wola Duchacka/Kurdwanów ! Lokal han...

6 500,00 zł

Kraków

powierzchnia biurowa w nowoczesnym biurowcu

Do wynajęcia powierzchnia biurowa w budynku biurowym blisko Nowego Kleparza. Lokal znajduje się na 3 piętrze, składa się z dwóch powierzchni open space (łącznie ok. 60 stanowisk pracy), sali ...

43 136,00 zł

Kraków

Kamienica w Centrum Brzeska.

ZDJĘCIA W OFERCIE NALEŻĄ DO WŁAŚCICIELA OFERTY Na sprzedaż: Kamienica parterowa w centrum Brzeska - ul. Jana Sobieskiego Cena: 890 000 zł (do negocjacji) 📞 Kontakt: Zbyszek - 505 ...

890 000,00 zł

Brzesko

Kamienica w Rynku Szczucina

Zdjęcia należą do właściciela oferty. Oferujemy na sprzedaż kamienicę w samym sercu Rynku w Szczucinie, w malowniczej Kotlinie Sandomierskiej, w województwie małopolskim. To wyjątkowa nieruchomość ...

800 000,00 zł

Szczucin

Grzegórzki – ul. Dąbska | Lokal 109 m² na wynajem

ZDJĘCIA W OGŁOSZENIU NALEŻĄ DO WŁAŚCICIELA OFERTY W ofercie do wynajęcia przestronny, świetnie położony lokal użytkowy o powierzchni 109 m² , znajdujący się na parterze nowoczesn...

8 700,00 zł

Kraków

dwa budynki w Centrum Krakowa.

ZAPRASZAM DO PROWADZENIA FIRMY W CETRUM KRAKOWA. ULICA IDZIKOWSKIEGO. Domy, które mam Państwu przyjemność zaprezentować, znajdują się w dzielnicy Olsza, przy ulicy Idzikowskiego. ...

2 500 000,00 zł

Kraków

Kamienica w Centrum Brzeska.

ZDJĘCIA W OFERCIE NALEŻĄ DO WŁAŚCICIELA OFERTY Na sprzedaż: Kamienica parterowa w centrum Brzeska - ul. Jana Sobieskiego Cena: 890 000 zł (do negocjacji) 📞 Kontakt: Zbyszek - 505 ...

890 000,00 zł

Brzesko

Lokal 135m2 front parter Kurdwanów

Kraków - Wola Duchacka Lokal handlowy 134,34 m2 parter-front z witryną Może być również biurowo-usługowy!! Lokalizacja Wola Duchacka/Kurdwanów! ...

1 300 000,00 zł

Kraków

Duży dom z garażem. Wieliczka. Na wyłączność.

Do sprzedania piękny dom położony w Wieliczce przy ul. Na Stoku. Wolnostojący dom położony na 5 arowej ogrodzonej działce. Ma około 226 m2. W 2013 roku przeszedł remont o...

1 690 000,00 zł

Wieliczka

Atrakcyjna nieruchomość inwestycyjna w Krakowie

Zdjęcia należą do własciciela oferty. Na sprzedaż - atrakcyjna nieruchomość inwestycyjna w Krakowie, ul. Monterska Na sprzedaż nieruchomość inwestycyjna położona w spokojnej i dobrze skomu...

770 000,00 zł

Kraków

Facebook
Facebook
Sprzedawanko.pl – serwis ogłoszeń Firmowanko.pl – katalog firm i usług Pracowanko.pl – serwis pracy Ugościmy.pl – serwis noclegów Nporta.pl – katalog firm i usług