📢
🔥 PRZEDWIOŚNIE 2026 W SPRZEDAWANKO.PL 🔔 WSZYSTKO ZA FREE DO 20.03.2026 r. 🔥

-

850 000,00 zł

{{ phone }}

{{ email }}

Dodane przez: ewanieruchomosci
ewanieruchomosci
Lokalizacja: ul Trakt lubelski 412 lok 2 04-667 Warszawa
Telefon: {{ phone }}
Udostępnij:

Opublikowano:  | Wygaśnie:

ID ogłoszenia: 38211

Szczegóły

Typ: Sprzedaż
Rynek: Nie
Pow. użytkowa m2: 76
Pow. działki m2: 60
Liczba pokoi: 4
Liczba sypialni: 3
Liczba pięter: 2
Rodzaj zabudowy: segment środkowy
Materiał budynku: ceramiczny Porotherm
Okna: PCV
Podłogi: beton
Rok budowy: 2025
Własność: własność
Dach: blacho dachówka
Agent: Ewa Krawczyk
E-mail: ewanieruchomosci@wp.pl
Telefon kom.:
Telefon biuro: 501-724-826
Nr licencji: 4213
Data aktualizacji: 2026-02-09 10:23:46
Inwestycja:

Opis

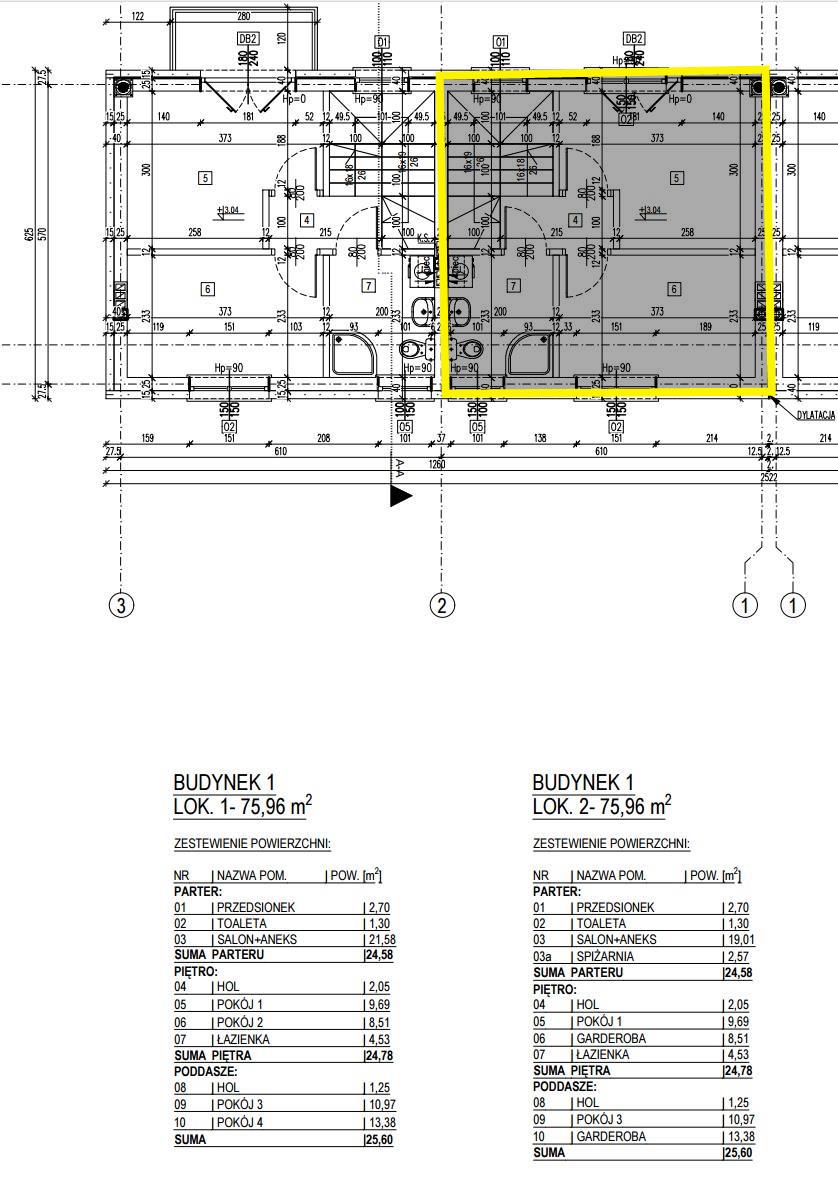
Sprzedam atrakcyjny lokal 75,96m2 z ogródkiem, 2 miejsca postojowe w Wawrze osiedle- Borków w okolicy ul Trakt Lubelski/ul Chodzieska

Lokal bez czynszowy o łącznej powierzchni ok. 75,96m2 znajduje się na dwóch kondygnacjach z poddaszem i ogródkiem ok 60 m2.

Mieszkanie funkcjonalne z przemyślanym rozkładem pomieszczeń:

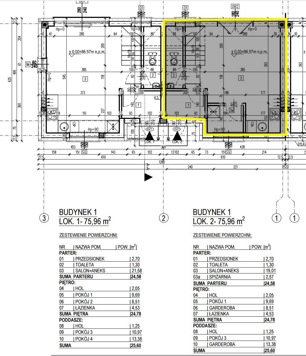
Parter :

Salon 19,01m2 z aneksem kuchennym z wyjściem na ogródek,

Spiżarka 2,57m2,

WC 1,3m2

Przedsionek 2,7m2

Ip.

pokój 9,69m2,

garderoba 4,53m2

łazienka 4,53m2,

hol 2,05m2

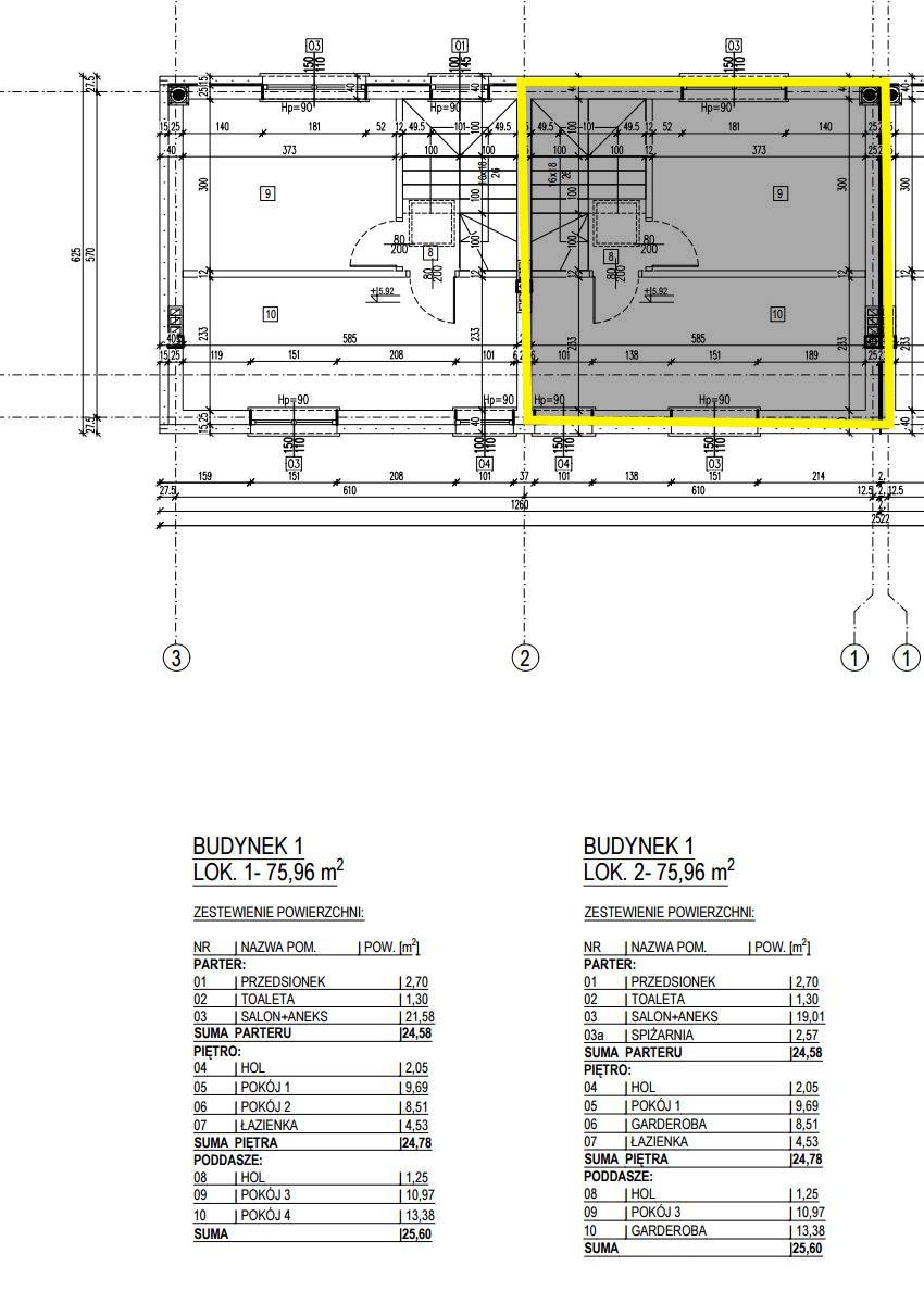
Poddasze:

pokój 10, 97m2

garderoba 13,38m2

Hol 1,25m2

Standard wykończenia:

- piec , grzejniki, osprzęt elektryczny, tynki wewnętrzne , balustrady na balkonach , ogródki wydzielone , parapety wewnętrzne .

2 Miejsca postojowe przed budynkiem.

Mieszkanie w stanie deweloperskim.

Na planie budynek 1 lokal 2

Media:

Woda własna, szambo, Gaz, Prąd

Idealne położenie pod względem komunikacyjnym -ok. 10km co centrum, dojazd samochodem poniżej 20minut nawet w godzinach szczytu.

Bardzo dobry dojazd komunikacją miejską:

Przystanek autobusowy w odległości ok.400m.

CAŁKOWITA CENA NIERUCHOMOŚCI:

-mieszkanie 850.000zł

-2 miejsca postojowe 30.00zł

-ogródek 0.00zł

RAZEM: 880.000 zł

odbiór 03.2026r

Oferta godna polecenia

Zapraszam na prezentację

Ewa 501-724-826

Oferujemy bezpłatną pomoc w uzyskaniu najlepszego finansowania na zakup nieruchomości.

Za wykonaną usługę pobieramy wynagrodzenie zgodnie z warunkami uzgodnionymi w zawartej umowie. Współpraca po podpisaniu umowy pośrednictwa.

Niniejsze ogłoszenie ma charakter wyłącznie informacyjny i nie stanowi oferty w rozumieniu przepisu art. 66 Kodeksu Cywilnego. Nasze usługi świadczymy w oparciu o umowę pośrednictwa, która gwarantuje Państwu opiekę naszego doradcy przez cały okres trwania współpracy.

Oferta wysłana z programu IMO dla biur nieruchomości

Komentarze (0)

Nic nie znaleziono

Tylko zalogowani użytkownicy mogą dodawać komentarze

Mapa

Formularz kontaktowy

This site is protected by reCAPTCHA and the Google Privacy Policy and Terms of Service apply.

Podobne ogłoszenia

Apartament z widokiem na rzekę, Stare MIasto

Wyjątkowy 3-pokojowy apartament z widokiem na rzekę - 62,31 m English version belowMarina Miasto, ul. Na Grobli | III piętro | nowoczesna inwestycja nad OdrąDo mieszkania przynależy komórka lokatorska...

1 290 000,00 zł

Wrocław

3-pokojowy apartament z widokiem na Odrę

Wyjątkowy 3-pokojowy apartament z widokiem na rzekę - 59,95 m English version belowMiasto Marina, ul. Na Grobli | III piętro | nowoczesna inwestycja w zabudowie hotelowo-biurowej nad Odrą Do lokalu pr...

1 280 000,00 zł

Wrocław

3-pokojowy apartament z widokiem na Odrę

Wyjątkowy 3-pokojowy apartament z widokiem na rzekę - 59,95 m English version belowMiasto Marina, ul. Na Grobli | III piętro | nowoczesna inwestycja w zabudowie hotelowo-biurowej nad Odrą Do lokalu pr...

1 280 000,00 zł

Wrocław

Apartament z widokiem na rzekę, Stare MIasto

Wyjątkowy 3-pokojowy apartament z widokiem na rzekę - 62,31 m English version belowMarina Miasto, ul. Na Grobli | III piętro | nowoczesna inwestycja nad OdrąDo mieszkania przynależy komórka lokatorska...

1 290 000,00 zł

Wrocław

OKAZJA! 3 pokoje z oddzielną kuchnią i balkonem

W REZERWACJI- 3 pokoje z oddzielną kuchnią i balkonemOferuję do sprzedaży 3 pokojowe mieszkanie z oddzielną kuchnią, w doskonałej lokalizacji przy ulicy Bajana na Gądowie Małym.Mieszkanie składające s...

699 000,00 zł

Wrocław

Mieszkanie z pięknym tarasem, wysoki standard

Na sprzedaż | 3-pokojowe mieszkanie z pięknym tarasem | ul. Semaforowa Na sprzedaż 3-pokojowe, dwustronne mieszkanie z tarasem, klimatyzacją, miejscem postojowym w garażu podziemnym (dodatkowo płatne)...

799 500,00 zł

Wrocław

Sieraków, gmina Szprotawa, działka rolna, 23800 m2, sprzedaż, 139 000 zł. Na sprzedaż grunt rolny klasy III w miejscowości

Sieraków, gmina Szprotawa, działka rolna, 23800 m2, sprzedaż, 139 000 zł. Na sprzedaż grunt rolny klasy III w miejscowości Sieraków, w gminie Szprotawa, powiat żagański. Działka o płaskim ukszt...

139 000,00 zł

Lubuskie

Polkowice, mieszkanie, 2 piętro, 3 pokoje, 82,2 m2, sprzedam, 328 000 zł. Na sprzedaż duże mieszkanie na 2 piętrze w bloku

Polkowice, mieszkanie, 2 piętro, 3 pokoje, 82,2 m2, sprzedam, 328 000 zł. Na sprzedaż duże mieszkanie na 2 piętrze w bloku na ul. Legnickiej. Okna z salonu i kuchni na stronę wschodnią, z pozos...

328 000,00 zł

Dolnośląskie

Głogów, mieszkanie, 2 pokoje, winda, 44,3 m2, sprzedam, 318960 zł. KUPUJĄCY NIE PŁACI PROWIZJI! OFERTA BEZPOŚREDNIO OD D

Głogów, mieszkanie, 2 pokoje, winda, 44,3 m2, sprzedam, 318960 zł. KUPUJĄCY NIE PŁACI PROWIZJI! OFERTA BEZPOŚREDNIO OD DEWELOPERA. Na sprzedaż nowoczesne mieszkanie z windą w stanie dewelo...

318 960,00 zł

Dolnośląskie

Głogów, mieszkanie, 2 pokoje, balkon, winda, 44,56 m2, sprzedam, 320832 zł. KUPUJĄCY NIE PŁACI PROWIZJI! OFERTA BEZPOŚRE

Głogów, mieszkanie, 2 pokoje, balkon, winda, 44,56 m2, sprzedam, 320832 zł. KUPUJĄCY NIE PŁACI PROWIZJI! OFERTA BEZPOŚREDNIO OD DEWELOPERA. Na sprzedaż nowoczesne mieszkanie z balkonem i w...

320 832,00 zł

Dolnośląskie

Głogów, mieszkanie, 3 pokoje, balkon, winda, 59,36 m2, sprzedam, 421456 zł. KUPUJĄCY NIE PŁACI PROWIZJI! OFERTA BEZPOŚRE

Głogów, mieszkanie, 3 pokoje, balkon, winda, 59,36 m2, sprzedam, 421456 zł. KUPUJĄCY NIE PŁACI PROWIZJI! OFERTA BEZPOŚREDNIO OD DEWELOPERA. Na sprzedaż nowoczesne mieszkanie z balkonem i w...

421 456,00 zł

Dolnośląskie

Głogów, mieszkanie, 3 pokoje, balkon, winda, 59,36 m2, sprzedam, 421456 zł. KUPUJĄCY NIE PŁACI PROWIZJI! OFERTA BEZPOŚRE

Głogów, mieszkanie, 3 pokoje, balkon, winda, 59,36 m2, sprzedam, 421456 zł. KUPUJĄCY NIE PŁACI PROWIZJI! OFERTA BEZPOŚREDNIO OD DEWELOPERA. Na sprzedaż nowoczesne mieszkanie z balkonem i w...

421 456,00 zł

Dolnośląskie

Głogów, mieszkanie, 2 pokoje, balkon, winda, 44,47 m2, sprzedam, 320184 zł. KUPUJĄCY NIE PŁACI PROWIZJI! OFERTA BEZPOŚRE

Głogów, mieszkanie, 2 pokoje, balkon, winda, 44,47 m2, sprzedam, 320184 zł. KUPUJĄCY NIE PŁACI PROWIZJI! OFERTA BEZPOŚREDNIO OD DEWELOPERA. Na sprzedaż nowoczesne mieszkanie z balkonem i w...

320 184,00 zł

Dolnośląskie

Ściegny, Karpacz, apartament 45 m2, 630 000 zł, sprzedam. KUPUJĄCY 0 % PROWIZJI. Nowoczesny apartament w Ściegnach

Ściegny, Karpacz, apartament 45 m2, 630 000 zł, sprzedam. KUPUJĄCY 0 % PROWIZJI. Nowoczesny apartament w Ściegnach koło Karpacza przy ul. Spacerowej. Świetna lokalizacja oraz przemyślany ...

630 000,00 zł

Dolnośląskie

Głogów, mieszkanie, 3 pokoje, balkon, winda, 59,80 m2, sprzedam, 424580 zł. KUPUJĄCY NIE PŁACI PROWIZJI! OFERTA BEZPOŚRE

Głogów, mieszkanie, 3 pokoje, balkon, winda, 59,80 m2, sprzedam, 424580 zł. KUPUJĄCY NIE PŁACI PROWIZJI! OFERTA BEZPOŚREDNIO OD DEWELOPERA. Na sprzedaż nowoczesne mieszkanie z balkonem i w...

424 580,00 zł

Dolnośląskie

Głogów, mieszkanie, 2 pokoje, balkon, winda, 44,87 m2, sprzedam, 323064 zł. KUPUJĄCY NIE PŁACI PROWIZJI! OFERTA BEZPOŚRE

Głogów, mieszkanie, 2 pokoje, balkon, winda, 44,87 m2, sprzedam, 323064 zł. KUPUJĄCY NIE PŁACI PROWIZJI! OFERTA BEZPOŚREDNIO OD DEWELOPERA. Na sprzedaż nowoczesne mieszkanie z balkonem i w...

323 064,00 zł

Dolnośląskie

Głogów, mieszkanie, 2 pokoje, balkon, winda, 37,42 m2, sprzedam, 273166 zł. KUPUJĄCY NIE PŁACI PROWIZJI! OFERTA BEZPOŚRE

Głogów, mieszkanie, 2 pokoje, balkon, winda, 37,42 m2, sprzedam, 273166 zł. KUPUJĄCY NIE PŁACI PROWIZJI! OFERTA BEZPOŚREDNIO OD DEWELOPERA. Na sprzedaż nowoczesne mieszkanie z balkonem i w...

273 166,00 zł

Dolnośląskie

Głogów, mieszkanie, 1 pokój, winda, 29,74 m2, sprzedam, 220076 zł. KUPUJĄCY NIE PŁACI PROWIZJI! OFERTA BEZPOŚREDNIO OD D

Głogów, mieszkanie, 1 pokój, winda, 29,74 m2, sprzedam, 220076 zł. KUPUJĄCY NIE PŁACI PROWIZJI! OFERTA BEZPOŚREDNIO OD DEWELOPERA. Na sprzedaż nowoczesne mieszkanie z windą w stanie dewelo...

220 076,00 zł

Dolnośląskie

Głogów, mieszkanie, 3 pokoje, winda, 59,98 m2, sprzedam, 425858 zł. KUPUJĄCY NIE PŁACI PROWIZJI! OFERTA BEZPOŚREDNIO OD

Głogów, mieszkanie, 3 pokoje, winda, 59,98 m2, sprzedam, 425858 zł. KUPUJĄCY NIE PŁACI PROWIZJI! OFERTA BEZPOŚREDNIO OD DEWELOPERA. Na sprzedaż nowoczesne mieszkanie z windą w stanie dewel...

425 858,00 zł

Dolnośląskie

Głogów, mieszkanie, 2 pokoje, winda, 42,13 m2, sprzedam, 307549 zł. KUPUJĄCY NIE PŁACI PROWIZJI! OFERTA BEZPOŚREDNIO OD

Głogów, mieszkanie, 2 pokoje, winda, 42,13 m2, sprzedam, 307549 zł. KUPUJĄCY NIE PŁACI PROWIZJI! OFERTA BEZPOŚREDNIO OD DEWELOPERA. Na sprzedaż nowoczesne mieszkanie z windą w stanie dewel...

307 549,00 zł

Dolnośląskie

Jesiona, dom 93 m2, działka 2552 m2, sprzedam, 890 000 zł. Oferujemy na sprzedaż nowo wybudowany dom o powierzchni 93 m2.

Jesiona, dom 93 m2, działka 2552 m2, sprzedam, 890 000 zł. Oferujemy na sprzedaż nowo wybudowany dom o powierzchni 93 m2. Nieruchomość składa się z 4 pokoi, oraz jasnego salonu połączonego z kuch...

890 000,00 zł

Lubuskie

Dom jednorodzinny parterowy - projekt `Ekonomiczny 4T` , Gorzyca, gm. Lubin Ten dom łączy funkcjonalny projekt parterowy z

Dom jednorodzinny parterowy - projekt `Ekonomiczny 4T` , Gorzyca, gm. Lubin Ten dom łączy funkcjonalny projekt parterowy z nowoczesną technologią keramzytową, zapewniając komfort mieszkania oraz ...

1 150 000,00 zł

Dolnośląskie

Głogów, mieszkanie, 2 pokoje, balkon, winda, 44,58 m2, sprzedam, 320976 zł. KUPUJĄCY NIE PŁACI PROWIZJI! OFERTA BEZPOŚRE

Głogów, mieszkanie, 2 pokoje, balkon, winda, 44,58 m2, sprzedam, 320976 zł. KUPUJĄCY NIE PŁACI PROWIZJI! OFERTA BEZPOŚREDNIO OD DEWELOPERA. Na sprzedaż nowoczesne mieszkanie z balkonem i w...

320 976,00 zł

Dolnośląskie

Głogów, mieszkanie, 2 pokoje, balkon, winda, 41,75 m2, sprzedam, 304775 zł. KUPUJĄCY NIE PŁACI PROWIZJI! OFERTA BEZPOŚRE

Głogów, mieszkanie, 2 pokoje, balkon, winda, 41,75 m2, sprzedam, 304775 zł. KUPUJĄCY NIE PŁACI PROWIZJI! OFERTA BEZPOŚREDNIO OD DEWELOPERA. Na sprzedaż nowoczesne mieszkanie z balkonem i w...

304 775,00 zł

Dolnośląskie

Dobczyce osiedle Piastowskie

*Zdjęcia należą do właściciela oferty Na sprzedaż 3-pokojowe mieszkanie - Dobczyce, os. Piastowskie Na sprzedaż funkcjonalne mieszkanie o powierzchni ok. 63 m² , położone na 2 piętrze...

549 000,00 zł

Dobczyce

Mieszkanie z m-c postojowym w garażu.

Mieszkanie w Ząbkach przy ul Wiosennej o powierzchni 57,20 z dużym miejscem postojowym w garażu.Mieszkanie 2 pokojowe z widną kuchnią 9,1m2 z salonu 22,6m2 wyjście na balkon 2,5m2, sypialnia 12,6m2 ró...

649 000,00 zł

Ząbki

-

Do wynajęcia magazyn o powierzchni ok 43m2 wysokość 3,5m przy ul Trakt LubelskiMagazyn suchy czysty na poziomie zero.Brama wjazdowa szeroka Nieruchomość znajduje się na zamkniętej posesji.Dobry dojazd...

1 400,00 zł

Warszawa

-

Do wynajęcia magazyn o powierzchni ok 34m2 wysokość 3,5m przy ul Trakt LubelskiMagazyn suchy czysty na poziomie zero.Brama wjazdowa szeroka Nieruchomość znajduje się na zamkniętej posesji.Dobry dojazd...

1 150,00 zł

Warszawa

Facebook
Facebook
Sprzedawanko.pl – serwis ogłoszeń Firmowanko.pl – katalog firm i usług Pracowanko.pl – serwis pracy Ugościmy.pl – serwis noclegów Nporta.pl – katalog firm i usług